Projecten
Producten
Bedrijven
Vacatures
Agenda
Awards
Podcasts
more_horiz
Videos
Magazine
Thema's
Favorieten
Profiel
Uitloggen
Abonneer je nu op onze nieuwsbrieven!
Abonneren
Nee, bedankt
Ja, denk met me mee rond de
materialisering van mijn project
Producten
Solo Cartesiusdriehoek - Zecc Architecten - zijgevel
Copyright: Stijn Poelstra
Solo Cartesiusdriehoek - Zecc Architecten - voorgevel
Copyright: Stijn Poelstra
Solo Cartesiusdriehoek - Zecc Architecten - Hof recht
Copyright: Stijn Poelstra
Solo Cartesiusdriehoek - Zecc Architecten - Fragment Poort
Copyright: Stijn Poelstra
Solo Cartesiusdriehoek - Zecc Architecten - Doorzicht Poort
Copyright: Stijn Poelstra
Solo Cartesiusdriehoek - Zecc Architecten - Overhoeks
Copyright: Stijn Poelstra
Solo Cartesiusdriehoek - Zecc Architecten - Hof overhoeks
Copyright: Stijn Poelstra
Solo Cartesiusdriehoek - Zecc Architecten - Fragment afgeronde hoek
Copyright: Stijn Poelstra
Solo Cartesiusdriehoek - Zecc Architecten - Fragment gevel
Copyright: Stijn Poelstra
Solo Cartesiusdriehoek - Zecc Architecten - Fragment plint
Copyright: Stijn Poelstra
Solo Cartesiusdriehoek - Zecc Architecten - Fragment woning entree
Copyright: Stijn Poelstra
Solo Cartesiusdriehoek - Zecc Architecten - Fragment balkon
Copyright: Stijn Poelstra
Solo Cartesiusdriehoek - Zecc Architecten - Isometrie situatie toekomstig
Copyright: Zecc Architecten
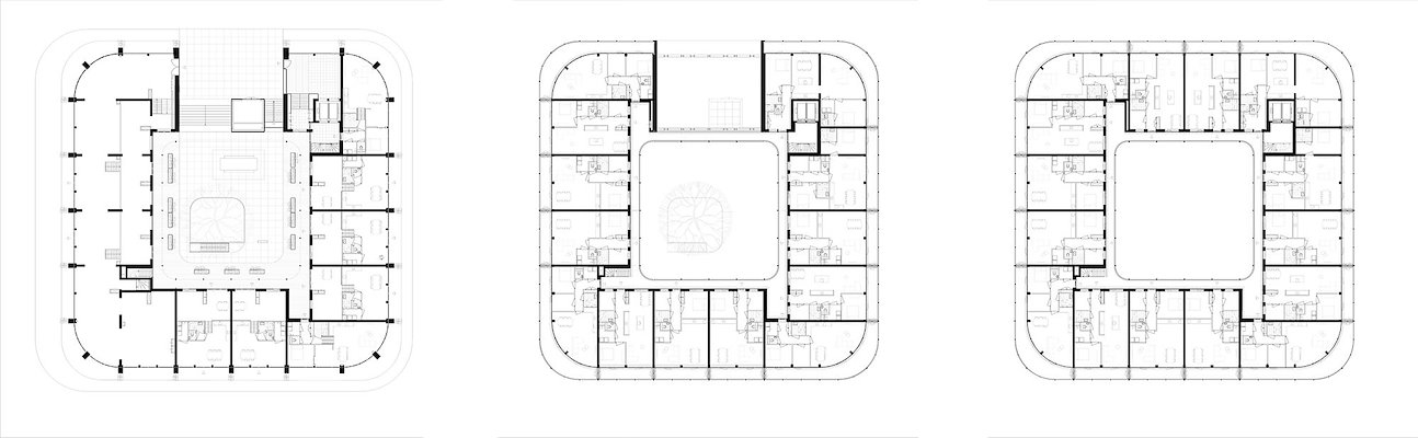
Solo Cartesiusdriehoek - Zecc Architecten - Plattegronden
Copyright: Zecc Architecten
Solo Cartesiusdriehoek - Zecc Architecten - Doorsnede
Copyright: Zecc Architecten
Solo Cartesiusdriehoek - Zecc Architecten - Isometrie concept
Copyright: Zecc Architecten
Solo Cartesiusdriehoek - Zecc Architecten - Plattegrond situatie toekomstig
Copyright: Zecc Architecten
Producttags
AAN
UIT
Solo Cartesiusdriehoek
23 juni 2023
0
0
0
0
In het hart van de Cartesiusdriehoek staat appartementengebouw Solo. De komende jaren wordt hier een levendige stadswijk ontwikkeld met ca. 2.800 woningen en ondersteunende functies. Gebouw Solo bestaat uit 80 huurappartementen, waarvan 7 atelierwoningen, 10 Friendswoningen en 575 m² commerciële ruimte in de plint.
Het markante gebouw met afgeronde hoeken heeft een eigentijds industrieel karakter met alzijdig doorlopende buitenruimten. De appartementen zijn georganiseerd rondom een opgetilde groene binnenplaats met ruimte voor ontmoeting. De binnenplaats en de centrale fietsenstalling zijn bereikbaar via een dubbelhoge poort met industrieel vakwerk.
Solitair
Solo dankt zijn naam aan het solitaire karakter. Nu is Solo het éérste opgeleverde woongebouw, straks staat Solo midden in het park en het hart van stadswijk Cartesiusdriehoek. De wijk bestaat uit grootstedelijke bouwblokken in een orthogonale opzet, die voorkomt uit het monumentale CAB gebouw. Door de groene kleurstelling, de verdraaiing en de afronding maakt Solo zich los van zijn omgeving, zonder dat zich daarvan af te keren.
Second Steel Skin
Solo heeft een industriële uitstraling met tweede dragende gevel. De robuuste hoge plint is opgebouwd uit getoogde betonnen kolommen en liggers die een sokkel vormen voor de bovenliggende staalconstructie, die de rondom doorlopende buitenruimtes draagt. Geleding ontstaat door een ritme van constructieve kolommen en verticale stijlen van verschillende afmetingen en horizontale belijning van de hekwerken.
De rondom doorlopende balkons en de dragende staalconstructie versterken de kwaliteit tussen binnen en buiten. Van binnenuit geven de brede doorlopende balkons en volledig glazen puien veel woonkwaliteit in de vorm van daglicht en uitzicht. De doorlopende balkons voorkomen oververhitting van de woningen en de verfijnde staalconstructie nodigt uit tot vergroening. Privacyschermen zijn goed geïntegreerd en de lage dichte zone voorkomt verrommeling.
Het gebouw krijgt door de afgeronde hoeken een zachte verschijning en alzijdig karakter. De doorlopende balkons kragen op de hoeken verder uit, waardoor het gebouw ranker en eleganter oogt. De hoekwoningen krijgen hierdoor een fenomenaal grote buitenruimte.
Groen
De frisse bleekgroene kleur aan de buitenzijde is een verwijzing naar het industriële karakter en verleden van de locatie en werd vaker in grote industriële hallen en bouwwerken rondom de projectlocatie gebruikt, maar is ook fris en onderscheidend ten overstaan van de toekomstige omliggende bebouwing.
In contrast en aanvulling op de frisse en industriële buitenwereld is er in het hof gekozen voor een warmere zachtere uitstraling met lichte bruin en roodtinten. Dit geeft het hof een geborgen uitstraling met verblijfskwaliteit, wat versterkt wordt door de centrale boom en plantenbakken rondom. Middels draden langs de constructie zal het groen de komende jaren ook in het hof naar boven geleid worden.
Structuur
Het plan is opgezet vanuit een rationeel carré met een binnenhof. Woningen worden vanuit het hof ontsloten via het dek en doorlopen galerijen. Liften en trappen zijn in de oksels van het bouwvolume geplaatste waardoor vrij uitzicht mogelijk is op het hof vanuit de woningen.
Op de galerij verdiepingen zijn in de lay-out van een molenwiek de verschillende appartementen gelegen elk met een riante buitenruimte over de volledige breedte. De tussenwoningen hebben in de basis een gelijke positie van schachten en voorzieningen. Door het verplaatsen van één wand en de opstelling van de keuken zijn doorzon- en traditionele appartementen met de woonkamer over de volledige breedte gemaakt. De hoekappartementen met afgeronde woonkamer geven een panoramisch uitzicht over het park en de stad met en zeer riante doorlopende buitenruimte langs het gehele appartement.
Passend bij de doelgroep voor het middensegment zijn rondom het trappenhuis de grotere Friends-woningen gelegen met een collectieve woonkamer en keuken en voor elke bewoner een eigen private slaap- en badkamer.
De transparante plint biedt ruimte aan commercieel (horeca)programma en hoge atelierwoningen voor creatieve starters, met rondom een margestrook en terrassen die toegang bieden voor bezoekers. De voordeuren van de atelierwoningen zijn gelegen aan het verhoogde centraal gelegen hof. Naast werkruimte bevatten de atelierwoningen een compacte woonruimte op hof-niveau en slaapruimte op het insteekvolume met natte ruimtes en berging.
Repetitie van structuur, eenduidigheid in detaillering en de doorgestapelde constructie voor balkons en galerijen hebben gezorgd voor een korte bouwtijd van ongeveer één jaar.
Fiets
Solo is een gebouw voor fietsers. Door de ligging middenin het park en de autoluwe omgeving rondom staat het gebruik van de fiets centraal voor de bewoners. De fietsenstalling is ruim van opzet; alle fietsen staan gelijkvloers, er is voldoende plaats voor bijzonder formaat fietsen van bijzonder formaat en elektrische oplaadpunten. De half verdiepte overdekte fietsenstalling is via een luie trap te bereiken. In het midden van het dek is een patio gemaakt met ruimte voor een volwassen boom in volle grond. Via deze patio valt daglicht naar binnen en is een mooie trap gemaakt als verbinding naar het centrale dek.
Stel jezelf kort voor! Dan weet het betreffende bedrijf wie hun model gedownload heeft.
Wil je niet bij elke download jouw gegevens in hoeven voeren?
Klik dan hier om in te loggen
.
Heb je nog geen account?
Maak dan hier een gratis account aan
.
Voornaam
Achternaam
E-mailadres
Downloaden
Wanneer je modellen downloadt op Architectenweb.nl worden relevante gegevens van jou – zoals jouw naam en e-mailadres – met het betreffende bedrijf gedeeld. Meer hierover lees je in ons
privacybeleid
.
Locatie
Trefwoorden
afgerond
cartesius
natuurvezelplaat
kolommen
tweede huid
structuur
gevel
atelierwoningen
getoogd
hof
poort
dek
staal
solo
plint
cab
staalconsturctie
starters
raster
vakwerk
galerij
alzijdig
buitenruimtes
cartesiusdriehoek
binnentuin
woongebouw
solitair
zecc
industrieel
utrecht
rond
middenhuur
sokkel
grid
appartementen
friendswoningen
groen
beton
balkons
Zecc Architecten
Neem contact op
Projectdata
Staat van realisatie
Voltooid
Start ontwerpproces
2019
Start bouw
2022
Oplevering
2023
Ingebruikname
2023
Plaats
Utrecht
Bruto m
2
8200
Netto m
2
7500
Meewerkende partijen
Architect
Zecc Architecten
Interieurarchitect
Zecc Architecten
Projectarchitect
bart kellerhuis, roy van maarseveen
Ontwerpteam
bart kellerhuis, roy van maarseveen, koen portzgen, niels hartsuiker, pim van tol, rene de korte
Opdrachtgever
Keystone vastgoed
Aannemer
Bouwbedrijf Wessels Zeist
Constructeur
Pieters bouwtechiek
Adviseurs installaties E & W
ingenieursbureau Deuring
Fotograaf
Stijn Poelstra
Leveranciers
Gevelelementen, Gevels kozijnen
facedo geveltechniek
Kozijnen
Kawneer
Neem contact op met
Zecc Architecten
Je bent momenteel niet ingelogd. Hierdoor is het alleen mogelijk om meer informatie per e-mail op te vragen. Wil je liever gebeld worden of documentatie per post ontvangen?
Klik dan hier om in te loggen
.
Heb je nog geen account?
Maak dan hier een gratis account aan
.
Voornaam
Achternaam
E-mailadres
Opmerkingen
Bij iedere aanvraag worden relevante gegevens van jou gedeeld met het betreffende bedrijf. Meer hierover lees je in ons
privacybeleid
.
Ja, denk met me mee rond de
materialisering van mijn project
Meer projecten van Zecc Architecten
Zuidkade Scheveningen
Zecc Architecten
Kruitfabriek Muiden
Zecc Architecten
De Onderdelenloods
Zecc Architecten
Watertoren Utrecht
Zecc Architecten
Gemeentehuis Renswoude
Zecc Architecten
Appartementengebouw BU31 Utrecht
Zecc Architecten
Het Eiland Meerstad
Zecc Architecten
Tijdelijke huisvesting Tweede Kamer
Zecc Architecten
Woongebouw Noorderhaven Kade Noord
Zecc Architecten
Parkeergebouw Berlijnplein Leidsche Rijn Centrum
Zecc Architecten
Rijnvliet Midden in het groen
Zecc Architecten
De Ark zorgappartementen
Zecc Architecten
Steel Craft House
Zecc Architecten
De Koningin op het Kraanbolwerk
Zecc Architecten
Werkspoorfabriek
Zecc Architecten
Bibliotheek Neude
Zecc Architecten
Recreatiewoning regio Utrecht
Zecc Architecten
KRO-NCRV
Zecc Architecten
Spoorhuis
Zecc Architecten
Drents Archief
Zecc Architecten
Gymzaalwoning
Zecc Architecten
Zwarte Parel
Zecc Architecten
Energieneutraal Monument
Zecc Architecten
Studio Heldergroen
Zecc Architecten
Studiowoningen
Zecc Architecten
Kadewoningen
Zecc Architecten
Woonkerk XL
Zecc Architecten
Waterwoningen
Zecc Architecten
Waterwoningen Amersfoort
Zecc Architecten
Bosvilla Soest
Zecc Architecten
Woonhuis Vriezenveen
Zecc Architecten
Woonlaboratorium
Zecc Architecten
Woonkerk Utrecht
Zecc Architecten
Individueel woonverlangen
Zecc Architecten
Herbestemming watertoren tot woonhuis
Zecc Architecten
Zuidkade Scheveningen
Zecc Architecten
Kruitfabriek Muiden
Zecc Architecten
De Onderdelenloods
Zecc Architecten
Watertoren Utrecht
Zecc Architecten
Gemeentehuis Renswoude
Zecc Architecten
Appartementengebouw BU31 Utrecht
Zecc Architecten
Het Eiland Meerstad
Zecc Architecten
Tijdelijke huisvesting Tweede Kamer
Zecc Architecten
Woongebouw Noorderhaven Kade Noord
Zecc Architecten
Parkeergebouw Berlijnplein Leidsche Rijn Centrum
Zecc Architecten
Rijnvliet Midden in het groen
Zecc Architecten
De Ark zorgappartementen
Zecc Architecten
Steel Craft House
Zecc Architecten
De Koningin op het Kraanbolwerk
Zecc Architecten
Werkspoorfabriek
Zecc Architecten
Bibliotheek Neude
Zecc Architecten
Recreatiewoning regio Utrecht
Zecc Architecten
KRO-NCRV
Zecc Architecten
Spoorhuis
Zecc Architecten
Drents Archief
Zecc Architecten
Gymzaalwoning
Zecc Architecten
Zwarte Parel
Zecc Architecten
Energieneutraal Monument
Zecc Architecten
Studio Heldergroen
Zecc Architecten
Studiowoningen
Zecc Architecten
Kadewoningen
Zecc Architecten
Woonkerk XL
Zecc Architecten
Waterwoningen
Zecc Architecten
Waterwoningen Amersfoort
Zecc Architecten
Bosvilla Soest
Zecc Architecten
Woonhuis Vriezenveen
Zecc Architecten
Woonlaboratorium
Zecc Architecten
Woonkerk Utrecht
Zecc Architecten
Individueel woonverlangen
Zecc Architecten
Herbestemming watertoren tot woonhuis
Zecc Architecten
Toon alles
Andere Projecten
Totaalrealisatie nieuwe kantoorlocatie A. Vogel
Intermontage B.V.
Sweco Wonderwoods — Duurzame kantoorinrichting
Hal2
Gare Maritime, Brussel
WEBO
Sweco WTC Den Haag — Duurzame kantoorinrichting
Hal2
Uitbreiding Hotel Martin's Klooster, Leuven
OWA Benelux - Akoestiek & Design
RVS plinten kantoor Moore DRV
Storax
Nieuwbouw keuken Stark Hoogeveen
KeraStone
Transformatie van meubelzaak naar autobedrijf
Buro De Haan
Sluiseiland Arnhem
Houthandel van Dam
Waterfrontontwikkeling Westboro Beach - Ottawa(CA)
Streetlife B.V.
Samen bouwen met ruimte voor eigenheid
Innoblox
Transformeerbare vergaderruimtes in HNK Amsterdam
BREEDVELD mobiele wandsystemen
Ga naar het projecten-overzicht
Voor een optimale gebruikservaring plaatst Architectenweb functionele cookies. Wat de verschillende cookies precies doen leggen we uit in een
overzicht
. Cookies van social media kun je optioneel
aanzetten
.
Akkoord
Instellingen
Annuleren
OK
Sluiten
Doorgaan
Inloggen
Maak een gratis persoonlijk account aan
Feedback
Feedback
Wij horen graag jouw feedback. Laat je reactie achter en eventueel jouw e-mail adres.
Reactie
Verstuur