Projecten
Producten
Bedrijven
Vacatures
Agenda
Awards
Podcasts
more_horiz
Videos
Magazine
Thema's
Favorieten
Profiel
Uitloggen
Abonneer je nu op onze nieuwsbrieven!
Abonneren
Nee, bedankt
Ja, denk met me mee rond de
materialisering van mijn project
Producten
Zecc Architecten - BU31
Copyright: Stijn Poelstra
Zecc Architecten - BU31
Copyright: Stijn Poelstra
Zecc Architecten - BU31
Copyright: Stijn Poelstra
doorsnede BU31
Copyright: Zecc Architecten
Zecc Architecten - BU31
Copyright: Stijn Poelstra
Zecc Architecten - BU31
Copyright: Stijn Poelstra
vijfde verdieping
Copyright: Zecc Architecten
Zecc Architecten - BU31
Copyright: Stijn Poelstra
zesde verdieping
Copyright: Zecc Architecten
Zecc Architecten - BU31
Copyright: Stijn Poelstra
Producttags
AAN
UIT
Appartementengebouw BU31 Utrecht
22 augustus 2022
0
0
0
0
Aan de Van Esveldstraat in Utrecht is op de plek van een oude KPN-telefooncentrale het appartementengebouw BU31 gerealiseerd. In de transitie van koper naar glasvezel werd een veel kleinere centrale onderdeel van het nieuwe ontwerp. De kleinere glasvezelcentrale moest eerst naast de nog functionerende kopercentrale worden gebouwd. Na de transitie moest de kopercentrale trillingsvrij worden gesloopt om plaats te maken voor het nieuwe appartementengebouw. De nieuwe glasvezelcentrale is ‘omarmd’ in de luifel boven de hoge entree en de toegang van de parkeergarage.
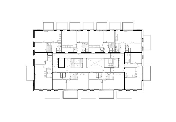
Het alzijdige gebouw omvat een half verdiepte parkeergarage en 46 tweekamerappartementen, die worden ontsloten vanuit een licht atrium met watervaltrap. Het atrium is asymmetrisch in het blok geplaatst; hierdoor zijn meer woningen georiënteerd op de zuidkant, met balkons en ruime terrassen aan het water, en minder woningen aan de geluidbelaste noordzijde. De woningen op het noorden kregen wel meer gevellengte en daglicht. Door een dragende kern en dragende gevel ontstond de vrijheid om woningen ten opzichte van elkaar te laten verspringen en kregen de geluidbelaste balkons extra vrije hoogte. De slaapkamers onder de balkons krijgen in de zomer juist schaduw en blijven langer koel.
Door een prefab bouwsysteem is het gebouw in korte tijd, steigerloos, gerealiseerd. Steigerloos bouwen was mede ingegeven door de aanwezigheid van een hogedruk gasleiding naast het gebouw. De gevel bestaat uit dragende sandwichelementen en de balkons zijn er achteraf ‘aangeschroefd’ met het Balqoon systeem. De manier waarop de ‘bouwstenen’ zijn gestapeld is afleesbaar gemaakt in het patroon van volle stenen die ‘op klamp’ zijn ingestort in de prefab elementen. Dat is consequent doorgezet in de prefab balkons, waarvan het onderste deel voorzien is van metselwerk om privacy te bieden aan de woningen en een rommelig beeld vanuit de straat te voorkomen.
De half verdiepte parkeergarage is traditioneel gebouwd, dat zich laat aflezen in (deels opengewerkt) ambachtelijk metselwerk in Vlaams verband. Ook de ingestorte stenen komen uit Vlaanderen en zo krijg dit Utrechtse project een Belgisch tintje.
Stel jezelf kort voor! Dan weet het betreffende bedrijf wie hun model gedownload heeft.
Wil je niet bij elke download jouw gegevens in hoeven voeren?
Klik dan hier om in te loggen
.
Heb je nog geen account?
Maak dan hier een gratis account aan
.
Voornaam
Achternaam
E-mailadres
Downloaden
Wanneer je modellen downloadt op Architectenweb.nl worden relevante gegevens van jou – zoals jouw naam en e-mailadres – met het betreffende bedrijf gedeeld. Meer hierover lees je in ons
privacybeleid
.
Locatie
Trefwoorden
prefab
balkons
utrecht
appartementen
woningen
woningbouw
steigerloosbouwen
Zecc Architecten
Neem contact op
Projectdata
Staat van realisatie
Voltooid
Start ontwerpproces
2011
Start bouw
2020
Oplevering
2022
Ingebruikname
2022
Plaats
Utrecht
Meewerkende partijen
Architect
Zecc Architecten
Opdrachtgever
MBB-ontwikkeling
Aannemer
MBB (Maarssen)
Adviseur
Lievense WSP, LBP Sight
Leveranciers
Overig
Balqoon
Neem contact op met
Zecc Architecten
Je bent momenteel niet ingelogd. Hierdoor is het alleen mogelijk om meer informatie per e-mail op te vragen. Wil je liever gebeld worden of documentatie per post ontvangen?
Klik dan hier om in te loggen
.
Heb je nog geen account?
Maak dan hier een gratis account aan
.
Voornaam
Achternaam
E-mailadres
Opmerkingen
Bij iedere aanvraag worden relevante gegevens van jou gedeeld met het betreffende bedrijf. Meer hierover lees je in ons
privacybeleid
.
Ja, denk met me mee rond de
materialisering van mijn project
Meer projecten van Zecc Architecten
Zuidkade Scheveningen
Zecc Architecten
Kruitfabriek Muiden
Zecc Architecten
De Onderdelenloods
Zecc Architecten
Solo Cartesiusdriehoek
Zecc Architecten
Watertoren Utrecht
Zecc Architecten
Gemeentehuis Renswoude
Zecc Architecten
Het Eiland Meerstad
Zecc Architecten
Tijdelijke huisvesting Tweede Kamer
Zecc Architecten
Woongebouw Noorderhaven Kade Noord
Zecc Architecten
Parkeergebouw Berlijnplein Leidsche Rijn Centrum
Zecc Architecten
Rijnvliet Midden in het groen
Zecc Architecten
De Ark zorgappartementen
Zecc Architecten
Steel Craft House
Zecc Architecten
De Koningin op het Kraanbolwerk
Zecc Architecten
Werkspoorfabriek
Zecc Architecten
Bibliotheek Neude
Zecc Architecten
Recreatiewoning regio Utrecht
Zecc Architecten
KRO-NCRV
Zecc Architecten
Spoorhuis
Zecc Architecten
Drents Archief
Zecc Architecten
Gymzaalwoning
Zecc Architecten
Zwarte Parel
Zecc Architecten
Energieneutraal Monument
Zecc Architecten
Studio Heldergroen
Zecc Architecten
Studiowoningen
Zecc Architecten
Kadewoningen
Zecc Architecten
Woonkerk XL
Zecc Architecten
Waterwoningen
Zecc Architecten
Waterwoningen Amersfoort
Zecc Architecten
Bosvilla Soest
Zecc Architecten
Woonhuis Vriezenveen
Zecc Architecten
Woonlaboratorium
Zecc Architecten
Woonkerk Utrecht
Zecc Architecten
Individueel woonverlangen
Zecc Architecten
Herbestemming watertoren tot woonhuis
Zecc Architecten
Zuidkade Scheveningen
Zecc Architecten
Kruitfabriek Muiden
Zecc Architecten
De Onderdelenloods
Zecc Architecten
Solo Cartesiusdriehoek
Zecc Architecten
Watertoren Utrecht
Zecc Architecten
Gemeentehuis Renswoude
Zecc Architecten
Het Eiland Meerstad
Zecc Architecten
Tijdelijke huisvesting Tweede Kamer
Zecc Architecten
Woongebouw Noorderhaven Kade Noord
Zecc Architecten
Parkeergebouw Berlijnplein Leidsche Rijn Centrum
Zecc Architecten
Rijnvliet Midden in het groen
Zecc Architecten
De Ark zorgappartementen
Zecc Architecten
Steel Craft House
Zecc Architecten
De Koningin op het Kraanbolwerk
Zecc Architecten
Werkspoorfabriek
Zecc Architecten
Bibliotheek Neude
Zecc Architecten
Recreatiewoning regio Utrecht
Zecc Architecten
KRO-NCRV
Zecc Architecten
Spoorhuis
Zecc Architecten
Drents Archief
Zecc Architecten
Gymzaalwoning
Zecc Architecten
Zwarte Parel
Zecc Architecten
Energieneutraal Monument
Zecc Architecten
Studio Heldergroen
Zecc Architecten
Studiowoningen
Zecc Architecten
Kadewoningen
Zecc Architecten
Woonkerk XL
Zecc Architecten
Waterwoningen
Zecc Architecten
Waterwoningen Amersfoort
Zecc Architecten
Bosvilla Soest
Zecc Architecten
Woonhuis Vriezenveen
Zecc Architecten
Woonlaboratorium
Zecc Architecten
Woonkerk Utrecht
Zecc Architecten
Individueel woonverlangen
Zecc Architecten
Herbestemming watertoren tot woonhuis
Zecc Architecten
Toon alles
Andere Projecten
Huis van de Gemeente Voorst
Kawneer
Rumah Kechik, Malacca
Malaysian Timber Council
Plus Ultra III - EUROLACKE Poedercoatings
EUROLACKE
Energiezuinig gebouwd IKC 's-Heer Arendskerke
wienerberger
Duurzame houten gevelbekleding woning in Sappemeer
Foreco Houtproducten
BDO kantoor Breda
ULMA Architectural Solutions
L-founders of loyalty | Germany
Plan Effect Systeemwanden
Kokowall geluidsscherm A28 bij Ermelo
Kokosystems B.V.
Architects in Motion over abdijrenovatie
KUBUS | Specialist in Archicad
Almere Havenkom
HOSPER landschapsarchitectuur
Lansingerland Lage Bergse Bos
HOSPER landschapsarchitectuur
Sentho realiseert hygiënische upgrade
Sentho B.V.
Ga naar het projecten-overzicht
Voor een optimale gebruikservaring plaatst Architectenweb functionele cookies. Wat de verschillende cookies precies doen leggen we uit in een
overzicht
. Cookies van social media kun je optioneel
aanzetten
.
Akkoord
Instellingen
Annuleren
OK
Sluiten
Doorgaan
Inloggen
Maak een gratis persoonlijk account aan
Feedback
Feedback
Wij horen graag jouw feedback. Laat je reactie achter en eventueel jouw e-mail adres.
Reactie
Verstuur