Projecten
Producten
Bedrijven
Vacatures
Agenda
Awards
Podcasts
more_horiz
Videos
Magazine
Thema's
Favorieten
Profiel
Uitloggen
Abonneer je nu op onze nieuwsbrieven!
Abonneren
Nee, bedankt
Ja, denk met me mee rond de
materialisering van mijn project
Producten
Bibliotheek Neude - centrale hal
Copyright: Kees Hummel
Bibliotheek Neude - vergrote openingen aan weerszijden van de centrale hal
Copyright: Kees Hummel
Bibliotheek Neude - vaste collectie en tribune
Copyright: Kees Hummel
Kinderafdeling met verdiepte voorleesruimte, entresol met atelier en boekenhuis van Frank Halma
Copyright: Kees Hummel
Bibliotheek Neude - kinderafdeling met zicht op De Neude
Copyright: Kees Hummel
Bibliotheek Neude - oude spanten en vensters naar de centrale hal
Copyright: Kees Hummel
Bibliotheek Neude - stadsstudiehuis met nieuwe dakramen
Copyright: Kees Hummel
Bibliotheek Neude - het auditorium in de nieuwbouw
Copyright: Kees Hummel
Bibliotheek Neude - servicebalie
Copyright: Kees Hummel
Bibliotheek Neude - collegezaal
Copyright: Kees Hummel
Bibliotheek Neude - kantoren
Copyright: Kees Hummel
Bibliotheek Neude
Copyright: Kees Hummel
Bibliotheek Neude - centrale hal
Copyright: Kees Hummel
Bibliotheek Neude
Copyright: Kees Hummel
Bibliotheek Neude - doorsnede
Copyright: Zecc Architecten | Rijnboutt
Bibliotheek Neude - plattegrond souterrain
Copyright: Zecc Architecten | Rijnboutt
Bibliotheek Neude - plattegrond begane grond
Copyright: Zecc Architecten | Rijnboutt
Bibliotheek Neude - plattegrond eerste verdieping
Copyright: Zecc Architecten | Rijnboutt
Bibliotheek Neude - plattegrond tweede verdieping
Copyright: Zecc Architecten | Rijnboutt
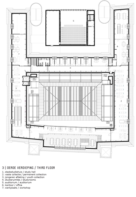
Bibliotheek Neude - plattegrond derde verdieping
Copyright: Zecc Architecten | Rijnboutt
Producttags
AAN
UIT
Bibliotheek Neude
29 juni 2020
1
0
0
0
Een groot cadeau voor iedere inwoner van Utrecht, het ontsluiten van een icoon! Het voormalige hoofdpostkantoor, een robuust monument in de Amsterdamse School stijl, is geopend voor de stad en laat zich ontdekken. Zecc Architecten en Rijnboutt creëerden ruimtes voor boeken, studie, muziek, om koffie te drinken of gewoon te ontspannen. Bijvoorbeeld in de fenomenale centrale hal waar menig Utrechter in de rij stond voor een velletje postzegels, maar ook in al die prachtige ruimten daar omheen, 8.000 vierkante meter bedrijfsvloer, die tot voorkort voor iedereen verborgen bleven.
Verbinden als thema
Zecc doorbrak met Rijnboutt de geslotenheid van het oude PTT-hoofdpostkantoor. Verbinden was en is het credo. Vroeger werden hier brieven verstuurd en zorgden dames op zolder voor de telefoonconnectie. Nu is het een plek om elkaar tegen te komen, de bibliotheek te verkennen en de stad te ontmoeten. Om het gebouw fysiek en visueel te ontsluiten moest het casco zich ‘openen’, waardoor bezoekers als vanzelfsprekend hun weg door de bibliotheek vinden. De centrale hal is van een overweldigende schoonheid met een rijkdom aan vorm, licht en ambachtelijk materiaalgebruik. Deze hal is een bruisend plein geworden en verlengstuk van de stad. Vanuit deze centrale hal zijn zes nieuwe openingen gemaakt boven de kenmerkende historische deuren, die voorheen gesloten bleven voor publiek. Die nieuwe lichtopeningen begeleiden je naar de zijvleugels en nodigen je uit om op reis te gaan door de bibliotheek.
Oriëntatie
Door het versmelten van oud en nieuw én het creëren van nieuwe doorzichten en extra doorgangen tussen de leeszalen ontstond een alternatieve omloop met vergezichten over de historische binnenstad. “De sequentie van lage en hoge ruimtes – in de hal en de kamers – creëert een ruimtelijke spanning die uitnodigt om de bibliotheek en haar omgeving te verkennen. Die structuur is tijdloos en de kracht van het ontwerp van Joseph Crouwel. Maar het past niet in een bibliotheek van deze tijd waarin overzicht juist belangrijk is. Door brede doorgangen te maken in de hoeken van de kamers is het karakter behouden, terwijl in de breedte meer transparantie ontstaat.
Lopen door de bibliotheek is als een ontdekkingsreis door bijzondere kamers en ruimtes. Van de klassieke boekenzaal tot de speels ingedeelde kinderafdeling. Verder zijn er studieruimtes die met moderne glazen wanden zijn afgesloten. In het muziekatelier is een kleine tribune gemaakt met geweldig uitzicht over De Neude. De brasserie en het auditorium kijken uit op de Oudegracht. Er is een intieme filmzaal en prachtige ‘klassieke’ studiezaal onder de houten kapconstructie met een modern meubilair. Hier heb je door een nieuw dakvenster een fenomenaal panorama over de oude binnenstad van Utrecht
Menselijke maat
De inrichting volgt de structuur van het Rijksmonument. De lambriseringen in het bestaande gebouw zijn gebruikt als thema. Ze benadrukken de menselijke maat en bepaalden mede de hoogte van het schilderwerk en de kasten. Deze zijn veelal haaks op vensters in de gevel geplaatst zodat daglicht diep in het gebouw kan doordringen. De lijnverlichting volgt op haar beurt het programma van de bibliotheek en vormt een visueel plafond waarachter de installatietechniek verborgen gaat. Subtiele details die intimiteit en rust creëren. Bijvoorbeeld om over de lage kasten heen het overzicht te bewaren. Niets leidt het oog van de bezoeker nog af om de historische omgeving in zich op te nemen.
Bij de inrichting was de oorspronkelijke ornamentiek van het postkantoor leidend. Op de verdiepingen is deze aanmerkelijk soberder dan in de hal. Daarom wordt de kleur van de houten boekenkasten lichter naarmate je hoger in het gebouw komt. En is gekozen voor meubelen met klassieke lijnen die de rust van het gebouw benadrukken. De lichte inrichting zorgt er bovendien voor dat de historische elementen van het postkantoor tot hun recht komen. Zoals de kapconstructie op de zolderverdieping. Tijdens het strippen werden – in het voormalige domein van de tekenaars en centralistes - historische spanten zichtbaar. Soms geschilderd, soms met hun oude patina bepalen ze nu de sfeer in de studiezaal. Hier, net onder de kap, kunnen bezoekers alle facetten van de stad aanschouwen. Kijken ze door de glazen borstwering schuin naar beneden, dan zien ze mensen voorbijsnellen op De Neude. Terwijl ze door de daklichten de Domtoren ontwaren.
Stel jezelf kort voor! Dan weet het betreffende bedrijf wie hun model gedownload heeft.
Wil je niet bij elke download jouw gegevens in hoeven voeren?
Klik dan hier om in te loggen
.
Heb je nog geen account?
Maak dan hier een gratis account aan
.
Voornaam
Achternaam
E-mailadres
Downloaden
Wanneer je modellen downloadt op Architectenweb.nl worden relevante gegevens van jou – zoals jouw naam en e-mailadres – met het betreffende bedrijf gedeeld. Meer hierover lees je in ons
privacybeleid
.
Locatie
Trefwoorden
bibliotheek
a.s.r.
zecc architecten
neude
transformatie
rijnboutt
publiek gebouw
utrecht
interieur
postkantoor
monument
bibliotheek neude
Zecc Architecten
Neem contact op
Projectdata
Staat van realisatie
Voltooid
Start ontwerpproces
2015
Start bouw
2018
Oplevering
2020
Ingebruikname
2020
Plaats
Utrecht
Kosten
16000000
Bruto m
2
12000
Netto m
2
9000
Meewerkende partijen
Architect
Zecc Architecten
,
Rijnboutt
Projectarchitect
Bart Kellerhuis
Ontwerpteam
Marnix van der Meer, Roy van Maarseveen, Koen Pörtzgen, Remco van den Broek, Marjo Langbroek, Jeroen den Hertog, Redmer Weijer, Mario van Kooij
Opdrachtgever
Bibliotheek Utrecht
Aannemer
Jurriens B.V.
Constructeur
Zonneveld ingenieurs
Adviseurs installaties E & W
Deerns
Fotograaf
Kees Hummel
Designer
div. kunstenaars
Projectmanagement
Maar! bouwmanagement
Leveranciers
Overig
Keijsers, Gispen, Coors, Kees Hummel
Bureaus, Inbouwunit EVIA
OCS | Office Cabling Systems
Balkon- en galerijhekken
Jonkers Bouwmetaal
Neem contact op met
Zecc Architecten
Je bent momenteel niet ingelogd. Hierdoor is het alleen mogelijk om meer informatie per e-mail op te vragen. Wil je liever gebeld worden of documentatie per post ontvangen?
Klik dan hier om in te loggen
.
Heb je nog geen account?
Maak dan hier een gratis account aan
.
Voornaam
Achternaam
E-mailadres
Opmerkingen
Bij iedere aanvraag worden relevante gegevens van jou gedeeld met het betreffende bedrijf. Meer hierover lees je in ons
privacybeleid
.
Ja, denk met me mee rond de
materialisering van mijn project
Meer projecten van Zecc Architecten
Zuidkade Scheveningen
Zecc Architecten
Kruitfabriek Muiden
Zecc Architecten
De Onderdelenloods
Zecc Architecten
Solo Cartesiusdriehoek
Zecc Architecten
Watertoren Utrecht
Zecc Architecten
Gemeentehuis Renswoude
Zecc Architecten
Appartementengebouw BU31 Utrecht
Zecc Architecten
Het Eiland Meerstad
Zecc Architecten
Tijdelijke huisvesting Tweede Kamer
Zecc Architecten
Woongebouw Noorderhaven Kade Noord
Zecc Architecten
Parkeergebouw Berlijnplein Leidsche Rijn Centrum
Zecc Architecten
Rijnvliet Midden in het groen
Zecc Architecten
De Ark zorgappartementen
Zecc Architecten
Steel Craft House
Zecc Architecten
De Koningin op het Kraanbolwerk
Zecc Architecten
Werkspoorfabriek
Zecc Architecten
Recreatiewoning regio Utrecht
Zecc Architecten
KRO-NCRV
Zecc Architecten
Spoorhuis
Zecc Architecten
Drents Archief
Zecc Architecten
Gymzaalwoning
Zecc Architecten
Zwarte Parel
Zecc Architecten
Energieneutraal Monument
Zecc Architecten
Studio Heldergroen
Zecc Architecten
Studiowoningen
Zecc Architecten
Kadewoningen
Zecc Architecten
Woonkerk XL
Zecc Architecten
Waterwoningen
Zecc Architecten
Waterwoningen Amersfoort
Zecc Architecten
Bosvilla Soest
Zecc Architecten
Woonhuis Vriezenveen
Zecc Architecten
Woonlaboratorium
Zecc Architecten
Woonkerk Utrecht
Zecc Architecten
Individueel woonverlangen
Zecc Architecten
Herbestemming watertoren tot woonhuis
Zecc Architecten
Zuidkade Scheveningen
Zecc Architecten
Kruitfabriek Muiden
Zecc Architecten
De Onderdelenloods
Zecc Architecten
Solo Cartesiusdriehoek
Zecc Architecten
Watertoren Utrecht
Zecc Architecten
Gemeentehuis Renswoude
Zecc Architecten
Appartementengebouw BU31 Utrecht
Zecc Architecten
Het Eiland Meerstad
Zecc Architecten
Tijdelijke huisvesting Tweede Kamer
Zecc Architecten
Woongebouw Noorderhaven Kade Noord
Zecc Architecten
Parkeergebouw Berlijnplein Leidsche Rijn Centrum
Zecc Architecten
Rijnvliet Midden in het groen
Zecc Architecten
De Ark zorgappartementen
Zecc Architecten
Steel Craft House
Zecc Architecten
De Koningin op het Kraanbolwerk
Zecc Architecten
Werkspoorfabriek
Zecc Architecten
Recreatiewoning regio Utrecht
Zecc Architecten
KRO-NCRV
Zecc Architecten
Spoorhuis
Zecc Architecten
Drents Archief
Zecc Architecten
Gymzaalwoning
Zecc Architecten
Zwarte Parel
Zecc Architecten
Energieneutraal Monument
Zecc Architecten
Studio Heldergroen
Zecc Architecten
Studiowoningen
Zecc Architecten
Kadewoningen
Zecc Architecten
Woonkerk XL
Zecc Architecten
Waterwoningen
Zecc Architecten
Waterwoningen Amersfoort
Zecc Architecten
Bosvilla Soest
Zecc Architecten
Woonhuis Vriezenveen
Zecc Architecten
Woonlaboratorium
Zecc Architecten
Woonkerk Utrecht
Zecc Architecten
Individueel woonverlangen
Zecc Architecten
Herbestemming watertoren tot woonhuis
Zecc Architecten
Toon alles
Gerelateerde producten
Hekwerk en stalen trappen
Sterk in alles met staal, aluminium, RVS en glas!
Jonkers Bouwmetaal
Inbouwstopcontact OCS EVIA
Design en flexibiliteit in degelijke behuizing
OCS | Office Cabling Systems
Andere Projecten
Kooi stadion - SC Cambuur
Houthandel van Dam
Veilige daktoegang voor Aan de Molenwerf
Gorter Luiken BV
Veilige daktoegang voor nieuw gemeentehuis
Gorter Luiken BV
Ziekenhuiscomplex Rijeka in Susak, Kroatië
ULMA Architectural Solutions
Luxe Vingui Noir houten uitbouw
Houthandel van Dam
BMV Heerlerbaan - Heerlen
Houthandel van Dam
Watervilla's in de haven van Kortenhoef
Houthandel van Dam
Beatrixhof
Houthandel van Dam
Madonna Antwerpen - Akoestiek als smaakmaker
OWA Benelux - Akoestiek & Design
Renovatie zorginstelling dementie en alzheimer
Storax
Ontwikkeling van Circulair Energielandschap
Buro De Haan
ROCKWOOL LM Klima: efficiënter isoleren bij Xplore
ROCKWOOL B.V.
Ga naar het projecten-overzicht
Voor een optimale gebruikservaring plaatst Architectenweb functionele cookies. Wat de verschillende cookies precies doen leggen we uit in een
overzicht
. Cookies van social media kun je optioneel
aanzetten
.
Akkoord
Instellingen
Annuleren
OK
Sluiten
Doorgaan
Inloggen
Maak een gratis persoonlijk account aan
Feedback
Feedback
Wij horen graag jouw feedback. Laat je reactie achter en eventueel jouw e-mail adres.
Reactie
Verstuur