Projecten
Producten
Bedrijven
Vacatures
Agenda
Awards
Podcasts
more_horiz
Videos
Magazine
Thema's
Favorieten
Profiel
Uitloggen
Nieuw
Populair
Toon alles
Architectenweb magazine #14
Architectenweb magazine #13
Publieke gebouwen
Architectenweb magazine #12
Kantoren
Architectenweb magazine #11
Scholen
Architectenweb magazine #10
Zorg
Architectenweb magazine #14
Architectenweb magazine #10
Zorg
Architectenweb magazine #12
Kantoren
Architectenweb magazine #13
Publieke gebouwen
Architectenweb magazine #6
Transformatie en Renovatie
Om direct naar je favorieten te kunnen gaan is het nodig om eerst in te loggen.
Nieuw
Architectenweb Awards 2025
Architectenweb Awards 2024
Architectenweb Awards 2023
Architectenweb Awards 2022
Architectenweb Awards 2021
Architectenweb Awards 2020
Architectenweb Awards 2019
Architectenweb Awards 2018
Om direct naar je favorieten te kunnen gaan is het nodig om eerst in te loggen.
Nieuw
Populair
Favorieten
Toon alles
Vakwerk Architecten
Nominatie voor de prijs voor Architect van het Jaar 2025
Sanne van Manen
Nominatie voor de prijs voor Architect van het Jaar 2025
KSA
Nominatie voor de prijs voor Architect van het Jaar 2025
KRFT
Nominatie voor de prijs voor Architect van het Jaar 2025
Joost Ector
Nominatie voor de prijs voor Architect van het Jaar 2025
Prijsuitreiking Architectenweb Awards 2024
Impressie van een feestelijke avond
Martens, Willems & Humblé Architecten
Nominatie voor de prijs voor Architect van het Jaar 2024
Uitreiking van Architectenweb Awards 2020
Impressie van de prijsuitreiking via Zoom
De Zwarte Hond
Nominatie voor de prijs voor Architect van het Jaar 2024
Avond met De Zwarte Hond
Symposium
Om direct naar je favorieten te kunnen gaan is het nodig om eerst in te loggen.
Nieuw
Populair
Categorieën
Favorieten
Toon alles
Brandpreventie Academy BV
Cay Circulaire Keukens
Circulaire keukens en pantry's
Studio Kirsten Reith
Interieurontwerp
Studio175
Interieuradvies in regio Utrecht
Orange Automatic Doors
Indoorwrap
De specialist in Keukenwrappen
Cay Circulaire Keukens
Circulaire keukens en pantry's
Studio Kirsten Reith
Interieurontwerp
Studio175
Interieuradvies in regio Utrecht
Interior & Co
Orange Automatic Doors
Indoorwrap
De specialist in Keukenwrappen
Architecten
Architectuur
Mobiliteit en infrastructuur
Stedenbouw en landschapsarchitectuur
Leveranciers
Gevels
Daken
Ramen en deuren
Trappen, liften en balustrades
Binnenwanden
Vloeren
Plafonds
Verlichting
Sanitair
Projectinrichting
Installaties
Constructies
Buitenruimte
Software
Adviseurs
Bestekschrijvers
Bouwmanagement
Installatie adviseurs E
Bouwfysica
Calculators
Installatie adviseurs G/W
Bouwkundig tekenwerk
Constructeurs
Lichtadviseurs
Adviseur beveiliging
Juristen
Intermediairs, Payrolling
Aannemers
Overig
Presentatie
Instellingen / onderwijs
Overig
Om direct naar je favorieten te kunnen gaan is het nodig om eerst in te loggen.
Nieuw
Populair
Favorieten
Toon alles
Gesprek met Stephan Sliepenbeek over hoogbouw in Amstel III
Gesprek met Ellen van Bueren over gebiedsontwikkeling en hoogbouw
Gesprek met Ma Yansong over ontwerpen die emotie oproepen
Gesprek met Paul de Ruiter over innovatieve en duurzame hoogbouw
Gesprek met Pi de Bruijn over zijn ontwerpen voor de Tweede Kamer toen en nu
Gesprek met Ellen van Bueren over gebiedsontwikkeling en hoogbouw
Gesprek met Oresti Sarafopoulos over het ontwerpen van een kantoorgebouw met bijna geen installaties
Gesprek met Stijn Steenbakkers over verdichting en hoogbouw in Eindhoven
Gesprek met Pi de Bruijn over zijn ontwerpen voor de Tweede Kamer toen en nu
Gesprek met Paul de Ruiter over innovatieve en duurzame hoogbouw
Om direct naar je favorieten te kunnen gaan is het nodig om eerst in te loggen.
Nieuw
Populair
Categorieën
Favorieten
Toon alles
Renovatieproject Ockenburghstraat
Aluminium kozijnen: de isolerende oplossing
Den Hartogh Basecamp
Houten huis in de polder - WaxedWood Gold Color
Werkplekken met verhoogd risico - Laboratoria
ASML Gebouw 3
Prinsenpark, Rotterdam
IVY, Amsterdam
IKC De Brug
Houthavens, Amsterdam
Architectuur
Woningbouw
Zorg
Hotels
Restaurants en café’s
Winkels
Sportgebouwen
Culturele gebouwen
Overheidsgebouwen
Scholen
Kantoren
Bedrijfsgebouwen
Paviljoens en kunst
Overig
Mobiliteit en infrastructuur
Trein- en metrostations
Luchthavens
Busstations
Parkeergarages
Fietsparkeren
Wegen
Bruggen
Water
Energie
Tankstations en laadstations
Waterzuivering en afvalverwerking
Overig
Stedenbouw en landschapsarchitectuur
Regionale visies
Gebiedsvisies
Plannen stedelijk weefsel
Amusementsparken en dierentuinen
Lichtontwerpen
Openbare ruimte
Pleinen
Parken
Tuinen
Speelplaatsen
Uitkijktorens
Overige (bijv. begraafplaatsen)
Om direct naar je favorieten te kunnen gaan is het nodig om eerst in te loggen.
Nieuw
Populair
Categorieën
Favorieten
Toon alles
Flux-totaalaanbod vraaggestuurde Renson WTW-ventilatie
Compacte wand- en plafondmontage voor alle debieten
Wie denkt er aan slopen tijdens bouwen?
Kies voor de toekomst, kies voor circulair isoleren!
StoTherm Wood: cementvrij gevelsysteem met houtvezelisolatie
Biobased gevelisolatie met natuurlijke prestaties
Lambda: sleutel tot betere isolatie en energie-efficiëntie
Rockfit en Rockvent: betere lambda-waarde, beter isolerend
SlimFix RenoPro
Waterkerende na-isolatie zonder koudebruggen
Digital Prints
Meer mogelijkheden in gekleurd staal
Element+ H-I
Hout - Aluminium Elementgevel
Vierkante vluchtroutearmaturen voor grote ruimtes
Zichtbare veiligheid van alle kanten
GROHE Cubeo: kranen voor elke badkamer
Stijlvol en duurzaam design voor jarenlang plezier
Schüco Zonweringsysteem Integralmaster in FWS
Bescherming tegen zon, verblinding en privacy – verborgen en volledig geïntegreerd
Gevels
Gevelbekleding
Vliesgevels
Zonwering buiten
Isolatie
Gevelconstructies
Signing
Overig
Daken
Dakafwerkingen
Dakisolatie
Dakconstructies
Dakranden, dakgoten en HWA's
Dakramen
Lichtkoepels
Lichtstraten
Schoorstenen
Overig
Dakluiken
Ramen en deuren
Raam- en deursystemen / kozijnen
Vliesgevels
Hang- en sluitwerk
Beveiliging en luiken
Dorpels en vensterbanken
Lateien
Roosters
Glas
Dakramen
Dakkoepels
Lichtstraten
Zonwering buiten
Zonwering binnen
Buitendeuren
Binnendeuren
Postvakken en brievenbussen
Overig
Dakluiken
Trappen, liften en balustrades
Trappen
Roltrappen
Liften
Balustrades en hekwerken
Galerijen
Binnenwanden
Binnenwanden
Wandafwerking
Vloeren
Constructieve vloeren
Verhoogde vloeren
Vloerafwerkingen
Overig
Plafonds
Tegels
Lineair
Grill
Open en roosters
Naadloos
Eilanden en baffles
Plafondafwerkingen
Ophangsystemen
Overig
Klimaatplafonds
Verlichting
Binnenverlichting
Buitenverlichting
Sanitair
Kranen en douchesets
Wastafels
Douchewanden en douchebakken
Baden
Waterclosets
Accessoires
Overig
Projectinrichting
Stoelen
Banken
Tafels
Kasten
Balies
Vrijstaande wanden
Keukens
Accessoires
Overig
Cabines
Interieurbeplanting
Stoffering
Installaties
Verwarming, koeling en ventilatie
Elektrotechnische installaties
Schakelmateriaal
Domotica
Deurcommunicatie
Beveiliging
Liften
Onderhoudsinstallaties
Overig
Brandbeveiliging
Constructies
Draagconstructies
Funderingen en kelders
Overig
Brandbeveiliging
Buitenruimte
Bestratingen en verhardingen
Afwateringen
Terreinafscheidingen en geluidsschermen
Buitenmeubilair
Fietsparkeren
Terrassen
Terrasoverkappingen
Bruggen
Accessoires
Overig
Beplanting
Sport- en speeltoestellen
Software
Tekenen 2D
Modelleren 3D / BIM
Visualisatie / rendering
Parametrisch ontwerpen
Bouwfysica
Draagconstructie
Overig
Virtual Reality
Cloudoplossingen
Om direct naar je favorieten te kunnen gaan is het nodig om eerst in te loggen.
Nieuw
Populair
Favorieten
Toon alles
Zomerwandelingen Nieuwe Stad op Zondag 2025
Amsterdam
Prefab beurs - 7 t/m 9 oktober 2025
Brabanthallen 's-Hertogenbosch
Boekpresentatie en panelgesprek met Floor Milikows
Prins Hendrikkade 600, 1011 VX Amsterdam
Architects Table ’25: Lunch & Inspiratie in HAUT Amsterdam
ATAG LIVE – HAUT gebouw, Spaklerweg 10F, 1096 BA Amsterdam (tegenover metrostation Spaklerweg)
Inspiratiedag @ Sempergreen – Gevelgroen
Defensieweg 1, 3984 LR Odijk
Architects Table ’25: Lunch & Inspiratie in HAUT Amsterdam
ATAG LIVE – HAUT gebouw, Spaklerweg 10F, 1096 BA Amsterdam (tegenover metrostation Spaklerweg)
Ontdek het seminarieprogramma van Architect@Work Amsterdam
De Kromhouthal, Gedempt Hamerkanaal 231, Amsterdam
LIAG over duurzaamheid centraal in project
Online
1.Lectures HouseEurope! Renovate, don’t speculate
Pakhuis de Zwijger
Zomerwandelingen Nieuwe Stad op Zondag 2025
Amsterdam
Om direct naar je favorieten te kunnen gaan is het nodig om eerst in te loggen.
Nieuw
Toon alles
Design
Duurzaamheid
Gevel
Infrastructuur
Interieur
Kantoren
Leisure
Openbare ruimte
Publieke gebouwen
Scholen
Transformatie en Renovatie
Woningbouw
Zorg
Om direct naar je favorieten te kunnen gaan is het nodig om eerst in te loggen.
Nieuw
Populair
Toon alles
DAT zoekt een BIM Modelleur (Revit)
stagiair bouwkunde Heerenveen
Meewerkend Voorman
Medior/Senior Meubelmaker
Bouwkundig projectleider (per direct)
Revit Modelleur / bouwkundige (per direct)
Junior Architect gezocht!
wUrck zoekt junior Architect
Architect
Project Architect
Junior Ontwerper
Studio Nauta zoekt projectleider
Om direct naar je favorieten te kunnen gaan is het nodig om eerst in te loggen.
Producten
Werkspoorfabriek
Copyright: Stijnstijl Fotografie
Werkspoorfabriek - Respace circulair interieur Sustainer Homes
Copyright: Stijnstijl Fotografie
Werkspoorfabriek - ontmoetingsruimte
Copyright: Stijnstijl Fotografie
Werkspoorfabriek
Copyright: Stijnstijl Fotografie
Werkspoorfabriek - Brouwerij De Leckere
Copyright: Stijnstijl Fotografie
Werkspoorfabriek - eventspace
Copyright: Stijnstijl Fotografie
Werkspoorfabriek - sociale hart
Copyright: Stijnstijl Fotografie
Studio Baars & Bloemhof
Copyright: Wouter van der Sar
Werkspoorfabriek - Baars & Bloemhof
Copyright: Wouter van der Sar
Werkspoorfabriek - exterieur
Copyright: Wouter van der Sar
Omgeving Werkspoorfabriek en Werkspoorkathedraal
Copyright: Zecc Architecten
Werkspoorfabriek - maquette en langsdoorsnede
Copyright: Zecc Architecten
Werkspoorfabriek - dwarsdoorsneden
Copyright: Zecc Architecten
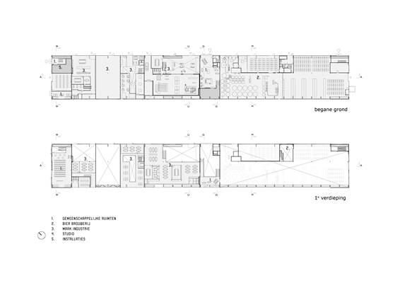
Werkspoorfabriek - plattegrond begane grond en eerste verdieping
Copyright: Zecc Architecten
Werkspoorfabriek - plattegrond tweede en derde verdieping
Copyright: Zecc Architecten
Producttags
AAN
UIT
Werkspoorfabriek
30 juni 2020
1
0
0
0
In het Werkspoorkwartier van Utrecht bevindt zich een immense industriële loods van 175 meter lang. De fabriekshal is samen met een aantal andere gebouwen onderdeel van het oude Werkspoor. Hier werden grootschalige staalconstructies verwerkt voor weg- en waterbouw. De meeste gebouwen zijn inmiddels gesloopt, maar samen met de Werkspoorkathedraal vormt de Werkspoorfabriek de aanjager van het gebied en staat het symbool voor de circulaire gebiedsontwikkeling die hier de komende jaren plaatsvindt.
Flexibiliteit en ruimte
De lange industriële loods van de Werkspoorfabriek is omgevormd en geactiveerd tot ‘de’ ontmoetingsplek voor creatief Utrecht. Het gebouw huisvest nu een actieve community van zo’n 40 bedrijven in de creatieve maakindustrie van bierbrouwerij De Leckere tot 3D-printing, koffiebar Pluck, een eventspace en het Museum van Zuilen.
In de vrije industriële ruimte van 175x25x15 meter is een nieuwe structuur aangebracht, waarbinnen deze bedrijven, van verschillende omvang en activiteit, zich hebben gevestigd. Behoud van het industriële karakter, doorzichten en de lengtewerking vormde het uitgangspunt bij het inpassen van nieuwe functies. Plaatselijk is veel oppervlakte toegevoegd om op andere plekken juist zoveel mogelijk ruimtelijkheid te behouden. Er zijn spannende nieuwe ruimten gemaakt. Van grote entreeruimten tot kleine eenheden, steeds wisselend qua beleving en uitzicht. Het geheel vormt een inspirerende ontdekkingsreis voor gebruikers en bezoekers.
In de gevels zijn diverse nieuwe openingen gemaakt om het gebouw te ontsluiten, van extra daglicht te voorzien en te activeren. Grotere bedrijven zijn op de begane grond gevestigd en hebben een eigen entree gekregen. De hoofdentree is dubbelhoog en geeft een heldere hiërarchie in de gevel. Deze entree biedt toegang aan de kleinere bedrijven op verdiepingen. Via een enorme hal met grote stalen trappen bereik je de flexibel indeelbare vloervelden op de verdieping.
Duurzaam en circulair
De open vloer op de 2e en 3e verdieping is ingevuld met flexibele units van hout en glas. Samen met Sustainer Homes heeft Zecc een configuratie bedacht van een modulair bouwsysteem binnen het bestaande ritme van de lange loods. Het houten bouwsysteem Respace van Sustainer Homes is flexibel en kan eenvoudig worden aangepast of herplaatst. Het systeem is 100% circulair en wordt zonder schroef- en/of lijmverbindingen in elkaar gezet. Het geheel vormt een ruimtelijke wereld met bruggetjes, trappen en doorzichten. Het ritme van de bestaande stalen spanten vormde het uitgangspunt, maar daar is een extra dimensie aan toegevoegd. Met de ingrepen in de gevels en de toegevoegde nieuwe structuur van open vloeren kan worden ingespeeld op toekomstig gebruik.
Verbinden en ontmoeten
Het doel van de renovatie van de werkspoorfabriek was dat het gebouw van grote invloed zou zijn op het activeren van het gebied en de mensen die hier samen werken, denken, leren en maken.
Opdrachtgever Bob Scherrenberg, Overvecht Vastgoed over het project:
“Als Utrechts familiebedrijf hebben wij ons voor lange tijd verbonden aan Werkspoorkwartier. We dragen bij aan de transformatie van het gebied door de herontwikkeling van industriële panden waarin werken, leren, experimenteren en ontmoeten samenkomen. We geloven in de kracht van samenwerking en kruisbestuiving. Dit is terug te zien in het ontwerp. Ontmoeting wordt gefaciliteerd door ruim opgezette verkeersruimtes. Een eventspace en skybox bieden ruimte voor bijeenkomsten, waar ook externen welkom zijn. In de hoofdentree van het gebouw zit koffiebar Pluck die voor iedereen toegankelijk is. Om de relatie met publiek, de historie en de omliggende wijk te versterken is het Museum van Zuilen in de Werkspoorfabriek gehuisvest. Exploitant De Stadstuin is de drijvende kracht in het faciliteren van ontmoeting tussen alle huurders en externe bezoekers. Naast verhuur en beheer vervullen zij de rol van verbinder. Door gerichte programmering voor de huurders en bredere events zorgen zij voor de “software” van een stimulerende werkomgeving.
De synergie tussen ontwerp en programmering is essentieel. Dat maakt ons een uitdagende opdrachtgever die adaptief vermogen eist in het ontwerpproces. Zecc is er goed in geslaagd ruimte te creëren voor wensen en actieve inbreng van toekomstige gebruikers. Waar er in eerste instantie sprake was van een bovenetage met basic casco units, is gaandeweg in het proces gekozen voor de realisatie van een circulair box in box principe, ontworpen en gebouwd door Sustainer Homes. Wunderhund tekende voor de inrichting van de entree en de gemeenschappelijke ruimtes en Flux voor de inrichting van de buitenruimte. Ruimhartige samenwerking heeft geresulteerd in een ruimhartig gebouw waar huurders en bezoekers zich welkom voelen. Dit leidt nu al tot prachtige dwarsverbanden en tot een voelbare energie!”
Stel jezelf kort voor! Dan weet het betreffende bedrijf wie hun model gedownload heeft.
Wil je niet bij elke download jouw gegevens in hoeven voeren?
Klik dan hier om in te loggen
.
Heb je nog geen account?
Maak dan hier een gratis account aan
.
Voornaam
Achternaam
E-mailadres
Downloaden
Wanneer je modellen downloadt op Architectenweb.nl worden relevante gegevens van jou – zoals jouw naam en e-mailadres – met het betreffende bedrijf gedeeld. Meer hierover lees je in ons
privacybeleid
.
Locatie
Trefwoorden
monumentaal
utrecht
publiek
industrieel erfgoed
interieur
modulair
kantoor
werkspoorkwartier
circulair
respace
zecc architecten
transformatie
duurzaam
erfgoed
werkspoorfabriek
bedrijfsverzamelgebouw
Architectenweb Awards 2020
Kantoorgebouw van het Jaar
Nominatie
Bekijk alle genomineerden
Zecc Architecten
Neem contact op
Projectdata
Staat van realisatie
Voltooid
Start ontwerpproces
2017
Start bouw
2018
Oplevering
2019
Ingebruikname
2019
Plaats
Utrecht
Bruto m
2
9200
Netto m
2
9000
m
3
61000
Meewerkende partijen
Architect
Zecc Architecten
Interieurarchitect
Zecc Architecten
,
Sustainer Homes
Projectarchitect
Bart Kellerhuis
Ontwerpteam
René de Korte, Jeroen den Hertog, Hai Le, Niels Hartsuiker, Remco van den Broek, Roy van Maarseveen
Opdrachtgever
Overvecht Vastgoed
Aannemer
Van Kessel Bouw
Constructeur
Van Roekel & van Roekel
Adviseurs installaties E & W
Baas B.V, H2O Installatietechniek
Fotograaf
Stijnstijl fotografie, Wouter van der Sar Photography
Interieurontwerper
Baars & Bloemhoff
, Wunderhund
Landschapsarchitect
Flux landscape architecture
Projectmanagement
Kijk op Bouwen
Leveranciers
Overig
Wouter van der Sar Photography,
Sustainer Homes
, Stijnstijl fotografie
Neem contact op met
Zecc Architecten
Je bent momenteel niet ingelogd. Hierdoor is het alleen mogelijk om meer informatie per e-mail op te vragen. Wil je liever gebeld worden of documentatie per post ontvangen?
Klik dan hier om in te loggen
.
Heb je nog geen account?
Maak dan hier een gratis account aan
.
Voornaam
Achternaam
E-mailadres
Opmerkingen
Bij iedere aanvraag worden relevante gegevens van jou gedeeld met het betreffende bedrijf. Meer hierover lees je in ons
privacybeleid
.
Ja, denk met me mee rond de
materialisering van mijn project
Meer projecten van Zecc Architecten
Zuidkade Scheveningen
Zecc Architecten
Kruitfabriek Muiden
Zecc Architecten
De Onderdelenloods
Zecc Architecten
Solo Cartesiusdriehoek
Zecc Architecten
Watertoren Utrecht
Zecc Architecten
Gemeentehuis Renswoude
Zecc Architecten
Appartementengebouw BU31 Utrecht
Zecc Architecten
Het Eiland Meerstad
Zecc Architecten
Tijdelijke huisvesting Tweede Kamer
Zecc Architecten
Woongebouw Noorderhaven Kade Noord
Zecc Architecten
Parkeergebouw Berlijnplein Leidsche Rijn Centrum
Zecc Architecten
Rijnvliet Midden in het groen
Zecc Architecten
De Ark zorgappartementen
Zecc Architecten
Steel Craft House
Zecc Architecten
De Koningin op het Kraanbolwerk
Zecc Architecten
Bibliotheek Neude
Zecc Architecten
Recreatiewoning regio Utrecht
Zecc Architecten
KRO-NCRV
Zecc Architecten
Spoorhuis
Zecc Architecten
Drents Archief
Zecc Architecten
Gymzaalwoning
Zecc Architecten
Zwarte Parel
Zecc Architecten
Energieneutraal Monument
Zecc Architecten
Studio Heldergroen
Zecc Architecten
Studiowoningen
Zecc Architecten
Kadewoningen
Zecc Architecten
Woonkerk XL
Zecc Architecten
Waterwoningen
Zecc Architecten
Waterwoningen Amersfoort
Zecc Architecten
Bosvilla Soest
Zecc Architecten
Woonhuis Vriezenveen
Zecc Architecten
Woonlaboratorium
Zecc Architecten
Woonkerk Utrecht
Zecc Architecten
Individueel woonverlangen
Zecc Architecten
Herbestemming watertoren tot woonhuis
Zecc Architecten
Zuidkade Scheveningen
Zecc Architecten
Kruitfabriek Muiden
Zecc Architecten
De Onderdelenloods
Zecc Architecten
Solo Cartesiusdriehoek
Zecc Architecten
Watertoren Utrecht
Zecc Architecten
Gemeentehuis Renswoude
Zecc Architecten
Appartementengebouw BU31 Utrecht
Zecc Architecten
Het Eiland Meerstad
Zecc Architecten
Tijdelijke huisvesting Tweede Kamer
Zecc Architecten
Woongebouw Noorderhaven Kade Noord
Zecc Architecten
Parkeergebouw Berlijnplein Leidsche Rijn Centrum
Zecc Architecten
Rijnvliet Midden in het groen
Zecc Architecten
De Ark zorgappartementen
Zecc Architecten
Steel Craft House
Zecc Architecten
De Koningin op het Kraanbolwerk
Zecc Architecten
Bibliotheek Neude
Zecc Architecten
Recreatiewoning regio Utrecht
Zecc Architecten
KRO-NCRV
Zecc Architecten
Spoorhuis
Zecc Architecten
Drents Archief
Zecc Architecten
Gymzaalwoning
Zecc Architecten
Zwarte Parel
Zecc Architecten
Energieneutraal Monument
Zecc Architecten
Studio Heldergroen
Zecc Architecten
Studiowoningen
Zecc Architecten
Kadewoningen
Zecc Architecten
Woonkerk XL
Zecc Architecten
Waterwoningen
Zecc Architecten
Waterwoningen Amersfoort
Zecc Architecten
Bosvilla Soest
Zecc Architecten
Woonhuis Vriezenveen
Zecc Architecten
Woonlaboratorium
Zecc Architecten
Woonkerk Utrecht
Zecc Architecten
Individueel woonverlangen
Zecc Architecten
Herbestemming watertoren tot woonhuis
Zecc Architecten
Toon alles
Andere Projecten
Renovatieproject Ockenburghstraat
Caparol
Aluminium kozijnen: de isolerende oplossing
Aliplast Aluminium Systems
Den Hartogh Basecamp
Schüco Nederland BV
FÆnslet
VELUX Commercial Benelux B.V.
Houten huis in de polder - WaxedWood Gold Color
Foreco Houtproducten
Werkplekken met verhoogd risico - Laboratoria
INOTEC Noodverlichting B.V.
Exclusieve wooneenheden
SAPA
Duurzaam afvalmanagement in nieuwbouw van Alrijne
Stansz
Woningen op BEFU terrein Utrecht
SAB-profiel bv
Berkel Noordersingel
Schippers Architecten
Rembrandtstraat
Martens Willems Architecten
Ontdek het bruisende kantoor van Roku in Amsterdam
Tétris Design & Build
Ga naar het projecten-overzicht
Voor een optimale gebruikservaring plaatst Architectenweb functionele cookies. Wat de verschillende cookies precies doen leggen we uit in een
overzicht
. Cookies van social media kun je optioneel
aanzetten
.
Akkoord
Instellingen
Annuleren
OK
Sluiten
Doorgaan
Inloggen
Maak een gratis persoonlijk account aan
Feedback
Feedback
Wij horen graag jouw feedback. Laat je reactie achter en eventueel jouw e-mail adres.
Reactie
Verstuur