Projecten
Producten
Bedrijven
Vacatures
Agenda
Awards
Podcasts
more_horiz
Videos
Magazine
Thema's
Favorieten
Profiel
Uitloggen
Abonneer je nu op onze nieuwsbrieven!
Abonneren
Nee, bedankt
Ja, denk met me mee rond de
materialisering van mijn project
Producten
Rijnvliet Midden
Copyright: Stijn Poelstra
Rijnvliet Midden
Copyright: Stijn Poelstra
Rijnvliet Midden
Copyright: Stijn Poelstra
Rijnvliet Midden
Copyright: Stijn Poelstra
Rijnvliet Midden
Copyright: Stijn Poelstra
Rijnvliet Midden
Copyright: Stijn Poelstra
Rijnvliet Midden
Copyright: Stijn Poelstra
Rijnvliet Midden - villa
Copyright: Stijn Poelstra
Rijnvliet Midden
Copyright: Stijn Poelstra
Rijnvliet Midden
Copyright: Stijn Poelstra
Rijnvliet Midden
Copyright: Stijn Poelstra
Rijnvliet Midden - Doorsnede
Copyright: Zecc Architecten
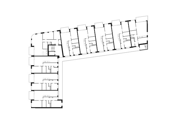
Rijnvliet Midden - Plattegrond derde verdieping
Copyright: Zecc Architecten
Rijnvliet Midden - situatie
Copyright: Zecc Architecten
Producttags
AAN
UIT
Rijnvliet Midden in het groen
29 juni 2021
1
0
0
0
Aan de groene rand van de Leidsche Rijn ligt het nieuwe tuindorp Rijnvliet. In samenwerking met De Zwarte Hond (verantwoordelijk voor het stedenbouwkundig plan en supervisie van de architectuur) hebben Bedaux de Brouwer Architecten, Hans Been Architecten en Zecc Architecten deze groene Utrechtse wijk vormgegeven. Zecc heeft in opdracht van Van Wanrooij Bouw & Ontwikkeling in Rijnvliet 33 huurappartementen en 6 vrijstaande woningen als witte ‘specials’ ontworpen. Aan de eetbare wijk is invulling gegeven door landschapsarchitect Felixx.
De bakens van Rijnvliet!
De specials liggen als ‘bakens’ op prominente locaties in de wijk en vallen op vanwege de bijzondere architectuur. Ze staan op de zichtassen van verschillende toegangswegen en manifesteren ze zich als krachtige solide hoekstenen binnen het stedelijk ensemble. De zes karakteristieke vrijstaande villa’s en het appartementengebouw, met afgeronde hoek en groot gebogen venster, fungeren zo als belangrijke herkenningspunten in het gebied.
Een fantastische plek in het groen
Het appartementengebouw staat in de landschappelijke setting op een solide plint waardoor het groen zich tot aan de gevel kan strekken. Op deze plint bevinden zich hoge woonruimten op bel-etage niveau. De doorzonappartementen op de verdiepingen hebben halfverdiepte balkons en een panoramisch uitzicht op de groene omgeving. De lichte baksteen maakt het appartementengebouw een frisse verschijning in de groene wijk. De hoek van het gebouw kenmerkt zich door het ronde metselwerk en panoramisch ronde glazen hoekraam. De villa’s zijn vormgegeven met twee rechthoekige volumes, die in elkaar grijpen. Ze hebben een alzijdig karakter waardoor ze de hoeken in de wijk verbijzonderen, tegelijk is hierdoor vanuit de woning het groen en water in de omgeving goed te ervaren.
Het kleur- en materiaalgebruik van de woningen is op elkaar afgestemd. Het appartementengebouw heeft een lichte baksteenkleur gekregen die terugkomt in de villa’s. Het hout dat bij de villa’s is toegepast naast de gevelopeningen geeft een warme natuurlijke uitstraling. Eén villa is afwijkend vormgegeven en springt daardoor het meest in het oog. Deze woning heeft op de tweede verdieping een groot terras op het zuidwesten en is gerealiseerd in een bruin/aubergine kleurige baksteen.
Duurzaamheid
Rijnvliet is groen en klimaatbestendig, de wijk kenmerkt zich door het water en groen als stedelijk voedselbos. Het ontwerp van het appartementengebouw is toekomstbestendig ontworpen met hoge en lichte appartementen die een sterke relatie aan gaan met de groene omgeving. Naast dat het gebouw energie opwekt is het gebouwd met robuuste materialen die onderhoudsarm zijn en natuurlijk verouderen.
Stel jezelf kort voor! Dan weet het betreffende bedrijf wie hun model gedownload heeft.
Wil je niet bij elke download jouw gegevens in hoeven voeren?
Klik dan hier om in te loggen
.
Heb je nog geen account?
Maak dan hier een gratis account aan
.
Voornaam
Achternaam
E-mailadres
Downloaden
Wanneer je modellen downloadt op Architectenweb.nl worden relevante gegevens van jou – zoals jouw naam en e-mailadres – met het betreffende bedrijf gedeeld. Meer hierover lees je in ons
privacybeleid
.
Locatie
Trefwoorden
villa's
utrecht
huurwoningen
appartementen
rijnvliet
Zecc Architecten
Neem contact op
Projectdata
Staat van realisatie
Voltooid
Start ontwerpproces
2018
Start bouw
2019
Oplevering
2021
Ingebruikname
2021
Plaats
Utrecht
Bruto m
2
5600
Meewerkende partijen
Architect
Zecc Architecten
Projectarchitect
Marnix van der Meer, Jos van der Linde
Ontwerpteam
Hai Le, Redmer Weijer, Koen Pörtzgen, René de Korte, Jordi Rondeel, Remco van den Broek
Opdrachtgever
Van Wanrooij Bouw & Ontwikkeling
Aannemer
Bouwbedrijf van Stiphout
Constructeur
Bekendam Adviesbureau voor bouwconstructies
Fotograaf
Stijn Poelstra
Stedenbouwkundige
De Zwarte Hond
Landschapsarchitect
Felixx Landscape Architects & Planners
Leveranciers
Overig
Stijn Poelstra
Neem contact op met
Zecc Architecten
Je bent momenteel niet ingelogd. Hierdoor is het alleen mogelijk om meer informatie per e-mail op te vragen. Wil je liever gebeld worden of documentatie per post ontvangen?
Klik dan hier om in te loggen
.
Heb je nog geen account?
Maak dan hier een gratis account aan
.
Voornaam
Achternaam
E-mailadres
Opmerkingen
Bij iedere aanvraag worden relevante gegevens van jou gedeeld met het betreffende bedrijf. Meer hierover lees je in ons
privacybeleid
.
Ja, denk met me mee rond de
materialisering van mijn project
Meer projecten van Zecc Architecten
Zuidkade Scheveningen
Zecc Architecten
Kruitfabriek Muiden
Zecc Architecten
De Onderdelenloods
Zecc Architecten
Solo Cartesiusdriehoek
Zecc Architecten
Watertoren Utrecht
Zecc Architecten
Gemeentehuis Renswoude
Zecc Architecten
Appartementengebouw BU31 Utrecht
Zecc Architecten
Het Eiland Meerstad
Zecc Architecten
Tijdelijke huisvesting Tweede Kamer
Zecc Architecten
Woongebouw Noorderhaven Kade Noord
Zecc Architecten
Parkeergebouw Berlijnplein Leidsche Rijn Centrum
Zecc Architecten
De Ark zorgappartementen
Zecc Architecten
Steel Craft House
Zecc Architecten
De Koningin op het Kraanbolwerk
Zecc Architecten
Werkspoorfabriek
Zecc Architecten
Bibliotheek Neude
Zecc Architecten
Recreatiewoning regio Utrecht
Zecc Architecten
KRO-NCRV
Zecc Architecten
Spoorhuis
Zecc Architecten
Drents Archief
Zecc Architecten
Gymzaalwoning
Zecc Architecten
Zwarte Parel
Zecc Architecten
Energieneutraal Monument
Zecc Architecten
Studio Heldergroen
Zecc Architecten
Studiowoningen
Zecc Architecten
Kadewoningen
Zecc Architecten
Woonkerk XL
Zecc Architecten
Waterwoningen
Zecc Architecten
Waterwoningen Amersfoort
Zecc Architecten
Bosvilla Soest
Zecc Architecten
Woonhuis Vriezenveen
Zecc Architecten
Woonlaboratorium
Zecc Architecten
Woonkerk Utrecht
Zecc Architecten
Individueel woonverlangen
Zecc Architecten
Herbestemming watertoren tot woonhuis
Zecc Architecten
Zuidkade Scheveningen
Zecc Architecten
Kruitfabriek Muiden
Zecc Architecten
De Onderdelenloods
Zecc Architecten
Solo Cartesiusdriehoek
Zecc Architecten
Watertoren Utrecht
Zecc Architecten
Gemeentehuis Renswoude
Zecc Architecten
Appartementengebouw BU31 Utrecht
Zecc Architecten
Het Eiland Meerstad
Zecc Architecten
Tijdelijke huisvesting Tweede Kamer
Zecc Architecten
Woongebouw Noorderhaven Kade Noord
Zecc Architecten
Parkeergebouw Berlijnplein Leidsche Rijn Centrum
Zecc Architecten
De Ark zorgappartementen
Zecc Architecten
Steel Craft House
Zecc Architecten
De Koningin op het Kraanbolwerk
Zecc Architecten
Werkspoorfabriek
Zecc Architecten
Bibliotheek Neude
Zecc Architecten
Recreatiewoning regio Utrecht
Zecc Architecten
KRO-NCRV
Zecc Architecten
Spoorhuis
Zecc Architecten
Drents Archief
Zecc Architecten
Gymzaalwoning
Zecc Architecten
Zwarte Parel
Zecc Architecten
Energieneutraal Monument
Zecc Architecten
Studio Heldergroen
Zecc Architecten
Studiowoningen
Zecc Architecten
Kadewoningen
Zecc Architecten
Woonkerk XL
Zecc Architecten
Waterwoningen
Zecc Architecten
Waterwoningen Amersfoort
Zecc Architecten
Bosvilla Soest
Zecc Architecten
Woonhuis Vriezenveen
Zecc Architecten
Woonlaboratorium
Zecc Architecten
Woonkerk Utrecht
Zecc Architecten
Individueel woonverlangen
Zecc Architecten
Herbestemming watertoren tot woonhuis
Zecc Architecten
Toon alles
Andere Projecten
Campus Sportief Besteed Groep — Wubben.Chan
Wubben.Chan architecten
BDO kantoor Breda
ULMA Architectural Solutions
Toegangscontrole op een dynamisch terrein
Heras
Biobased bouwen naast Natura 2000-gebied
KUBUS | Specialist in Archicad
5Tracks - inspirerende atriums met JUNG
Jung | Hateha B.V.
Totaalrealisatie nieuwe kantoorlocatie A. Vogel
Intermontage B.V.
Sweco Wonderwoods — Duurzame kantoorinrichting
Hal2
Gare Maritime, Brussel
WEBO
De transformatie van de Lintveldebrink
Grohe Nederland B.V.
Sweco WTC Den Haag — Duurzame kantoorinrichting
Hal2
Uitbreiding Hotel Martin's Klooster, Leuven
OWA Benelux - Akoestiek & Design
RVS plinten kantoor Moore DRV
Storax
Ga naar het projecten-overzicht
Voor een optimale gebruikservaring plaatst Architectenweb functionele cookies. Wat de verschillende cookies precies doen leggen we uit in een
overzicht
. Cookies van social media kun je optioneel
aanzetten
.
Akkoord
Instellingen
Annuleren
OK
Sluiten
Doorgaan
Inloggen
Maak een gratis persoonlijk account aan
Feedback
Feedback
Wij horen graag jouw feedback. Laat je reactie achter en eventueel jouw e-mail adres.
Reactie
Verstuur