Projecten
Producten
Bedrijven
Vacatures
Agenda
Awards
Podcasts
more_horiz
Videos
Magazine
Thema's
Favorieten
Profiel
Uitloggen
Abonneer je nu op onze nieuwsbrieven!
Abonneren
Nee, bedankt
Ja, denk met me mee rond de
materialisering van mijn project
Producten
De Ark aan de Hoveniersweg Tiel
Copyright: Stijn Poelstra
De Ark oude situatie
Copyright: Zecc Architecten
De Ark - behouden voorgevel aan de Hoveniersweg
Copyright: Stijn Poelstra
De Ark - constructie ondersteuning voorgevel
Copyright: Stijn Poelstra
De Ark – achtergevel
Copyright: Stijn Poelstra
De Ark - detail achtergevel
Copyright: Stijn Poelstra
De Ark - detail balkon
Copyright: Stijn Poelstra
De Ark - details balkons
Copyright: Stijn Poelstra
De Ark - woning achterzijde tweede verdieping
Copyright: Stijn Poelstra
De Ark - detail metselwerk
Copyright: Stijn Poelstra
De Ark – detail
Copyright: Stijn Poelstra
De Ark - woning met erker voorzijde tweede verdieping
Copyright: Stijn Poelstra
De Ark - woning voorzijde tweede verdieping
Copyright: Stijn Poelstra
De Ark - rolstoeltoegankelijke entree
Copyright: Stijn Poelstra
De Ark - situatie oud en nieuw
Copyright: Zecc Architecten
De Ark - plattegrond souterrain
Copyright: Zecc Architecten
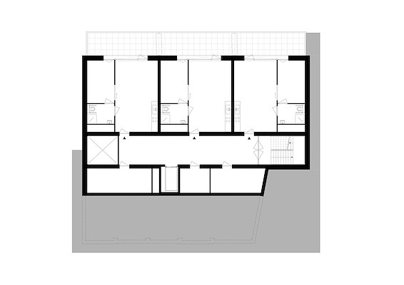
De Ark - plattegrond begane grond
Copyright: Zecc Architecten
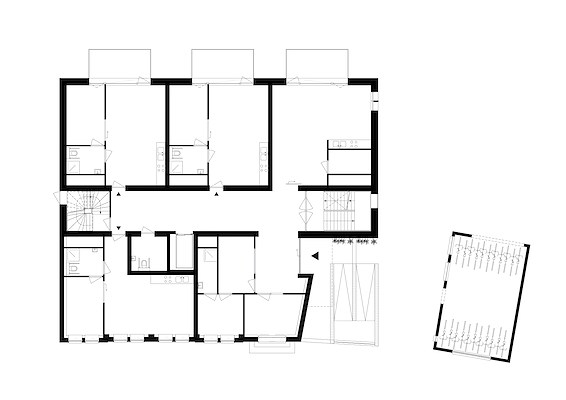
De Ark - plattegrond tweede verdieping
Copyright: Zecc Architecten
De Ark – doorsnede
Copyright: Zecc Architecten
Producttags
AAN
UIT
De Ark zorgappartementen
29 juni 2021
1
0
0
0
Achter de gevel van het monumentale pand De Ark heeft Zecc 16 woonzorgeenheden en ondersteunende ruimten voor bewoners van zorginstelling Prezzent ontworpen. Het karakteristieke pand van voormalig Jongenspatronaat uit 1916 in het centrum van Tiel verkeerde in vervallen staat en kwam in 2008 in handen van woningcorporatie KleurrijkWonen. Na een lange periode van leegstand en verval werd in 2018 gestart met het ontwerp. De ambitie was hoog: behoud van monumentale waarden, hoogwaardige kwaliteit van zorg en een uiterst duurzame ontwikkeling.
Om het plan haalbaar te krijgen zijn 16 wooneenheden gerealiseerd achter de monumentale gevel. Van oorsprong bestond het gebouw uit twee hoge bouwlagen en daarbinnen zijn aan de kant van de voorgevel nu drie bouwlagen gemaakt. Aan de tuinzijde zijn door het hoogteverschil naar de gracht vier bouwlagen gerealiseerd.
KleurrijkWonen kocht het pand van de gemeente met als afspraak het gebouw te behouden en te transformeren naar wonen. In samenwerking met zorginstelling Prezzent wilden zij hier een appartementencomplex realiseren voor bewoners met een verstandelijke beperking. Behalve appartementen zijn ook een gemeenschappelijke ruimte en een ruimte voor medewerkers van Prezzent opgenomen en is het complex volledig rolstoeltoegankelijk gemaakt.
Inpassing van het nieuwe programma vroeg om een rigoureuze ingreep met respect voor de karakteristieke gevel van De Ark. De voorgevel is volledig gerestaureerd waarbij in de tijd verloren details, zoals de raamindelingen, hoge erkers en gedetailleerde metselwerk daklijst, in de oorspronkelijke staat zijn teruggebracht. Daarachter is de nieuwbouw gerealiseerd die zich architectonisch verhoudt tot de karakteristieke voorgevel. Het moderne en sobere bouwvolume onderscheidt zich van de oudbouw door toepassing van een lichte baksteen maar vindt aansluiting door details die refereren naar de kenmerken van de historische gevel. Ter plaatse van de nieuwe entree aan de zijkant van het gebouw vervlechten oud en nieuw letterlijk in elkaar. Aan de zijde van de gracht toont zich de hedendaagse uitstraling van het gebouw. Een extra uitdaging was om het pand te laten voldoen aan de eisen die worden gesteld met betrekking tot de zorgfunctie.
Het perceel is voor ongeveer de helft bebouwd. Achter het gebouw ligt een grote tuin die door de bewoners zelf zal worden ingevuld. De cliënten van Prezzent waren bij het gehele transformatieproces betrokken. Ze dachten mee over de inrichting van het appartementengebouw en hielpen bij de start van de sloop. Ook de omwonenden werden in dit proces betrokken door middel van informatiebijeenkomsten.
Behalve het hoofdgebouw omvat het project ook een naastgelegen voormalige woning die qua schaal en typologie onopvallend binnen het straatbeeld past. Net als het patronaatsgebouw was dit gebouw oud en vervallen bij aanvang van de ontwerpopgave. In het nieuwe plan zijn de binnenwanden en verdiepingsvloer verwijderd en doet deze voormalige woning dienst als fietsenstalling voor de bewoners van de zorgappartementen. De buitengevel van nieuwe fietsenstalling is volledig gerestaureerd, waardoor het oorspronkelijke straatprofiel is hersteld en zich samen met het hoofdgebouw een doorgang vormt naar de achtertuin.
In dit sympathieke transformatieproject zijn meerdere maatschappelijke thema’s verweven. Met respect voor cultuurhistorie heeft het vervallen monumentale pand op deze plek een nieuwe functie gekregen die voor de bewoners en de buurt veel kwaliteit toevoegt. De centrale ligging geeft de bewoners mogelijkheden tot zelfstandigheid en biedt ze een nieuw en veilig thuis.
Stel jezelf kort voor! Dan weet het betreffende bedrijf wie hun model gedownload heeft.
Wil je niet bij elke download jouw gegevens in hoeven voeren?
Klik dan hier om in te loggen
.
Heb je nog geen account?
Maak dan hier een gratis account aan
.
Voornaam
Achternaam
E-mailadres
Downloaden
Wanneer je modellen downloadt op Architectenweb.nl worden relevante gegevens van jou – zoals jouw naam en e-mailadres – met het betreffende bedrijf gedeeld. Meer hierover lees je in ons
privacybeleid
.
Locatie
Trefwoorden
monumentaal
appartementen
renovatie en uitbreiding
transformatie
woonzorg
begeleidwonen
Zecc Architecten
Neem contact op
Projectdata
Staat van realisatie
Voltooid
Start ontwerpproces
2018
Start bouw
2019
Oplevering
2021
Ingebruikname
2021
Plaats
Tiel
Bruto m
2
1500
Meewerkende partijen
Architect
Zecc Architecten
Projectarchitect
Marnix van der Meer
Ontwerpteam
Jos van der Linde, Rene de Korte, Bart Jonkers
Opdrachtgever
KleurrijkWonen i.s.m. Stichting Prezzent
Aannemer
De Bonth van Hulten
Fotograaf
Stijn Poelstra
Leveranciers
Overig
Stijn Poelstra
Neem contact op met
Zecc Architecten
Je bent momenteel niet ingelogd. Hierdoor is het alleen mogelijk om meer informatie per e-mail op te vragen. Wil je liever gebeld worden of documentatie per post ontvangen?
Klik dan hier om in te loggen
.
Heb je nog geen account?
Maak dan hier een gratis account aan
.
Voornaam
Achternaam
E-mailadres
Opmerkingen
Bij iedere aanvraag worden relevante gegevens van jou gedeeld met het betreffende bedrijf. Meer hierover lees je in ons
privacybeleid
.
Ja, denk met me mee rond de
materialisering van mijn project
Meer projecten van Zecc Architecten
Zuidkade Scheveningen
Zecc Architecten
Kruitfabriek Muiden
Zecc Architecten
De Onderdelenloods
Zecc Architecten
Solo Cartesiusdriehoek
Zecc Architecten
Watertoren Utrecht
Zecc Architecten
Gemeentehuis Renswoude
Zecc Architecten
Appartementengebouw BU31 Utrecht
Zecc Architecten
Het Eiland Meerstad
Zecc Architecten
Tijdelijke huisvesting Tweede Kamer
Zecc Architecten
Woongebouw Noorderhaven Kade Noord
Zecc Architecten
Parkeergebouw Berlijnplein Leidsche Rijn Centrum
Zecc Architecten
Rijnvliet Midden in het groen
Zecc Architecten
Steel Craft House
Zecc Architecten
De Koningin op het Kraanbolwerk
Zecc Architecten
Werkspoorfabriek
Zecc Architecten
Bibliotheek Neude
Zecc Architecten
Recreatiewoning regio Utrecht
Zecc Architecten
KRO-NCRV
Zecc Architecten
Spoorhuis
Zecc Architecten
Drents Archief
Zecc Architecten
Gymzaalwoning
Zecc Architecten
Zwarte Parel
Zecc Architecten
Energieneutraal Monument
Zecc Architecten
Studio Heldergroen
Zecc Architecten
Studiowoningen
Zecc Architecten
Kadewoningen
Zecc Architecten
Woonkerk XL
Zecc Architecten
Waterwoningen
Zecc Architecten
Waterwoningen Amersfoort
Zecc Architecten
Bosvilla Soest
Zecc Architecten
Woonhuis Vriezenveen
Zecc Architecten
Woonlaboratorium
Zecc Architecten
Woonkerk Utrecht
Zecc Architecten
Individueel woonverlangen
Zecc Architecten
Herbestemming watertoren tot woonhuis
Zecc Architecten
Zuidkade Scheveningen
Zecc Architecten
Kruitfabriek Muiden
Zecc Architecten
De Onderdelenloods
Zecc Architecten
Solo Cartesiusdriehoek
Zecc Architecten
Watertoren Utrecht
Zecc Architecten
Gemeentehuis Renswoude
Zecc Architecten
Appartementengebouw BU31 Utrecht
Zecc Architecten
Het Eiland Meerstad
Zecc Architecten
Tijdelijke huisvesting Tweede Kamer
Zecc Architecten
Woongebouw Noorderhaven Kade Noord
Zecc Architecten
Parkeergebouw Berlijnplein Leidsche Rijn Centrum
Zecc Architecten
Rijnvliet Midden in het groen
Zecc Architecten
Steel Craft House
Zecc Architecten
De Koningin op het Kraanbolwerk
Zecc Architecten
Werkspoorfabriek
Zecc Architecten
Bibliotheek Neude
Zecc Architecten
Recreatiewoning regio Utrecht
Zecc Architecten
KRO-NCRV
Zecc Architecten
Spoorhuis
Zecc Architecten
Drents Archief
Zecc Architecten
Gymzaalwoning
Zecc Architecten
Zwarte Parel
Zecc Architecten
Energieneutraal Monument
Zecc Architecten
Studio Heldergroen
Zecc Architecten
Studiowoningen
Zecc Architecten
Kadewoningen
Zecc Architecten
Woonkerk XL
Zecc Architecten
Waterwoningen
Zecc Architecten
Waterwoningen Amersfoort
Zecc Architecten
Bosvilla Soest
Zecc Architecten
Woonhuis Vriezenveen
Zecc Architecten
Woonlaboratorium
Zecc Architecten
Woonkerk Utrecht
Zecc Architecten
Individueel woonverlangen
Zecc Architecten
Herbestemming watertoren tot woonhuis
Zecc Architecten
Toon alles
Andere Projecten
Huis van de Gemeente Voorst
Kawneer
Rumah Kechik, Malacca
Malaysian Timber Council
Plus Ultra III - EUROLACKE Poedercoatings
EUROLACKE
Energiezuinig gebouwd IKC 's-Heer Arendskerke
wienerberger
Duurzame houten gevelbekleding woning in Sappemeer
Foreco Houtproducten
BDO kantoor Breda
ULMA Architectural Solutions
L-founders of loyalty | Germany
Plan Effect Systeemwanden
Kokowall geluidsscherm A28 bij Ermelo
Kokosystems B.V.
Architects in Motion over abdijrenovatie
KUBUS | Specialist in Archicad
Almere Havenkom
HOSPER landschapsarchitectuur
Lansingerland Lage Bergse Bos
HOSPER landschapsarchitectuur
Sentho realiseert hygiënische upgrade
Sentho B.V.
Ga naar het projecten-overzicht
Voor een optimale gebruikservaring plaatst Architectenweb functionele cookies. Wat de verschillende cookies precies doen leggen we uit in een
overzicht
. Cookies van social media kun je optioneel
aanzetten
.
Akkoord
Instellingen
Annuleren
OK
Sluiten
Doorgaan
Inloggen
Maak een gratis persoonlijk account aan
Feedback
Feedback
Wij horen graag jouw feedback. Laat je reactie achter en eventueel jouw e-mail adres.
Reactie
Verstuur