Projecten
Producten
Bedrijven
Vacatures
Agenda
Awards
Podcasts
more_horiz
Videos
Magazine
Thema's
Favorieten
Profiel
Uitloggen
Abonneer je nu op onze nieuwsbrieven!
Abonneren
Nee, bedankt
Ja, denk met me mee rond de
materialisering van mijn project
Producten
Steel Craft House
Copyright: Stijn Poelstra
Steel Craft House
Copyright: Stijn Poelstra
Steel Craft House
Copyright: Stijn Poelstra
Geveldetail Steel Craft House
Copyright: Stijn Poelstra
Steel Craft House
Copyright: Stijn Poelstra
Steel Craft House
Copyright: Stijn Poelstra
Interieur Steel Craft House
Copyright: Stijn Poelstra
Interieur Steel Craft House
Copyright: Stijn Poelstra
Interieur Steel Craft House
Copyright: Stijn Poelstra
Gevel Bouwstraat oude situatie
Copyright: Zecc Architecten
Gevel Steel Craft House
Copyright: Zecc Architecten
Karakteristieken arbeidershuis - Steel Craft House
Copyright: Zecc Architecten
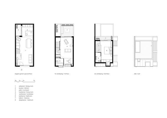
Plattegronden Steel Craft House
Copyright: Zecc Architecten
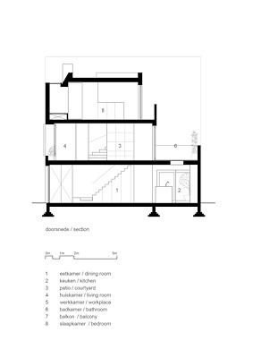
Doorsnede Steel Craft House
Copyright: Zecc Architecten
Steel Craft House
Copyright: Stijn Poelstra
Producttags
AAN
UIT
Steel Craft House
20 oktober 2020
2
0
0
0
In de Utrechtse wijk Wittevrouwen staat een knap staaltje zelfbouw: een voormalige garage is in een periode van 10 jaar ‘met eigen handen’ omgebouwd tot een houten woonhuis met Cortenstalen gevel. Het was een uitdagende opgave waarbij goede samenwerking, doorzettingsvermogen en liefde voor het ambacht heeft geleid tot een bijzonder eindresultaat. Zecc ontwierp de gevel, de opdrachtgevers hebben zelf met hulp van bevriende vakmensen het gehele project gerealiseerd. Iedere staalplaat en ieder eiken latje ging letterlijk meermalen door eigen handen.
In Steel Craft House zijn de stijlkenmerken van een arbeiderswoning in een modern jasje gegoten. Het woonhuis onderscheidt zich sterk in abstractie en materiaal, maar vindt aansluiting bij de aangrenzende bebouwing door vorm, compositie en detail. Kenmerken zoals de typische gevelindeling, de kap met dakkapel èn een schoorsteen zijn vertaald in de stalen bekleding. Ook zijn stijlelementen zoals een plint, spekbanden, rollagen en daklijsten terug te vinden in de stalen plaatverdeling.
De vensters in de nieuwe gevel hebben elk een eigen karakter, inspelend op de functie die hierachter wordt gehuisvest, maar vormen gezamenlijk een abstracte compositie. Op het straatniveau is gekozen voor een transparante terugliggende pui, die al in het gevelbeeld aanwezig was, en op deze manier meer overeenstemming krijgt met de buurpanden. De ‘erker’ vormgegeven als uitkragend gesloten vlak ter plaatse van de badkamer zorgt voor privacy. Bovenin is een smalle lichtspleet gemaakt. Het tweede vlak op de eerste verdieping is een mini loggia /Frans balkon, waarachter zich de woonruimte bevindt.
Achter de harde, soms wat gesloten stalen gevel bevindt zich een zachte en lichte woning. Het interieur is gevormd door een sculpturaal ‘meubel’ in eikenhout over drie bouwlagen. Extra daglicht valt binnen via een patio en verschillende daklichten. Zo is de dakkapel voorzien van een lichtkoepel en snijdt het zonlicht in de badkamer binnen via een smalle lichtspleet in de ‘erker’ aan de voorgevel.
Met haar kenmerkende gevel onderscheidt Steel Craft House zich van haar omgeving en tegelijkertijd zorgt de verwijzing naar de herkenbare thematiek van het arbeidershuis ervoor dat het moderne huis zich prachtig voegt in de omliggende bebouwing. Behalve deze referentie draagt ook de uiting van ambacht, die deze wijk zo geliefd maakt daaraan bij. Paradoxaal is het uiterlijk van het staal dat op het eerste gezicht contrasteert met de gemetselde buurpanden maar daar toch prachtig bij past doordat de verkleuring van het Cortenstaal verwijst naar het patina van de oer Hollandse baksteen. De keuze voor Cortenstaal is ook bepaald uit liefde voor dit materiaal, de opdrachtgever van het Steel Craft House is Utrechts grootste staalkunstenaar (Staalstudio).
Stel jezelf kort voor! Dan weet het betreffende bedrijf wie hun model gedownload heeft.
Wil je niet bij elke download jouw gegevens in hoeven voeren?
Klik dan hier om in te loggen
.
Heb je nog geen account?
Maak dan hier een gratis account aan
.
Voornaam
Achternaam
E-mailadres
Downloaden
Wanneer je modellen downloadt op Architectenweb.nl worden relevante gegevens van jou – zoals jouw naam en e-mailadres – met het betreffende bedrijf gedeeld. Meer hierover lees je in ons
privacybeleid
.
Locatie
Trefwoorden
arbeiderswoning
utrecht
corten staal projecten
zecc
geveltransformatie
corten staal
eiken
Zecc Architecten
Neem contact op
Projectdata
Staat van realisatie
Voltooid
Start ontwerpproces
2010
Start bouw
2012
Oplevering
2020
Plaats
Utrecht
Netto m
2
95
m
3
300
Meewerkende partijen
Architect
Zecc Architecten
Projectarchitect
Marnix van der Meer
Ontwerpteam
Roy van Maarseveen
Opdrachtgever
Roland Manders en Hanne Caspersen
Aannemer
opdrachtgever
Fotograaf
Stijn Poelstra
Gevelbouwer
Staalstudio
Leveranciers
Overig
Stijn Poelstra, Staalstudio
Neem contact op met
Zecc Architecten
Je bent momenteel niet ingelogd. Hierdoor is het alleen mogelijk om meer informatie per e-mail op te vragen. Wil je liever gebeld worden of documentatie per post ontvangen?
Klik dan hier om in te loggen
.
Heb je nog geen account?
Maak dan hier een gratis account aan
.
Voornaam
Achternaam
E-mailadres
Opmerkingen
Bij iedere aanvraag worden relevante gegevens van jou gedeeld met het betreffende bedrijf. Meer hierover lees je in ons
privacybeleid
.
Ja, denk met me mee rond de
materialisering van mijn project
Meer projecten van Zecc Architecten
Zuidkade Scheveningen
Zecc Architecten
Kruitfabriek Muiden
Zecc Architecten
De Onderdelenloods
Zecc Architecten
Solo Cartesiusdriehoek
Zecc Architecten
Watertoren Utrecht
Zecc Architecten
Gemeentehuis Renswoude
Zecc Architecten
Appartementengebouw BU31 Utrecht
Zecc Architecten
Het Eiland Meerstad
Zecc Architecten
Tijdelijke huisvesting Tweede Kamer
Zecc Architecten
Woongebouw Noorderhaven Kade Noord
Zecc Architecten
Parkeergebouw Berlijnplein Leidsche Rijn Centrum
Zecc Architecten
Rijnvliet Midden in het groen
Zecc Architecten
De Ark zorgappartementen
Zecc Architecten
De Koningin op het Kraanbolwerk
Zecc Architecten
Werkspoorfabriek
Zecc Architecten
Bibliotheek Neude
Zecc Architecten
Recreatiewoning regio Utrecht
Zecc Architecten
KRO-NCRV
Zecc Architecten
Spoorhuis
Zecc Architecten
Drents Archief
Zecc Architecten
Gymzaalwoning
Zecc Architecten
Zwarte Parel
Zecc Architecten
Energieneutraal Monument
Zecc Architecten
Studio Heldergroen
Zecc Architecten
Studiowoningen
Zecc Architecten
Kadewoningen
Zecc Architecten
Woonkerk XL
Zecc Architecten
Waterwoningen
Zecc Architecten
Waterwoningen Amersfoort
Zecc Architecten
Bosvilla Soest
Zecc Architecten
Woonhuis Vriezenveen
Zecc Architecten
Woonlaboratorium
Zecc Architecten
Woonkerk Utrecht
Zecc Architecten
Individueel woonverlangen
Zecc Architecten
Herbestemming watertoren tot woonhuis
Zecc Architecten
Zuidkade Scheveningen
Zecc Architecten
Kruitfabriek Muiden
Zecc Architecten
De Onderdelenloods
Zecc Architecten
Solo Cartesiusdriehoek
Zecc Architecten
Watertoren Utrecht
Zecc Architecten
Gemeentehuis Renswoude
Zecc Architecten
Appartementengebouw BU31 Utrecht
Zecc Architecten
Het Eiland Meerstad
Zecc Architecten
Tijdelijke huisvesting Tweede Kamer
Zecc Architecten
Woongebouw Noorderhaven Kade Noord
Zecc Architecten
Parkeergebouw Berlijnplein Leidsche Rijn Centrum
Zecc Architecten
Rijnvliet Midden in het groen
Zecc Architecten
De Ark zorgappartementen
Zecc Architecten
De Koningin op het Kraanbolwerk
Zecc Architecten
Werkspoorfabriek
Zecc Architecten
Bibliotheek Neude
Zecc Architecten
Recreatiewoning regio Utrecht
Zecc Architecten
KRO-NCRV
Zecc Architecten
Spoorhuis
Zecc Architecten
Drents Archief
Zecc Architecten
Gymzaalwoning
Zecc Architecten
Zwarte Parel
Zecc Architecten
Energieneutraal Monument
Zecc Architecten
Studio Heldergroen
Zecc Architecten
Studiowoningen
Zecc Architecten
Kadewoningen
Zecc Architecten
Woonkerk XL
Zecc Architecten
Waterwoningen
Zecc Architecten
Waterwoningen Amersfoort
Zecc Architecten
Bosvilla Soest
Zecc Architecten
Woonhuis Vriezenveen
Zecc Architecten
Woonlaboratorium
Zecc Architecten
Woonkerk Utrecht
Zecc Architecten
Individueel woonverlangen
Zecc Architecten
Herbestemming watertoren tot woonhuis
Zecc Architecten
Toon alles
Andere Projecten
Uitbreiding Hotel Martin's Klooster, Leuven
OWA Benelux - Akoestiek & Design
RVS plinten kantoor Moore DRV
Storax
Nieuwbouw keuken Stark Hoogeveen
KeraStone
Transformatie van meubelzaak naar autobedrijf
Buro De Haan
Sluiseiland Arnhem
Houthandel van Dam
Waterfrontontwikkeling Westboro Beach - Ottawa(CA)
Streetlife B.V.
Samen bouwen met ruimte voor eigenheid
Innoblox
Transformeerbare vergaderruimtes in HNK Amsterdam
BREEDVELD mobiele wandsystemen
Groot Hartje
Holonite B.V.
Republica Amsterdam
Houthandel van Dam
De Veluwse Proeftuin - Ede
Houthandel van Dam
Ceylonpoort Haarlem
Houthandel van Dam
Ga naar het projecten-overzicht
Voor een optimale gebruikservaring plaatst Architectenweb functionele cookies. Wat de verschillende cookies precies doen leggen we uit in een
overzicht
. Cookies van social media kun je optioneel
aanzetten
.
Akkoord
Instellingen
Annuleren
OK
Sluiten
Doorgaan
Inloggen
Maak een gratis persoonlijk account aan
Feedback
Feedback
Wij horen graag jouw feedback. Laat je reactie achter en eventueel jouw e-mail adres.
Reactie
Verstuur