Projecten
Producten
Bedrijven
Vacatures
Agenda
Awards
Podcasts
more_horiz
Videos
Magazine
Thema's
Favorieten
Profiel
Uitloggen
Abonneer je nu op onze nieuwsbrieven!
Abonneren
Nee, bedankt
Ja, denk met me mee rond de
materialisering van mijn project
Producten
Copyright: Eva Bloem
Copyright: Eva Bloem
entree
Copyright: Eva Bloem
entree
Copyright: atelier PRO architekten
atrium
Copyright: Eva Bloem
atrium
Copyright: Eva Bloem
atrium
Copyright: Eva Bloem
atrium
Copyright: Eva Bloem
Copyright: Eva Bloem
Doorsnedes A bestaande en nieuw
Copyright: atelier PRO architekten
Doorsnedes B bestaande en nieuw
Copyright: atelier PRO architekten
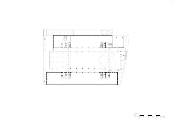
Begane grond
Copyright: atelier PRO architekten
Situatie
Copyright: atelier PRO architekten
Producttags
AAN
UIT
Kantoor EDGE Stadium Amsterdam
13 oktober 2023
1
0
0
0
Een bestaand gebouw uit 2001, dat toentertijd al duurzaam was, verder verduurzamen en transformeren tot een eigentijds kantoor - dát was de opdracht die atelier PRO kreeg van ontwikkelaar EDGE. Bijzonder is daarbij dat het bureau ook verantwoordelijk was voor het originele ontwerp. De kwaliteit daarvan was dusdanig hoog, dat het voor de hand lag om het gebouw te hergebruiken. Met de nieuwe aanpassingen is EDGE Stadium nu - opnieuw - klaar voor de toekomst.
In het najaar van 2020 verhuisde Loyens & Loeff uit kantorencomplex
Forum
, dat twintig jaar geleden werd ontworpen door atelier PRO. Het karakteristieke pand, toen al vooruitstrevend op het gebied van duurzaamheid, is nu omgevormd tot verzamelgebouw EDGE Stadium. Door de transformatie is een moderne en inspirerende werkomgeving ontstaan voor verschillende bedrijven en bedrijfjes; een bewuste mix, die onderlinge wisselwerking en innovatie bevordert. Het nieuwe EDGE Stadium is een gezond en groen kantoor, met natuurlijke materialen, weelderige beplanting, een hoge luchtkwaliteit en een wijds dakterras. De ligging, vlakbij het Olympisch Stadion en de Zuidas, is zowel zakelijk als stedelijk interessant.
Atelier PRO en EDGE delen dezelfde waarden: om beter te bouwen, met oog op de toekomst. Dat betekent dus geen nieuwbouw, maar juist hergebruik en verduurzaming van bestaande panden. Het betekent ook het ontwerpen van een eigentijdse, gezonde en innovatieve werkomgeving. De kwaliteit van het ontwerp zit daarbij niet alleen in de vormgeving, maar ook in zaken als de beplanting, in ontmoetingsplekken en voorzieningen, en in de luchtkwaliteit; slimme technologische maatregelen spelen hierbij een belangrijke ondersteunende rol. De installaties zijn daarom vernieuwd en aangepast aan de huidige eisen; voor de verwarming en koeling was in 2001 al een - voor toen vrij unieke - warmte-/koudeopslag toegepast, het huidige ontwerp borduurt hier op voort. Het centrale atrium met glasdak blijft behouden, alle houten kozijnen en balken zijn hergebruikt. Voor de duurzaamheid zijn de hoogste standaarden - BREEAM Excellent en WELL Core & Shell Gold - aangehouden. Ook is het pand het eerste R2S (Ready2Services)-gecertificeerde gebouw met twee sterren in Nederland; met dit label wordt de ‘smart connectivity’, oftewel de prestaties door middel van slimme technologie, van een gebouw gewogen.
Omdat het pand al voldeed aan een groot deel van de eisen, konden veel elementen uit het bestaande gebouw hergebruikt en geüpgraded worden. Het complex bestaat uit twee lange kantoorvleugels. Deze zijn verbreed en opgetopt met een extra verdieping, terwijl ook de middenvolumes zijn vergroot; hierdoor is in totaal circa 10.000 m² toegevoegd aan het bestaande vloeroppervlak van 19.000 m². Het centrale atrium is uitgebouwd met een houten kapconstructie en heeft een nieuwe uitstraling gekregen; het is heringericht als een weelderige groene ruimte waar de gebruikers elkaar kunnen ontmoeten en fungeert daarmee als het hart van het gebouw. Nieuwe, sfeervolle trappenhuizen nodigen uit om elkaar te ontmoeten en brengen mensen in beweging.
Het atrium is, als hart van het gebouw, één van de dragers van de transformatie, maar had ook oorspronkelijk al een grote ruimtelijke kwaliteit. Atelier PRO wilde deze kwaliteit behouden, en tegelijkertijd de ruimte lichter en natuurlijker maken; dit is bereikt door de wanden te voorzien van lichtgekleurde akoestische latten van eikenhout en door zoveel mogelijk houten puien en kozijnen toe te passen. Het paviljoen in de achterwand werd ontmanteld, uitgebreid en voorzien van een nieuwe gevel; het hartvormige, met koper beklede paviljoen aan de voorzijde werd herkenbaar geïntegreerd en vormt nu een blikvanger in het nieuwe atrium.
EDGE Stadium beantwoordt aan de veranderde ideeën over werken en duurzaamheid, en is getransformeerd tot een plek waar ontmoeting, overleg, creativiteit en beweging centraal staan.
Stel jezelf kort voor! Dan weet het betreffende bedrijf wie hun model gedownload heeft.
Wil je niet bij elke download jouw gegevens in hoeven voeren?
Klik dan hier om in te loggen
.
Heb je nog geen account?
Maak dan hier een gratis account aan
.
Voornaam
Achternaam
E-mailadres
Downloaden
Wanneer je modellen downloadt op Architectenweb.nl worden relevante gegevens van jou – zoals jouw naam en e-mailadres – met het betreffende bedrijf gedeeld. Meer hierover lees je in ons
privacybeleid
.
Locatie
Trefwoorden
renovatie
uitbreiding
inrichting
atelier PRO architekten
Neem contact op
Projectdata
Staat van realisatie
Voltooid
Start ontwerpproces
2019
Start bouw
2020
Oplevering
2023
Ingebruikname
2023
Plaats
Amsterdam
Bruto m
2
29221
Meewerkende partijen
Architect
atelier PRO architekten
Projectarchitect
Hans Kalkhoven, Dorte Kristensen
Opdrachtgever
EDGE Technologies
Aannemer
G & S Bouw Amsterdam
Constructeur
VRI Amsterdam
Fotograaf
Eva Blpoem
Leveranciers
Puien/kozijnen exterieur
Intal Opmeer
Neem contact op met
atelier PRO architekten
Je bent momenteel niet ingelogd. Hierdoor is het alleen mogelijk om meer informatie per e-mail op te vragen. Wil je liever gebeld worden of documentatie per post ontvangen?
Klik dan hier om in te loggen
.
Heb je nog geen account?
Maak dan hier een gratis account aan
.
Voornaam
Achternaam
E-mailadres
Opmerkingen
Bij iedere aanvraag worden relevante gegevens van jou gedeeld met het betreffende bedrijf. Meer hierover lees je in ons
privacybeleid
.
Ja, denk met me mee rond de
materialisering van mijn project
Meer projecten van atelier PRO architekten
Eijkman Kliniek
atelier PRO architekten
IGVO International School of Delft
atelier PRO architekten
Kop van het Dok
atelier PRO architekten
Research & Diagnostiek Centrum Adore
atelier PRO architekten
Renovatie Berlage Lyceum, Amsterdam
atelier PRO architekten
Universitair Centrum Psychiatrie UMCG, Groningen
atelier PRO architekten
VMBO Veurs
atelier PRO architekten
Kantoor Anthura Bleiswijk
atelier PRO architekten
Albert Schweitzerschool, Rotterdam
atelier PRO architekten
Obs Pantarijn en Shri Krishna school, Utrecht
atelier PRO architekten
Rudolf Steiner College en School, Haarlem
atelier PRO architekten
Woningen ZuiderDuinen, Den Haag
atelier PRO architekten
Strabrecht College in Geldrop
atelier PRO architekten
Renovatie ING Maple
atelier PRO architekten
Kindcentrum Vosholen
atelier PRO architekten
Lumion Amsterdam schoolinterieur
atelier PRO architekten
Lumion Amsterdam
atelier PRO architekten
Kop van het Dok
atelier PRO architekten
Vakcollege Eindhoven & Aloysius de Roosten
atelier PRO architekten
Bastiaanpoort, Delft
atelier PRO architekten
Levensloopwoningen Achtmaal
atelier PRO architekten
Vitalis College
atelier PRO architekten
Herontwikkeling WTC The Hague
atelier PRO architekten
Uitbreiding Metis Montessori Lyceum
atelier PRO architekten
Koningin Sophiestraat
atelier PRO architekten
The British School of Amsterdam
atelier PRO architekten
Buurschap Roosenhorst Voorschoten
atelier PRO architekten
Revitalisatie Admiraal de Ruyter ziekenhuis
atelier PRO architekten
Liseo Boneriano, Scholengemeenschap Bonaire
atelier PRO architekten
Verbindingstunnel van Heekgarage, Enschede
atelier PRO architekten
HAVO/VWO Carmel College Salland
atelier PRO architekten
Inbreiding & herinrichting Museum Allard Pierson
atelier PRO architekten
Vrijzinnig Christelijk Lyceum (VCL)
atelier PRO architekten
Letovo School Campus Moscow
atelier PRO architekten
IJburg college 2
atelier PRO architekten
Woonzorgcentrum Scheldehof
atelier PRO architekten
Cultuurhuis Winschoten inclusief interieur
atelier PRO architekten
MEANDER MEDISCH CENTRUM
atelier PRO architekten
Koepoortlocatie
atelier PRO architekten
Villa Strating
atelier PRO architekten
Wonen in Weelde
atelier PRO architekten
Housing Lakenham
atelier PRO architekten
Woningen Groeseind
atelier PRO architekten
Arendsdorp
atelier PRO architekten
Woningen Malburgen
atelier PRO architekten
D&B VERNIEUWBOUW EDITH STEIN COLLEGE
atelier PRO architekten
Verwaltungsgebaude IKK in Saarbrucken
atelier PRO architekten
NIEUW INTERIEUR WTC TOREN C
atelier PRO architekten
BASISSCHOLEN BINNENSTAD, BRIELLE
atelier PRO architekten
Onderwijspark Ezinge
atelier PRO architekten
Metis Montessori Lyceum Oosterpark
atelier PRO architekten
Interieur Stadhuiskwartier
atelier PRO architekten
Interieur Zorgcentrum Willibrord
atelier PRO architekten
Interieur gemeentehuis Zeist
atelier PRO architekten
MFA Huis van de Heuvel
atelier PRO architekten
Urban villa's Westeram
atelier PRO architekten
Nelson Mandela Centrum
atelier PRO architekten
Regiokantoren Enexis
atelier PRO architekten
Regiokantoren Enexis
atelier PRO architekten
Deal Ground & May Gurney
atelier PRO architekten
Cultuurhuis Winschoten inclusief interieur
atelier PRO architekten
MFA & GGZ Zeeheldenbuurt
atelier PRO architekten
Haagse Hogeschool Plein +
atelier PRO architekten
ROC Graafschap College
atelier PRO architekten
Studieopdracht hoofdkantoor Loyens & Loeff
atelier PRO architekten
Gemeentehuis Bronckhorst inclusief interieur
atelier PRO architekten
Woningen Zeeheldenbuurt
atelier PRO architekten
Prinsenhof
atelier PRO architekten
Trias VMBO school
atelier PRO architekten
Bibliotheek Bijzondere collectie Universiteit
atelier PRO architekten
Prinsenhof
atelier PRO architekten
Parkwoningen Craeyenburch
atelier PRO architekten
Prinsenhof
atelier PRO architekten
Studentenhuisvesting Laakhaven
atelier PRO architekten
Daltonschool Columbus
atelier PRO architekten
International School of The Hague
atelier PRO architekten
Politieacademie
atelier PRO architekten
Ludgerhof
atelier PRO architekten
Factorium
atelier PRO architekten
Brede school en woningen Berkel & Rodenrijs
atelier PRO architekten
Seniorenwoningen Krispijn
atelier PRO architekten
Trias VMBO school
atelier PRO architekten
Holland Park, Warschau
atelier PRO architekten
Vensterschool
atelier PRO architekten
Nieuw Land Erfgoedcentrum
atelier PRO architekten
Basisschool Paschalis en kinderopvang Jonas
atelier PRO architekten
Winkelcentrum Carnisse Veste
atelier PRO architekten
Stationsgebied
atelier PRO architekten
Wooncomplex Hage Hoek
atelier PRO architekten
De Brink Vathorst
atelier PRO architekten
Watertoren Entrepot-West
atelier PRO architekten
Rembrandthof
atelier PRO architekten
Kantoorgebouw Forum
atelier PRO architekten
Haagse Hogeschool
atelier PRO architekten
Euro-College
atelier PRO architekten
Bestuursgebouw Universiteit
atelier PRO architekten
Nederlandse Ambassade, Kiev
atelier PRO architekten
Parkeergarage Laakhaven Hollands Spoor
atelier PRO architekten
Parkeergarage Laakhaven Hollands Spoor
atelier PRO architekten
Eijkman Kliniek
atelier PRO architekten
IGVO International School of Delft
atelier PRO architekten
Kop van het Dok
atelier PRO architekten
Research & Diagnostiek Centrum Adore
atelier PRO architekten
Renovatie Berlage Lyceum, Amsterdam
atelier PRO architekten
Universitair Centrum Psychiatrie UMCG, Groningen
atelier PRO architekten
VMBO Veurs
atelier PRO architekten
Kantoor Anthura Bleiswijk
atelier PRO architekten
Albert Schweitzerschool, Rotterdam
atelier PRO architekten
Obs Pantarijn en Shri Krishna school, Utrecht
atelier PRO architekten
Rudolf Steiner College en School, Haarlem
atelier PRO architekten
Woningen ZuiderDuinen, Den Haag
atelier PRO architekten
Strabrecht College in Geldrop
atelier PRO architekten
Renovatie ING Maple
atelier PRO architekten
Kindcentrum Vosholen
atelier PRO architekten
Lumion Amsterdam schoolinterieur
atelier PRO architekten
Lumion Amsterdam
atelier PRO architekten
Kop van het Dok
atelier PRO architekten
Vakcollege Eindhoven & Aloysius de Roosten
atelier PRO architekten
Bastiaanpoort, Delft
atelier PRO architekten
Levensloopwoningen Achtmaal
atelier PRO architekten
Vitalis College
atelier PRO architekten
Herontwikkeling WTC The Hague
atelier PRO architekten
Uitbreiding Metis Montessori Lyceum
atelier PRO architekten
Koningin Sophiestraat
atelier PRO architekten
The British School of Amsterdam
atelier PRO architekten
Buurschap Roosenhorst Voorschoten
atelier PRO architekten
Revitalisatie Admiraal de Ruyter ziekenhuis
atelier PRO architekten
Liseo Boneriano, Scholengemeenschap Bonaire
atelier PRO architekten
Verbindingstunnel van Heekgarage, Enschede
atelier PRO architekten
HAVO/VWO Carmel College Salland
atelier PRO architekten
Inbreiding & herinrichting Museum Allard Pierson
atelier PRO architekten
Vrijzinnig Christelijk Lyceum (VCL)
atelier PRO architekten
Letovo School Campus Moscow
atelier PRO architekten
IJburg college 2
atelier PRO architekten
Woonzorgcentrum Scheldehof
atelier PRO architekten
Cultuurhuis Winschoten inclusief interieur
atelier PRO architekten
MEANDER MEDISCH CENTRUM
atelier PRO architekten
Koepoortlocatie
atelier PRO architekten
Villa Strating
atelier PRO architekten
Wonen in Weelde
atelier PRO architekten
Housing Lakenham
atelier PRO architekten
Woningen Groeseind
atelier PRO architekten
Arendsdorp
atelier PRO architekten
Woningen Malburgen
atelier PRO architekten
D&B VERNIEUWBOUW EDITH STEIN COLLEGE
atelier PRO architekten
Verwaltungsgebaude IKK in Saarbrucken
atelier PRO architekten
NIEUW INTERIEUR WTC TOREN C
atelier PRO architekten
BASISSCHOLEN BINNENSTAD, BRIELLE
atelier PRO architekten
Onderwijspark Ezinge
atelier PRO architekten
Metis Montessori Lyceum Oosterpark
atelier PRO architekten
Interieur Stadhuiskwartier
atelier PRO architekten
Interieur Zorgcentrum Willibrord
atelier PRO architekten
Interieur gemeentehuis Zeist
atelier PRO architekten
MFA Huis van de Heuvel
atelier PRO architekten
Urban villa's Westeram
atelier PRO architekten
Nelson Mandela Centrum
atelier PRO architekten
Regiokantoren Enexis
atelier PRO architekten
Regiokantoren Enexis
atelier PRO architekten
Deal Ground & May Gurney
atelier PRO architekten
Cultuurhuis Winschoten inclusief interieur
atelier PRO architekten
MFA & GGZ Zeeheldenbuurt
atelier PRO architekten
Haagse Hogeschool Plein +
atelier PRO architekten
ROC Graafschap College
atelier PRO architekten
Studieopdracht hoofdkantoor Loyens & Loeff
atelier PRO architekten
Gemeentehuis Bronckhorst inclusief interieur
atelier PRO architekten
Woningen Zeeheldenbuurt
atelier PRO architekten
Prinsenhof
atelier PRO architekten
Trias VMBO school
atelier PRO architekten
Bibliotheek Bijzondere collectie Universiteit
atelier PRO architekten
Prinsenhof
atelier PRO architekten
Parkwoningen Craeyenburch
atelier PRO architekten
Prinsenhof
atelier PRO architekten
Studentenhuisvesting Laakhaven
atelier PRO architekten
Daltonschool Columbus
atelier PRO architekten
International School of The Hague
atelier PRO architekten
Politieacademie
atelier PRO architekten
Ludgerhof
atelier PRO architekten
Factorium
atelier PRO architekten
Brede school en woningen Berkel & Rodenrijs
atelier PRO architekten
Seniorenwoningen Krispijn
atelier PRO architekten
Trias VMBO school
atelier PRO architekten
Holland Park, Warschau
atelier PRO architekten
Vensterschool
atelier PRO architekten
Nieuw Land Erfgoedcentrum
atelier PRO architekten
Basisschool Paschalis en kinderopvang Jonas
atelier PRO architekten
Winkelcentrum Carnisse Veste
atelier PRO architekten
Stationsgebied
atelier PRO architekten
Wooncomplex Hage Hoek
atelier PRO architekten
De Brink Vathorst
atelier PRO architekten
Watertoren Entrepot-West
atelier PRO architekten
Rembrandthof
atelier PRO architekten
Kantoorgebouw Forum
atelier PRO architekten
Haagse Hogeschool
atelier PRO architekten
Euro-College
atelier PRO architekten
Bestuursgebouw Universiteit
atelier PRO architekten
Nederlandse Ambassade, Kiev
atelier PRO architekten
Parkeergarage Laakhaven Hollands Spoor
atelier PRO architekten
Parkeergarage Laakhaven Hollands Spoor
atelier PRO architekten
Toon alles
Andere Projecten
Kooi stadion - SC Cambuur
Houthandel van Dam
Veilige daktoegang voor Aan de Molenwerf
Gorter Luiken BV
Veilige daktoegang voor nieuw gemeentehuis
Gorter Luiken BV
Ziekenhuiscomplex Rijeka in Susak, Kroatië
ULMA Architectural Solutions
Luxe Vingui Noir houten uitbouw
Houthandel van Dam
BMV Heerlerbaan - Heerlen
Houthandel van Dam
Watervilla's in de haven van Kortenhoef
Houthandel van Dam
Beatrixhof
Houthandel van Dam
Madonna Antwerpen - Akoestiek als smaakmaker
OWA Benelux - Akoestiek & Design
Renovatie zorginstelling dementie en alzheimer
Storax
Ontwikkeling van Circulair Energielandschap
Buro De Haan
ROCKWOOL LM Klima: efficiënter isoleren bij Xplore
ROCKWOOL B.V.
Ga naar het projecten-overzicht
Voor een optimale gebruikservaring plaatst Architectenweb functionele cookies. Wat de verschillende cookies precies doen leggen we uit in een
overzicht
. Cookies van social media kun je optioneel
aanzetten
.
Akkoord
Instellingen
Annuleren
OK
Sluiten
Doorgaan
Inloggen
Maak een gratis persoonlijk account aan
Feedback
Feedback
Wij horen graag jouw feedback. Laat je reactie achter en eventueel jouw e-mail adres.
Reactie
Verstuur