Projecten
Producten
Bedrijven
Vacatures
Agenda
Awards
Podcasts
more_horiz
Videos
Magazine
Thema's
Favorieten
Profiel
Uitloggen
Abonneer je nu op onze nieuwsbrieven!
Abonneren
Nee, bedankt
Ja, denk met me mee rond de
materialisering van mijn project
Producten
Entreegebied
Copyright: Luuk Kramer
Exterieur
Copyright: Luuk Kramer
Interieur
Copyright: Luuk Kramer
Interieur
Copyright: Luuk Kramer
Interieur
Copyright: Luuk Kramer
Exterieur
Copyright: Luuk Kramer
Situatie
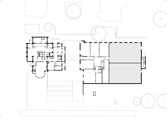
Begane grond
Eerste verdieping
Producttags
AAN
UIT
D&B VERNIEUWBOUW EDITH STEIN COLLEGE
2 juli 2015
0
0
0
0
Het ontwerp van atelier PRO voor het Edith Steincollege biedt leerlingen een vertrouwde maar ook uitdagende onderwijsomgeving. In de Haagse Binnenstad, aan het einde van het Louis Couperusplein, zal een statig en compact onderwijsgebouw worden gerealiseerd. Daarmee ontstaat ruimte op de kavel van de school voor sport, spel, tuinieren, groenbeleving en buiteneducatie. Een nieuwe onderwijsomgeving die leerlingen uit verschillende achterstandswijken in Den Haag op deze bijzondere plek een thuis biedt.
Uit eerste studies bleek dat het verdiept aanleggen en integreren van de gymzaal met de nieuwbouw een zo compact mogelijk bouwvolume oplevert. Bovendien zijn de gymzalen dan onderdeel van de school.
Het dak van de gymzalen creëert een ‘podium’ waarop de verschillende onderwijsafdelingen worden gestapeld. Deze sluiten qua niveau aan op de mooiste ruimte en het nieuwe hart van de school: de aula. Deze wordt ondergebracht in de bestaande kapel van het huidige onderwijsgebouw die geïntegreerd wordt met de nieuwbouw. De verschillende afdelingen voor achtereenvolgens HAVO /VWO, MAVO en onderbouw zijn zo nooit verder dan anderhalve trap van deze aula verwijderd. Daarmee wordt de mooiste ruimte van het bestaande gebouw de centrale ‘schatkamer’ van het toekomstige complex.
Door zijn koppeling met de kantine is de aula geschikt als bijeenkomstruimte voor bijvoorbeeld voorstellingen en feesten. De transparante vormgeving maakt van de kantine een feestelijke foyer voor de aula. De aula beschikt over een tribune voor theater, een meubel dat uitmondt in het medialokaal, dat eveneens gebruikt kan worden als regiekamer.
Brug & poort & logistiek leerlingenstromen
De afwikkeling van de logistieke verkeersstromen door het gebouw is een belangrijk ontwerpuitgangspunt geweest. Om deze stromen van en naar het gebouw beter te geleiden(fietsende leerlingen worden nu om het gebouw heen naar de achterkant geleid) krijgt de school een grote poort of doorgang op de as van het Louis Couperusplein. Zo kunnen leerlingen komend vanaf de Mauritskade gelijk doorstromen naar het groene speelplein aan de zuidzijde. Het volume boven de poort fungeert als een verbindende brug: een intermediair tussen de nieuwbouw en de kapel. Dit gebouwdeel krijgt een transparante uitstraling. Onder meer de kantine wordt hierin gehuisvest. Met het introduceren van de poort ontstaat een duidelijk stedenbouwkundig markeerpunt aan het einde van de as van het Louis Couperusplein. Ook het gebouwdeel met de oude entree van de school blijft gehandhaafd. De oorspronkelijke entree fungeert als formele entree voor bezoekers en ouders en als avondentree voor de gymzaal. ’s Nachts wordt de doorgang afgesloten met een sierhek.
Interne routing
De poort speelt een belangrijke rol in de herkenbaarheid en afwikkeling van leerlingenstromen. Eenmaal binnen is de routing door het gebouw duidelijk
georganiseerd over de middenas van het gebouw. De brug boven de poort is naast verbinding tussen de gebouwdelen, ook het begin van de route die de verschillende afdelingen aan elkaar rijgt. De trappen in de brug hebben ook een bijeenkomstfunctie en zijn deels als zitelement of tribune te gebruiken. Doordat splitlevel-niveaus tussen kapel en nieuwbouw ingenieus in de brug samenkomen en gebruik wordt gemaakt van een doorlooplift, zijn alle ruimten in het gebouw toegankelijk voor rolstoelgebruikers.
De afdelingen
De afdelingen zijn rationeel en helder georganiseerd met klaslokalen rond één zone: een stelsel van leerpleinen en vides met aan weerszijden brede gangen. Elke afdeling krijgt een eigen verdieping met rijen klaslokalen aan de noord- en zuidgevel. In en rond de poort bevinden zich lokalen van bijzondere afdelingen, zoals creatieve of exacte vakken waarmee de school zich kan afficheren. Om genoeg licht en lucht voor het lokaal handvaardigheid te verschaffen, wordt een verdiepte patio aangelegd met ruimte voor een eventuele beeldentuin. De gymzalen zijn verdiept aangelegd aan de oostzijde van het gebouw. Ze zijn bereikbaar via een trap en lift in de kapel. Zo is de gymzaal overdag goed bruikbaar en ’s avonds apart bereikbaar.
Architectuur en uitstraling
Het gebouw zoekt in zijn architectuur niet het contrast maar het evenwicht met de bestaande omgeving. Fraaie bakstenen reliëfs bepalen het gevelbeeld. Ze zijn ontleend aan de omliggende gebouwen in Haagse Schoolstijl en pakken het thema op eigentijdse wijze op. De bestaande kapel behoudt in het beeld de hoofdrol in het nieuwe ensemble van oudbouw en nieuwbouw.
Stel jezelf kort voor! Dan weet het betreffende bedrijf wie hun model gedownload heeft.
Wil je niet bij elke download jouw gegevens in hoeven voeren?
Klik dan hier om in te loggen
.
Heb je nog geen account?
Maak dan hier een gratis account aan
.
Voornaam
Achternaam
E-mailadres
Downloaden
Wanneer je modellen downloadt op Architectenweb.nl worden relevante gegevens van jou – zoals jouw naam en e-mailadres – met het betreffende bedrijf gedeeld. Meer hierover lees je in ons
privacybeleid
.
Locatie
Trefwoorden
atelier pro architekten
college
educatie
scholen
renovatie & herbestemming
sport & ontspanning
atelier pro
atelier PRO architekten
Neem contact op
Projectdata
Staat van realisatie
Voltooid
Start bouw
2015
Plaats
Den Haag
Bruto m
2
7230
Neem contact op met
atelier PRO architekten
Je bent momenteel niet ingelogd. Hierdoor is het alleen mogelijk om meer informatie per e-mail op te vragen. Wil je liever gebeld worden of documentatie per post ontvangen?
Klik dan hier om in te loggen
.
Heb je nog geen account?
Maak dan hier een gratis account aan
.
Voornaam
Achternaam
E-mailadres
Opmerkingen
Bij iedere aanvraag worden relevante gegevens van jou gedeeld met het betreffende bedrijf. Meer hierover lees je in ons
privacybeleid
.
Ja, denk met me mee rond de
materialisering van mijn project
Meer projecten van atelier PRO architekten
Eijkman Kliniek
atelier PRO architekten
IGVO International School of Delft
atelier PRO architekten
Kop van het Dok
atelier PRO architekten
Research & Diagnostiek Centrum Adore
atelier PRO architekten
Renovatie Berlage Lyceum, Amsterdam
atelier PRO architekten
Universitair Centrum Psychiatrie UMCG, Groningen
atelier PRO architekten
VMBO Veurs
atelier PRO architekten
Kantoor EDGE Stadium Amsterdam
atelier PRO architekten
Kantoor Anthura Bleiswijk
atelier PRO architekten
Albert Schweitzerschool, Rotterdam
atelier PRO architekten
Obs Pantarijn en Shri Krishna school, Utrecht
atelier PRO architekten
Rudolf Steiner College en School, Haarlem
atelier PRO architekten
Woningen ZuiderDuinen, Den Haag
atelier PRO architekten
Strabrecht College in Geldrop
atelier PRO architekten
Renovatie ING Maple
atelier PRO architekten
Kindcentrum Vosholen
atelier PRO architekten
Lumion Amsterdam schoolinterieur
atelier PRO architekten
Lumion Amsterdam
atelier PRO architekten
Kop van het Dok
atelier PRO architekten
Vakcollege Eindhoven & Aloysius de Roosten
atelier PRO architekten
Bastiaanpoort, Delft
atelier PRO architekten
Levensloopwoningen Achtmaal
atelier PRO architekten
Vitalis College
atelier PRO architekten
Herontwikkeling WTC The Hague
atelier PRO architekten
Uitbreiding Metis Montessori Lyceum
atelier PRO architekten
Koningin Sophiestraat
atelier PRO architekten
The British School of Amsterdam
atelier PRO architekten
Buurschap Roosenhorst Voorschoten
atelier PRO architekten
Revitalisatie Admiraal de Ruyter ziekenhuis
atelier PRO architekten
Liseo Boneriano, Scholengemeenschap Bonaire
atelier PRO architekten
Verbindingstunnel van Heekgarage, Enschede
atelier PRO architekten
HAVO/VWO Carmel College Salland
atelier PRO architekten
Inbreiding & herinrichting Museum Allard Pierson
atelier PRO architekten
Vrijzinnig Christelijk Lyceum (VCL)
atelier PRO architekten
Letovo School Campus Moscow
atelier PRO architekten
IJburg college 2
atelier PRO architekten
Woonzorgcentrum Scheldehof
atelier PRO architekten
Cultuurhuis Winschoten inclusief interieur
atelier PRO architekten
MEANDER MEDISCH CENTRUM
atelier PRO architekten
Koepoortlocatie
atelier PRO architekten
Villa Strating
atelier PRO architekten
Wonen in Weelde
atelier PRO architekten
Housing Lakenham
atelier PRO architekten
Woningen Groeseind
atelier PRO architekten
Arendsdorp
atelier PRO architekten
Woningen Malburgen
atelier PRO architekten
Verwaltungsgebaude IKK in Saarbrucken
atelier PRO architekten
NIEUW INTERIEUR WTC TOREN C
atelier PRO architekten
BASISSCHOLEN BINNENSTAD, BRIELLE
atelier PRO architekten
Onderwijspark Ezinge
atelier PRO architekten
Metis Montessori Lyceum Oosterpark
atelier PRO architekten
Interieur Stadhuiskwartier
atelier PRO architekten
Interieur Zorgcentrum Willibrord
atelier PRO architekten
Interieur gemeentehuis Zeist
atelier PRO architekten
MFA Huis van de Heuvel
atelier PRO architekten
Urban villa's Westeram
atelier PRO architekten
Nelson Mandela Centrum
atelier PRO architekten
Regiokantoren Enexis
atelier PRO architekten
Regiokantoren Enexis
atelier PRO architekten
Deal Ground & May Gurney
atelier PRO architekten
Cultuurhuis Winschoten inclusief interieur
atelier PRO architekten
MFA & GGZ Zeeheldenbuurt
atelier PRO architekten
Haagse Hogeschool Plein +
atelier PRO architekten
ROC Graafschap College
atelier PRO architekten
Studieopdracht hoofdkantoor Loyens & Loeff
atelier PRO architekten
Gemeentehuis Bronckhorst inclusief interieur
atelier PRO architekten
Woningen Zeeheldenbuurt
atelier PRO architekten
Prinsenhof
atelier PRO architekten
Trias VMBO school
atelier PRO architekten
Bibliotheek Bijzondere collectie Universiteit
atelier PRO architekten
Prinsenhof
atelier PRO architekten
Parkwoningen Craeyenburch
atelier PRO architekten
Prinsenhof
atelier PRO architekten
Studentenhuisvesting Laakhaven
atelier PRO architekten
Daltonschool Columbus
atelier PRO architekten
International School of The Hague
atelier PRO architekten
Politieacademie
atelier PRO architekten
Ludgerhof
atelier PRO architekten
Factorium
atelier PRO architekten
Brede school en woningen Berkel & Rodenrijs
atelier PRO architekten
Seniorenwoningen Krispijn
atelier PRO architekten
Trias VMBO school
atelier PRO architekten
Holland Park, Warschau
atelier PRO architekten
Vensterschool
atelier PRO architekten
Nieuw Land Erfgoedcentrum
atelier PRO architekten
Basisschool Paschalis en kinderopvang Jonas
atelier PRO architekten
Winkelcentrum Carnisse Veste
atelier PRO architekten
Stationsgebied
atelier PRO architekten
Wooncomplex Hage Hoek
atelier PRO architekten
De Brink Vathorst
atelier PRO architekten
Watertoren Entrepot-West
atelier PRO architekten
Rembrandthof
atelier PRO architekten
Kantoorgebouw Forum
atelier PRO architekten
Haagse Hogeschool
atelier PRO architekten
Euro-College
atelier PRO architekten
Bestuursgebouw Universiteit
atelier PRO architekten
Nederlandse Ambassade, Kiev
atelier PRO architekten
Parkeergarage Laakhaven Hollands Spoor
atelier PRO architekten
Parkeergarage Laakhaven Hollands Spoor
atelier PRO architekten
Eijkman Kliniek
atelier PRO architekten
IGVO International School of Delft
atelier PRO architekten
Kop van het Dok
atelier PRO architekten
Research & Diagnostiek Centrum Adore
atelier PRO architekten
Renovatie Berlage Lyceum, Amsterdam
atelier PRO architekten
Universitair Centrum Psychiatrie UMCG, Groningen
atelier PRO architekten
VMBO Veurs
atelier PRO architekten
Kantoor EDGE Stadium Amsterdam
atelier PRO architekten
Kantoor Anthura Bleiswijk
atelier PRO architekten
Albert Schweitzerschool, Rotterdam
atelier PRO architekten
Obs Pantarijn en Shri Krishna school, Utrecht
atelier PRO architekten
Rudolf Steiner College en School, Haarlem
atelier PRO architekten
Woningen ZuiderDuinen, Den Haag
atelier PRO architekten
Strabrecht College in Geldrop
atelier PRO architekten
Renovatie ING Maple
atelier PRO architekten
Kindcentrum Vosholen
atelier PRO architekten
Lumion Amsterdam schoolinterieur
atelier PRO architekten
Lumion Amsterdam
atelier PRO architekten
Kop van het Dok
atelier PRO architekten
Vakcollege Eindhoven & Aloysius de Roosten
atelier PRO architekten
Bastiaanpoort, Delft
atelier PRO architekten
Levensloopwoningen Achtmaal
atelier PRO architekten
Vitalis College
atelier PRO architekten
Herontwikkeling WTC The Hague
atelier PRO architekten
Uitbreiding Metis Montessori Lyceum
atelier PRO architekten
Koningin Sophiestraat
atelier PRO architekten
The British School of Amsterdam
atelier PRO architekten
Buurschap Roosenhorst Voorschoten
atelier PRO architekten
Revitalisatie Admiraal de Ruyter ziekenhuis
atelier PRO architekten
Liseo Boneriano, Scholengemeenschap Bonaire
atelier PRO architekten
Verbindingstunnel van Heekgarage, Enschede
atelier PRO architekten
HAVO/VWO Carmel College Salland
atelier PRO architekten
Inbreiding & herinrichting Museum Allard Pierson
atelier PRO architekten
Vrijzinnig Christelijk Lyceum (VCL)
atelier PRO architekten
Letovo School Campus Moscow
atelier PRO architekten
IJburg college 2
atelier PRO architekten
Woonzorgcentrum Scheldehof
atelier PRO architekten
Cultuurhuis Winschoten inclusief interieur
atelier PRO architekten
MEANDER MEDISCH CENTRUM
atelier PRO architekten
Koepoortlocatie
atelier PRO architekten
Villa Strating
atelier PRO architekten
Wonen in Weelde
atelier PRO architekten
Housing Lakenham
atelier PRO architekten
Woningen Groeseind
atelier PRO architekten
Arendsdorp
atelier PRO architekten
Woningen Malburgen
atelier PRO architekten
Verwaltungsgebaude IKK in Saarbrucken
atelier PRO architekten
NIEUW INTERIEUR WTC TOREN C
atelier PRO architekten
BASISSCHOLEN BINNENSTAD, BRIELLE
atelier PRO architekten
Onderwijspark Ezinge
atelier PRO architekten
Metis Montessori Lyceum Oosterpark
atelier PRO architekten
Interieur Stadhuiskwartier
atelier PRO architekten
Interieur Zorgcentrum Willibrord
atelier PRO architekten
Interieur gemeentehuis Zeist
atelier PRO architekten
MFA Huis van de Heuvel
atelier PRO architekten
Urban villa's Westeram
atelier PRO architekten
Nelson Mandela Centrum
atelier PRO architekten
Regiokantoren Enexis
atelier PRO architekten
Regiokantoren Enexis
atelier PRO architekten
Deal Ground & May Gurney
atelier PRO architekten
Cultuurhuis Winschoten inclusief interieur
atelier PRO architekten
MFA & GGZ Zeeheldenbuurt
atelier PRO architekten
Haagse Hogeschool Plein +
atelier PRO architekten
ROC Graafschap College
atelier PRO architekten
Studieopdracht hoofdkantoor Loyens & Loeff
atelier PRO architekten
Gemeentehuis Bronckhorst inclusief interieur
atelier PRO architekten
Woningen Zeeheldenbuurt
atelier PRO architekten
Prinsenhof
atelier PRO architekten
Trias VMBO school
atelier PRO architekten
Bibliotheek Bijzondere collectie Universiteit
atelier PRO architekten
Prinsenhof
atelier PRO architekten
Parkwoningen Craeyenburch
atelier PRO architekten
Prinsenhof
atelier PRO architekten
Studentenhuisvesting Laakhaven
atelier PRO architekten
Daltonschool Columbus
atelier PRO architekten
International School of The Hague
atelier PRO architekten
Politieacademie
atelier PRO architekten
Ludgerhof
atelier PRO architekten
Factorium
atelier PRO architekten
Brede school en woningen Berkel & Rodenrijs
atelier PRO architekten
Seniorenwoningen Krispijn
atelier PRO architekten
Trias VMBO school
atelier PRO architekten
Holland Park, Warschau
atelier PRO architekten
Vensterschool
atelier PRO architekten
Nieuw Land Erfgoedcentrum
atelier PRO architekten
Basisschool Paschalis en kinderopvang Jonas
atelier PRO architekten
Winkelcentrum Carnisse Veste
atelier PRO architekten
Stationsgebied
atelier PRO architekten
Wooncomplex Hage Hoek
atelier PRO architekten
De Brink Vathorst
atelier PRO architekten
Watertoren Entrepot-West
atelier PRO architekten
Rembrandthof
atelier PRO architekten
Kantoorgebouw Forum
atelier PRO architekten
Haagse Hogeschool
atelier PRO architekten
Euro-College
atelier PRO architekten
Bestuursgebouw Universiteit
atelier PRO architekten
Nederlandse Ambassade, Kiev
atelier PRO architekten
Parkeergarage Laakhaven Hollands Spoor
atelier PRO architekten
Parkeergarage Laakhaven Hollands Spoor
atelier PRO architekten
Toon alles
Andere Projecten
Woonhart Zoetermeer
Houthandel van Dam
Villa aan het water
Houthandel van Dam
Kooi stadion - SC Cambuur
Houthandel van Dam
Veilige daktoegang voor Aan de Molenwerf
Gorter Luiken BV
Veilige daktoegang voor nieuw gemeentehuis
Gorter Luiken BV
Ziekenhuiscomplex Rijeka in Susak, Kroatië
ULMA Architectural Solutions
Luxe Vingui Noir houten uitbouw
Houthandel van Dam
BMV Heerlerbaan - Heerlen
Houthandel van Dam
Watervilla's in de haven van Kortenhoef
Houthandel van Dam
Beatrixhof
Houthandel van Dam
Madonna Antwerpen - Akoestiek als smaakmaker
OWA Benelux - Akoestiek & Design
Renovatie zorginstelling dementie en alzheimer
Storax
Ga naar het projecten-overzicht
Voor een optimale gebruikservaring plaatst Architectenweb functionele cookies. Wat de verschillende cookies precies doen leggen we uit in een
overzicht
. Cookies van social media kun je optioneel
aanzetten
.
Akkoord
Instellingen
Annuleren
OK
Sluiten
Doorgaan
Inloggen
Maak een gratis persoonlijk account aan
Feedback
Feedback
Wij horen graag jouw feedback. Laat je reactie achter en eventueel jouw e-mail adres.
Reactie
Verstuur