Projecten
Producten
Bedrijven
Vacatures
Agenda
Awards
Podcasts
more_horiz
Videos
Magazine
Favorieten
Profiel
Uitloggen
Abonneer je nu op onze nieuwsbrieven!
Abonneren
Nee, bedankt
Ja, denk met me mee rond de
materialisering van mijn project
Producten
Copyright: atelier PRO architekten
Koepel
Copyright: Eva Bloem
Hal
Copyright: Eva Bloem
Copyright: Eva Bloem
Copyright: Eva Bloem
Copyright: Eva Bloem
Copyright: Eva Bloem
Copyright: Eva Bloem
Copyright: Eva Bloem
Copyright: Eva Bloem
Copyright: Eva Bloem
Copyright: Eva Bloem
Copyright: Eva Bloem
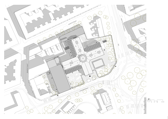
Situatie
Copyright: atelier PRO architekten
Producttags
AAN
UIT
The British School of Amsterdam
20 juli 2018
0
0
0
0
Atelier PRO heeft in 2016, samen met Van Hoogevest Architecten en Buro Sant en Co, de opdracht gewonnen voor de British School Amsterdam.
The British School of Amsterdam (BSA) was gehuisvest op drie verschillende plekken in Amsterdam. Voor de toekomst wilde BSA over één gebouw beschikken waarin de verschillende vier scholen (Early Years, Infant, Junior and Senior) samenkwamen. Bij voorkeur een gebouw met karakter en historie. Deze wens werd verwezenlijkt met de aankoop van de voormalige strafgevangenis aan de Havenstraat 6. Dit gebouw is ontworpen en gerealiseerd in de periode 1888 tot 1891 naar ontwerp van W.C.Metzelaar, rijksingenieur-architect voor gevangenisgebouwen. De BSA verwoorde de opgave voor ons als architecten zeer beknopt als volgt: "De functie van het gebouw waar iedereen uit wil om te draaien naar een school waar iedereen wil blijven".
Visie
In onze visie wilden we het gebouw laten ontwaken in zijn volle glorie als een stadsblok, door groen omzoomd. Met de groene haag brengen we de herinnering van de oude muur terug. Hierachter gaat een karaktervolle ruimte schuil voor lommerrijk verblijf, spel en sport passend bij elke school.
De introverte gevangenis hebben we omgetoverd tot een expressieve kinderwereld waar de vier scholen een eigen plek hebben binnen het geheel. Het DNA van de British School is goed leesbaar. Elke school binnen het geheel toont een eigen karakter dat aansluit bij de leeftijdsgroep.
Vier vleugels
Het programma paste niet in het oorspronkelijke gebouw. Er moest dus nieuwbouw bij geplaatst worden. De bestaande structuur van het gebouw heeft 4 vleugels. Dit maakte het voor de hand liggend om iedere school een vleugel te geven zodat elke school bestaat uit een deel oudbouw aangevuld met nieuwbouw. Door iedere school op de begane grond in een eigen vleugel te huisvesten, hebben ze elk een eigen basis en komt de identiteit vanuit het schoolkarakter en de eigenheid van de leeftijdscategorieën.
Zo ontstaat een prikkelend contrast tussen oud en nieuw. De onderwijsruimtes komen goed tot hun recht binnen de maat en structuur van het monument en versterkt de mogelijkheden van de nieuwbouw. Het zijn nieuwe ruimtes voor het onderwijslandschap, met een
smart structure
om zo duurzaam en toekomstgericht te zijn. Ze zijn zo gezoneerd dat er een natuurlijke overgang ontstaat tussen sociale en dynamische ruimtes en de rustige onderwijsruimte vol concentratie en diepgang.
Eenheid en verscheidenheid
Elke leeftijdscategorie heeft zijn eigen plek, die qua maat de sociale structuren ondersteunen, en waardoor de huiselijke en geborgen sfeer van de British School volledig tot zijn recht komt. Er is één British School ontwikkeld en tegelijkertijd kreeg elke school een eigen smoel binnen het geheel.
Stel jezelf kort voor! Dan weet het betreffende bedrijf wie hun model gedownload heeft.
Wil je niet bij elke download jouw gegevens in hoeven voeren?
Klik dan hier om in te loggen
.
Heb je nog geen account?
Maak dan hier een gratis account aan
.
Voornaam
Achternaam
E-mailadres
Downloaden
Wanneer je modellen downloadt op Architectenweb.nl worden relevante gegevens van jou – zoals jouw naam en e-mailadres – met het betreffende bedrijf gedeeld. Meer hierover lees je in ons
privacybeleid
.
Locatie
Trefwoorden
transformatie
onderwijs
binnenstedelijk
hergebruik
britisch shcool
Architectenweb Awards 2021
Schoolgebouw van het Jaar
Nominatie
Bekijk alle genomineerden
atelier PRO architekten
Neem contact op
Projectdata
Staat van realisatie
Voltooid
Start ontwerpproces
2016
Start bouw
2018
Oplevering
2021
Ingebruikname
2021
Plaats
Amsterdam
Bruto m
2
14123
Meewerkende partijen
Architect
atelier PRO architekten
Projectarchitect
Dorte Kirstensen, Evelien van Beek
Opdrachtgever
The British School of Amsterdam
Aannemer
Heddes Bouw & Ontwikkeling
Constructeur
IMd Raadgevende Ingenieurs
Adviseurs installaties E & W
Deerns
Fotograaf
Eva Bloem
Landschapsarchitect
Buro Sant en Co landschapsarchitectuur
Adviseur bouwfysica
Deerns
Leveranciers
Overig
Eva Bloem, mosa, Philips Lighting
Vloeren
Forbo Flooring
Neem contact op met
atelier PRO architekten
Je bent momenteel niet ingelogd. Hierdoor is het alleen mogelijk om meer informatie per e-mail op te vragen. Wil je liever gebeld worden of documentatie per post ontvangen?
Klik dan hier om in te loggen
.
Heb je nog geen account?
Maak dan hier een gratis account aan
.
Voornaam
Achternaam
E-mailadres
Opmerkingen
Bij iedere aanvraag worden relevante gegevens van jou gedeeld met het betreffende bedrijf. Meer hierover lees je in ons
privacybeleid
.
Ja, denk met me mee rond de
materialisering van mijn project
Meer projecten van atelier PRO architekten
Eijkman Kliniek
atelier PRO architekten
IGVO International School of Delft
atelier PRO architekten
Kop van het Dok
atelier PRO architekten
Research & Diagnostiek Centrum Adore
atelier PRO architekten
Renovatie Berlage Lyceum, Amsterdam
atelier PRO architekten
Universitair Centrum Psychiatrie UMCG, Groningen
atelier PRO architekten
VMBO Veurs
atelier PRO architekten
Kantoor EDGE Stadium Amsterdam
atelier PRO architekten
Kantoor Anthura Bleiswijk
atelier PRO architekten
Albert Schweitzerschool, Rotterdam
atelier PRO architekten
Obs Pantarijn en Shri Krishna school, Utrecht
atelier PRO architekten
Rudolf Steiner College en School, Haarlem
atelier PRO architekten
Woningen ZuiderDuinen, Den Haag
atelier PRO architekten
Strabrecht College in Geldrop
atelier PRO architekten
Renovatie ING Maple
atelier PRO architekten
Kindcentrum Vosholen
atelier PRO architekten
Lumion Amsterdam schoolinterieur
atelier PRO architekten
Lumion Amsterdam
atelier PRO architekten
Kop van het Dok
atelier PRO architekten
Vakcollege Eindhoven & Aloysius de Roosten
atelier PRO architekten
Bastiaanpoort, Delft
atelier PRO architekten
Levensloopwoningen Achtmaal
atelier PRO architekten
Vitalis College
atelier PRO architekten
Herontwikkeling WTC The Hague
atelier PRO architekten
Uitbreiding Metis Montessori Lyceum
atelier PRO architekten
Koningin Sophiestraat
atelier PRO architekten
Buurschap Roosenhorst Voorschoten
atelier PRO architekten
Revitalisatie Admiraal de Ruyter ziekenhuis
atelier PRO architekten
Liseo Boneriano, Scholengemeenschap Bonaire
atelier PRO architekten
Verbindingstunnel van Heekgarage, Enschede
atelier PRO architekten
HAVO/VWO Carmel College Salland
atelier PRO architekten
Inbreiding & herinrichting Museum Allard Pierson
atelier PRO architekten
Vrijzinnig Christelijk Lyceum (VCL)
atelier PRO architekten
Letovo School Campus Moscow
atelier PRO architekten
IJburg college 2
atelier PRO architekten
Woonzorgcentrum Scheldehof
atelier PRO architekten
Cultuurhuis Winschoten inclusief interieur
atelier PRO architekten
MEANDER MEDISCH CENTRUM
atelier PRO architekten
Koepoortlocatie
atelier PRO architekten
Villa Strating
atelier PRO architekten
Wonen in Weelde
atelier PRO architekten
Housing Lakenham
atelier PRO architekten
Woningen Groeseind
atelier PRO architekten
Arendsdorp
atelier PRO architekten
Woningen Malburgen
atelier PRO architekten
D&B VERNIEUWBOUW EDITH STEIN COLLEGE
atelier PRO architekten
Verwaltungsgebaude IKK in Saarbrucken
atelier PRO architekten
NIEUW INTERIEUR WTC TOREN C
atelier PRO architekten
BASISSCHOLEN BINNENSTAD, BRIELLE
atelier PRO architekten
Onderwijspark Ezinge
atelier PRO architekten
Metis Montessori Lyceum Oosterpark
atelier PRO architekten
Interieur Stadhuiskwartier
atelier PRO architekten
Interieur Zorgcentrum Willibrord
atelier PRO architekten
Interieur gemeentehuis Zeist
atelier PRO architekten
MFA Huis van de Heuvel
atelier PRO architekten
Urban villa's Westeram
atelier PRO architekten
Nelson Mandela Centrum
atelier PRO architekten
Regiokantoren Enexis
atelier PRO architekten
Regiokantoren Enexis
atelier PRO architekten
Deal Ground & May Gurney
atelier PRO architekten
Cultuurhuis Winschoten inclusief interieur
atelier PRO architekten
MFA & GGZ Zeeheldenbuurt
atelier PRO architekten
Haagse Hogeschool Plein +
atelier PRO architekten
ROC Graafschap College
atelier PRO architekten
Studieopdracht hoofdkantoor Loyens & Loeff
atelier PRO architekten
Gemeentehuis Bronckhorst inclusief interieur
atelier PRO architekten
Woningen Zeeheldenbuurt
atelier PRO architekten
Prinsenhof
atelier PRO architekten
Trias VMBO school
atelier PRO architekten
Bibliotheek Bijzondere collectie Universiteit
atelier PRO architekten
Prinsenhof
atelier PRO architekten
Parkwoningen Craeyenburch
atelier PRO architekten
Prinsenhof
atelier PRO architekten
Studentenhuisvesting Laakhaven
atelier PRO architekten
Daltonschool Columbus
atelier PRO architekten
International School of The Hague
atelier PRO architekten
Politieacademie
atelier PRO architekten
Ludgerhof
atelier PRO architekten
Factorium
atelier PRO architekten
Brede school en woningen Berkel & Rodenrijs
atelier PRO architekten
Seniorenwoningen Krispijn
atelier PRO architekten
Trias VMBO school
atelier PRO architekten
Holland Park, Warschau
atelier PRO architekten
Vensterschool
atelier PRO architekten
Nieuw Land Erfgoedcentrum
atelier PRO architekten
Basisschool Paschalis en kinderopvang Jonas
atelier PRO architekten
Winkelcentrum Carnisse Veste
atelier PRO architekten
Stationsgebied
atelier PRO architekten
Wooncomplex Hage Hoek
atelier PRO architekten
De Brink Vathorst
atelier PRO architekten
Watertoren Entrepot-West
atelier PRO architekten
Rembrandthof
atelier PRO architekten
Kantoorgebouw Forum
atelier PRO architekten
Haagse Hogeschool
atelier PRO architekten
Euro-College
atelier PRO architekten
Bestuursgebouw Universiteit
atelier PRO architekten
Nederlandse Ambassade, Kiev
atelier PRO architekten
Parkeergarage Laakhaven Hollands Spoor
atelier PRO architekten
Parkeergarage Laakhaven Hollands Spoor
atelier PRO architekten
Eijkman Kliniek
atelier PRO architekten
IGVO International School of Delft
atelier PRO architekten
Kop van het Dok
atelier PRO architekten
Research & Diagnostiek Centrum Adore
atelier PRO architekten
Renovatie Berlage Lyceum, Amsterdam
atelier PRO architekten
Universitair Centrum Psychiatrie UMCG, Groningen
atelier PRO architekten
VMBO Veurs
atelier PRO architekten
Kantoor EDGE Stadium Amsterdam
atelier PRO architekten
Kantoor Anthura Bleiswijk
atelier PRO architekten
Albert Schweitzerschool, Rotterdam
atelier PRO architekten
Obs Pantarijn en Shri Krishna school, Utrecht
atelier PRO architekten
Rudolf Steiner College en School, Haarlem
atelier PRO architekten
Woningen ZuiderDuinen, Den Haag
atelier PRO architekten
Strabrecht College in Geldrop
atelier PRO architekten
Renovatie ING Maple
atelier PRO architekten
Kindcentrum Vosholen
atelier PRO architekten
Lumion Amsterdam schoolinterieur
atelier PRO architekten
Lumion Amsterdam
atelier PRO architekten
Kop van het Dok
atelier PRO architekten
Vakcollege Eindhoven & Aloysius de Roosten
atelier PRO architekten
Bastiaanpoort, Delft
atelier PRO architekten
Levensloopwoningen Achtmaal
atelier PRO architekten
Vitalis College
atelier PRO architekten
Herontwikkeling WTC The Hague
atelier PRO architekten
Uitbreiding Metis Montessori Lyceum
atelier PRO architekten
Koningin Sophiestraat
atelier PRO architekten
Buurschap Roosenhorst Voorschoten
atelier PRO architekten
Revitalisatie Admiraal de Ruyter ziekenhuis
atelier PRO architekten
Liseo Boneriano, Scholengemeenschap Bonaire
atelier PRO architekten
Verbindingstunnel van Heekgarage, Enschede
atelier PRO architekten
HAVO/VWO Carmel College Salland
atelier PRO architekten
Inbreiding & herinrichting Museum Allard Pierson
atelier PRO architekten
Vrijzinnig Christelijk Lyceum (VCL)
atelier PRO architekten
Letovo School Campus Moscow
atelier PRO architekten
IJburg college 2
atelier PRO architekten
Woonzorgcentrum Scheldehof
atelier PRO architekten
Cultuurhuis Winschoten inclusief interieur
atelier PRO architekten
MEANDER MEDISCH CENTRUM
atelier PRO architekten
Koepoortlocatie
atelier PRO architekten
Villa Strating
atelier PRO architekten
Wonen in Weelde
atelier PRO architekten
Housing Lakenham
atelier PRO architekten
Woningen Groeseind
atelier PRO architekten
Arendsdorp
atelier PRO architekten
Woningen Malburgen
atelier PRO architekten
D&B VERNIEUWBOUW EDITH STEIN COLLEGE
atelier PRO architekten
Verwaltungsgebaude IKK in Saarbrucken
atelier PRO architekten
NIEUW INTERIEUR WTC TOREN C
atelier PRO architekten
BASISSCHOLEN BINNENSTAD, BRIELLE
atelier PRO architekten
Onderwijspark Ezinge
atelier PRO architekten
Metis Montessori Lyceum Oosterpark
atelier PRO architekten
Interieur Stadhuiskwartier
atelier PRO architekten
Interieur Zorgcentrum Willibrord
atelier PRO architekten
Interieur gemeentehuis Zeist
atelier PRO architekten
MFA Huis van de Heuvel
atelier PRO architekten
Urban villa's Westeram
atelier PRO architekten
Nelson Mandela Centrum
atelier PRO architekten
Regiokantoren Enexis
atelier PRO architekten
Regiokantoren Enexis
atelier PRO architekten
Deal Ground & May Gurney
atelier PRO architekten
Cultuurhuis Winschoten inclusief interieur
atelier PRO architekten
MFA & GGZ Zeeheldenbuurt
atelier PRO architekten
Haagse Hogeschool Plein +
atelier PRO architekten
ROC Graafschap College
atelier PRO architekten
Studieopdracht hoofdkantoor Loyens & Loeff
atelier PRO architekten
Gemeentehuis Bronckhorst inclusief interieur
atelier PRO architekten
Woningen Zeeheldenbuurt
atelier PRO architekten
Prinsenhof
atelier PRO architekten
Trias VMBO school
atelier PRO architekten
Bibliotheek Bijzondere collectie Universiteit
atelier PRO architekten
Prinsenhof
atelier PRO architekten
Parkwoningen Craeyenburch
atelier PRO architekten
Prinsenhof
atelier PRO architekten
Studentenhuisvesting Laakhaven
atelier PRO architekten
Daltonschool Columbus
atelier PRO architekten
International School of The Hague
atelier PRO architekten
Politieacademie
atelier PRO architekten
Ludgerhof
atelier PRO architekten
Factorium
atelier PRO architekten
Brede school en woningen Berkel & Rodenrijs
atelier PRO architekten
Seniorenwoningen Krispijn
atelier PRO architekten
Trias VMBO school
atelier PRO architekten
Holland Park, Warschau
atelier PRO architekten
Vensterschool
atelier PRO architekten
Nieuw Land Erfgoedcentrum
atelier PRO architekten
Basisschool Paschalis en kinderopvang Jonas
atelier PRO architekten
Winkelcentrum Carnisse Veste
atelier PRO architekten
Stationsgebied
atelier PRO architekten
Wooncomplex Hage Hoek
atelier PRO architekten
De Brink Vathorst
atelier PRO architekten
Watertoren Entrepot-West
atelier PRO architekten
Rembrandthof
atelier PRO architekten
Kantoorgebouw Forum
atelier PRO architekten
Haagse Hogeschool
atelier PRO architekten
Euro-College
atelier PRO architekten
Bestuursgebouw Universiteit
atelier PRO architekten
Nederlandse Ambassade, Kiev
atelier PRO architekten
Parkeergarage Laakhaven Hollands Spoor
atelier PRO architekten
Parkeergarage Laakhaven Hollands Spoor
atelier PRO architekten
Toon alles
Andere Projecten
De stad van Aedes: waar werken wonen wordt
Tétris Design & Build
Nieuwbouw Residentie ZICHT Venlo
Knauf Insulation
Light House
Studioninedots
Nieuwbouw Slingeland Ziekenhuis Doetinchem
Knauf Insulation
Fraké Noir gevelbekleding op sanitairgebouw
Houthandel van Dam
The Family Delft
Houthandel van Dam
Houtlook lamellen voor aantrekkelijke nieuwbouw
Renson
De Toerist in Breda
DUCO Ventilation & Sun Control
Solarlux vouwwanden - Zuidkade Scheveningen
Solarlux Nederland B.V.
Multifunctioneel gebouw met aluminium vliesgevel
Aliplast Aluminium Systems
Van gesloten gevel naar transparant visitekaartje
Rockpanel
Den Hartogh Basecamp (Video)
Schüco Nederland
Ga naar het projecten-overzicht
Voor een optimale gebruikservaring plaatst Architectenweb functionele cookies. Wat de verschillende cookies precies doen leggen we uit in een
overzicht
. Cookies van social media kun je optioneel
aanzetten
.
Akkoord
Instellingen
Annuleren
OK
Sluiten
Doorgaan
Inloggen
Maak een gratis persoonlijk account aan
Feedback
Feedback
Wij horen graag jouw feedback. Laat je reactie achter en eventueel jouw e-mail adres.
Reactie
Verstuur