Projecten
Producten
Bedrijven
Vacatures
Agenda
Awards
Podcasts
more_horiz
Videos
Magazine
Favorieten
Profiel
Uitloggen
Abonneer je nu op onze nieuwsbrieven!
Abonneren
Nee, bedankt
Ja, denk met me mee rond de
materialisering van mijn project
Producten
Situatie
Doorsnede
Doorsnede
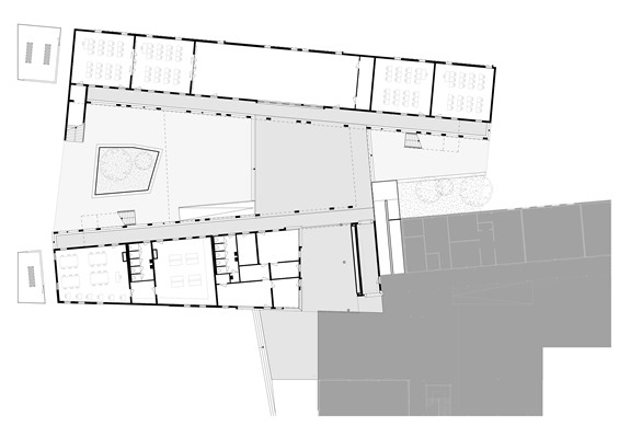
Plattegrond begane grond
Plattegrond eerste verdieping
Producttags
AAN
UIT
Liseo Boneriano, Scholengemeenschap Bonaire
19 juli 2018
0
0
0
0
Het Liseo Boneriano op het Caraïbische eiland Bonaire, is een middelbare school met een MAVO, HAVO en VWO. Een deel van de school was ondergebracht in een gebouw aan de Kaya Amsterdam in Kralendijk. Het aantal leerlingen is de laatste jaren flink toegenomen waardoor de behoefte ontstond aan uitbreiding op deze locatie. Het team atelier PRO architekten en Jacobs architekten ontwierp een uitbreiding waar nu ook de
onderbouw en bovenbouw les kunnen krijgen.
Het belangrijkste kenmerk van deze nieuwbouw is dat samen met de bestaande gebouwen een elegant nieuw ensemble is ontstaan met veel aandacht voor de ruimte buiten de gebouwen. Het gaat om het publiek domein waar leerlingen en docenten elkaar op een ontspannen manier treffen.
Niet alleen de functionele onderwijsvoorzieningen zijn hiermee vernieuwd maar Bonaire beschikt nu over een belangrijk en aantrekkelijk onderwijslandschap waar interactie centraal staat.
Eenheid in het gebouwenensemble
Voor de nieuw toegevoegde bouwdelen kozen de architecten ervoor om verder te werken in de kloeke en basale vormtaal van de oorspronkelijke bebouwing en deze verder te verrijken met lokale architectuurdetails en kleuren. Dit leidde tot de oplossing om samenhang te creëren tussen de gebouwdelen van het ensemble; bestaand en nieuw vloeien samen tot één geheel.
Overdekking
Typerend voor de lokale architectuur zijn de royale overdekte buitenruimte en overstekken. Die beschaduwen de gevel en de ruimte buiten waardoor deze als onderwijsruimte gebruikt kan worden. Ook typerend zijn de geprononceerde raamkaders met diepe neggen om zonnestralen buiten te houden. Kenmerkend voor het eiland is het open Bonairiaanse metselwerk waar de wind vrijelijk doorheen blaast, maar de zon buiten houdt.
'Couleur locale'
De constant waaiende zeewind en schaduw zorgen voor verkoeling op dit zonnige eiland. Bij de nieuwbouw zijn ontwerpelementen toegepast die afgestemd zijn op deze typisch lokale klimaatfactoren. Maar nog meer haalden de architecten inspiratie uit de kleuren van gebouwen en het landschap op Bonaire; een aangename afwisseling tussen aardse tinten en felle accentkleuren. De middelbare school kreeg aan de binnenzijde een festijn aan kleuren met warme gele en oranje tinten, koele blauwe kleuren. Hierdoor is er samenhang en eenheid gebracht tussen het bestaande gebouw en de nieuwe bouwdelen. Zo kreeg deze middelbare school een uitgesproken eigenheid. Koel en Caraïbisch.
Informeel ontmoeten
Er is een scherp contrast ontstaan tussen de kale hete en afstandelijke ruwe cactus begroeiing aan de buitenzijde van de school en de kleurrijke binnenzijde van de school. Zoals een tropische vrucht, ruw en hard van buiten en aantrekkelijk van binnen. Binnen kwam er een nieuw publiek domein, een interactiezone waar leerlingen en docenten elkaar in een andere sfeer ontmoeten, informeel en buiten de klas.
Verkeerscirculatie
In de Caraïben is het gebruikelijk om de verkeerscirculatieruimte in de buitenlucht te situeren, in de schaduw en door de zeewind gekoeld. Centrale aula en schoolplein zijn samengetrokken tot een overdekte ruimte, buiten tussen de bouwdelen, in de schaduw van de overkapping en gekoeld van de zeewind. Hier kunnen leerlingen en personeel buiten werken. Informeel ontmoeten krijgt letterlijk een eigen en specifiek Caraïbische sfeer.
Wind oriëntatie
De nieuwe bouwdelen zijn net zoals het bestaande gebouw ontworpen als twee langwerpige blokken. Deze zijn oost-west op de wind georiënteerd. Een bouwdeel in het verlengde van het bestaande, de andere parallel daaraan. De ruimte tussen de nieuwe bouwdelen werd overdekt voor de schaduw. Aan de binnenzijde zitten de galerijen, net zoals bij de bestaande bouwdelen. Hier bij de galerijen en onder het dak werden de felle kleuraccenten aangebracht. De buitenzijde van de bouwdelen zijn voorzien van aardetinten.
Perspectiefwerking
De nieuwe bouwdelen kregen net zoals de bestaande bouwdelen een kleine verdraaiing mee zodat een perspectiefwerking ontstaat van deze taps toelopende binnenruimten. Naar één kant toe lijkt de ruimte korter, terwijl naar de andere kant toe de ruimte langer lijkt.
Nieuwe logistiek
Om de logistiek binnen het gebouw en de aansluiting met buiten te verbeteren is er een nieuwe entree gemaakt precies tussen het oude en nieuwe deel in. De theorielokalen en het leercentrum zijn in het noordelijk bouwdeel gesitueerd. De andere schoolonderdelen zijn in het zuidelijk bouwdeel in het centrum, gesitueerd. Hier zit ook het docentencluster en de administratie. Dit maakt continu toezicht op het overkapte schoolplein mogelijk.
Rond de gebouwen is ruimte om in de toekomst sportvelden te realiseren. Door de nieuwe logistiek ervaar je de eenheid van het gebouwenensemble sterk. Er is een plek ontstaan die het informeel ontmoeten stimuleert in een aantrekkelijk publiek domein voor de jeugd van Bonaire.
Stel jezelf kort voor! Dan weet het betreffende bedrijf wie hun model gedownload heeft.
Wil je niet bij elke download jouw gegevens in hoeven voeren?
Klik dan hier om in te loggen
.
Heb je nog geen account?
Maak dan hier een gratis account aan
.
Voornaam
Achternaam
E-mailadres
Downloaden
Wanneer je modellen downloadt op Architectenweb.nl worden relevante gegevens van jou – zoals jouw naam en e-mailadres – met het betreffende bedrijf gedeeld. Meer hierover lees je in ons
privacybeleid
.
atelier PRO architekten
Neem contact op
Projectdata
Staat van realisatie
Voltooid
Start bouw
2018
Bruto m
2
1500
Neem contact op met
atelier PRO architekten
Je bent momenteel niet ingelogd. Hierdoor is het alleen mogelijk om meer informatie per e-mail op te vragen. Wil je liever gebeld worden of documentatie per post ontvangen?
Klik dan hier om in te loggen
.
Heb je nog geen account?
Maak dan hier een gratis account aan
.
Voornaam
Achternaam
E-mailadres
Opmerkingen
Bij iedere aanvraag worden relevante gegevens van jou gedeeld met het betreffende bedrijf. Meer hierover lees je in ons
privacybeleid
.
Ja, denk met me mee rond de
materialisering van mijn project
Meer projecten van atelier PRO architekten
Eijkman Kliniek
atelier PRO architekten
IGVO International School of Delft
atelier PRO architekten
Kop van het Dok
atelier PRO architekten
Research & Diagnostiek Centrum Adore
atelier PRO architekten
Renovatie Berlage Lyceum, Amsterdam
atelier PRO architekten
Universitair Centrum Psychiatrie UMCG, Groningen
atelier PRO architekten
VMBO Veurs
atelier PRO architekten
Kantoor EDGE Stadium Amsterdam
atelier PRO architekten
Kantoor Anthura Bleiswijk
atelier PRO architekten
Albert Schweitzerschool, Rotterdam
atelier PRO architekten
Obs Pantarijn en Shri Krishna school, Utrecht
atelier PRO architekten
Rudolf Steiner College en School, Haarlem
atelier PRO architekten
Woningen ZuiderDuinen, Den Haag
atelier PRO architekten
Strabrecht College in Geldrop
atelier PRO architekten
Renovatie ING Maple
atelier PRO architekten
Kindcentrum Vosholen
atelier PRO architekten
Lumion Amsterdam schoolinterieur
atelier PRO architekten
Lumion Amsterdam
atelier PRO architekten
Kop van het Dok
atelier PRO architekten
Vakcollege Eindhoven & Aloysius de Roosten
atelier PRO architekten
Bastiaanpoort, Delft
atelier PRO architekten
Levensloopwoningen Achtmaal
atelier PRO architekten
Vitalis College
atelier PRO architekten
Herontwikkeling WTC The Hague
atelier PRO architekten
Uitbreiding Metis Montessori Lyceum
atelier PRO architekten
Koningin Sophiestraat
atelier PRO architekten
The British School of Amsterdam
atelier PRO architekten
Buurschap Roosenhorst Voorschoten
atelier PRO architekten
Revitalisatie Admiraal de Ruyter ziekenhuis
atelier PRO architekten
Verbindingstunnel van Heekgarage, Enschede
atelier PRO architekten
HAVO/VWO Carmel College Salland
atelier PRO architekten
Inbreiding & herinrichting Museum Allard Pierson
atelier PRO architekten
Vrijzinnig Christelijk Lyceum (VCL)
atelier PRO architekten
Letovo School Campus Moscow
atelier PRO architekten
IJburg college 2
atelier PRO architekten
Woonzorgcentrum Scheldehof
atelier PRO architekten
Cultuurhuis Winschoten inclusief interieur
atelier PRO architekten
MEANDER MEDISCH CENTRUM
atelier PRO architekten
Koepoortlocatie
atelier PRO architekten
Villa Strating
atelier PRO architekten
Wonen in Weelde
atelier PRO architekten
Housing Lakenham
atelier PRO architekten
Woningen Groeseind
atelier PRO architekten
Arendsdorp
atelier PRO architekten
Woningen Malburgen
atelier PRO architekten
D&B VERNIEUWBOUW EDITH STEIN COLLEGE
atelier PRO architekten
Verwaltungsgebaude IKK in Saarbrucken
atelier PRO architekten
NIEUW INTERIEUR WTC TOREN C
atelier PRO architekten
BASISSCHOLEN BINNENSTAD, BRIELLE
atelier PRO architekten
Onderwijspark Ezinge
atelier PRO architekten
Metis Montessori Lyceum Oosterpark
atelier PRO architekten
Interieur Stadhuiskwartier
atelier PRO architekten
Interieur Zorgcentrum Willibrord
atelier PRO architekten
Interieur gemeentehuis Zeist
atelier PRO architekten
MFA Huis van de Heuvel
atelier PRO architekten
Urban villa's Westeram
atelier PRO architekten
Nelson Mandela Centrum
atelier PRO architekten
Regiokantoren Enexis
atelier PRO architekten
Regiokantoren Enexis
atelier PRO architekten
Deal Ground & May Gurney
atelier PRO architekten
Cultuurhuis Winschoten inclusief interieur
atelier PRO architekten
MFA & GGZ Zeeheldenbuurt
atelier PRO architekten
Haagse Hogeschool Plein +
atelier PRO architekten
ROC Graafschap College
atelier PRO architekten
Studieopdracht hoofdkantoor Loyens & Loeff
atelier PRO architekten
Gemeentehuis Bronckhorst inclusief interieur
atelier PRO architekten
Woningen Zeeheldenbuurt
atelier PRO architekten
Prinsenhof
atelier PRO architekten
Trias VMBO school
atelier PRO architekten
Bibliotheek Bijzondere collectie Universiteit
atelier PRO architekten
Prinsenhof
atelier PRO architekten
Parkwoningen Craeyenburch
atelier PRO architekten
Prinsenhof
atelier PRO architekten
Studentenhuisvesting Laakhaven
atelier PRO architekten
Daltonschool Columbus
atelier PRO architekten
International School of The Hague
atelier PRO architekten
Politieacademie
atelier PRO architekten
Ludgerhof
atelier PRO architekten
Factorium
atelier PRO architekten
Brede school en woningen Berkel & Rodenrijs
atelier PRO architekten
Seniorenwoningen Krispijn
atelier PRO architekten
Trias VMBO school
atelier PRO architekten
Holland Park, Warschau
atelier PRO architekten
Vensterschool
atelier PRO architekten
Nieuw Land Erfgoedcentrum
atelier PRO architekten
Basisschool Paschalis en kinderopvang Jonas
atelier PRO architekten
Winkelcentrum Carnisse Veste
atelier PRO architekten
Stationsgebied
atelier PRO architekten
Wooncomplex Hage Hoek
atelier PRO architekten
De Brink Vathorst
atelier PRO architekten
Watertoren Entrepot-West
atelier PRO architekten
Rembrandthof
atelier PRO architekten
Kantoorgebouw Forum
atelier PRO architekten
Haagse Hogeschool
atelier PRO architekten
Euro-College
atelier PRO architekten
Bestuursgebouw Universiteit
atelier PRO architekten
Nederlandse Ambassade, Kiev
atelier PRO architekten
Parkeergarage Laakhaven Hollands Spoor
atelier PRO architekten
Parkeergarage Laakhaven Hollands Spoor
atelier PRO architekten
Eijkman Kliniek
atelier PRO architekten
IGVO International School of Delft
atelier PRO architekten
Kop van het Dok
atelier PRO architekten
Research & Diagnostiek Centrum Adore
atelier PRO architekten
Renovatie Berlage Lyceum, Amsterdam
atelier PRO architekten
Universitair Centrum Psychiatrie UMCG, Groningen
atelier PRO architekten
VMBO Veurs
atelier PRO architekten
Kantoor EDGE Stadium Amsterdam
atelier PRO architekten
Kantoor Anthura Bleiswijk
atelier PRO architekten
Albert Schweitzerschool, Rotterdam
atelier PRO architekten
Obs Pantarijn en Shri Krishna school, Utrecht
atelier PRO architekten
Rudolf Steiner College en School, Haarlem
atelier PRO architekten
Woningen ZuiderDuinen, Den Haag
atelier PRO architekten
Strabrecht College in Geldrop
atelier PRO architekten
Renovatie ING Maple
atelier PRO architekten
Kindcentrum Vosholen
atelier PRO architekten
Lumion Amsterdam schoolinterieur
atelier PRO architekten
Lumion Amsterdam
atelier PRO architekten
Kop van het Dok
atelier PRO architekten
Vakcollege Eindhoven & Aloysius de Roosten
atelier PRO architekten
Bastiaanpoort, Delft
atelier PRO architekten
Levensloopwoningen Achtmaal
atelier PRO architekten
Vitalis College
atelier PRO architekten
Herontwikkeling WTC The Hague
atelier PRO architekten
Uitbreiding Metis Montessori Lyceum
atelier PRO architekten
Koningin Sophiestraat
atelier PRO architekten
The British School of Amsterdam
atelier PRO architekten
Buurschap Roosenhorst Voorschoten
atelier PRO architekten
Revitalisatie Admiraal de Ruyter ziekenhuis
atelier PRO architekten
Verbindingstunnel van Heekgarage, Enschede
atelier PRO architekten
HAVO/VWO Carmel College Salland
atelier PRO architekten
Inbreiding & herinrichting Museum Allard Pierson
atelier PRO architekten
Vrijzinnig Christelijk Lyceum (VCL)
atelier PRO architekten
Letovo School Campus Moscow
atelier PRO architekten
IJburg college 2
atelier PRO architekten
Woonzorgcentrum Scheldehof
atelier PRO architekten
Cultuurhuis Winschoten inclusief interieur
atelier PRO architekten
MEANDER MEDISCH CENTRUM
atelier PRO architekten
Koepoortlocatie
atelier PRO architekten
Villa Strating
atelier PRO architekten
Wonen in Weelde
atelier PRO architekten
Housing Lakenham
atelier PRO architekten
Woningen Groeseind
atelier PRO architekten
Arendsdorp
atelier PRO architekten
Woningen Malburgen
atelier PRO architekten
D&B VERNIEUWBOUW EDITH STEIN COLLEGE
atelier PRO architekten
Verwaltungsgebaude IKK in Saarbrucken
atelier PRO architekten
NIEUW INTERIEUR WTC TOREN C
atelier PRO architekten
BASISSCHOLEN BINNENSTAD, BRIELLE
atelier PRO architekten
Onderwijspark Ezinge
atelier PRO architekten
Metis Montessori Lyceum Oosterpark
atelier PRO architekten
Interieur Stadhuiskwartier
atelier PRO architekten
Interieur Zorgcentrum Willibrord
atelier PRO architekten
Interieur gemeentehuis Zeist
atelier PRO architekten
MFA Huis van de Heuvel
atelier PRO architekten
Urban villa's Westeram
atelier PRO architekten
Nelson Mandela Centrum
atelier PRO architekten
Regiokantoren Enexis
atelier PRO architekten
Regiokantoren Enexis
atelier PRO architekten
Deal Ground & May Gurney
atelier PRO architekten
Cultuurhuis Winschoten inclusief interieur
atelier PRO architekten
MFA & GGZ Zeeheldenbuurt
atelier PRO architekten
Haagse Hogeschool Plein +
atelier PRO architekten
ROC Graafschap College
atelier PRO architekten
Studieopdracht hoofdkantoor Loyens & Loeff
atelier PRO architekten
Gemeentehuis Bronckhorst inclusief interieur
atelier PRO architekten
Woningen Zeeheldenbuurt
atelier PRO architekten
Prinsenhof
atelier PRO architekten
Trias VMBO school
atelier PRO architekten
Bibliotheek Bijzondere collectie Universiteit
atelier PRO architekten
Prinsenhof
atelier PRO architekten
Parkwoningen Craeyenburch
atelier PRO architekten
Prinsenhof
atelier PRO architekten
Studentenhuisvesting Laakhaven
atelier PRO architekten
Daltonschool Columbus
atelier PRO architekten
International School of The Hague
atelier PRO architekten
Politieacademie
atelier PRO architekten
Ludgerhof
atelier PRO architekten
Factorium
atelier PRO architekten
Brede school en woningen Berkel & Rodenrijs
atelier PRO architekten
Seniorenwoningen Krispijn
atelier PRO architekten
Trias VMBO school
atelier PRO architekten
Holland Park, Warschau
atelier PRO architekten
Vensterschool
atelier PRO architekten
Nieuw Land Erfgoedcentrum
atelier PRO architekten
Basisschool Paschalis en kinderopvang Jonas
atelier PRO architekten
Winkelcentrum Carnisse Veste
atelier PRO architekten
Stationsgebied
atelier PRO architekten
Wooncomplex Hage Hoek
atelier PRO architekten
De Brink Vathorst
atelier PRO architekten
Watertoren Entrepot-West
atelier PRO architekten
Rembrandthof
atelier PRO architekten
Kantoorgebouw Forum
atelier PRO architekten
Haagse Hogeschool
atelier PRO architekten
Euro-College
atelier PRO architekten
Bestuursgebouw Universiteit
atelier PRO architekten
Nederlandse Ambassade, Kiev
atelier PRO architekten
Parkeergarage Laakhaven Hollands Spoor
atelier PRO architekten
Parkeergarage Laakhaven Hollands Spoor
atelier PRO architekten
Toon alles
Andere Projecten
Skistation Monte Zoncolan
SSAB Swedish Steel BV
CPO Vondelstaete Amersfoort: Passief Wonen
Sto Isoned bv
Solar groendak bij afvalbrengpunt Oldenzaal
Sempergreen
Nieuw interieur Holiday Inn
Kronospan
Esthetische dakoplossingen in Nederland
Joris Ide
Noordwest Ziekenhuisgroep Alkmaar
Gortemaker Algra Feenstra architects
de Telefoondienst: Transformatie en optopping
Ronald Janssen Architecten
Circulaire primeur: eerste Second High-gevel
Pretty Plastic
Houtrak Amsterdam
WEBO
Meerweide Aafje
Holonite B.V.
Slimme afvaloplossing in een duurzaam zorggebouw
Stansz
De entree als het begin van een culturele ervaring
EMCO Benelux B.V.
Ga naar het projecten-overzicht
Voor een optimale gebruikservaring plaatst Architectenweb functionele cookies. Wat de verschillende cookies precies doen leggen we uit in een
overzicht
. Cookies van social media kun je optioneel
aanzetten
.
Akkoord
Instellingen
Annuleren
OK
Sluiten
Doorgaan
Inloggen
Maak een gratis persoonlijk account aan
Feedback
Feedback
Wij horen graag jouw feedback. Laat je reactie achter en eventueel jouw e-mail adres.
Reactie
Verstuur