Abonneer je nu op onze nieuwsbrieven!
Abonneren
Nee, bedankt
Ja, denk met me mee rond de
materialisering van mijn project
Producten
Copyright: Petra Appelhof
Copyright: Petra Appelhof
Copyright: Petra Appelhof
Copyright: Petra Appelhof
Copyright: Petra Appelhof
Copyright: Petra Appelhof
Copyright: Petra Appelhof
Copyright: Petra Appelhof
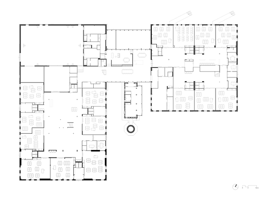
Begane grond
ProducttagsAANUIT

Kindcentrum Vosholen

15 december 2020
In het Groningse landschap bij de veendorpen Hoogezand en Sappemeer ligt Kindcentrum Vosholen, een stoer, rood gebouw in een parkachtig landschap. Het ligt in de woonwijk Vosholen, ten zuidoosten van het dorpscentrum. Bij de ontwikkeling van de wijk is het oude cultuurlandschap van veenontginning als uitgangspunt genomen. Op de kavel staat een oud ketelhuis met gemetselde schoorsteen (gemeentelijk monument) – een herinnering uit de tijd dat hier nog kassen stonden. Voor PRO was dit een belangrijk element om op te nemen in het ontwerp van het kindcentrum.

Verwijzing naar boeren verleden
Het kindcentrum heeft een uiterlijk dat verwijst naar het boeren verleden van de omgeving. Het bestaat uit twee gekoppelde bouwmassa’s, met ketelhuis en schoorsteen daartussen. Een robuust ensemble met gemetselde gevels van roodoranje baksteen en gewelfde dakpannen. De basis is aangevuld met een palet aan rode tinten en bijzondere metselwerkvlakken die het geheel meer diepte en karakter geven.

Meervoudig gebruik en flexibel
In het gebouw zijn twee basisscholen (Theo Thijssenschool en Sint Antoniusschool)  een kinderdagverblijf, een buitenschoolse opvang, een peuterspeelzaal en een gymzaal ondergebracht. Door de gebruikers is gekozen voor een naar buiten gerichte opzet waarbij ze ieder zelfstandig kunnen functioneren, met een eigen herkenbare entree, schoolplein, indeling en kleurenpalet. Binnen zijn, door een handige routing, de gemeenschappelijke functies goed bereikbaar en zijn ruimten eenvoudig uit te wisselen.

De realisatie van het gebouw duurde langer dan verwacht. De eerste aannemer ging tijdens de uitvoering failliet. Toen de bouw weer hervat kon worden met een nieuwe aannemer, waren de scholen alweer gegroeid en moesten er een aantal klassen bij, daarnaast moest het gebouw door aangescherpte regelgeving aardbevingsbestendig  gemaakt worden. Hier kwam de kracht van de ontwerp naar voren: met beperkte aanpassingen kon het gebouw met de nieuwe lokalen worden uitgebreid. Voor de aardbevingsbestendigheid is de constructie verstevigd en stijver gemaakt.

Toekomstbestendig
Het interieur is terughouden met veel wit en een aantal vrolijke accenten. De plaatsing van dakramen geeft de compacte vierkante bouwmassa’s binnen een bijzondere lichtval. De indeling en vormgeving van de ruimten laten verschillende onderwijsvisies toe. Klassikaal of individueel onderwijs is door docenten zelf eenvoudig te regelen. De klaslokalen hebben brede glazen schuifdeuren en grote kastenwanden met daarin een wasbak. Het gebouw heeft een solide basisstructuur (constructie, installaties, gangen en trappen) en flexibele indeling met lichte scheidingswanden. Een bijzonder ruimte is de verbinding tussen de twee bouwmassa’s en het ketelhuis. Dit transparante, multifunctionele tussenlid is de vitrine en het hart van het kindcentrum, gemarkeerd door de schoorsteen.

Passief bouwen

Het kindcentrum is een slim en duurzaam gebouw waar zowel de oriëntatie als technische uitwerking geïnspireerd zijn op de principes van passief bouwen. Het heeft de kwaliteit van Frisse Scholen label B. Het gebouw bestaat uit zeer compacte, goed geïsoleerde bouwvolumes (Rc gevel 5, Rc dak 6, drielaags glas, EPC 0,76).  Er is lage temperatuur verwarming met radiatoren in de groepsruimten en plaatselijk vloerverwarming. De gebalanceerde ventilatie is per ruimte CO2-gestuurd. Er is veel natuurlijk daglicht en uitzicht, en tegelijkertijd is de zonbelasting beperkt. Daarnaast is de verlichting energiezuinig uitgevoerd met een daglichtafhankelijke regeling. En er is heel veel te openen. Bij de keuze van materialen waren onderhoud, reiniging en eenvoudig herstel bij beschadiging vertrekpunten. Met al de genoemde maatregelen heeft het gebouw lage exploitatiekosten (energie en onderhoud) in lijn met de Life Cycle Cost gedachte. Met het kindcentrum kreeg de wijk Vosholen een gebouw dat mooi oud zal worden en tot ver in de toekomst zal uitnodigen tot allerlei activiteiten.

Stel jezelf kort voor! Dan weet het betreffende bedrijf wie hun model gedownload heeft.
Wil je niet bij elke download jouw gegevens in hoeven voeren?
Klik dan hier om in te loggen.

Heb je nog geen account? Maak dan hier een gratis account aan.
Voornaam
Achternaam
E-mailadres
Downloaden
Wanneer je modellen downloadt op Architectenweb.nl worden relevante gegevens van jou – zoals jouw naam en e-mailadres – met het betreffende bedrijf gedeeld. Meer hierover lees je in ons privacybeleid.

Locatie

Neem contact op met atelier PRO architekten

Je bent momenteel niet ingelogd. Hierdoor is het alleen mogelijk om meer informatie per e-mail op te vragen. Wil je liever gebeld worden of documentatie per post ontvangen? Klik dan hier om in te loggen.
Heb je nog geen account? Maak dan hier een gratis account aan.
Voornaam
Achternaam
E-mailadres
Opmerkingen
Bij iedere aanvraag worden relevante gegevens van jou gedeeld met het betreffende bedrijf. Meer hierover lees je in ons privacybeleid.
Ja, denk met me mee rond de
materialisering van mijn project

Meer projecten van atelier PRO architekten

atelier PRO architekten
atelier PRO architekten
atelier PRO architekten
atelier PRO architekten
atelier PRO architekten
atelier PRO architekten
atelier PRO architekten
atelier PRO architekten
atelier PRO architekten
atelier PRO architekten
atelier PRO architekten
atelier PRO architekten
atelier PRO architekten
atelier PRO architekten
atelier PRO architekten
atelier PRO architekten
atelier PRO architekten
atelier PRO architekten
atelier PRO architekten
atelier PRO architekten
atelier PRO architekten
atelier PRO architekten
atelier PRO architekten
atelier PRO architekten
atelier PRO architekten
atelier PRO architekten
atelier PRO architekten
atelier PRO architekten
atelier PRO architekten
atelier PRO architekten
atelier PRO architekten
atelier PRO architekten
atelier PRO architekten
atelier PRO architekten
atelier PRO architekten
atelier PRO architekten
atelier PRO architekten
atelier PRO architekten
atelier PRO architekten
atelier PRO architekten
atelier PRO architekten
atelier PRO architekten
atelier PRO architekten
atelier PRO architekten
atelier PRO architekten
atelier PRO architekten
atelier PRO architekten
atelier PRO architekten
atelier PRO architekten
atelier PRO architekten
atelier PRO architekten
atelier PRO architekten
atelier PRO architekten
atelier PRO architekten
atelier PRO architekten
atelier PRO architekten
atelier PRO architekten
atelier PRO architekten
atelier PRO architekten
atelier PRO architekten
atelier PRO architekten
atelier PRO architekten
atelier PRO architekten
atelier PRO architekten
atelier PRO architekten
atelier PRO architekten
atelier PRO architekten
atelier PRO architekten
Toon alles
KUBUS | Specialist in Archicad
SAPA
Reynaers Aluminium Nederland
Jansen
SAB-profiel bv
Aliplast Aluminium Systems
Kingspan Light & Air
ALUCOBOND®
Caparol
Tarkett BV
Kawneer
Grohe Nederland B.V.
Malaysian Timber Council
OCS | Office Cabling Systems
Swisspearl Nederland
Forster Nederland N.V.
VELUX Commercial Benelux B.V.
Sempergreen
Houthandel van Dam
Aluprof Nederland BV
QbiQ Wall Systems
Forbo Flooring
Schüco Nederland
Cedral
Sto Isoned bv
Triflex bv
Gorter Luiken BV
wienerberger
DUCO Ventilation & Sun Control
BEWI IsoBouw
ROCKWOOL B.V.
Mview+
Rockfon (ROCKWOOL B.V.)
Gira Nederland B.V.
Kingspan Geïsoleerde Panelen
GEZE Benelux  B.V.
Renson
Metaglas Groep
ABB | Busch-Jaeger
Jung | Hateha B.V.
Knauf B.V.
Saint-Gobain Glass Benelux
Faay Vianen B.V.
objectflor
Boon Edam Nederland B.V.
Hunter Douglas Architectural
VOLA Nederland BV
Forbo Eurocol Nederland B.V.
EQUITONE gevelpanelen
Holonite B.V.
Kronospan
Tata Steel Colorcoat®
Architectenweb
Over ons
Contact

© 2002 - 2026 Architectenweb BV / Voorwaarden / Privacy / Disclaimer / Sitemap
Annuleren
OK
Sluiten
Doorgaan
Inloggen
Maak een gratis persoonlijk account aan