Projecten
Producten
Bedrijven
Vacatures
Agenda
Awards
Podcasts
more_horiz
Videos
Magazine
Favorieten
Profiel
Uitloggen
Abonneer je nu op onze nieuwsbrieven!
Abonneren
Nee, bedankt
Ja, denk met me mee rond de
materialisering van mijn project
Producten
Entreegebied
Copyright: Dirk Verwoerd
Copyright: Dirk Verwoerd
Copyright: Dirk Verwoerd
Binnentuin
Copyright: Dirk Verwoerd
De Laan
Copyright: Dirk Verwoerd
De Laan
Copyright: Dirk Verwoerd
De Laan
Copyright: John Lewis Marshall
Oranjerie
Copyright: Dirk Verwoerd
De Brink
Copyright: Dirk Verwoerd
Gang
Copyright: Dirk Verwoerd
Overal is zicht op het landschap
Copyright: Dirk Verwoerd
Voor Meander speciaal ontworpen healing sofa
Copyright: Dirk Verwoerd
Eenpersoonskamer
Copyright: Dirk Verwoerd
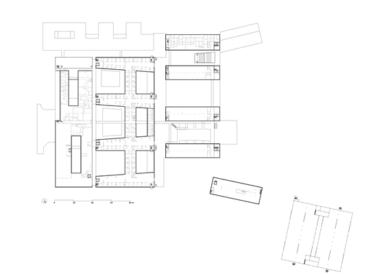
Begane grond en situatie
Eerste verdieping
Tweede verdieping
Producttags
AAN
UIT
MEANDER MEDISCH CENTRUM
5 juni 2018
0
0
0
0
Het nieuwe Meander Medisch Centrum van Amersfoort is een ziekenhuis van een geheel nieuwe orde. Gerealiseerd aan de hand van de principes van 'healing environment' met eenpersoonskamers, veel daglicht en overal zicht op de groene omgeving. Winnaar van de WAN Award Health Care 2014.
Een zorginstelling van meer dan 100.000 m² waar de patiënt centraal staat. Een gebouwensemble waarin men ondanks de grootte wél de weg kan vinden door heldere stedelijke binnenruimten. Ruimten waar het omliggende landschap voelbaar is en verpleegafdelingen en poliklinieken altijd nabij. Kortom een ziekenhuis waar oriëntatie voor bezoekers, en welbevinden en rust voor de patiënten voorop staan. December 2013 werd het ziekenhuis in gebruik genomen.
Winnaar WAN Award Health Care 2014
Meander won de WAN Award Health Care 2014, dankzij de focus op patiënt en bezoeker. De jury vond Meander een welverdiende winnaar. Een aantal jurycommentaren: 'it’s a proper city, which is really hard to pull off well'. En: 'it hits some big innovation buttons in terms of workflow of people. Essentially this is a clinical facility but it has definitely got a sense of humanity at the core'.
Park, Bouwmassa’s en Ruimten
Meander ligt met het Gezondheidscollege en de
Stallingsgarage
, ook door atelier PRO ontworpen, in een parkachtige omgeving langs de Eem, als op een landgoed. Het gebouw ligt op een terp met in de terp de parkeergarage voor de bezoekers. Het enorme complex is opgedeeld in verschillende bouwmassa’s met: Hotfloor, Verpleegafdelingen, Poliklinieken, Revalidatie en Klinische Psychiatrie. De samenhang tussen al deze bouwdelen wordt gebracht door de ruimte tussen de bouwmassa’s: de LAAN.
Deze Laan verbindt niet alleen de afzonderlijke bouwdelen, maar schept ook duidelijkheid omdat het de belangrijkste ruimte is van het gebouwenensemble. De Laan verbindt bovendien verschillende schaalniveaus: enerzijds het landschap en anderzijds de intieme ruimten van de verpleegafdelingen met de eenpersoonskamers voor de patiënten. De ruimten tussen de bouwmassa’s geven het geheel samenhang en structuur. De Laan is de belangrijkste ruimte en de centrale as die de bouwmassa’s met elkaar verbindt en waaraan alle entrees liggen.
Aan de Laan liggen verschillende glasoverdekte binnenpleinen. Rechts liggen de BRINK en de FOYER, links de ORANJERIE. Deze pleinen hebben specifieke functies. Op de Brink kan men lunchen of avondeten in het restaurant. In de Oranjerie is een apotheek. In de Foyer kunnen bijeenkomsten of evenementen worden georganiseerd in en rond het auditorium. Al deze binnenpleinen zijn ingericht als informele wachtruimten voor de bezoekers van de Poliklinieken. Bezoekers die met de fiets of het OV komen nemen de hoofdentree. Bezoekers die met de auto komen, parkeren in de terp onder het gebouw en kunnen direct met de roltrap omhoog naar het hart van de Laan. Medewerkers parkeren in de Stallingsgarage.
Mensen versus Logistiek
Een ziekenhuis is vaak een stressvolle omgeving. Daarom was het onze ambitie om humane ruimten te ontwerpen, waar mensen tot rust komen. De indeling en vormgeving (uitzicht, licht, kleur en geluid) van ruimten moet deze rust bevorderen, zodat het genezingsproces wordt bespoedigd. Daglicht, oriëntatie en uitzicht op het landschap bepalen mede het welbevinden van mensen in het gebouw.
Tussen de bouwmassa’s zijn daarom open ruimten gecreëerd, waardoor het landschap tot diep het gebouw zichtbaar is. Ook daglicht dringt zo diep het gebouw binnen. Ook hebben we gekeken naar de logistiek. De Hotfloors zijn aan het zicht van patiënten en bezoekers onttrokken en in een geheel eigen bouwmassa ondergebracht. Op twee niveaus kunnen medewerkers in de verschillende delen van het ziekenhuis komen. Op het niveau van de parkeergarage ligt de logistieke ring, waarbij het logistiek centrum via de goederenliften met de Verpleegafdelingen en Poliklinieken wordt verbonden. Zonder dat bezoeker of patiënt er iets van merkt, kan het gebouw 24 uur per dag worden bevoorraad. Goederen worden niet over de afdelingen verplaatst, omdat de goederenliften aan de achterkant van de afdelingen zijn gelegen. Op de tweede verdieping is er voor de medewerkers een aparte verbindingszone dwars op het gebouw gemaakt. Zo worden patiënten en bezoekers niet geconfronteerd met de onrust die gepaard gaat met de ziekenhuismachine. Patiëntenvervoer naar de operatieafdeling gaat over deze route.
Architectuur
Meander heeft aan de buitenzijde een roodbruine steen, zodat het opgaat in het landschap. Binnen in de patio’s en de ruimten tussen de gebouwen is de steen wit, zodat het daglicht optimaal wordt gereflecteerd.
De Hotfloors, Revalidatie en Gezondheidscollege kregen een roodbruine steen, die platvol is gevoegd in dezelfde kleur. Zo ontstaat een heldere plastiek. Het blok met de Verpleegafdelingen, Poliklinieken en Klinische Psychiatrie kreeg aan de buitenzijde een donkerrood genuanceerde baksteen. Deze is stootvoegloos en met verdiepte donkere lintvoegen gemetseld.
Het principe is, dat niet elke bouwmassa één materiaal/kleur kreeg, maar dat de ruimten elk een kleur kregen die de sfeer van deze ruimte bepaalt. De buitenzijde bij het park heeft een donkerrood genuanceerde baksteen, die stootvoegloos is gemetseld met een verdiepte donkere lintvoeg. De tussenruimten (bij de patio’s, binnenhoven en pleinen) kregen allemaal wit metselwerk platvoeg gevoegd. De kleuren van de baksteen zijn dus vooral vanuit het oogpunt van de gebruikers van de gebouwen gekozen.
Al het metaalwerk is in grijstinten uitgevoerd, zoals staalconstructie, aluminium kozijnen, ramen en deuren. De staalconstructie middengrijs metalic DB701, alle kozijnen steengrijs gepoedercoat (RAL 7030) en alle draaiende delen ijzergrijs poedercoating (RAL 7011).
Klik hier voor een beschrijving van het interieur ontwerp.
Duurzaamheid en Flexibiliteit
De duurzaamheidsambities van het Meander Medisch Centrum zijn hoog. Een zorgvuldige keuze van materialen en technieken leidde tot een GreenCalc+ label B met een score van 233. Verder was er de wens om een flexibel gebouw te maken. Voor een medisch centrum betekent dat: duidelijke keuzen maken.
De Hotfloors zijn specifiek voor het ziekenhuis gemaakt en zijn maatwerk. De Verpleegafdelingen hebben een meer algemene bouwstructuur, maar wel met een hotel plus opzet. Daarmee is het een maatconfectie bouwstructuur. De Poliklinieken en het Gezondheidscollege hebben het casco van een standaard kantoor en daarmee een convectie bouwstructuur.
Flexibele indeling van de Verpleegafdelingen en de Poliklinieken is altijd mogelijk. De Hotfloors liggen vast op de eigen plek in het gebouw en zijn nauwelijks inwisselbaar. De uitbreidbaarheid is voorzien in eventueel de verlenging van de bouwdelen zoals het Gezondheidscollege, De Revalidatie en de Poliklinieken het park in. Kantoren die nu deels op de bovenste verdieping van de Verpleegafdelingen zijn gesitueerd kunnen naar de nieuwe uitbreiding. Verpleegafdelingen kunnen ook worden uitgebreid of op te hogen voor extra ruimte.
Fotografie : Dirk Verwoerd
Stel jezelf kort voor! Dan weet het betreffende bedrijf wie hun model gedownload heeft.
Wil je niet bij elke download jouw gegevens in hoeven voeren?
Klik dan hier om in te loggen
.
Heb je nog geen account?
Maak dan hier een gratis account aan
.
Voornaam
Achternaam
E-mailadres
Downloaden
Wanneer je modellen downloadt op Architectenweb.nl worden relevante gegevens van jou – zoals jouw naam en e-mailadres – met het betreffende bedrijf gedeeld. Meer hierover lees je in ons
privacybeleid
.
Locatie
Trefwoorden
zorg
publiek gebouw
atelier pro
ziekenhuis
een persoons kamer
medisch centrum
healing environment
atelier pro architekten
atelier PRO architekten
Neem contact op
Projectdata
Staat van realisatie
Voltooid
Start ontwerpproces
2006
Start bouw
2010
Oplevering
2013
Ingebruikname
2013
Plaats
Hoogland
Kosten
195000000
Bruto m
2
112000
Meewerkende partijen
Architect
atelier PRO architekten
Interieurarchitect
Hans van Beek, Wessel Reinders ism Mark Bruin, Ellen Vaal, Elisabeth Tukker, Thijs Klinkhamer en Kleurmerk (Erna Tielen)
Projectarchitect
Hans van Beek ism Mark Bruin, Jeroen Ekama, Paul Fouchier, Emile Jansen, Menno Roefs
Opdrachtgever
Meander Medisch Centrum
Aannemer
2MC3 (Meander Combinatie VOF
Constructeur
Aronsohn raadgevende ingenieurs
Adviseurs installaties E & W
Deerns Nederland, Heijmans Utiliteit
Fotograaf
Dirk Verwoerd, John Lewis Marshall
Landschapsarchitect
DS Landschapsarchitecten
Neem contact op met
atelier PRO architekten
Je bent momenteel niet ingelogd. Hierdoor is het alleen mogelijk om meer informatie per e-mail op te vragen. Wil je liever gebeld worden of documentatie per post ontvangen?
Klik dan hier om in te loggen
.
Heb je nog geen account?
Maak dan hier een gratis account aan
.
Voornaam
Achternaam
E-mailadres
Opmerkingen
Bij iedere aanvraag worden relevante gegevens van jou gedeeld met het betreffende bedrijf. Meer hierover lees je in ons
privacybeleid
.
Ja, denk met me mee rond de
materialisering van mijn project
Meer projecten van atelier PRO architekten
Eijkman Kliniek
atelier PRO architekten
IGVO International School of Delft
atelier PRO architekten
Kop van het Dok
atelier PRO architekten
Research & Diagnostiek Centrum Adore
atelier PRO architekten
Renovatie Berlage Lyceum, Amsterdam
atelier PRO architekten
Universitair Centrum Psychiatrie UMCG, Groningen
atelier PRO architekten
VMBO Veurs
atelier PRO architekten
Kantoor EDGE Stadium Amsterdam
atelier PRO architekten
Kantoor Anthura Bleiswijk
atelier PRO architekten
Albert Schweitzerschool, Rotterdam
atelier PRO architekten
Obs Pantarijn en Shri Krishna school, Utrecht
atelier PRO architekten
Rudolf Steiner College en School, Haarlem
atelier PRO architekten
Woningen ZuiderDuinen, Den Haag
atelier PRO architekten
Strabrecht College in Geldrop
atelier PRO architekten
Renovatie ING Maple
atelier PRO architekten
Kindcentrum Vosholen
atelier PRO architekten
Lumion Amsterdam schoolinterieur
atelier PRO architekten
Lumion Amsterdam
atelier PRO architekten
Kop van het Dok
atelier PRO architekten
Vakcollege Eindhoven & Aloysius de Roosten
atelier PRO architekten
Bastiaanpoort, Delft
atelier PRO architekten
Levensloopwoningen Achtmaal
atelier PRO architekten
Vitalis College
atelier PRO architekten
Herontwikkeling WTC The Hague
atelier PRO architekten
Uitbreiding Metis Montessori Lyceum
atelier PRO architekten
Koningin Sophiestraat
atelier PRO architekten
The British School of Amsterdam
atelier PRO architekten
Buurschap Roosenhorst Voorschoten
atelier PRO architekten
Revitalisatie Admiraal de Ruyter ziekenhuis
atelier PRO architekten
Liseo Boneriano, Scholengemeenschap Bonaire
atelier PRO architekten
Verbindingstunnel van Heekgarage, Enschede
atelier PRO architekten
HAVO/VWO Carmel College Salland
atelier PRO architekten
Inbreiding & herinrichting Museum Allard Pierson
atelier PRO architekten
Vrijzinnig Christelijk Lyceum (VCL)
atelier PRO architekten
Letovo School Campus Moscow
atelier PRO architekten
IJburg college 2
atelier PRO architekten
Woonzorgcentrum Scheldehof
atelier PRO architekten
Cultuurhuis Winschoten inclusief interieur
atelier PRO architekten
Koepoortlocatie
atelier PRO architekten
Villa Strating
atelier PRO architekten
Wonen in Weelde
atelier PRO architekten
Housing Lakenham
atelier PRO architekten
Woningen Groeseind
atelier PRO architekten
Arendsdorp
atelier PRO architekten
Woningen Malburgen
atelier PRO architekten
D&B VERNIEUWBOUW EDITH STEIN COLLEGE
atelier PRO architekten
Verwaltungsgebaude IKK in Saarbrucken
atelier PRO architekten
NIEUW INTERIEUR WTC TOREN C
atelier PRO architekten
BASISSCHOLEN BINNENSTAD, BRIELLE
atelier PRO architekten
Onderwijspark Ezinge
atelier PRO architekten
Metis Montessori Lyceum Oosterpark
atelier PRO architekten
Interieur Stadhuiskwartier
atelier PRO architekten
Interieur Zorgcentrum Willibrord
atelier PRO architekten
Interieur gemeentehuis Zeist
atelier PRO architekten
MFA Huis van de Heuvel
atelier PRO architekten
Urban villa's Westeram
atelier PRO architekten
Nelson Mandela Centrum
atelier PRO architekten
Regiokantoren Enexis
atelier PRO architekten
Regiokantoren Enexis
atelier PRO architekten
Deal Ground & May Gurney
atelier PRO architekten
Cultuurhuis Winschoten inclusief interieur
atelier PRO architekten
MFA & GGZ Zeeheldenbuurt
atelier PRO architekten
Haagse Hogeschool Plein +
atelier PRO architekten
ROC Graafschap College
atelier PRO architekten
Studieopdracht hoofdkantoor Loyens & Loeff
atelier PRO architekten
Gemeentehuis Bronckhorst inclusief interieur
atelier PRO architekten
Woningen Zeeheldenbuurt
atelier PRO architekten
Prinsenhof
atelier PRO architekten
Trias VMBO school
atelier PRO architekten
Bibliotheek Bijzondere collectie Universiteit
atelier PRO architekten
Prinsenhof
atelier PRO architekten
Parkwoningen Craeyenburch
atelier PRO architekten
Prinsenhof
atelier PRO architekten
Studentenhuisvesting Laakhaven
atelier PRO architekten
Daltonschool Columbus
atelier PRO architekten
International School of The Hague
atelier PRO architekten
Politieacademie
atelier PRO architekten
Ludgerhof
atelier PRO architekten
Factorium
atelier PRO architekten
Brede school en woningen Berkel & Rodenrijs
atelier PRO architekten
Seniorenwoningen Krispijn
atelier PRO architekten
Trias VMBO school
atelier PRO architekten
Holland Park, Warschau
atelier PRO architekten
Vensterschool
atelier PRO architekten
Nieuw Land Erfgoedcentrum
atelier PRO architekten
Basisschool Paschalis en kinderopvang Jonas
atelier PRO architekten
Winkelcentrum Carnisse Veste
atelier PRO architekten
Stationsgebied
atelier PRO architekten
Wooncomplex Hage Hoek
atelier PRO architekten
De Brink Vathorst
atelier PRO architekten
Watertoren Entrepot-West
atelier PRO architekten
Rembrandthof
atelier PRO architekten
Kantoorgebouw Forum
atelier PRO architekten
Haagse Hogeschool
atelier PRO architekten
Euro-College
atelier PRO architekten
Bestuursgebouw Universiteit
atelier PRO architekten
Nederlandse Ambassade, Kiev
atelier PRO architekten
Parkeergarage Laakhaven Hollands Spoor
atelier PRO architekten
Parkeergarage Laakhaven Hollands Spoor
atelier PRO architekten
Eijkman Kliniek
atelier PRO architekten
IGVO International School of Delft
atelier PRO architekten
Kop van het Dok
atelier PRO architekten
Research & Diagnostiek Centrum Adore
atelier PRO architekten
Renovatie Berlage Lyceum, Amsterdam
atelier PRO architekten
Universitair Centrum Psychiatrie UMCG, Groningen
atelier PRO architekten
VMBO Veurs
atelier PRO architekten
Kantoor EDGE Stadium Amsterdam
atelier PRO architekten
Kantoor Anthura Bleiswijk
atelier PRO architekten
Albert Schweitzerschool, Rotterdam
atelier PRO architekten
Obs Pantarijn en Shri Krishna school, Utrecht
atelier PRO architekten
Rudolf Steiner College en School, Haarlem
atelier PRO architekten
Woningen ZuiderDuinen, Den Haag
atelier PRO architekten
Strabrecht College in Geldrop
atelier PRO architekten
Renovatie ING Maple
atelier PRO architekten
Kindcentrum Vosholen
atelier PRO architekten
Lumion Amsterdam schoolinterieur
atelier PRO architekten
Lumion Amsterdam
atelier PRO architekten
Kop van het Dok
atelier PRO architekten
Vakcollege Eindhoven & Aloysius de Roosten
atelier PRO architekten
Bastiaanpoort, Delft
atelier PRO architekten
Levensloopwoningen Achtmaal
atelier PRO architekten
Vitalis College
atelier PRO architekten
Herontwikkeling WTC The Hague
atelier PRO architekten
Uitbreiding Metis Montessori Lyceum
atelier PRO architekten
Koningin Sophiestraat
atelier PRO architekten
The British School of Amsterdam
atelier PRO architekten
Buurschap Roosenhorst Voorschoten
atelier PRO architekten
Revitalisatie Admiraal de Ruyter ziekenhuis
atelier PRO architekten
Liseo Boneriano, Scholengemeenschap Bonaire
atelier PRO architekten
Verbindingstunnel van Heekgarage, Enschede
atelier PRO architekten
HAVO/VWO Carmel College Salland
atelier PRO architekten
Inbreiding & herinrichting Museum Allard Pierson
atelier PRO architekten
Vrijzinnig Christelijk Lyceum (VCL)
atelier PRO architekten
Letovo School Campus Moscow
atelier PRO architekten
IJburg college 2
atelier PRO architekten
Woonzorgcentrum Scheldehof
atelier PRO architekten
Cultuurhuis Winschoten inclusief interieur
atelier PRO architekten
Koepoortlocatie
atelier PRO architekten
Villa Strating
atelier PRO architekten
Wonen in Weelde
atelier PRO architekten
Housing Lakenham
atelier PRO architekten
Woningen Groeseind
atelier PRO architekten
Arendsdorp
atelier PRO architekten
Woningen Malburgen
atelier PRO architekten
D&B VERNIEUWBOUW EDITH STEIN COLLEGE
atelier PRO architekten
Verwaltungsgebaude IKK in Saarbrucken
atelier PRO architekten
NIEUW INTERIEUR WTC TOREN C
atelier PRO architekten
BASISSCHOLEN BINNENSTAD, BRIELLE
atelier PRO architekten
Onderwijspark Ezinge
atelier PRO architekten
Metis Montessori Lyceum Oosterpark
atelier PRO architekten
Interieur Stadhuiskwartier
atelier PRO architekten
Interieur Zorgcentrum Willibrord
atelier PRO architekten
Interieur gemeentehuis Zeist
atelier PRO architekten
MFA Huis van de Heuvel
atelier PRO architekten
Urban villa's Westeram
atelier PRO architekten
Nelson Mandela Centrum
atelier PRO architekten
Regiokantoren Enexis
atelier PRO architekten
Regiokantoren Enexis
atelier PRO architekten
Deal Ground & May Gurney
atelier PRO architekten
Cultuurhuis Winschoten inclusief interieur
atelier PRO architekten
MFA & GGZ Zeeheldenbuurt
atelier PRO architekten
Haagse Hogeschool Plein +
atelier PRO architekten
ROC Graafschap College
atelier PRO architekten
Studieopdracht hoofdkantoor Loyens & Loeff
atelier PRO architekten
Gemeentehuis Bronckhorst inclusief interieur
atelier PRO architekten
Woningen Zeeheldenbuurt
atelier PRO architekten
Prinsenhof
atelier PRO architekten
Trias VMBO school
atelier PRO architekten
Bibliotheek Bijzondere collectie Universiteit
atelier PRO architekten
Prinsenhof
atelier PRO architekten
Parkwoningen Craeyenburch
atelier PRO architekten
Prinsenhof
atelier PRO architekten
Studentenhuisvesting Laakhaven
atelier PRO architekten
Daltonschool Columbus
atelier PRO architekten
International School of The Hague
atelier PRO architekten
Politieacademie
atelier PRO architekten
Ludgerhof
atelier PRO architekten
Factorium
atelier PRO architekten
Brede school en woningen Berkel & Rodenrijs
atelier PRO architekten
Seniorenwoningen Krispijn
atelier PRO architekten
Trias VMBO school
atelier PRO architekten
Holland Park, Warschau
atelier PRO architekten
Vensterschool
atelier PRO architekten
Nieuw Land Erfgoedcentrum
atelier PRO architekten
Basisschool Paschalis en kinderopvang Jonas
atelier PRO architekten
Winkelcentrum Carnisse Veste
atelier PRO architekten
Stationsgebied
atelier PRO architekten
Wooncomplex Hage Hoek
atelier PRO architekten
De Brink Vathorst
atelier PRO architekten
Watertoren Entrepot-West
atelier PRO architekten
Rembrandthof
atelier PRO architekten
Kantoorgebouw Forum
atelier PRO architekten
Haagse Hogeschool
atelier PRO architekten
Euro-College
atelier PRO architekten
Bestuursgebouw Universiteit
atelier PRO architekten
Nederlandse Ambassade, Kiev
atelier PRO architekten
Parkeergarage Laakhaven Hollands Spoor
atelier PRO architekten
Parkeergarage Laakhaven Hollands Spoor
atelier PRO architekten
Toon alles
Andere Projecten
Sandwichpanelenwand hygiënische afbouw
Sentho B.V.
Transformeerbare vergaderruimtes in HNK Amsterdam
BREEDVELD mobiele wandsystemen
Complete buiteninrichting kantooromgeving
Falco B.V.
TopAccess Dakluik bij Porsche Service Factory
Staka Dakluiken
Nieuwbouw villa Tegenbosch, Eindhoven, Noord-Braba
van Os Architecten
Moderne villa Alkmaar
BNLA architecten
Appartementencomplex in Purmerend
SSAB Swedish Steel BV
Office Winhov over project Pulse met Archicad
KUBUS | Specialist in Archicad
Nieuwbouw moderne bungalow, Prinsenbeek, Noord-Bra
van Os Architecten
Verbouwing villa Ruitersbos, Breda, Noord-Brabant
van Os Architecten
Nieuwbouw schuurwoning, Oosterhout, Noord-Brabant
van Os Architecten
Nieuwbouw schuurwoning, Eerbeek, Gelderland
van Os Architecten
Ga naar het projecten-overzicht
Voor een optimale gebruikservaring plaatst Architectenweb functionele cookies. Wat de verschillende cookies precies doen leggen we uit in een
overzicht
. Cookies van social media kun je optioneel
aanzetten
.
Akkoord
Instellingen
Annuleren
OK
Sluiten
Doorgaan
Inloggen
Maak een gratis persoonlijk account aan
Feedback
Feedback
Wij horen graag jouw feedback. Laat je reactie achter en eventueel jouw e-mail adres.
Reactie
Verstuur