Projecten
Producten
Bedrijven
Vacatures
Agenda
Awards
Podcasts
more_horiz
Videos
Magazine
Thema's
Favorieten
Profiel
Uitloggen
Abonneer je nu op onze nieuwsbrieven!
Abonneren
Nee, bedankt
Ja, denk met me mee rond de
materialisering van mijn project
Producten
Imposante, gerenoveerde gevel aan de entree als verbinding tussen oud en nieuw
Copyright: Jan Paul Mioulet
Entreegebied
Copyright: Jan Paul Mioulet
Achterzijde van het gebouw
Copyright: Jan Paul Mioulet
De monumentale betonnen buitengevels zijn gereinigd en gerepareerd, maar verweringssporen zijn in he
Copyright: Martijn de Visser
Detail gevel
Copyright: Martijn de Visser
De blikvanger in het atrium is de spectaculaire wenteltrap.
Copyright: Jan Paul Mioulet
De imposante trap
Copyright: Jan Paul Mioulet
Een nestje (Nature takes over); open leergebied dat op elke verdieping een ander thema kent.
Copyright: Jan Paul Mioulet
Dit is het nest Granny Revisited
Copyright: Jan Paul Mioulet
Een nest (Escher meets Einstein); open leergebied dat op elke verdieping een ander thema kent.
Copyright: Jan Paul Mioulet
Verwonderzaal 'Britse Lagerhuis' voor debatten en discussies
Copyright: Jan Paul Mioulet
Een van de vele leerruimtes voor de bovenbouw
Copyright: Jan Paul Mioulet
In de gerenoveerde oudbouw zijn voor de bovenbouwleerlingen diverse vrije leeromgevingen beschikbaar
Copyright: Jan Paul Mioulet
Deze voormalige praktijkhal is nu een vierde sportzaal / dojo.
Copyright: Jan Paul Mioulet
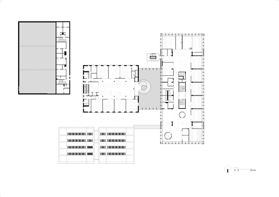
Begane grond
Eerste verdieping
Tweede verdieping
Producttags
AAN
UIT
Lumion Amsterdam
13 november 2019
2
0
0
0
Aan de Vlaardingenlaan in Amsterdam staat sinds 1973 een schoolgebouw van de hand van architect B.J. Ingwersen. Het is ontworpen als MTS en het laat duidelijk invloeden zien van de beroemde Zwitserse architect Le Corbusier. Deze invloed is zichtbaar in het beton aan de gevels en de schijnbaar zwevende verdiepingen boven de entree, steunend op de betonnen kolommen. Ook zijn er grote raampartijen en een expressieve brandtrap. In 2008 werd het gebouw toegevoegd aan de gemeentelijke monumentenlijst. Op deze locatie is nu Lumion Amsterdam gevestigd, een middelbare school voor MAVO /HAVO /VWO.
De nieuwe school heeft een programma van ca. 14.000 m², het bestaande gebouw is slechts ca. 8.500 m² met een groot deel in praktijkhallen, die niet geschikt zijn voor voortgezet onderwijs. Om voldoende ruimte te creëren voor de nieuwe school is in nauw overleg met de Monumentenzorg besloten een deel van de vijf praktijkhallen te slopen. De hallen zijn vrijwel identiek, door behoud van de twee hallen aan de straatzijde blijft de oorspronkelijke opzet herkenbaar.
Nieuw bouwdeel
Op de plek van de gesloopte hallen is de nieuwbouw gerealiseerd. In het nieuwe vijflaagse deel zijn op de begane grond een Sciencelab (de bètavakken), Medialab en een Atelier (handvaardigheid en tekenen) gerealiseerd. Daarboven zijn de onderbouw-clusters. Een cluster is een zelfstandige eenheid van ca. 160 leerlingen en hun docenten. In elk cluster bevinden zich lokalen, spreekkamers en een docentenruimte rond een groot open gebied. Een overzichtelijke, eigen plek binnen de grote school, die kleinschaligheid en aandacht voor elke leerling waarborgt.
Forum
Tussen het nieuwe deel en de oudbouw is een atrium gemaakt, het Forum. Dit is de centrale ontmoetingsplek van de school. Hier bevinden zich de entrees en vanuit het Forum zijn alle onderdelen van de school eenvoudig te bereiken. De centraal geplaatste receptiebalie heeft zicht op alle verkeersstromen. Eyecatchers zijn de gerenoveerde monumentale gevel en de spectaculaire wenteltrap die alle onderbouwclusters ontsluit.
Leergebieden
In de gerenoveerde oudbouw bevinden zich op de begane grond het Crea-cluster (dans en drama), personeelsruimten en een grand café. De verdiepingen zijn bestemd voor de bovenbouw. Hier zijn nog maar weinig traditionele klaslokalen te vinden; rond de grote open leergebieden zijn groepsruimten, spreekkamers en‘verwonderzalen’; dit zijn zalen waarin 60 of 90 leerlingen tegelijk onderwijs kunnen krijgen, zich laten inspireren of verwonderen.
Eerste partner Kunskapsskolan Nederland
Het interieurontwerp is speciaal ontwikkeld om gepersonaliseerd onderwijs te faciliteren. Lumion is de eerste partnerschool van
Kunskapsskolan Nederland
.
Campfire, watering holes and caves
Het ruimtelijk concept dat ten grondslag ligt aan het ontwerp van Lumion gaat verder dan het traditionele klaslokaal: afhankelijk van de leervorm begeven leerlingen zich in ruimtelijke settings vergelijkbaar met
campfires, watering holes caves and watering holes
Daarbij zijn 'campfires' een soort theaters waar leerlingen zich verzamelen rond een expert die een boeiend verhaal vertelt. 'Watering holes' zijn ruimtes waar leerlingen samen aan projecten werken en van elkaar leren. 'Caves' zijn ruimtes waar leerlingen zich terugtrekken om gefocust te studeren.
Materialisering en duurzaamheid
De monumentale gevels zijn met respect up-to-date gemaakt. Enkel glas is vervangen door HR++glas, waarbij de oude houten kozijnen grotendeels hergebruikt zijn. Ook zijn de grote overstekken zoveel mogelijk geïsoleerd. Voor de nieuwe delen zijn afwijkende materialen gekozen, zodat direct duidelijk is wat is toegevoegd.
Daarbij is gekeken naar de ritmiek van de bestaande gevel; daarin worden verticale schijven onderbroken door horizontale banden. In de nieuwbouw zijn ook horizontale banden toegepast en is de verticale geleding ingebracht door aluminium panelen met custom-made profilering. Het nieuwe deel is wit voor een frisse uitstraling en als contrast met het bestaande beton.
In een gehandhaafde praktijkhal is het bestuur van de school ondergebracht, in de andere een bijzondere gym-voorziening. Ook hier zijn de gevels en de daklichten opgewaardeerd en voorzien van HR++ glas.
Op het terrein is ook een nieuwe sporthal gerealiseerd. De gevel van de hal is opgebouwd met hetzelfde materiaal als de rest van de nieuwbouw (geprofileerde aluminium beplating), alleen is hier juist voor donker met witte accenten gekozen.
Huisvesting voor onderwijsdiversiteit
De combinatie van oud en nieuw levert een bijzonder schoolcomplex op met ruimten in vele soorten en maten, passend bij de diversiteit aan onderwijs van Lumion Amsterdam.
Stel jezelf kort voor! Dan weet het betreffende bedrijf wie hun model gedownload heeft.
Wil je niet bij elke download jouw gegevens in hoeven voeren?
Klik dan hier om in te loggen
.
Heb je nog geen account?
Maak dan hier een gratis account aan
.
Voornaam
Achternaam
E-mailadres
Downloaden
Wanneer je modellen downloadt op Architectenweb.nl worden relevante gegevens van jou – zoals jouw naam en e-mailadres – met het betreffende bedrijf gedeeld. Meer hierover lees je in ons
privacybeleid
.
Locatie
Trefwoorden
school
havo
gemeentelijk monument
mavo
middelbare school
vwo
onderwijs
atelier PRO architekten
Neem contact op
Projectdata
Staat van realisatie
Voltooid
Start ontwerpproces
2015
Start bouw
2017
Oplevering
2019
Ingebruikname
2019
Plaats
Amsterdam
Kosten
14400000
Bruto m
2
14100
Meewerkende partijen
Architect
atelier PRO architekten
Interieurarchitect
Amal Habti
Projectarchitect
Dorte Kristensen, Martijn de Visser
Opdrachtgever
Gemeente Amsterdam
Aannemer
Hageman,
Constructeur
Van Rossum Raadgevende Ingenieurs
Adviseurs installaties E & W
Ingenieursbureau Linssen
Fotograaf
Jan Paul Mioulet, René Souverijn, Martijn de Visser
Projectmanagement
Projectmanagement Bureau Amsterdam
Adviseur bouwfysica
LBP Sight
Gevelbouwer
Hermeta
Leveranciers
Overig
Martijn de Visser, René Souverijn, Jan Paul Mioulet
Glasweefsel Wandafwerking
Relius Benelux
Neem contact op met
atelier PRO architekten
Je bent momenteel niet ingelogd. Hierdoor is het alleen mogelijk om meer informatie per e-mail op te vragen. Wil je liever gebeld worden of documentatie per post ontvangen?
Klik dan hier om in te loggen
.
Heb je nog geen account?
Maak dan hier een gratis account aan
.
Voornaam
Achternaam
E-mailadres
Opmerkingen
Bij iedere aanvraag worden relevante gegevens van jou gedeeld met het betreffende bedrijf. Meer hierover lees je in ons
privacybeleid
.
Ja, denk met me mee rond de
materialisering van mijn project
Meer projecten van atelier PRO architekten
Eijkman Kliniek
atelier PRO architekten
IGVO International School of Delft
atelier PRO architekten
Kop van het Dok
atelier PRO architekten
Research & Diagnostiek Centrum Adore
atelier PRO architekten
Renovatie Berlage Lyceum, Amsterdam
atelier PRO architekten
Universitair Centrum Psychiatrie UMCG, Groningen
atelier PRO architekten
VMBO Veurs
atelier PRO architekten
Kantoor EDGE Stadium Amsterdam
atelier PRO architekten
Kantoor Anthura Bleiswijk
atelier PRO architekten
Albert Schweitzerschool, Rotterdam
atelier PRO architekten
Obs Pantarijn en Shri Krishna school, Utrecht
atelier PRO architekten
Rudolf Steiner College en School, Haarlem
atelier PRO architekten
Woningen ZuiderDuinen, Den Haag
atelier PRO architekten
Strabrecht College in Geldrop
atelier PRO architekten
Renovatie ING Maple
atelier PRO architekten
Kindcentrum Vosholen
atelier PRO architekten
Lumion Amsterdam schoolinterieur
atelier PRO architekten
Kop van het Dok
atelier PRO architekten
Vakcollege Eindhoven & Aloysius de Roosten
atelier PRO architekten
Bastiaanpoort, Delft
atelier PRO architekten
Levensloopwoningen Achtmaal
atelier PRO architekten
Vitalis College
atelier PRO architekten
Herontwikkeling WTC The Hague
atelier PRO architekten
Uitbreiding Metis Montessori Lyceum
atelier PRO architekten
Koningin Sophiestraat
atelier PRO architekten
The British School of Amsterdam
atelier PRO architekten
Buurschap Roosenhorst Voorschoten
atelier PRO architekten
Revitalisatie Admiraal de Ruyter ziekenhuis
atelier PRO architekten
Liseo Boneriano, Scholengemeenschap Bonaire
atelier PRO architekten
Verbindingstunnel van Heekgarage, Enschede
atelier PRO architekten
HAVO/VWO Carmel College Salland
atelier PRO architekten
Inbreiding & herinrichting Museum Allard Pierson
atelier PRO architekten
Vrijzinnig Christelijk Lyceum (VCL)
atelier PRO architekten
Letovo School Campus Moscow
atelier PRO architekten
IJburg college 2
atelier PRO architekten
Woonzorgcentrum Scheldehof
atelier PRO architekten
Cultuurhuis Winschoten inclusief interieur
atelier PRO architekten
MEANDER MEDISCH CENTRUM
atelier PRO architekten
Koepoortlocatie
atelier PRO architekten
Villa Strating
atelier PRO architekten
Wonen in Weelde
atelier PRO architekten
Housing Lakenham
atelier PRO architekten
Woningen Groeseind
atelier PRO architekten
Arendsdorp
atelier PRO architekten
Woningen Malburgen
atelier PRO architekten
D&B VERNIEUWBOUW EDITH STEIN COLLEGE
atelier PRO architekten
Verwaltungsgebaude IKK in Saarbrucken
atelier PRO architekten
NIEUW INTERIEUR WTC TOREN C
atelier PRO architekten
BASISSCHOLEN BINNENSTAD, BRIELLE
atelier PRO architekten
Onderwijspark Ezinge
atelier PRO architekten
Metis Montessori Lyceum Oosterpark
atelier PRO architekten
Interieur Stadhuiskwartier
atelier PRO architekten
Interieur Zorgcentrum Willibrord
atelier PRO architekten
Interieur gemeentehuis Zeist
atelier PRO architekten
MFA Huis van de Heuvel
atelier PRO architekten
Urban villa's Westeram
atelier PRO architekten
Nelson Mandela Centrum
atelier PRO architekten
Regiokantoren Enexis
atelier PRO architekten
Regiokantoren Enexis
atelier PRO architekten
Deal Ground & May Gurney
atelier PRO architekten
Cultuurhuis Winschoten inclusief interieur
atelier PRO architekten
MFA & GGZ Zeeheldenbuurt
atelier PRO architekten
Haagse Hogeschool Plein +
atelier PRO architekten
ROC Graafschap College
atelier PRO architekten
Studieopdracht hoofdkantoor Loyens & Loeff
atelier PRO architekten
Gemeentehuis Bronckhorst inclusief interieur
atelier PRO architekten
Woningen Zeeheldenbuurt
atelier PRO architekten
Prinsenhof
atelier PRO architekten
Trias VMBO school
atelier PRO architekten
Bibliotheek Bijzondere collectie Universiteit
atelier PRO architekten
Prinsenhof
atelier PRO architekten
Parkwoningen Craeyenburch
atelier PRO architekten
Prinsenhof
atelier PRO architekten
Studentenhuisvesting Laakhaven
atelier PRO architekten
Daltonschool Columbus
atelier PRO architekten
International School of The Hague
atelier PRO architekten
Politieacademie
atelier PRO architekten
Ludgerhof
atelier PRO architekten
Factorium
atelier PRO architekten
Brede school en woningen Berkel & Rodenrijs
atelier PRO architekten
Seniorenwoningen Krispijn
atelier PRO architekten
Trias VMBO school
atelier PRO architekten
Holland Park, Warschau
atelier PRO architekten
Vensterschool
atelier PRO architekten
Nieuw Land Erfgoedcentrum
atelier PRO architekten
Basisschool Paschalis en kinderopvang Jonas
atelier PRO architekten
Winkelcentrum Carnisse Veste
atelier PRO architekten
Stationsgebied
atelier PRO architekten
Wooncomplex Hage Hoek
atelier PRO architekten
De Brink Vathorst
atelier PRO architekten
Watertoren Entrepot-West
atelier PRO architekten
Rembrandthof
atelier PRO architekten
Kantoorgebouw Forum
atelier PRO architekten
Haagse Hogeschool
atelier PRO architekten
Euro-College
atelier PRO architekten
Bestuursgebouw Universiteit
atelier PRO architekten
Nederlandse Ambassade, Kiev
atelier PRO architekten
Parkeergarage Laakhaven Hollands Spoor
atelier PRO architekten
Parkeergarage Laakhaven Hollands Spoor
atelier PRO architekten
Eijkman Kliniek
atelier PRO architekten
IGVO International School of Delft
atelier PRO architekten
Kop van het Dok
atelier PRO architekten
Research & Diagnostiek Centrum Adore
atelier PRO architekten
Renovatie Berlage Lyceum, Amsterdam
atelier PRO architekten
Universitair Centrum Psychiatrie UMCG, Groningen
atelier PRO architekten
VMBO Veurs
atelier PRO architekten
Kantoor EDGE Stadium Amsterdam
atelier PRO architekten
Kantoor Anthura Bleiswijk
atelier PRO architekten
Albert Schweitzerschool, Rotterdam
atelier PRO architekten
Obs Pantarijn en Shri Krishna school, Utrecht
atelier PRO architekten
Rudolf Steiner College en School, Haarlem
atelier PRO architekten
Woningen ZuiderDuinen, Den Haag
atelier PRO architekten
Strabrecht College in Geldrop
atelier PRO architekten
Renovatie ING Maple
atelier PRO architekten
Kindcentrum Vosholen
atelier PRO architekten
Lumion Amsterdam schoolinterieur
atelier PRO architekten
Kop van het Dok
atelier PRO architekten
Vakcollege Eindhoven & Aloysius de Roosten
atelier PRO architekten
Bastiaanpoort, Delft
atelier PRO architekten
Levensloopwoningen Achtmaal
atelier PRO architekten
Vitalis College
atelier PRO architekten
Herontwikkeling WTC The Hague
atelier PRO architekten
Uitbreiding Metis Montessori Lyceum
atelier PRO architekten
Koningin Sophiestraat
atelier PRO architekten
The British School of Amsterdam
atelier PRO architekten
Buurschap Roosenhorst Voorschoten
atelier PRO architekten
Revitalisatie Admiraal de Ruyter ziekenhuis
atelier PRO architekten
Liseo Boneriano, Scholengemeenschap Bonaire
atelier PRO architekten
Verbindingstunnel van Heekgarage, Enschede
atelier PRO architekten
HAVO/VWO Carmel College Salland
atelier PRO architekten
Inbreiding & herinrichting Museum Allard Pierson
atelier PRO architekten
Vrijzinnig Christelijk Lyceum (VCL)
atelier PRO architekten
Letovo School Campus Moscow
atelier PRO architekten
IJburg college 2
atelier PRO architekten
Woonzorgcentrum Scheldehof
atelier PRO architekten
Cultuurhuis Winschoten inclusief interieur
atelier PRO architekten
MEANDER MEDISCH CENTRUM
atelier PRO architekten
Koepoortlocatie
atelier PRO architekten
Villa Strating
atelier PRO architekten
Wonen in Weelde
atelier PRO architekten
Housing Lakenham
atelier PRO architekten
Woningen Groeseind
atelier PRO architekten
Arendsdorp
atelier PRO architekten
Woningen Malburgen
atelier PRO architekten
D&B VERNIEUWBOUW EDITH STEIN COLLEGE
atelier PRO architekten
Verwaltungsgebaude IKK in Saarbrucken
atelier PRO architekten
NIEUW INTERIEUR WTC TOREN C
atelier PRO architekten
BASISSCHOLEN BINNENSTAD, BRIELLE
atelier PRO architekten
Onderwijspark Ezinge
atelier PRO architekten
Metis Montessori Lyceum Oosterpark
atelier PRO architekten
Interieur Stadhuiskwartier
atelier PRO architekten
Interieur Zorgcentrum Willibrord
atelier PRO architekten
Interieur gemeentehuis Zeist
atelier PRO architekten
MFA Huis van de Heuvel
atelier PRO architekten
Urban villa's Westeram
atelier PRO architekten
Nelson Mandela Centrum
atelier PRO architekten
Regiokantoren Enexis
atelier PRO architekten
Regiokantoren Enexis
atelier PRO architekten
Deal Ground & May Gurney
atelier PRO architekten
Cultuurhuis Winschoten inclusief interieur
atelier PRO architekten
MFA & GGZ Zeeheldenbuurt
atelier PRO architekten
Haagse Hogeschool Plein +
atelier PRO architekten
ROC Graafschap College
atelier PRO architekten
Studieopdracht hoofdkantoor Loyens & Loeff
atelier PRO architekten
Gemeentehuis Bronckhorst inclusief interieur
atelier PRO architekten
Woningen Zeeheldenbuurt
atelier PRO architekten
Prinsenhof
atelier PRO architekten
Trias VMBO school
atelier PRO architekten
Bibliotheek Bijzondere collectie Universiteit
atelier PRO architekten
Prinsenhof
atelier PRO architekten
Parkwoningen Craeyenburch
atelier PRO architekten
Prinsenhof
atelier PRO architekten
Studentenhuisvesting Laakhaven
atelier PRO architekten
Daltonschool Columbus
atelier PRO architekten
International School of The Hague
atelier PRO architekten
Politieacademie
atelier PRO architekten
Ludgerhof
atelier PRO architekten
Factorium
atelier PRO architekten
Brede school en woningen Berkel & Rodenrijs
atelier PRO architekten
Seniorenwoningen Krispijn
atelier PRO architekten
Trias VMBO school
atelier PRO architekten
Holland Park, Warschau
atelier PRO architekten
Vensterschool
atelier PRO architekten
Nieuw Land Erfgoedcentrum
atelier PRO architekten
Basisschool Paschalis en kinderopvang Jonas
atelier PRO architekten
Winkelcentrum Carnisse Veste
atelier PRO architekten
Stationsgebied
atelier PRO architekten
Wooncomplex Hage Hoek
atelier PRO architekten
De Brink Vathorst
atelier PRO architekten
Watertoren Entrepot-West
atelier PRO architekten
Rembrandthof
atelier PRO architekten
Kantoorgebouw Forum
atelier PRO architekten
Haagse Hogeschool
atelier PRO architekten
Euro-College
atelier PRO architekten
Bestuursgebouw Universiteit
atelier PRO architekten
Nederlandse Ambassade, Kiev
atelier PRO architekten
Parkeergarage Laakhaven Hollands Spoor
atelier PRO architekten
Parkeergarage Laakhaven Hollands Spoor
atelier PRO architekten
Toon alles
Andere Projecten
ABB-technologie verlicht de Burj Khalifa
ABB | Busch-Jaeger
Hybride buitenruimte Catharinatoren Zaandam
Solarlux Nederland B.V.
Vijf keer Gorter op Jullensblok
Gorter Luiken BV
Luxe wonen in Hamptons stijl
Holonite B.V.
Hilversum Nieuw Zuid
HOSPER landschapsarchitectuur
TU Delft Stadsklimaatbos
HOSPER landschapsarchitectuur
Maatwerk vanuit een concpetwoning
Innoblox
Full service voor logistiek bedrijfspand
Buro De Haan
TU Delft Campus Stevingebied
HOSPER landschapsarchitectuur
CPO Bakstayn
Time to Access
Nieuwbouw hal BPA Blueprint Automation
Houthandel van Dam
Appartement Tilburg
Houthandel van Dam
Ga naar het projecten-overzicht
Voor een optimale gebruikservaring plaatst Architectenweb functionele cookies. Wat de verschillende cookies precies doen leggen we uit in een
overzicht
. Cookies van social media kun je optioneel
aanzetten
.
Akkoord
Instellingen
Annuleren
OK
Sluiten
Doorgaan
Inloggen
Maak een gratis persoonlijk account aan
Feedback
Feedback
Wij horen graag jouw feedback. Laat je reactie achter en eventueel jouw e-mail adres.
Reactie
Verstuur