Projecten
Producten
Bedrijven
Vacatures
Agenda
Awards
Podcasts
more_horiz
Videos
Magazine
Favorieten
Profiel
Uitloggen
Abonneer je nu op onze nieuwsbrieven!
Abonneren
Nee, bedankt
Ja, denk met me mee rond de
materialisering van mijn project
Producten
Producttags
AAN
UIT
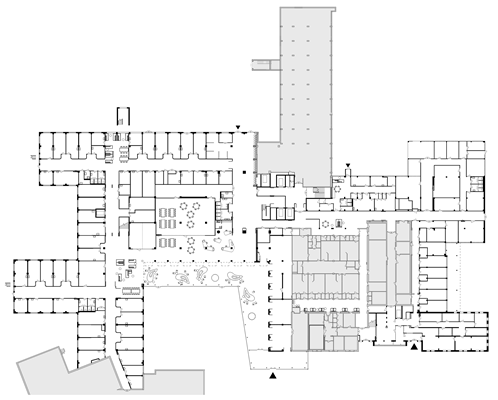
Revitalisatie Admiraal de Ruyter ziekenhuis
20 juli 2018
0
0
0
0
Omdat het Admiraal de Ruyter Ziekenhuis in Vlissingen niet meer aan de eisen voldeed en te groot was om te kunnen exploiteren is atelier PRO gevraagd een ontwerp te maken voor de renovatie en gedeeltelijke nieuwbouw. Het gebruik van groen en veel daglicht kenmerken het ontwerp. Deze uitgangspunten dragen bij aan een zo prettig mogelijk verblijf en een goed functionerend helder gebouw voor patiënten, bezoekers en personeel.
Zorg in Zeeland
Zeeland krimpt: de bevolking neemt af, het aantal geboortes loopt terug. Maar de provincie krimpt vooral doordat de Zeeuwse kinderen vertrekken om elders te studeren en niet meer terug te komen. Hun ouders blijven en worden steeds ouder. Zeeland is dan ook de meest vergrijsde provincie van Nederland, aldus Camelea Buys van de NOS in augustus 2015. Veel vraag naar zorg dus maar tegelijkertijd in de wetenschap dat het op de lange termijn ook daar zal krimpen. Hoe pak je dan het weer exploitabel maken van een ziekenhuis aan?
Renovatie
Het ziekenhuis aan de Koudekerkseweg is gerenoveerd tot een kliniek voor planbare zorg, diagnostiek, twee operatiekamers, beeldvormende technieken, poliklinieken en dagbehandeling.
Een derde van het bestaande ziekenhuis is gesloopt. Daarmee zijn de vastgoedlasten drastisch teruggebracht en is tegelijkertijd de routing en uitstraling ‘ontrommeld’. Een derde van het ziekenhuis is volledig gerenoveerd. Zo blijven de belangrijkste zorgfuncties voor West-Walcheren behouden. De renovatie sluit goed aan bij de huidige inzichten over planbare medische zorg. En een derde deel, ten slotte, kan als kantoren verhuurd worden als daar vraag naar is maar gaat tot die tijd in de mottenballen.
Het ziekenhuis kon gedurende de werkzaamheden in bedrijf blijven.
Crowdfunding
De revitalisatie is financieel mogelijk gemaakt door crowdfunding. Een primeur in de Nederlandse ziekenhuiswereld. Lees hierover op de website van
ZIB Crowdfunding
.
Nieuwbouw
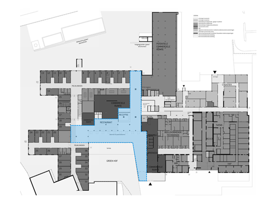
De nieuwbouw aan de voorzijde van het bestaande gebouw geeft het ziekenhuis een nieuw gezicht. Met een relatief kleine ingreep om in medische termen te blijven, is de routing op orde gebracht en ontstaat overzicht en doorzicht.
De grote glasoppervlakken zorgen voor veel daglicht, zelfs tot midden in de vernieuwde beddenafdeling. De nieuwe tuin in de oorspronkeijk patio geeft niet alleen een prettige sfeer, maar speelt ook een rol bij de oriëntatie binnen. Vanaf de centrale ontmoetingsplek zijn voor zowel de patiënten als de bezoekers alle afdelingen op een eenvoudige en prettige manier te bereiken.
Tuin
Daar waar de bestaande situatie werd gekenmerkt door verharding en parkeren, domineert in de nieuwe situatie het groen. De tuin is ingericht met diverse soorten gras. Bestaande bomen blijven behouden en zijn aangevuld met nieuwe.
Om paden te maken voor de voetgangers vanaf de Koudekerkseweg en voor de
kiss & ride
en taxihalte is in de tuin verharding aangebracht. In de tuin zal niet geparkeerd worden door personeel of bezoekers.
De tuin vormt de groene toegang tot het vernieuwde ziekenhuis en het bestaande radiotherapeutische centrum ZRTI.
Het ontwerp bevat de architectuur en het
interieur.
Stel jezelf kort voor! Dan weet het betreffende bedrijf wie hun model gedownload heeft.
Wil je niet bij elke download jouw gegevens in hoeven voeren?
Klik dan hier om in te loggen
.
Heb je nog geen account?
Maak dan hier een gratis account aan
.
Voornaam
Achternaam
E-mailadres
Downloaden
Wanneer je modellen downloadt op Architectenweb.nl worden relevante gegevens van jou – zoals jouw naam en e-mailadres – met het betreffende bedrijf gedeeld. Meer hierover lees je in ons
privacybeleid
.
Locatie
atelier PRO architekten
Neem contact op
Projectdata
Staat van realisatie
Voltooid
Start bouw
2016
Plaats
Vlissingen
Bruto m
2
116692
Neem contact op met
atelier PRO architekten
Je bent momenteel niet ingelogd. Hierdoor is het alleen mogelijk om meer informatie per e-mail op te vragen. Wil je liever gebeld worden of documentatie per post ontvangen?
Klik dan hier om in te loggen
.
Heb je nog geen account?
Maak dan hier een gratis account aan
.
Voornaam
Achternaam
E-mailadres
Opmerkingen
Bij iedere aanvraag worden relevante gegevens van jou gedeeld met het betreffende bedrijf. Meer hierover lees je in ons
privacybeleid
.
Ja, denk met me mee rond de
materialisering van mijn project
Meer projecten van atelier PRO architekten
Eijkman Kliniek
atelier PRO architekten
IGVO International School of Delft
atelier PRO architekten
Kop van het Dok
atelier PRO architekten
Research & Diagnostiek Centrum Adore
atelier PRO architekten
Renovatie Berlage Lyceum, Amsterdam
atelier PRO architekten
Universitair Centrum Psychiatrie UMCG, Groningen
atelier PRO architekten
VMBO Veurs
atelier PRO architekten
Kantoor EDGE Stadium Amsterdam
atelier PRO architekten
Kantoor Anthura Bleiswijk
atelier PRO architekten
Albert Schweitzerschool, Rotterdam
atelier PRO architekten
Obs Pantarijn en Shri Krishna school, Utrecht
atelier PRO architekten
Rudolf Steiner College en School, Haarlem
atelier PRO architekten
Woningen ZuiderDuinen, Den Haag
atelier PRO architekten
Strabrecht College in Geldrop
atelier PRO architekten
Renovatie ING Maple
atelier PRO architekten
Kindcentrum Vosholen
atelier PRO architekten
Lumion Amsterdam schoolinterieur
atelier PRO architekten
Lumion Amsterdam
atelier PRO architekten
Kop van het Dok
atelier PRO architekten
Vakcollege Eindhoven & Aloysius de Roosten
atelier PRO architekten
Bastiaanpoort, Delft
atelier PRO architekten
Levensloopwoningen Achtmaal
atelier PRO architekten
Vitalis College
atelier PRO architekten
Herontwikkeling WTC The Hague
atelier PRO architekten
Uitbreiding Metis Montessori Lyceum
atelier PRO architekten
Koningin Sophiestraat
atelier PRO architekten
The British School of Amsterdam
atelier PRO architekten
Buurschap Roosenhorst Voorschoten
atelier PRO architekten
Liseo Boneriano, Scholengemeenschap Bonaire
atelier PRO architekten
Verbindingstunnel van Heekgarage, Enschede
atelier PRO architekten
HAVO/VWO Carmel College Salland
atelier PRO architekten
Inbreiding & herinrichting Museum Allard Pierson
atelier PRO architekten
Vrijzinnig Christelijk Lyceum (VCL)
atelier PRO architekten
Letovo School Campus Moscow
atelier PRO architekten
IJburg college 2
atelier PRO architekten
Woonzorgcentrum Scheldehof
atelier PRO architekten
Cultuurhuis Winschoten inclusief interieur
atelier PRO architekten
MEANDER MEDISCH CENTRUM
atelier PRO architekten
Koepoortlocatie
atelier PRO architekten
Villa Strating
atelier PRO architekten
Wonen in Weelde
atelier PRO architekten
Housing Lakenham
atelier PRO architekten
Woningen Groeseind
atelier PRO architekten
Arendsdorp
atelier PRO architekten
Woningen Malburgen
atelier PRO architekten
D&B VERNIEUWBOUW EDITH STEIN COLLEGE
atelier PRO architekten
Verwaltungsgebaude IKK in Saarbrucken
atelier PRO architekten
NIEUW INTERIEUR WTC TOREN C
atelier PRO architekten
BASISSCHOLEN BINNENSTAD, BRIELLE
atelier PRO architekten
Onderwijspark Ezinge
atelier PRO architekten
Metis Montessori Lyceum Oosterpark
atelier PRO architekten
Interieur Stadhuiskwartier
atelier PRO architekten
Interieur Zorgcentrum Willibrord
atelier PRO architekten
Interieur gemeentehuis Zeist
atelier PRO architekten
MFA Huis van de Heuvel
atelier PRO architekten
Urban villa's Westeram
atelier PRO architekten
Nelson Mandela Centrum
atelier PRO architekten
Regiokantoren Enexis
atelier PRO architekten
Regiokantoren Enexis
atelier PRO architekten
Deal Ground & May Gurney
atelier PRO architekten
Cultuurhuis Winschoten inclusief interieur
atelier PRO architekten
MFA & GGZ Zeeheldenbuurt
atelier PRO architekten
Haagse Hogeschool Plein +
atelier PRO architekten
ROC Graafschap College
atelier PRO architekten
Studieopdracht hoofdkantoor Loyens & Loeff
atelier PRO architekten
Gemeentehuis Bronckhorst inclusief interieur
atelier PRO architekten
Woningen Zeeheldenbuurt
atelier PRO architekten
Prinsenhof
atelier PRO architekten
Trias VMBO school
atelier PRO architekten
Bibliotheek Bijzondere collectie Universiteit
atelier PRO architekten
Prinsenhof
atelier PRO architekten
Parkwoningen Craeyenburch
atelier PRO architekten
Prinsenhof
atelier PRO architekten
Studentenhuisvesting Laakhaven
atelier PRO architekten
Daltonschool Columbus
atelier PRO architekten
International School of The Hague
atelier PRO architekten
Politieacademie
atelier PRO architekten
Ludgerhof
atelier PRO architekten
Factorium
atelier PRO architekten
Brede school en woningen Berkel & Rodenrijs
atelier PRO architekten
Seniorenwoningen Krispijn
atelier PRO architekten
Trias VMBO school
atelier PRO architekten
Holland Park, Warschau
atelier PRO architekten
Vensterschool
atelier PRO architekten
Nieuw Land Erfgoedcentrum
atelier PRO architekten
Basisschool Paschalis en kinderopvang Jonas
atelier PRO architekten
Winkelcentrum Carnisse Veste
atelier PRO architekten
Stationsgebied
atelier PRO architekten
Wooncomplex Hage Hoek
atelier PRO architekten
De Brink Vathorst
atelier PRO architekten
Watertoren Entrepot-West
atelier PRO architekten
Rembrandthof
atelier PRO architekten
Kantoorgebouw Forum
atelier PRO architekten
Haagse Hogeschool
atelier PRO architekten
Euro-College
atelier PRO architekten
Bestuursgebouw Universiteit
atelier PRO architekten
Nederlandse Ambassade, Kiev
atelier PRO architekten
Parkeergarage Laakhaven Hollands Spoor
atelier PRO architekten
Parkeergarage Laakhaven Hollands Spoor
atelier PRO architekten
Eijkman Kliniek
atelier PRO architekten
IGVO International School of Delft
atelier PRO architekten
Kop van het Dok
atelier PRO architekten
Research & Diagnostiek Centrum Adore
atelier PRO architekten
Renovatie Berlage Lyceum, Amsterdam
atelier PRO architekten
Universitair Centrum Psychiatrie UMCG, Groningen
atelier PRO architekten
VMBO Veurs
atelier PRO architekten
Kantoor EDGE Stadium Amsterdam
atelier PRO architekten
Kantoor Anthura Bleiswijk
atelier PRO architekten
Albert Schweitzerschool, Rotterdam
atelier PRO architekten
Obs Pantarijn en Shri Krishna school, Utrecht
atelier PRO architekten
Rudolf Steiner College en School, Haarlem
atelier PRO architekten
Woningen ZuiderDuinen, Den Haag
atelier PRO architekten
Strabrecht College in Geldrop
atelier PRO architekten
Renovatie ING Maple
atelier PRO architekten
Kindcentrum Vosholen
atelier PRO architekten
Lumion Amsterdam schoolinterieur
atelier PRO architekten
Lumion Amsterdam
atelier PRO architekten
Kop van het Dok
atelier PRO architekten
Vakcollege Eindhoven & Aloysius de Roosten
atelier PRO architekten
Bastiaanpoort, Delft
atelier PRO architekten
Levensloopwoningen Achtmaal
atelier PRO architekten
Vitalis College
atelier PRO architekten
Herontwikkeling WTC The Hague
atelier PRO architekten
Uitbreiding Metis Montessori Lyceum
atelier PRO architekten
Koningin Sophiestraat
atelier PRO architekten
The British School of Amsterdam
atelier PRO architekten
Buurschap Roosenhorst Voorschoten
atelier PRO architekten
Liseo Boneriano, Scholengemeenschap Bonaire
atelier PRO architekten
Verbindingstunnel van Heekgarage, Enschede
atelier PRO architekten
HAVO/VWO Carmel College Salland
atelier PRO architekten
Inbreiding & herinrichting Museum Allard Pierson
atelier PRO architekten
Vrijzinnig Christelijk Lyceum (VCL)
atelier PRO architekten
Letovo School Campus Moscow
atelier PRO architekten
IJburg college 2
atelier PRO architekten
Woonzorgcentrum Scheldehof
atelier PRO architekten
Cultuurhuis Winschoten inclusief interieur
atelier PRO architekten
MEANDER MEDISCH CENTRUM
atelier PRO architekten
Koepoortlocatie
atelier PRO architekten
Villa Strating
atelier PRO architekten
Wonen in Weelde
atelier PRO architekten
Housing Lakenham
atelier PRO architekten
Woningen Groeseind
atelier PRO architekten
Arendsdorp
atelier PRO architekten
Woningen Malburgen
atelier PRO architekten
D&B VERNIEUWBOUW EDITH STEIN COLLEGE
atelier PRO architekten
Verwaltungsgebaude IKK in Saarbrucken
atelier PRO architekten
NIEUW INTERIEUR WTC TOREN C
atelier PRO architekten
BASISSCHOLEN BINNENSTAD, BRIELLE
atelier PRO architekten
Onderwijspark Ezinge
atelier PRO architekten
Metis Montessori Lyceum Oosterpark
atelier PRO architekten
Interieur Stadhuiskwartier
atelier PRO architekten
Interieur Zorgcentrum Willibrord
atelier PRO architekten
Interieur gemeentehuis Zeist
atelier PRO architekten
MFA Huis van de Heuvel
atelier PRO architekten
Urban villa's Westeram
atelier PRO architekten
Nelson Mandela Centrum
atelier PRO architekten
Regiokantoren Enexis
atelier PRO architekten
Regiokantoren Enexis
atelier PRO architekten
Deal Ground & May Gurney
atelier PRO architekten
Cultuurhuis Winschoten inclusief interieur
atelier PRO architekten
MFA & GGZ Zeeheldenbuurt
atelier PRO architekten
Haagse Hogeschool Plein +
atelier PRO architekten
ROC Graafschap College
atelier PRO architekten
Studieopdracht hoofdkantoor Loyens & Loeff
atelier PRO architekten
Gemeentehuis Bronckhorst inclusief interieur
atelier PRO architekten
Woningen Zeeheldenbuurt
atelier PRO architekten
Prinsenhof
atelier PRO architekten
Trias VMBO school
atelier PRO architekten
Bibliotheek Bijzondere collectie Universiteit
atelier PRO architekten
Prinsenhof
atelier PRO architekten
Parkwoningen Craeyenburch
atelier PRO architekten
Prinsenhof
atelier PRO architekten
Studentenhuisvesting Laakhaven
atelier PRO architekten
Daltonschool Columbus
atelier PRO architekten
International School of The Hague
atelier PRO architekten
Politieacademie
atelier PRO architekten
Ludgerhof
atelier PRO architekten
Factorium
atelier PRO architekten
Brede school en woningen Berkel & Rodenrijs
atelier PRO architekten
Seniorenwoningen Krispijn
atelier PRO architekten
Trias VMBO school
atelier PRO architekten
Holland Park, Warschau
atelier PRO architekten
Vensterschool
atelier PRO architekten
Nieuw Land Erfgoedcentrum
atelier PRO architekten
Basisschool Paschalis en kinderopvang Jonas
atelier PRO architekten
Winkelcentrum Carnisse Veste
atelier PRO architekten
Stationsgebied
atelier PRO architekten
Wooncomplex Hage Hoek
atelier PRO architekten
De Brink Vathorst
atelier PRO architekten
Watertoren Entrepot-West
atelier PRO architekten
Rembrandthof
atelier PRO architekten
Kantoorgebouw Forum
atelier PRO architekten
Haagse Hogeschool
atelier PRO architekten
Euro-College
atelier PRO architekten
Bestuursgebouw Universiteit
atelier PRO architekten
Nederlandse Ambassade, Kiev
atelier PRO architekten
Parkeergarage Laakhaven Hollands Spoor
atelier PRO architekten
Parkeergarage Laakhaven Hollands Spoor
atelier PRO architekten
Toon alles
Andere Projecten
Onderwijsgebouw Aurora, Wageningen
WEBO
Sandwichpanelenwand hygiënische afbouw
Sentho B.V.
Transformeerbare vergaderruimtes in HNK Amsterdam
BREEDVELD mobiele wandsystemen
Complete buiteninrichting kantooromgeving
Falco B.V.
TopAccess Dakluik bij Porsche Service Factory
Staka Dakluiken
Nieuwbouw villa Tegenbosch, Eindhoven, Noord-Braba
van Os Architecten
Moderne villa Alkmaar
BNLA architecten
Appartementencomplex in Purmerend
SSAB Swedish Steel BV
Office Winhov over project Pulse met Archicad
KUBUS | Specialist in Archicad
Nieuwbouw moderne bungalow, Prinsenbeek, Noord-Bra
van Os Architecten
Verbouwing villa Ruitersbos, Breda, Noord-Brabant
van Os Architecten
Nieuwbouw schuurwoning, Oosterhout, Noord-Brabant
van Os Architecten
Ga naar het projecten-overzicht
Voor een optimale gebruikservaring plaatst Architectenweb functionele cookies. Wat de verschillende cookies precies doen leggen we uit in een
overzicht
. Cookies van social media kun je optioneel
aanzetten
.
Akkoord
Instellingen
Annuleren
OK
Sluiten
Doorgaan
Inloggen
Maak een gratis persoonlijk account aan
Feedback
Feedback
Wij horen graag jouw feedback. Laat je reactie achter en eventueel jouw e-mail adres.
Reactie
Verstuur