Projecten
Producten
Bedrijven
Vacatures
Agenda
Awards
Podcasts
more_horiz
Videos
Magazine
Thema's
Favorieten
Profiel
Uitloggen
Abonneer je nu op onze nieuwsbrieven!
Abonneren
Nee, bedankt
Ja, denk met me mee rond de
materialisering van mijn project
Producten
Nieuwbouw en Plaatwerkerij
Copyright: Ronald Tilleman
Luchtfoto
Copyright: Jan-Willem Jansen
Qua uitstraling en schaal past de nieuwbouw goed in de omgeving
Copyright: Ronald Tilleman
De nieuwbouwvleugel aan de Wagenaarstraat
Copyright: Ronald Tilleman
Plaatwerkerij en nieuwbouw
Copyright: Ronald Tilleman
Detail gevel
Copyright: Ronald Tilleman
Entreegebied
Copyright: Ronald Tilleman
In de vide achter de hoofdentree hangt een oude kraan
Copyright: Ronald Tilleman
Restaurant op de begane grond
Copyright: Ronald Tilleman
Veilig naar 'buiten' in de wintertuin
Copyright: Ronald Tilleman
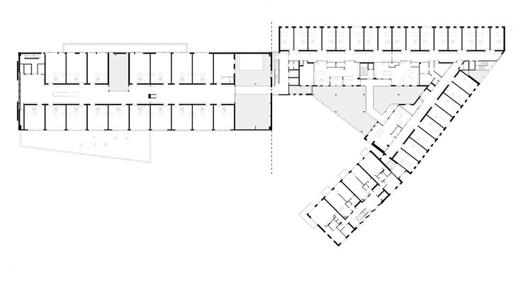
Situatie
Begane grond Plaatwerkerij en nieuwbouw
Eerste verdieping Plaatwerkerij en nieuwbouw
Tweede verdieping Plaatwerkerij en nieuwbouw
Producttags
AAN
UIT
Woonzorgcentrum Scheldehof
5 juni 2018
1
0
0
0
Atelier PRO ontwierp het Woonzorgcentrum Scheldehof, een uniek zorgcentrum in en naast de voormalige zware Plaatwerkerij op de Scheldewerf in Vlissingen. Dit spiksplinternieuwe zorgcentrum omvat tevens een mix van publieksvoorzieningen als brasserie, ateliers, bioscoop, theater, kapsalon, winkels en parkeergarage. Een boeiende opgave om zo’n kolossaal gebouw na jaren een nieuwe invulling te geven. Deze locatie versterkt het collectief geheugen; sommige bewoners van nu zijn de werknemers van de Plaatwerkerij toen. Bovendien is dit project een aanjager voor een vergeten stedelijk gebied.
In de Plaatwerkerij bevinden zich 120 units voor somatische en psychiatrische patiënten. Psycho-geriatrische patiënten zijn ondergebracht in de
nieuwbouw
die ook gebruikt wordt voor zelfstandige bewoning zonder zorg. Deze opzet zorgt voor sociaal verkeer en vitaliteit in het gebouw.
Erfgoed
Toen opdrachtgever WVO Zorg behoefte had aan nieuwe huisvesting bood de gemeente Vlissingen één optie: het Scheldeterrein in de haven. Op de voormalige scheepswerf van Vlissingen stond de in onbruik geraakte Zware Plaatwerkerij, een enorme fabriekshal en een van de erfgoediconen die herinneren aan de scheepsbouw. Een woonzorgcentrum lijkt niet de meest logische bestemming voor een oude fabrieksloods. En dat was oorspronkelijk ook niet het plan. De Zware Plaatwerkerij verkeerde heel slechte conditie. Maar WVO Zorg zag de potentie van het reusachtige gebouw, en dat op een mooie locatie aan de rand van het centrum van Vlissingen.
Behoud industriële elementen
De plaatwerkerij heeft een bijzondere maatvoering (een doos van 37.600 m3). Door de slechte conditie moest de plaatwerkerij volledig gestript worden, op het stalen geraamte en het dak na. Vandaaruit is het gebouw opnieuw opgebouwd met zoveel mogelijk zichtbare oude elementen, zoals de enorme stalen deuren, een binnen hijskraan. De dakconstructie leunt op kolossale poten met daarop oorspronkelijke markeringen die de vroegere bedrijvigheid verraden. In Nederland is het niet haalbaar om stenen te bikken en terug te metselen. Daarom is een nieuwe steen gezocht die uitdrukking gaf aan het wezen van het gebouw. Voor het licht is het gebouw meer open gemaakt. Dat het zo grondig is aangepakt, versterkte de acceptatie bij het publiek. Het is voor iedereen duidelijk dat het verpleeghuis anders is geworden dan het oorspronkelijke donkere gebouw waar sommige van de huidige bewoners nog gewerkt hebben. Op de begane grond zijn een restaurant, ateliers, een bioscoop, winkelruimtes en podia gevestigd. Daar omheen bevinden zich de 120 kamers van de somatische en psychiatrische patiënten.
Contrasterende materialen
Psycho-geriatrische patiënten zijn ondergebracht in de nieuwbouw, die voor een deel ook gebruikt wordt voor zelfstandige bewoning zonder zorg. Dat is gedaan om meer verkeer en vitaliteit in het gebouw te brengen. Om de iconiciteit van de plaatwerkerij te versterken, zijn voor de nieuwbouw contrasterende materialen gebruikt in ambachtelijk sfeer die je kunt omschrijven als een Zeeuwse no-nonsense stijl. In de gevels zijn oude metseltechnieken gebruikt en de parcellering is een knipoog naar de oude binnenstad. De plaatwerkerij en de nieuwbouw gebruiken 64 bronnen voor aardwarmte. Meer bruikbare bronnen waren er niet. Dan zou het een groen gebouw zijn geweest. Nu is het een bijna groen gebouw. Het is een bijzonder gebouw geworden door het samenstel van nieuw en oud. Niet dat daar op voorhand naar gezocht was, maar in tweede instantie was dit een verrijking geworden van het resultaat.
Beleving centraal
Vanuit de visie van WVO Zorg moest het geen gebouw worden maar een omgeving waar je plezierig kunt vertoeven en waar je dingen kunt beleven. Een fijne omgeving die ook mensen naar jou laat komen. Dus er is ruimte ontworpen voor ontmoeten, zoals een binnentuin, brasserie, winkel, werkplaats, theater, podia, ateliers, kapsalon, pedicuresalon, maar ook logeerkamers, voor als je naaste wat langer wil blijven. De opdracht aan de architect was dus het creëren van een omgeving waar beleving centraal staat. In de zorg is altijd een spanningsveld geweest tussen wonen en werken. Het was niet de bedoeling dat de Scheldehofbewoners in de werkomgeving van het personeel zouden wonen, maar in een comfortabele omgeving, waar je keuzes kunt maken. Zo is aandacht besteed aan flexibiliteit in de interieurs. Niet de instelling bepaalt de inrichting maar de bewoner.
Ontwerpen voor dementie
Het interieur van de nieuwbouw, waar de psycho-geriatrische bewoners komen, is ingetogen, warm en rustig. Het ontwerp is afgestemd op dementie. Dementie betekent dat de zintuigen slechter worden. Op het eind is het enige overgebleven zintuig de tast. Daarom hebben we in deze kamers verschillende stofferingen gebruikt voor kleden en meubels. Dat prikkelt. Hersenen gaan steeds verder terug naar de kindertijd en het ergste dat je kunt doen is kinderen opsluiten. Dus geen gesloten deuren maar een open huis, juist voor demente bewoners. Een binnentuin biedt ruimte aan de bewoners om veilig aan de wandel te gaan. Ook is aandacht besteed aan het licht, waarmee dag- en nachtritme kunnen worden beïnvloed. Om bewoners te prikkelen zijn in het interieur veel verschillende stoffen en materialen gebruikt.
Flexibel
De constructie en infrastructuur zijn zo ontworpen dat de invulling van de zorgwoningen kan veranderen in de toekomst. Aan dit ontwerp gingen een
haalbaarheidsstudie en ontwikkelplan
vooraf.
Ruimtelijke en sociale cohesie
Het uiteindelijke resultaat voldoet aan de verwachting van de opdrachtgever en de architect. Scheldehof is interessant genoeg om mensen te verleiden binnen te komen. Met gangbare nieuwbouw in de zorg zou dat een stuk moeilijker zijn. Maar juist het bijzondere karakter van het gebouw is de beste garantie dat er een vitale ontmoetingsplaats ontstaat van bewoners en omwonenden. De opdrachtgever heeft betekenis toegevoegd aan het industriële erfgoed en houdt dankzij de locatiekeuze het contact tussen de bewoners en de stad in stand. Er is een begin gemaakt met het aanhelen van een stuk stad.
Fotografie: Ronald Tilleman / Luchtfoto: Jan-Willem Jansen
Stel jezelf kort voor! Dan weet het betreffende bedrijf wie hun model gedownload heeft.
Wil je niet bij elke download jouw gegevens in hoeven voeren?
Klik dan hier om in te loggen
.
Heb je nog geen account?
Maak dan hier een gratis account aan
.
Voornaam
Achternaam
E-mailadres
Downloaden
Wanneer je modellen downloadt op Architectenweb.nl worden relevante gegevens van jou – zoals jouw naam en e-mailadres – met het betreffende bedrijf gedeeld. Meer hierover lees je in ons
privacybeleid
.
Locatie
Trefwoorden
groepswoning
scheldehof
transformatie
woningen
woningbouw
vlissingen
atelier pro
zorgcentrum
zorwoningen
zorg
nieuwbouw
woonzorgcentrum
Architectenweb Awards 2018
Zorggebouw
van het Jaar
Winnaar
Bekijk alle genomineerden
atelier PRO architekten
Neem contact op
Projectdata
Staat van realisatie
Voltooid
Start bouw
2017
Plaats
Vlissingen
Kosten
25000000
Bruto m
2
18980
Neem contact op met
atelier PRO architekten
Je bent momenteel niet ingelogd. Hierdoor is het alleen mogelijk om meer informatie per e-mail op te vragen. Wil je liever gebeld worden of documentatie per post ontvangen?
Klik dan hier om in te loggen
.
Heb je nog geen account?
Maak dan hier een gratis account aan
.
Voornaam
Achternaam
E-mailadres
Opmerkingen
Bij iedere aanvraag worden relevante gegevens van jou gedeeld met het betreffende bedrijf. Meer hierover lees je in ons
privacybeleid
.
Ja, denk met me mee rond de
materialisering van mijn project
Meer projecten van atelier PRO architekten
Eijkman Kliniek
atelier PRO architekten
IGVO International School of Delft
atelier PRO architekten
Kop van het Dok
atelier PRO architekten
Research & Diagnostiek Centrum Adore
atelier PRO architekten
Renovatie Berlage Lyceum, Amsterdam
atelier PRO architekten
Universitair Centrum Psychiatrie UMCG, Groningen
atelier PRO architekten
VMBO Veurs
atelier PRO architekten
Kantoor EDGE Stadium Amsterdam
atelier PRO architekten
Kantoor Anthura Bleiswijk
atelier PRO architekten
Albert Schweitzerschool, Rotterdam
atelier PRO architekten
Obs Pantarijn en Shri Krishna school, Utrecht
atelier PRO architekten
Rudolf Steiner College en School, Haarlem
atelier PRO architekten
Woningen ZuiderDuinen, Den Haag
atelier PRO architekten
Strabrecht College in Geldrop
atelier PRO architekten
Renovatie ING Maple
atelier PRO architekten
Kindcentrum Vosholen
atelier PRO architekten
Lumion Amsterdam schoolinterieur
atelier PRO architekten
Lumion Amsterdam
atelier PRO architekten
Kop van het Dok
atelier PRO architekten
Vakcollege Eindhoven & Aloysius de Roosten
atelier PRO architekten
Bastiaanpoort, Delft
atelier PRO architekten
Levensloopwoningen Achtmaal
atelier PRO architekten
Vitalis College
atelier PRO architekten
Herontwikkeling WTC The Hague
atelier PRO architekten
Uitbreiding Metis Montessori Lyceum
atelier PRO architekten
Koningin Sophiestraat
atelier PRO architekten
The British School of Amsterdam
atelier PRO architekten
Buurschap Roosenhorst Voorschoten
atelier PRO architekten
Revitalisatie Admiraal de Ruyter ziekenhuis
atelier PRO architekten
Liseo Boneriano, Scholengemeenschap Bonaire
atelier PRO architekten
Verbindingstunnel van Heekgarage, Enschede
atelier PRO architekten
HAVO/VWO Carmel College Salland
atelier PRO architekten
Inbreiding & herinrichting Museum Allard Pierson
atelier PRO architekten
Vrijzinnig Christelijk Lyceum (VCL)
atelier PRO architekten
Letovo School Campus Moscow
atelier PRO architekten
IJburg college 2
atelier PRO architekten
Cultuurhuis Winschoten inclusief interieur
atelier PRO architekten
MEANDER MEDISCH CENTRUM
atelier PRO architekten
Koepoortlocatie
atelier PRO architekten
Villa Strating
atelier PRO architekten
Wonen in Weelde
atelier PRO architekten
Housing Lakenham
atelier PRO architekten
Woningen Groeseind
atelier PRO architekten
Arendsdorp
atelier PRO architekten
Woningen Malburgen
atelier PRO architekten
D&B VERNIEUWBOUW EDITH STEIN COLLEGE
atelier PRO architekten
Verwaltungsgebaude IKK in Saarbrucken
atelier PRO architekten
NIEUW INTERIEUR WTC TOREN C
atelier PRO architekten
BASISSCHOLEN BINNENSTAD, BRIELLE
atelier PRO architekten
Onderwijspark Ezinge
atelier PRO architekten
Metis Montessori Lyceum Oosterpark
atelier PRO architekten
Interieur Stadhuiskwartier
atelier PRO architekten
Interieur Zorgcentrum Willibrord
atelier PRO architekten
Interieur gemeentehuis Zeist
atelier PRO architekten
MFA Huis van de Heuvel
atelier PRO architekten
Urban villa's Westeram
atelier PRO architekten
Nelson Mandela Centrum
atelier PRO architekten
Regiokantoren Enexis
atelier PRO architekten
Regiokantoren Enexis
atelier PRO architekten
Deal Ground & May Gurney
atelier PRO architekten
Cultuurhuis Winschoten inclusief interieur
atelier PRO architekten
MFA & GGZ Zeeheldenbuurt
atelier PRO architekten
Haagse Hogeschool Plein +
atelier PRO architekten
ROC Graafschap College
atelier PRO architekten
Studieopdracht hoofdkantoor Loyens & Loeff
atelier PRO architekten
Gemeentehuis Bronckhorst inclusief interieur
atelier PRO architekten
Woningen Zeeheldenbuurt
atelier PRO architekten
Prinsenhof
atelier PRO architekten
Trias VMBO school
atelier PRO architekten
Bibliotheek Bijzondere collectie Universiteit
atelier PRO architekten
Prinsenhof
atelier PRO architekten
Parkwoningen Craeyenburch
atelier PRO architekten
Prinsenhof
atelier PRO architekten
Studentenhuisvesting Laakhaven
atelier PRO architekten
Daltonschool Columbus
atelier PRO architekten
International School of The Hague
atelier PRO architekten
Politieacademie
atelier PRO architekten
Ludgerhof
atelier PRO architekten
Factorium
atelier PRO architekten
Brede school en woningen Berkel & Rodenrijs
atelier PRO architekten
Seniorenwoningen Krispijn
atelier PRO architekten
Trias VMBO school
atelier PRO architekten
Holland Park, Warschau
atelier PRO architekten
Vensterschool
atelier PRO architekten
Nieuw Land Erfgoedcentrum
atelier PRO architekten
Basisschool Paschalis en kinderopvang Jonas
atelier PRO architekten
Winkelcentrum Carnisse Veste
atelier PRO architekten
Stationsgebied
atelier PRO architekten
Wooncomplex Hage Hoek
atelier PRO architekten
De Brink Vathorst
atelier PRO architekten
Watertoren Entrepot-West
atelier PRO architekten
Rembrandthof
atelier PRO architekten
Kantoorgebouw Forum
atelier PRO architekten
Haagse Hogeschool
atelier PRO architekten
Euro-College
atelier PRO architekten
Bestuursgebouw Universiteit
atelier PRO architekten
Nederlandse Ambassade, Kiev
atelier PRO architekten
Parkeergarage Laakhaven Hollands Spoor
atelier PRO architekten
Parkeergarage Laakhaven Hollands Spoor
atelier PRO architekten
Eijkman Kliniek
atelier PRO architekten
IGVO International School of Delft
atelier PRO architekten
Kop van het Dok
atelier PRO architekten
Research & Diagnostiek Centrum Adore
atelier PRO architekten
Renovatie Berlage Lyceum, Amsterdam
atelier PRO architekten
Universitair Centrum Psychiatrie UMCG, Groningen
atelier PRO architekten
VMBO Veurs
atelier PRO architekten
Kantoor EDGE Stadium Amsterdam
atelier PRO architekten
Kantoor Anthura Bleiswijk
atelier PRO architekten
Albert Schweitzerschool, Rotterdam
atelier PRO architekten
Obs Pantarijn en Shri Krishna school, Utrecht
atelier PRO architekten
Rudolf Steiner College en School, Haarlem
atelier PRO architekten
Woningen ZuiderDuinen, Den Haag
atelier PRO architekten
Strabrecht College in Geldrop
atelier PRO architekten
Renovatie ING Maple
atelier PRO architekten
Kindcentrum Vosholen
atelier PRO architekten
Lumion Amsterdam schoolinterieur
atelier PRO architekten
Lumion Amsterdam
atelier PRO architekten
Kop van het Dok
atelier PRO architekten
Vakcollege Eindhoven & Aloysius de Roosten
atelier PRO architekten
Bastiaanpoort, Delft
atelier PRO architekten
Levensloopwoningen Achtmaal
atelier PRO architekten
Vitalis College
atelier PRO architekten
Herontwikkeling WTC The Hague
atelier PRO architekten
Uitbreiding Metis Montessori Lyceum
atelier PRO architekten
Koningin Sophiestraat
atelier PRO architekten
The British School of Amsterdam
atelier PRO architekten
Buurschap Roosenhorst Voorschoten
atelier PRO architekten
Revitalisatie Admiraal de Ruyter ziekenhuis
atelier PRO architekten
Liseo Boneriano, Scholengemeenschap Bonaire
atelier PRO architekten
Verbindingstunnel van Heekgarage, Enschede
atelier PRO architekten
HAVO/VWO Carmel College Salland
atelier PRO architekten
Inbreiding & herinrichting Museum Allard Pierson
atelier PRO architekten
Vrijzinnig Christelijk Lyceum (VCL)
atelier PRO architekten
Letovo School Campus Moscow
atelier PRO architekten
IJburg college 2
atelier PRO architekten
Cultuurhuis Winschoten inclusief interieur
atelier PRO architekten
MEANDER MEDISCH CENTRUM
atelier PRO architekten
Koepoortlocatie
atelier PRO architekten
Villa Strating
atelier PRO architekten
Wonen in Weelde
atelier PRO architekten
Housing Lakenham
atelier PRO architekten
Woningen Groeseind
atelier PRO architekten
Arendsdorp
atelier PRO architekten
Woningen Malburgen
atelier PRO architekten
D&B VERNIEUWBOUW EDITH STEIN COLLEGE
atelier PRO architekten
Verwaltungsgebaude IKK in Saarbrucken
atelier PRO architekten
NIEUW INTERIEUR WTC TOREN C
atelier PRO architekten
BASISSCHOLEN BINNENSTAD, BRIELLE
atelier PRO architekten
Onderwijspark Ezinge
atelier PRO architekten
Metis Montessori Lyceum Oosterpark
atelier PRO architekten
Interieur Stadhuiskwartier
atelier PRO architekten
Interieur Zorgcentrum Willibrord
atelier PRO architekten
Interieur gemeentehuis Zeist
atelier PRO architekten
MFA Huis van de Heuvel
atelier PRO architekten
Urban villa's Westeram
atelier PRO architekten
Nelson Mandela Centrum
atelier PRO architekten
Regiokantoren Enexis
atelier PRO architekten
Regiokantoren Enexis
atelier PRO architekten
Deal Ground & May Gurney
atelier PRO architekten
Cultuurhuis Winschoten inclusief interieur
atelier PRO architekten
MFA & GGZ Zeeheldenbuurt
atelier PRO architekten
Haagse Hogeschool Plein +
atelier PRO architekten
ROC Graafschap College
atelier PRO architekten
Studieopdracht hoofdkantoor Loyens & Loeff
atelier PRO architekten
Gemeentehuis Bronckhorst inclusief interieur
atelier PRO architekten
Woningen Zeeheldenbuurt
atelier PRO architekten
Prinsenhof
atelier PRO architekten
Trias VMBO school
atelier PRO architekten
Bibliotheek Bijzondere collectie Universiteit
atelier PRO architekten
Prinsenhof
atelier PRO architekten
Parkwoningen Craeyenburch
atelier PRO architekten
Prinsenhof
atelier PRO architekten
Studentenhuisvesting Laakhaven
atelier PRO architekten
Daltonschool Columbus
atelier PRO architekten
International School of The Hague
atelier PRO architekten
Politieacademie
atelier PRO architekten
Ludgerhof
atelier PRO architekten
Factorium
atelier PRO architekten
Brede school en woningen Berkel & Rodenrijs
atelier PRO architekten
Seniorenwoningen Krispijn
atelier PRO architekten
Trias VMBO school
atelier PRO architekten
Holland Park, Warschau
atelier PRO architekten
Vensterschool
atelier PRO architekten
Nieuw Land Erfgoedcentrum
atelier PRO architekten
Basisschool Paschalis en kinderopvang Jonas
atelier PRO architekten
Winkelcentrum Carnisse Veste
atelier PRO architekten
Stationsgebied
atelier PRO architekten
Wooncomplex Hage Hoek
atelier PRO architekten
De Brink Vathorst
atelier PRO architekten
Watertoren Entrepot-West
atelier PRO architekten
Rembrandthof
atelier PRO architekten
Kantoorgebouw Forum
atelier PRO architekten
Haagse Hogeschool
atelier PRO architekten
Euro-College
atelier PRO architekten
Bestuursgebouw Universiteit
atelier PRO architekten
Nederlandse Ambassade, Kiev
atelier PRO architekten
Parkeergarage Laakhaven Hollands Spoor
atelier PRO architekten
Parkeergarage Laakhaven Hollands Spoor
atelier PRO architekten
Toon alles
Andere Projecten
Kooi stadion - SC Cambuur
Houthandel van Dam
Veilige daktoegang voor Aan de Molenwerf
Gorter Luiken BV
Veilige daktoegang voor nieuw gemeentehuis
Gorter Luiken BV
Ziekenhuiscomplex Rijeka in Susak, Kroatië
ULMA Architectural Solutions
Luxe Vingui Noir houten uitbouw
Houthandel van Dam
BMV Heerlerbaan - Heerlen
Houthandel van Dam
Watervilla's in de haven van Kortenhoef
Houthandel van Dam
Beatrixhof
Houthandel van Dam
Madonna Antwerpen - Akoestiek als smaakmaker
OWA Benelux - Akoestiek & Design
Renovatie zorginstelling dementie en alzheimer
Storax
Ontwikkeling van Circulair Energielandschap
Buro De Haan
ROCKWOOL LM Klima: efficiënter isoleren bij Xplore
ROCKWOOL B.V.
Ga naar het projecten-overzicht
Voor een optimale gebruikservaring plaatst Architectenweb functionele cookies. Wat de verschillende cookies precies doen leggen we uit in een
overzicht
. Cookies van social media kun je optioneel
aanzetten
.
Akkoord
Instellingen
Annuleren
OK
Sluiten
Doorgaan
Inloggen
Maak een gratis persoonlijk account aan
Feedback
Feedback
Wij horen graag jouw feedback. Laat je reactie achter en eventueel jouw e-mail adres.
Reactie
Verstuur