Projecten
Producten
Bedrijven
Vacatures
Agenda
Awards
Podcasts
more_horiz
Videos
Magazine
Thema's
Favorieten
Profiel
Uitloggen
Abonneer je nu op onze nieuwsbrieven!
Abonneren
Nee, bedankt
Ja, denk met me mee rond de
materialisering van mijn project
Copyright: Hugo Thomassen
Copyright: Hugo Thomassen
Copyright: Hugo Thomassen
Copyright: Hugo Thomassen
Copyright: Hugo Thomassen
Copyright: Hugo Thomassen
Copyright: Hugo Thomassen
Copyright: Hugo Thomassen
Copyright: Hugo Thomassen
Copyright: Hugo Thomassen
Copyright: Hugo Thomassen
Copyright: Hugo Thomassen
Copyright: Dreessen Willemse Architecten
Copyright: Dreessen Willemse Architecten
Copyright: Dreessen Willemse Architecten
Copyright: Dreessen Willemse Architecten
Appartementengebouw tussen de Geul en de Cauberg
4 mei 2020, 14:54
Aan de voet van de Cauberg, nabij het centrum van Valkenburg, heeft Jongen Projectontwikkeling het plan Diepengaerde gerealiseerd, met vijf appartementengebouwen binnen een complete gebiedsontwikkeling. Het sluitstuk en grootste gebouwblok is een ontwerp van
Dreessen Willemse Architecten
.
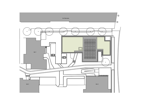
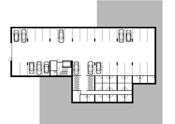
Diepengaerde omvat vijf kleinschalige appartementengebouwen in een parkachtige omgeving, die zich oriënteren op de lager gelegen rivier, de Geul. Blok 5 is het grootste gebouw in het park en biedt plaats aan 21 appartementen, verdeeld over drie bouwlagen. De ondergrondse garage telt 34 parkeerplaatsen.
Verspringend
Dreessen Willemse Architecten heeft het volume ontworpen als een aantal kleinere bouwdelen, die ten opzichte van elkaar verspringen. Vrijwel alle appartementen liggen hierdoor op een hoek, waar een ruime loggia is gesitueerd, en genieten een uitzicht op het park en de rivier, dan wel de beboste hellingen van de Cauberg.
Zoals ook de andere appartementengebouwen heeft Blok 5 een donkere plint, die voor het grootste deel in de helling is geplaatst. Het parkeren is daardoor aan het zicht onttrokken. De bovenbouw is gerealiseerd in en lichter getinte steen, afgewisseld met houten vlakken en grote raampuien. Dit verleent het gebouw een lichte en warme uitstraling, aldus het architectenbureau.
Diepengaerde
Het gebouw naar ontwerp van Dreessen Willemse Architecten is het sluitstuk van een complete gebiedsontwikkeling. Voor de locatie was al een aantal ambitieuze plannen ontworpen en weer stopgezet, voordat
Humblé Martens & Willems Architecten
een vernieuwd stedenbouwkundig plan en bestemmingsplan maakte.
Humblé Martens & Willems ontwierp ook een van de vijf appartementengebouwen die in het plan een plek kregen. Naast dit bureau en Dreessen Willemse Architecten waren de bureaus Lancee Architecten, MH1 Architecten en Coenegracht Architectuur in samenwerking met DI-vers architecten betrokken bij het project Diepengaerde.
Trefwoorden
humblé martens & willems architecten
dreessen willemse architecten
woningbouw
appartementencomplex
valkenburg
appartementengebouw
Locatie
Best gelezen
1
PSV presenteert plannen voor uitbreiding Philips Stadion
vrijdag, 20 maart
2
Luxe appartementengebouw naast klooster Etten-Leur door Studio AAAN klaar
donderdag, 19 maart
3
Houten Stelthuis van Woonpioniers is aardbevings- en klimaatbestendig
woensdag, 18 maart
4
BureauVanEig verbetert uitstraling Haagse rijtjeswoningen bij verduurzaming
dinsdag, 17 maart
5
KAAN Architecten en De Zwarte Hond winnen tender voor Area 19 TU Eindhoven
vrijdag, 20 maart
Gerelateerde nieuwsberichten
Eerste stadswoningen in Sphinxkwartier refereren aan fabrieksverleden
21 januari 2021
Een open villa op besloten bosperceel
19 mei 2021
Valkenburg wil ingestorte uitkijktoren herbouwen
17 maart 2025
Martens, Willems & Humblé Architecten – genomineerd voor prijs Architect van het Jaar 2024
7 oktober 2024
Martens Willems & Humblé architecten wordt martenswillems architecten
16 april 2025
Tentoonstelling ‘Operative History’ door MartensWillems Architecten
9 juli 2025
De Groene Loper: wonen aan een eigentijdse lindenlaan
20 maart 2024
Villa als lijnenspel van glas, hout en schoon beton
11 december 2019
Eigentijdse nieuwbouw tussen monumenten
22 september 2014
Van gesloten bankgebouw naar open werkomgeving
6 mei 2014
META realiseert afwisselend en coherent sociale woningbouwproject
22 april 2020
Amersfoort krijgt twee appartementenblokken nabij binnenstad
4 maart 2020
Appartementengebouw De Prins heeft geplooide bovenzijde
14 januari 2020
Appartementengebouw op voorheen boerderijlocatie in Westergouwe
9 januari 2020
Atelier Van Wengerden realiseert woongebouw op Amsterdam Science Park
10 oktober 2019
Wiel Arets realiseert dubbel wooncomplex met glazen gevelbekleding
26 september 2019
Villa Carnegie zoekt verbinding met historie en groen
13 september 2019
Een 'pakhuis' met veel maatwerk in de woningen
22 september 2020
Appartementengebouw met oog voor gemeenschap
23 februari 2021
Appartementencomplex De Colijn verenigt verschillende karakters
14 juni 2021
Dreessen Willemse presenteert opgeleverde Villa SGB in Heerlen
30 maart 2022
Een villa als een compositie van volumes en openingen
16 mei 2022
Eerste stadswoningen in Sphinxkwartier refereren aan fabrieksverleden
21 januari 2021
Een open villa op besloten bosperceel
19 mei 2021
Valkenburg wil ingestorte uitkijktoren herbouwen
17 maart 2025
Martens, Willems & Humblé Architecten – genomineerd voor prijs Architect van het Jaar 2024
7 oktober 2024
Martens Willems & Humblé architecten wordt martenswillems architecten
16 april 2025
Tentoonstelling ‘Operative History’ door MartensWillems Architecten
9 juli 2025
De Groene Loper: wonen aan een eigentijdse lindenlaan
20 maart 2024
Villa als lijnenspel van glas, hout en schoon beton
11 december 2019
Eigentijdse nieuwbouw tussen monumenten
22 september 2014
Van gesloten bankgebouw naar open werkomgeving
6 mei 2014
META realiseert afwisselend en coherent sociale woningbouwproject
22 april 2020
Amersfoort krijgt twee appartementenblokken nabij binnenstad
4 maart 2020
Appartementengebouw De Prins heeft geplooide bovenzijde
14 januari 2020
Appartementengebouw op voorheen boerderijlocatie in Westergouwe
9 januari 2020
Atelier Van Wengerden realiseert woongebouw op Amsterdam Science Park
10 oktober 2019
Wiel Arets realiseert dubbel wooncomplex met glazen gevelbekleding
26 september 2019
Villa Carnegie zoekt verbinding met historie en groen
13 september 2019
Een 'pakhuis' met veel maatwerk in de woningen
22 september 2020
Appartementengebouw met oog voor gemeenschap
23 februari 2021
Appartementencomplex De Colijn verenigt verschillende karakters
14 juni 2021
Dreessen Willemse presenteert opgeleverde Villa SGB in Heerlen
30 maart 2022
Een villa als een compositie van volumes en openingen
16 mei 2022
Toon alles
Andere nieuwsberichten
Uitbreiding van New Museum door OMA officieel geopend
56 minuten geleden
Het nieuwe volume, dat tegen het door SANAA ontworpen museumgebouw uit 2002 is geplaats, biedt onder meer ruimte aan nieuwe expositiezalen, educatiefaciliteiten en een eigen onderkomen voor de culturele ‘incubator’ van het museum NEW INC.
Vernieuwde Welstandsnota Rotterdam staat in teken van Omgevingswet, duurzaamheid en gebruiksgemak
3 uur geleden
De Rotterdamse Welstandsnota uit 2012 is geactualiseerd. Daarbij waren nieuwe inzichten en regelgeving, alsmede het gebruiksgemak voor gemeente en aanvragers bepalend.
PSV presenteert plannen voor uitbreiding Philips Stadion
20 maart, 3:37
De Eindhovense club wil de capaciteit van zijn onderkomen opschroeven met maximaal 25.000 bezoekers. Om dit te bewerkstelligen, komt er een nieuwe schil rond het stadion waarin een derde ring is opgenomen.
Rijkswaterstaat staakt renovatie markante houten Krùsrak-brug in Sneek
20 maart, 11:32
Tijdens de renovatie werd duidelijk dat de constructieve veiligheid van de brug niet langer kan worden verzekerd, laat RWS weten. De uit 2008 stammende Krúsrak-brug over de rijksweg 7 is ontworpen door Onix en Archterbosch Architecten.
Boekholt schrapt wet die voorrang statushouders stopt
2 uur geleden
De minister werkt aan een alternatieve wet, die pas in werking treedt als er genoeg mogelijkheden zijn om statushouders aan een huis te helpen.
Friesland brengt duizenden karakteristieke boerderijen in kaart
20 maart, 2:16
Door alle informatie over de voor het landschap kenmerkende gebouwen op één plek te brengen, moet het makkelijker worden om ze te behouden.
ING: bijna de helft van de huiseigenaren stelt verduurzaming uit
20 maart, 12:18
De meeste mensen vinden dat de overheid te weinig doet om dit te stimuleren.
Rekenkamer kraakt resultaten EU-innovatiefonds voor verduurzaming
20 maart, 9:25
Het Innovatiefonds van de Europese Unie levert veel minder resultaat op dan verwacht op het gebied van verduurzaming en innovatie.
Provincie schrapt beoogde locaties windturbines in Groene Hart
19 maart, 1:35
De provincie had twaalf plekken op het oog, maar dat leidde tot maatschappelijk en politiek verzet.
Staten Utrecht willen netcongestie versneld aanpakken
19 maart, 9:44
De fracties wezen op de noodzaak van het zo snel mogelijk realiseren van een hoogspanningsstation dat essentieel is voor het opsplitsen van het elektriciteitsnetwerk tussen de Flevopolder, Gelderland en Utrecht.
Ga naar het nieuws-archief
Robert Muis
Redacteur
0
0
0
0
Voor een optimale gebruikservaring plaatst Architectenweb functionele cookies. Wat de verschillende cookies precies doen leggen we uit in een
overzicht
. Cookies van social media kun je optioneel
aanzetten
.
Akkoord
Instellingen
Annuleren
OK
Sluiten
Doorgaan
Inloggen
Maak een gratis persoonlijk account aan
Feedback
Feedback
Wij horen graag jouw feedback. Laat je reactie achter en eventueel jouw e-mail adres.
Reactie
Verstuur