Projecten
Producten
Bedrijven
Vacatures
Agenda
Awards
Podcasts
more_horiz
Videos
Magazine
Thema's
Favorieten
Profiel
Uitloggen
Copyright: Arjen Veldt
Copyright: Arjen Veldt
Copyright: Arjen Veldt
Copyright: Arjen Veldt
Copyright: Arjen Veldt
Copyright: Arjen Veldt
Copyright: Arjen Veldt
Copyright: Arjen Veldt
Copyright: Arjen Veldt
Copyright: Arjen Veldt
Villa Carnegie - doorsneden
Copyright: Braaksma & Roos Architectenbureau
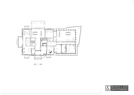
Villa Carnegie - plattegrond begane grond
Copyright: Braaksma & Roos Architectenbureau
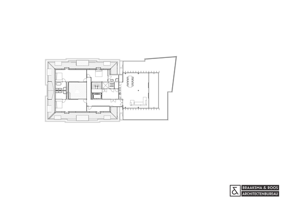
Villa Carnegie - plattegrond 4e verdieping
Copyright: Braaksma & Roos Architectenbureau
Villa Carnegie - zijaanzicht
Copyright: Braaksma & Roos Architectenbureau
Villa Carnegie zoekt verbinding met historie en groen
13 september 2019, 14:50
Op een bijzondere, groene locatie in de Haagse binnenstad ligt de statige voormalige kantoorvilla Carnegie. Het herontwikkelde en uitgebreide pand biedt ruimte aan negen appartementen en een ondergrondse parkeergarage, waarbij het ontwerp van
Braaksma & Roos Architectenbureau
een krachtige verbinding tussen oud en nieuw, en tussen gebouw en omgeving maakt.
Het begin 20
e
-eeuwse kantoorpand ligt in de Haagse ambassadewijk en aan de rand van Park Zorgvliet. De villa was door verschillende verbouwingen en uitbreidigen in de afgelopen decennia min of meer verdubbeld in grootte; het gebouw had echter ook zijn karakteristieke uitstraling grotendeels verloren, vertelt Braaksma & Roos Architectenbureau.
Groen
Een belangrijk uitgangspunt bij de herontwikkeling tot appartementengebouw was om de bijzondere kwaliteiten van de villa opnieuw in te zetten, legt het architectenbureau uit. Het bureau wilde met zijn ontwerp een sterke verbinding tussen het pand en de groene omgeving zoeken. De nieuwbouw die naar ontwerp van Braaksma & Roos is toegevoegd, is dan ook naar buiten georiënteerd.
“De tuin is een essentieel onderdeel van het complex”, stelt het architectenbureau. “Zowel het bestaande gebouw als de recente uitbreiding gaan een bijzondere relatie aan met de nieuwe tuin, de vijver en het omliggende groen.”
Buitenhuis
De architecten hebben de uitbreiding voorzien van grote raampartijen en ruime balkons. Dit zorgt ten eerste voor de verbinding van interieur en exterieur, en ten tweede voor een lichte en transparante uitstraling van de gevel.
Met de oorspronkelijke villa is dit gevelbeeld enerzijds in harmonie, anderzijds creëert het een spannend spel tussen oud en nieuw. “De aanbouw voelt als het buitenhuis”, legt Braaksma & Roos uit. “Met als kers op de taart een prachtig uitzicht op het Vredespaleis.”
Verfijnd weefsel
Met het oog op de privacy van de bewoners zijn langs alle ramen stalen luiken geïnstalleerd. Het daarbij gebruikte palet aan verschillende bronstinten zorgt voor een afwisselend gevelbeeld en sluit aan op de tinten in de omgeving. De structuren van zowel de luiken als het hekwerk zijn ontworpen in het verlengde van de verfijnde taal, die bij het oorspronkelijke gebouw is gehanteerd.
Als een delicaat open weefsel strekt het hekwerk rond de nieuwbouw. De gestileerde details heeft het architectenbureau ook toegepast in de vloeren van de balkons. De taps toelopende balkonvloeren suggereren smalle lijnen en resulteren in een elegant voorkomen.
De ruime woningen – met een oppervlakte van 200 tot 400 m
2
– strekken zich uit over zowel de oorspronkelijke villa als de uitbreiding. Door een reeks van geschakelde vertrekken – gebaseerd op de klassieke structuur van de villa – ervaren de bewoners zowel de historie als het eigentijdse van het lichte ‘buitenhuis’.
Tuin
Voor de buitenruimte heeft Braaksma & Roos een integraal ontwerp ontwikkeld in samenwerking met landschapsarchitectenbureau
Bosch Slabbers
. Het plan kenmerkt zich door monumentale bomen en kruidenperken, een gemeenschappelijk beschut terras en een langgerekte vijver. Onder de vijver ligt de inrit naar de garage met achttien parkeerplaatsen en individuele bergingen.
Trefwoorden
bosch slabbers
transformatie
villa carnegie
braaksma & roos architectenbureau
appartementengebouw
den haag
tuin
villa
kantoorvilla
Locatie
Best gelezen
1
Plan voor nieuwe buurt op plek hoofdkantoor ABN AMRO op de Zuidas
vrijdag, 10 oktober
2
Flat Amsterdam-Noord 'aangekopt' met 53 seniorenwoningen
donderdag, 9 oktober
3
Nominaties Publiek gebouw van het Jaar 2025 bekend
woensdag, 8 oktober
4
‘Alexander Straub zet grote groep vakgenoten weg als niet-relevant’
vrijdag, 10 oktober
5
bureau SLA ontdekt, transformeert en gebruikt rijksmonumentale werkplaats
donderdag, 9 oktober
Gerelateerde nieuwsberichten
Directiewisseling bij BoschSlabbers
19 januari 2021
Woongebouw als ferm gebaar in Amsterdamse buurt
6 november 2019
Vlietzone rond Rotterdamsebaan omgevormd tot coherent natuur- en recreatiegebied
12 juli 2021
BoschSlabbers wint ontwerpwedstrijd voor herinrichting Grote Markt in Hulst
3 juli
Drie nieuwe partners bij Braaksma & Roos Architectenbureau
29 februari 2024
LocHal, Oostlijn en Kijkkoepel winnaars NRP Gulden Feniks 2019
26 juni 2019
Braaksma & Roos presenteert herontwikkeld station Delft
30 april 2019
Nieuwe impressies van verbouwing POST Rotterdam
4 februari 2019
Tilburgse LocHal is ruimtelijke ontmoetings- en werkplek
21 januari 2019
The Student Hotel Maastricht opent in Eiffelgebouw
16 oktober 2017
Herontwikkeld landgoed Broekhuizen geopend
3 januari 2017
Verdichting arbeiderswijk met behoud karakter
30 november 2016
Panorama Mesdag gerestaureerd en uitgebreid
2 april 2015
Verborgen stadsvilla van Atelier van Wengerden
15 oktober 2019
Braaksma & Roos Architectenbureau benoemt drie associate partners
5 februari 2020
De Vereeniging weer open en feestelijk na renovatie (+video)
21 februari 2020
Appartementengebouw tussen de Geul en de Cauberg
4 mei 2020
Zorggebouw in chaletstijl herbestemd tot luxe woningen
25 augustus 2020
Directiewisseling bij BoschSlabbers
19 januari 2021
Woongebouw als ferm gebaar in Amsterdamse buurt
6 november 2019
Vlietzone rond Rotterdamsebaan omgevormd tot coherent natuur- en recreatiegebied
12 juli 2021
BoschSlabbers wint ontwerpwedstrijd voor herinrichting Grote Markt in Hulst
3 juli
Drie nieuwe partners bij Braaksma & Roos Architectenbureau
29 februari 2024
LocHal, Oostlijn en Kijkkoepel winnaars NRP Gulden Feniks 2019
26 juni 2019
Braaksma & Roos presenteert herontwikkeld station Delft
30 april 2019
Nieuwe impressies van verbouwing POST Rotterdam
4 februari 2019
Tilburgse LocHal is ruimtelijke ontmoetings- en werkplek
21 januari 2019
The Student Hotel Maastricht opent in Eiffelgebouw
16 oktober 2017
Herontwikkeld landgoed Broekhuizen geopend
3 januari 2017
Verdichting arbeiderswijk met behoud karakter
30 november 2016
Panorama Mesdag gerestaureerd en uitgebreid
2 april 2015
Verborgen stadsvilla van Atelier van Wengerden
15 oktober 2019
Braaksma & Roos Architectenbureau benoemt drie associate partners
5 februari 2020
De Vereeniging weer open en feestelijk na renovatie (+video)
21 februari 2020
Appartementengebouw tussen de Geul en de Cauberg
4 mei 2020
Zorggebouw in chaletstijl herbestemd tot luxe woningen
25 augustus 2020
Toon alles
Andere nieuwsberichten
Bureau POLO geselecteerd als architect voor nieuw dienstencentrum in Beerse
Gisteren, 13:56
Het bureau POLO heeft een voorontwerp voor een nieuw gemeentelijk dienstencentrum van de gemeente Beerse gemaakt. Het project kwam, in opdracht van de gemeente, tot stand in samenwerking met ontwikkelaar en bouwer Groep Van Roey.
PosadMaxwan en Civic Architects maken plan voor herontwikkeling KMS-terrein Hengelo
Gisteren, 12:16
De gemeente heeft de grond deze zomer aangekocht en gaat in samenwerking met ontwikkelaar Trebbe het historische industriegebied herontwikkelen.
Nieuw shortstayhotel door Houben / Van Mierlo in stationsgebied Den Bosch
13 oktober, 1:47
Het shortstayhotel met 34 studio’s is gebouwd op de plek van het gesloopte Hotel Terminus. De voorgevel is ontworpen op basis van een analyse van de voorgevel van het oude hotel.
ONE Architecture & Urbanism werkt mee aan masterplan transformatie havengebied New York
10 oktober, 4:34
ONE Architecture & Urbanism werkt mee aan de transformatie van een vijftig hectare omvattend havengebied in New York tot een maritieme haven en een woonwijk.
PBL: Ook nieuw plan voor circulaire economie is niet genoeg
Gisteren, 14:42
In de nieuwe versie van het zogeheten Nationaal Programma Circulaire Economie staan ‘vooral veel intenties en plannen’, schrijft het planbureau.
Bossen en bodems in zwaar weer, klimaatraad maakt zich zorgen
Gisteren, 10:24
De klimaatverandering versnelt en de biodiversiteit gaat hard achteruit, terwijl er volgens de WKR steeds meer van de bossen en bodems wordt gevraagd.
'Helft investeerders spendeert opbrengsten verkochte huurhuizen in buitenland'
13 oktober, 2:41
Bijna de helft van de vastgoedinvesteerders die in Nederland huurwoningen van de hand doen, investeert de opbrengsten liever in het buitenland.
Duitsland slokt Nederlandse bouwkracht op
13 oktober, 11:16
De Duitse plannen voor honderden miljarden aan bouwinvesteringen zetten Nederland klem, waarschuwt ABN AMRO.
Renovatie en vernieuwing Fierenshoven beloond met Vlaamse opdrachtgeversprijs
10 oktober, 3:27
Het project naar ontwerp van Happel Cornelisse Verhoeven in samenwerking met Molenaar & Co architecten ontving de Prijs Wivina Demeester 2025.
PBL: klimaatdoelen blijven bij meeste partijen buiten beeld
10 oktober, 2:39
Verdere afbouw van de hypotheekrenteaftrek, een maatregel die in meerdere verkiezingsprogramma's terugkomt, doet wel 'iets voor de woningmarkt'.
Ga naar het nieuws-archief
Robert Muis
Redacteur
0
0
0
0
Voor een optimale gebruikservaring plaatst Architectenweb functionele cookies. Wat de verschillende cookies precies doen leggen we uit in een
overzicht
. Cookies van social media kun je optioneel
aanzetten
.
Akkoord
Instellingen
Annuleren
OK
Sluiten
Doorgaan
Inloggen
Maak een gratis persoonlijk account aan
Feedback
Feedback
Wij horen graag jouw feedback. Laat je reactie achter en eventueel jouw e-mail adres.
Reactie
Verstuur