Projecten
Producten
Bedrijven
Vacatures
Agenda
Awards
Podcasts
more_horiz
Videos
Magazine
Favorieten
Profiel
Uitloggen
Abonneer je nu op onze nieuwsbrieven!
Abonneren
Nee, bedankt
Ja, denk met me mee rond de
materialisering van mijn project
Copyright: Peter Tijhuis
Copyright: Peter Tijhuis
Copyright: Peter Tijhuis
Copyright: Peter Tijhuis
Copyright: Peter Tijhuis
Copyright: Peter Tijhuis
Copyright: Peter Tijhuis
Copyright: Peter Tijhuis
Copyright: Peter Tijhuis
Copyright: Peter Tijhuis
Copyright: Space Encounters
Copyright: Space Encounters
Copyright: Space Encounters
Copyright: Space Encounters
Copyright: Space Encounters
Copyright: Space Encounters
Het Platform in De Nieuwe Stad Amersfoort klaar
25 september 2019, 16:13
Het Platform is ontworpen door
Space Encounters
in samenwerking met
Schipper Bosch
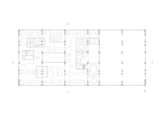
. Boven een oude loods van de vroegere Prodentfabriek is een nieuw gebouw gerealiseerd met daarin het hoofdkantoor van organisatieadviesbureau Twynstra Gudde, flexplekken en flexruimtes.
De nieuwbouw is als een tafel over de bestaande hal gebouwd.
Hoewel de oudbouw en het nieuwe volume elkaar niet raken, staan ze in ieder geval visueel toch in verbinding doordat de kolommen van de nieuwbouw het ritme van de loods volgen. Daarnaast zijn in het nieuwe deel architectonische kenmerken van de ‘onderbuurman’ opgenomen, zoals de wit geglazuurde keramische tegels in de gevel die vanwege hun weerbaarheid al van oudsher gebruikt worden in industriële interieurs. Ook refereren de tegels aan de ‘superstructuren’ van de legendarische avantgardistische architectuurgroep Superstudio.
Het Platform is met zeven stalen spanten over de hal heen gebouwd. De spanten overspannen elk vierendertig meter en staan op ruim veertien meter van elkaar. Tussen de spanten zijn holle vloeren met geïntegreerde installaties gerealiseerd. Dankzij hun lichte gewicht kon fors worden bespaard op het gewicht van het totale gebouw, inclusief de fundering.
Het gebouw staat aan het Oliemolenhof, een plein dat naar een plan van
ZUS
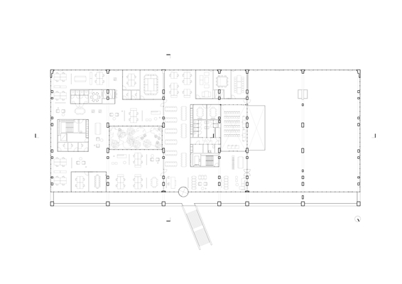
is ingericht als ‘bos’ en oplaadplaats voor elektrische voertuigen. Aan de pleinzijde kraagt Het Platform drie meter uit over de loods, waardoor een overdekt entreegebied met ruimte voor fietsparkeerplekken is ontstaan. Op de eerste verdieping fungeert de uitkraging als balkon en buitenwerkplek. Via een drie meter brede betonnen trap is het balkon verbonden met het plein.
In de bestaande loods zijn al enige tijd poppodium Fluor en supermarkt Picnic gevestigd. Er is bij de nieuwbouw volgens een ‘tafelmodel’ gekozen, zodat de identiteit en herkenbaarheid van de bestaande gebouwen in het vroegere industriële gebied behouden blijven. Dit staat voorgeschreven in het ambitiedocument voor
De Nieuwe Stad
, zoals het gebied nu heet.
De Nieuwe Stad
Aan de rand van de oude binnenstad van Amersfoort wordt het industriële Oliemolenkwartier door ontwikkelaar-belegger Schipper Bosch herontwikkeld tot een gemengd stedelijk gebied. In 'De Nieuwe Stad', zoals het gebied gedoopt is, komt een mix van grote en kleine bedrijven die actief zijn in uiteenlopende sectoren als zakelijke dienstverlening, horeca, onderwijs en cultuur. Om de levendigheid te versterken en een gemeenschap te creëren, worden er bijvoorbeeld festivals georganiseerd en krijgen de ‘bewoners’ gedeelde moestuinbakken.
ZUS is als stedenbouwkundige bij het project betrokken en voor de verschillende architectonische opgaven zijn voornamelijk jonge bureaus ingeschakeld. Het Platform is de eerste gerealiseerde nieuwbouw in het gebied.
Trefwoorden
herontwikkeling
space encounters
schipper bosch
zus
de nieuwe stad
kantoor
amersfoort
Locatie
Best gelezen
1
Architect Cees Dam op 93-jarige leeftijd overleden
dinsdag, 14 april
2
Powerhouse Company wint aanbesteding voor verbouwing Vista College Maastricht
dinsdag, 14 april
3
Tien bureaus geselecteerd voor tweede ronde nieuwbouw De Meervaart
woensdag, 15 april
4
Voormalig hoofdkantoor Ferro in M4H verbouwd tot bedrijfsverzamelgebouw
woensdag, 15 april
5
QWA heeft A16 boven Rotterdam eigen identiteit gegeven
maandag, 13 april
Gerelateerde nieuwsberichten
Driehoekig woongebouw met groene balkons voor De Nieuwe Stad
16 mei 2024
Studio Muoto ontwerpt industriële woontoren voor De Nieuwe Stad
15 mei 2024
Het Platform bekroond als Kantoorgebouw van het Jaar 2020
28 oktober 2020
Christopher Dyvik: “Wij werken sterk vanuit de context"
22 september 2025
Overeenkomst getekend voor 267 woningen in De Hoef-West
6 mei 2020
Van fabriekshal tot kantooromgeving met behoud van licht en ruimte
29 september 2020
Schipper Bosch koopt historisch Rembrandt Theater Arnhem
27 januari 2025
Space Encounters ontwerpt ShowDepot voor collectie De.Groen aan haven in Arnhem
27 maart 2025
Dubbel woongebouw Space Encounters op Oostenburg opgeleverd
5 juni 2023
Dolmen – mysterieus object aan de rand van de Veluwe
28 november 2025
Karakteristieke villa gerenoveerd en uitgebreid met passend contrast
10 november 2022
Expressieve architectuur van Space Encounters voor woonbuurt Wisselspoor
21 september 2022
Moke Architecten presenteert twee torens in Hogekwartier Amersfoort
30 november 2021
Winnaars Amersfoortse Stadsbouwprijs 2020-2021 bekend
30 april 2021
SVP presenteert ensemble woonblokken langs spoor Amersfoort
18 september 2020
Heren 5 ontwerpt woonblokken in nieuwe wijk Amersfoort
3 september 2020
Woningbouw LEVS markeert oostelijke entree Amersfoort
26 augustus 2020
Woningen met fiscaal aftrekbare werkruimte in gebouw The Doors
16 juni 2020
Ingetogen en krachtig functioneel gebouw door Space Encounters
2 juni 2020
Amersfoort bouwt nieuw stadhuis op Trapeziumlocatie
13 november 2019
Winnend ontwerp van Space Encounters in Zwitsers transformatieproject
28 oktober 2019
De Kort Van Schaik ontwerpt transformatie markant Nefkens-gebouw
25 april 2019
Schipper Bosch: “Wij nemen de tijd om een levendig stuk Amersfoort te realiseren”
6 maart 2019
In beeld: tentoonstelling Stadsbeelden
8 februari 2019
Bouw Het Platform in De Nieuwe Stad Amersfoort van start
14 mei 2018
Aanleg rondweg Amersfoort mag doorgaan
24 januari 2018
Cepezed ontwerpt collectiedepot rijksmusea
26 mei 2016
Nieuw topsportcomplex voor Amersfoort
12 september 2014
Nieuw leven voor De Paviljoens in Amersfoort
1 september 2014
Eemhuis opent officieel zijn deuren
23 mei 2014
Eemhuis: cultureel kruispunt van Amersfoort
10 april 2014
Openbare ruimte Eemplein Amersfoort is klaar
22 november 2012
Driehoekig woongebouw met groene balkons voor De Nieuwe Stad
16 mei 2024
Studio Muoto ontwerpt industriële woontoren voor De Nieuwe Stad
15 mei 2024
Het Platform bekroond als Kantoorgebouw van het Jaar 2020
28 oktober 2020
Christopher Dyvik: “Wij werken sterk vanuit de context"
22 september 2025
Overeenkomst getekend voor 267 woningen in De Hoef-West
6 mei 2020
Van fabriekshal tot kantooromgeving met behoud van licht en ruimte
29 september 2020
Schipper Bosch koopt historisch Rembrandt Theater Arnhem
27 januari 2025
Space Encounters ontwerpt ShowDepot voor collectie De.Groen aan haven in Arnhem
27 maart 2025
Dubbel woongebouw Space Encounters op Oostenburg opgeleverd
5 juni 2023
Dolmen – mysterieus object aan de rand van de Veluwe
28 november 2025
Karakteristieke villa gerenoveerd en uitgebreid met passend contrast
10 november 2022
Expressieve architectuur van Space Encounters voor woonbuurt Wisselspoor
21 september 2022
Moke Architecten presenteert twee torens in Hogekwartier Amersfoort
30 november 2021
Winnaars Amersfoortse Stadsbouwprijs 2020-2021 bekend
30 april 2021
SVP presenteert ensemble woonblokken langs spoor Amersfoort
18 september 2020
Heren 5 ontwerpt woonblokken in nieuwe wijk Amersfoort
3 september 2020
Woningbouw LEVS markeert oostelijke entree Amersfoort
26 augustus 2020
Woningen met fiscaal aftrekbare werkruimte in gebouw The Doors
16 juni 2020
Ingetogen en krachtig functioneel gebouw door Space Encounters
2 juni 2020
Amersfoort bouwt nieuw stadhuis op Trapeziumlocatie
13 november 2019
Winnend ontwerp van Space Encounters in Zwitsers transformatieproject
28 oktober 2019
De Kort Van Schaik ontwerpt transformatie markant Nefkens-gebouw
25 april 2019
Schipper Bosch: “Wij nemen de tijd om een levendig stuk Amersfoort te realiseren”
6 maart 2019
In beeld: tentoonstelling Stadsbeelden
8 februari 2019
Bouw Het Platform in De Nieuwe Stad Amersfoort van start
14 mei 2018
Aanleg rondweg Amersfoort mag doorgaan
24 januari 2018
Cepezed ontwerpt collectiedepot rijksmusea
26 mei 2016
Nieuw topsportcomplex voor Amersfoort
12 september 2014
Nieuw leven voor De Paviljoens in Amersfoort
1 september 2014
Eemhuis opent officieel zijn deuren
23 mei 2014
Eemhuis: cultureel kruispunt van Amersfoort
10 april 2014
Openbare ruimte Eemplein Amersfoort is klaar
22 november 2012
Toon alles
Gerelateerde podcasts
Gesprek met Gijs en Joost Baks over de publieke dimensie van architectuur
1 juni 2023
Andere nieuwsberichten
OMA gebruikt bestaand gebouw als canvas bij renovatie Edo-Tokyo Museum
Gisteren, 15:55
Na een renovatie van bijna vier jaar is het Edo-Tokyo Museum in de Japanse hoofdstad Tokio heropend. OMA nam het uit 1993 stammende gebouw, dat is ontworpen door de Metabolist Kiyonori Kikutake, onder handen.
Winnaars verkiezing Beste Bossche Gebouw 2020–2025 bekend
Gisteren, 14:16
De vakjury en het publiek wezen elk in drie categorieën een winnaar aan. Daarnaast kende vakjury nog een wildcard toe aan een project.
Appartementengebouwen door MIX architectuur vormen sluitstuk Noorderhaven Zutphen
Gisteren, 12:29
In de nieuwe buurt Noorderhaven in Zutphen zijn drie appartementengebouwen naar ontwerp van MIX architectuur opgeleverd. De gebouwen met in totaal tachtig woningen vormen het sluitstuk van de gebiedsontwikkeling.
EUmies Award naar renovatie congrescentrum in Charleroi en tijdelijke ruimtes Sloveens theater
Gisteren, 10:54
Donderdag zijn de winnaars van de EUmies Award 2026 bekendgemaakt. De renovatie van het congrescentrum Charleroi Palais des Expositions won in de belangrijkste categorie architectuur.
Woningbouwzaken krijgen langer voorrang bij Raad van State
Gisteren, 16:49
Om het huizentekort tegen te gaan, blijft de Raad van State woningbouwzaken met voorrang behandelen.
Inspectie positief over verbetering sociale veiligheid TU Delft
Gisteren, 11:36
De TU Delft heeft aanzienlijke stappen gezet om de sociale veiligheid voor medewerkers te verbeteren.
NVM vreest minder nieuwbouw door veranderende voorrang stroomnet
Gisteren, 09:23
Bouwers kunnen, door onzekerheid over welke projecten straks nog maatschappelijke prioriteit krijgen in een bepaalde regio, besluiten om minder nieuwe huizen te bouwen.
Architecten voor restauratie en herbestemming Rivièrahal gekozen
16 april, 12:00
Voor de grootscheepse restauratie en herbestemming van de Rivièrahal in de Rotterdamse Diergaarde Blijdorp zijn Mecanoo en BiermanHenket geselecteerd.
Bewoners aardbevingsgebied Groningen blijven kritisch op herstel
16 april, 10:34
Door de complexiteit en onzekerheid van het jarenlange proces ervaren mensen stress en frustratie.
ING: optoppen en splitsen van woningen steeds minder haalbaar
15 april, 1:22
Het kabinet-Jetten gaat naar verwachting het doel van 15.000 extra woningen per jaar uit verbouwingen niet halen, stelt ING.
Ga naar het nieuws-archief
Ronnie Weessies
Redacteur
2
0
0
0
Voor een optimale gebruikservaring plaatst Architectenweb functionele cookies. Wat de verschillende cookies precies doen leggen we uit in een
overzicht
. Cookies van social media kun je optioneel
aanzetten
.
Akkoord
Instellingen
Annuleren
OK
Sluiten
Doorgaan
Inloggen
Maak een gratis persoonlijk account aan
Feedback
Feedback
Wij horen graag jouw feedback. Laat je reactie achter en eventueel jouw e-mail adres.
Reactie
Verstuur