Projecten
Producten
Bedrijven
Vacatures
Agenda
Awards
Podcasts
more_horiz
Videos
Magazine
Thema's
Favorieten
Profiel
Uitloggen
Abonneer je nu op onze nieuwsbrieven!
Abonneren
Nee, bedankt
Ja, denk met me mee rond de
materialisering van mijn project
Copyright: Eemhuis ( scagliolabrakkee)
Copyright: Eemhuis ( scagliolabrakkee)
Copyright: Detail gevel Eemhuis ( scagliolabrakkee)
Copyright: Leeszaal bibliotheek ( scagliolabrakkee)
Copyright: Tweede leeszaal bibliotheek ( scagliolabrakkee)
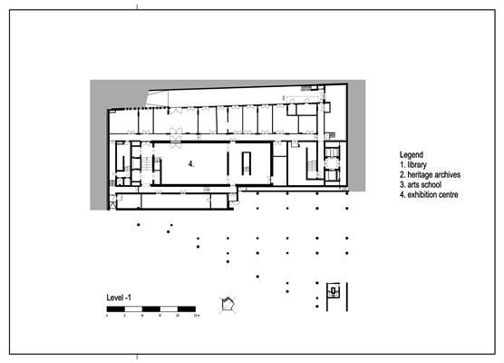
Kelderverdieping
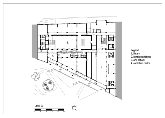
Begane grond
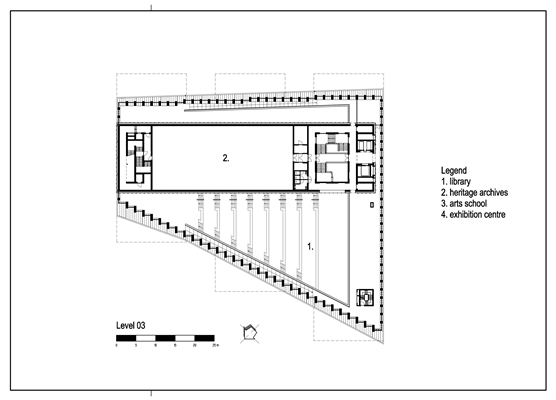
Tweede verdieping
Derde verdieping
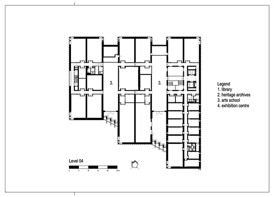
Vierde verdieping
Langsdoorsnede over de leeszaal van de bibliotheek
Dwarsdoorsnede
Eemhuis: cultureel kruispunt van Amersfoort
10 april 2014, 17:06
Op 12 juni zal het Eemhuis in Amersfoort officieel haar deuren openen. Architectenweb kreeg deze week alvast een rondleiding door architect Michiel Riedijk van
Neutelings Riedijk Architecten
. “Hier hangt een sfeer van openbaarheid.”
Aan de rand van de oude binnenstad van Amersfoort is de afgelopen jaren – aan de overzijde van het spoor – rond het nieuwe Eemplein een gemengd stedelijk gebied verrezen met een hogeschool, megabioscoop, woningen, winkels, horeca en kantoren. Als voorlopig sluitstuk van het gebied opent binnenkort hier aan het plein het Eemhuis, waarin de bibliotheek, het archief, het cultureel centrum en de kunsthal van de stad worden samengebracht. Samen zullen de instellingen zo’n 450.000 mensen per jaar naar het gebied trekken, schat de gemeente. Dat is de helft van wat het Guggenheim Museum in Bilbao per jaar trekt.
Nieuw stadshart
Wethouder Pim van den Berg, de opdrachtgever van het Eemhuis, vertelt dat Amersfoort eind jaren zeventig als groeikern is aangewezen en later een grote Vinex-woningbouwopgave meekreeg. “In vijftien jaar tijd is de stad gegroeid van zo’n 80.000 inwoners naar 160.000 inwoners nu. Dat vraagt om nieuwe voorzieningen.” Het oude industriegebied aan een tak van de Eem aan de rand van de binnenstad was de aangewezen plek hiervoor. Een tweede stadshart, noemt Van den Berg het.
In het Eemhuis hebben voorzieningen een plek gekregen die elders in verouderde gebouwen zaten of elders uit hun jasje waren gegroeid. In de oorspronkelijke plannen, die van net voor de kredietcrisis dateren, bevatte het Eemhuis nog een poppodium met drie zalen. Omdat de gemeente zag dat de exploitatie van poppodia door heel Nederland alsmaar moeilijker werd, heeft het halverwege het proces besloten die functie te vervangen door Kunsthal Kade. Hierop is het ontwerp aangepast. Al met al leverde dit een kostenoverschrijding op die de voorganger van Van den Berg zijn baan kostte. Qua functie sluit de kunsthal net zo goed bij de andere functies als een poppodium dat gedaan had.
Dat de verschillende organisaties nu samen in een gebouw zitten kan volgens de wethouder voor veel kruisbestuiving zorgen. Van den Berg is dan ook erg enthousiast dat de verschillende organisaties inmiddels een gezamenlijke coöperatie hebben opgericht voor de exploitatie van het gebouw.
Volkspaleis
Neutelings Riedijk Architecten heeft het Eemhuis ontworpen met het oog op de genoemde kruisbestuiving. In het stedenbouwkundig plan werd ervan uitgegaan dat de verschillende functies naast elkaar aan het plein zouden komen te staan. Die organisatie heeft het architectenbureau direct omgegooid. Als aardlagen liggen de functies nu bovenop elkaar, waardoor ze voor hun ontsluiting direct al van elkaar afhankelijk zijn. Op de begane grond en in de kelderverdieping ligt Kunsthal Kade. Hier schuin bovenop, van de begane grond tot en met de tweede verdieping, ligt Bibliotheek Eemland. Op de derde verdieping ligt het Archief Eemland in een balkvormig volume. Op de vierde verdieping ligt tenslotte Scholen in de Kunst in drie uitkragende doosvormige volumes.
De bibliotheek, het archief en het cultureel centrum delen een ingang en worden ontsloten via een licht en ruim trappenhuis dat aan de grootste ruimte van het gebouw ligt: de getrapte leeszaal van de bibliotheek. Deze leeszaal is zo’n 50m lang en tot 30m breed en wordt in één keer overspannen. De vloer, de tafels en kaders zijn uitgevoerd in eiken, de wanden zijn van schoon beton, het plafond wordt gevormd door de aluminium beplating van het cultureel centrum. “Iedere functie heeft als het ware zijn eigen gevel aan deze ruimte”, zegt Riedijk. “Het is een soort stadsplein.”
De kern van een bibliotheek, verklaart Riedijk, is dat het een openbaar gebouw is. Alleen met een genereus gebaar wordt een sfeer van openbaarheid gerealiseerd. Gemeenten moeten daar volgens hem niet te bang voor zijn. Gewoon doen. “En zo’n volkspaleis mag fatsoenlijk afgewerkt zijn”, verklaart hij de stevige eiken kaders overal en robuuste dimensionering van alle elementen.
Kunsthal Kade ligt schuin onder de bibliotheek een heeft een eigen entree en café aan het Eemplein. Met de verhuizing naar het Eemhuis krijgt de kunsthal er veel ruimte bij. Het zwaartepunt van de kunsthal ligt bij een, verdiept gelegen, grote tentoonstellingsruimte. Deze ruimte is bovenin rondom voorzien van luiken die in geopende stand daglicht binnenlaten, maar in gesloten stand de ruimte transformeren tot een ‘black box’. De kunsthal kan zo alle kanten uit met deze ruimte. Rondom de grote zaal ligt een ‘enfillade’ van kleinere zalen die met weg te halen wanddelen een geslotenere of opener onderlinge relatie hebben.
Het is bewonderenswaardig hoe Neutelings Riedijk Architecten er bij het Eemhuis, net als bij Rozet in Arnhem, in is geslaagd verschillende en gedifferentieerde functies samen te binden in een gebouw met een bijzonder heldere organisatie en bouwkundige structuur. Gecombineerd met een robuuste materialisering ontstaat een architectuur met een fijnzinnige monumentaliteit en met een werkelijk publiek karakter. De ‘generic city’ is hier een halt toegeroepen. Dit is een gebouw dat je alleen al om zijn architectuur zou willen behouden en dat door zijn robuustheid mogelijke functieveranderingen in de toekomst moeiteloos zal kunnen absorberen.
In gevecht met het stedenbouwkundig plan
Aan het plein ligt het Eemhuis ingeklemd tussen een woongebouw van Mecanoo en een horeca-gebouw van Dick van Gameren (inmiddels ook Mecanoo). De drie gebouwen worden met elkaar verbonden door een bakstenen band op een glazen plint. Ondanks dat voor ieder gebouw een andere baksteen is gebruikt, is het geheel zo te ervaren als een megastructuur. Een zeer precies stedenbouwkundig plan van architect Peter Wilson van het Duitse bureau Bolles+Wilson schreef dit zo voor.
“Het lijkt soms wel of de stadsontwikkeling in Nederland gedreven wordt door vorm”, zegt Riedijk, die het strakke stedenbouwkundige kader als zeer beperkend ervoer. Een kavel met rooilijn en een hoogtebeperking is wat hem betreft voldoende en levert een grote flexibiliteit op richting de toekomst. Het stedenbouwkundig plan van Bolles+Wilson schreef echter zeer precieze knikken en schuine lijnen voor. “Bijvoorbeeld met de stevige kolommen in de gevel hebben we ons met hand en tand verzet tegen die schuine lijn.”
Ook vanuit de ondergrond had Riedijk te maken met verschillende beperkingen. Het Eemplein loopt schuin af naar het water, zodat het Eemhuis ook een getrapte begane grond kent. Onder het plein ligt een parkeergarage, waar het Eemhuis deels op staat. Hierdoor was er geen ruimte om het archief onder de grond aan te leggen en moest Neutelings Riedijk Architecten het ergens boven de grond een plek geven. Door het als een balk midden en bovenin het gebouw te plaatsen heeft het bureau het programmaonderdeel in kunnen zetten om extra hoogte te genereren voor de leeszaal van de bibliotheek en is het voor het publiek nagenoeg onzichtbaar. Voor de bezoekers aan de Scholen in de Kunst betekent het echter wel net een extra trap voordat ze hun lokalen bovenin het gebouw hebben bereikt.
Een ruimteschip
Het gebouw nu als geheel in ogenschouw nemend is het vooral de voorgeschreven bakstenen wand aan het plein die de architectuur van het Eemhuis onnodig insnoert. Het is die wand die ervoor zorgt dat het genereuze gebaar dat met de leeszaal gemaakt wordt op het plein onzichtbaar is. In het interieur betekent het dat pas op de tweede verdieping vanuit de bibliotheek uitzicht geboden wordt op het plein. Door de leeszaal op te laten lopen naar de tweede verdieping en die verdieping over de hele breedte van het gebouw te openen lost Neutelings Riedijk Architecten dit probleem zeer sterk op. Maar een directere relatie tussen het Eemhuis en het plein was voor beide beter geweest.
De verplichte bakstenen wand beperkte het architectenbureau ook in de expressie van het gebouw. Hoe moest het nu het publieke karakter van het gebouw uitdrukken? Hier komen de drie aluminium balken met het cultureel centrum om de hoek kijken. Een ‘ruimteschip’ of ‘kroon’ noemt Riedijk dit deel. De expressie van de gevel hier moet het gebrek aan expressie elders compenseren. Via een omweg weet Neutelings Riedijk Architecten het bijzondere programma van het gebouw zo toch nog in de stad zichtbaar te maken.
De gevel van het Eemhuis telt 24.000 kleine en grote bollen. Een betekenis hebben ze eigenlijk niet, verklaart Riedijk. Het gaat erom wat ze doen. En dat is indrukwekkend. Zelfs op een half bewolkte dag geven de bollen het gebouw een ongekende sprankeling. Een ‘disco bol’ noemt Riedijk het gekscherend. Wanneer je het gezien hebt, moet je er niet aan denken dat de gevel zonder deze bollen en bolletjes was uitgevoerd.
Het Eemhuis wordt momenteel ingericht. Van het interieur zullen kort na de officiële opening van het gebouw meer foto's beschikbaar komen. Op Architectenweb.nl zullen deze extra foto's te zijner tijd direct gepubliceerd worden.
Trefwoorden
longread
amersfoort
michiel riedijk
eemhuis
neutelings riedijk architecten
pim van den berg
michiel van raaij
eemplein
Locatie
Best gelezen
1
PSV presenteert plannen voor uitbreiding Philips Stadion
vrijdag, 20 maart
2
Luxe appartementengebouw naast klooster Etten-Leur door Studio AAAN klaar
donderdag, 19 maart
3
Houten Stelthuis van Woonpioniers is aardbevings- en klimaatbestendig
woensdag, 18 maart
4
KAAN Architecten en De Zwarte Hond winnen tender voor Area 19 TU Eindhoven
vrijdag, 20 maart
5
BureauVanEig verbetert uitstraling Haagse rijtjeswoningen bij verduurzaming
dinsdag, 17 maart
Gerelateerde nieuwsberichten
Drie consortia geselecteerd om ontwerp te maken voor nieuwe bibliotheek met kantoren op de Zuidas
23 december 2021
Neutelings Riedijk ontwerpt ZIL Toren in Moskou
8 oktober 2015
Bouw Herman Teirlinckgebouw van start
3 juli 2015
Themaperiode ‘Leisure’ van start
21 april 2015
Eemhuis opent officieel zijn deuren
23 mei 2014
Tien exemplaren ‘Ornament and Identity’ te winnen
22 maart 2018
Riedijk en Maas in debat bij presentatie Building as Ornament
23 april 2014
Bouw Het Platform in De Nieuwe Stad Amersfoort van start
14 mei 2018
Prestigieuze opdracht New York voor Mecanoo
17 september 2015
Bouw Eemplein Amersfoort uitgesteld
20 november 2008
Bouw cultuurcentrum Eemhuis onder curatele
21 september 2011
Amersfoort bouwt Eemhuis af met kunsthal
28 november 2011
Startsein bouw Eemplein Amersfoort gegeven
17 december 2010
Bouw ‘bruisend’ Eemplein Amersfoort van start
3 februari 2010
Eemhuis Amersfoort mogelijk weer duurder
4 april 2012
Openbare ruimte Eemplein Amersfoort is klaar
22 november 2012
Harde kritiek op college om Eemhuis
24 november 2011
Kunsthal KAdE verhuist naar Eemhuis
7 april 2011
Schipper Bosch: “Wij nemen de tijd om een levendig stuk Amersfoort te realiseren”
6 maart 2019
Het Platform in De Nieuwe Stad Amersfoort klaar
25 september 2019
Drie consortia geselecteerd om ontwerp te maken voor nieuwe bibliotheek met kantoren op de Zuidas
23 december 2021
Neutelings Riedijk ontwerpt ZIL Toren in Moskou
8 oktober 2015
Bouw Herman Teirlinckgebouw van start
3 juli 2015
Themaperiode ‘Leisure’ van start
21 april 2015
Eemhuis opent officieel zijn deuren
23 mei 2014
Tien exemplaren ‘Ornament and Identity’ te winnen
22 maart 2018
Riedijk en Maas in debat bij presentatie Building as Ornament
23 april 2014
Bouw Het Platform in De Nieuwe Stad Amersfoort van start
14 mei 2018
Prestigieuze opdracht New York voor Mecanoo
17 september 2015
Bouw Eemplein Amersfoort uitgesteld
20 november 2008
Bouw cultuurcentrum Eemhuis onder curatele
21 september 2011
Amersfoort bouwt Eemhuis af met kunsthal
28 november 2011
Startsein bouw Eemplein Amersfoort gegeven
17 december 2010
Bouw ‘bruisend’ Eemplein Amersfoort van start
3 februari 2010
Eemhuis Amersfoort mogelijk weer duurder
4 april 2012
Openbare ruimte Eemplein Amersfoort is klaar
22 november 2012
Harde kritiek op college om Eemhuis
24 november 2011
Kunsthal KAdE verhuist naar Eemhuis
7 april 2011
Schipper Bosch: “Wij nemen de tijd om een levendig stuk Amersfoort te realiseren”
6 maart 2019
Het Platform in De Nieuwe Stad Amersfoort klaar
25 september 2019
Toon alles
Andere nieuwsberichten
Ontwerpteam gekozen voor vernieuwing wijk in Vlaamse Lint
3 uur geleden
Een ontwerpteam met Woonwerk Architecten, DENC-STUDIO en aAD landschapsarchitecten is geselecteerd voor het ontwerp voor de herontwikkeling van de omgeving van Kasteelplein in het Vlaamse Lint.
Raumkultur en IkLandschap lanceren manifest over woonvormen voor ouderen
4 uur geleden
Een nieuw manifest biedt ontwerpprincipes, voorbeelden en scenario’s van woonvormen voor ouderen waar ontmoeting en samenredzaamheid centraal staan.
Uitbreiding van New Museum door OMA officieel geopend
Vandaag, 11:38
Het nieuwe volume, dat tegen het door SANAA ontworpen museumgebouw uit 2002 is geplaats, biedt onder meer ruimte aan nieuwe expositiezalen, educatiefaciliteiten en een eigen onderkomen voor de culturele ‘incubator’ van het museum NEW INC.
Vernieuwde Welstandsnota Rotterdam staat in teken van Omgevingswet, duurzaamheid en gebruiksgemak
Vandaag, 09:15
De Rotterdamse Welstandsnota uit 2012 is geactualiseerd. Daarbij waren nieuwe inzichten en regelgeving, alsmede het gebruiksgemak voor gemeente en aanvragers bepalend.
ACM: meer onderzoek nodig naar overname bouwer VolkerWessels
Vandaag, 13:25
Volgens de toezichthouder zijn er risico's rond de concurrentie door de overname in de grond-, weg- en waterbouw.
Boekholt schrapt wet die voorrang statushouders stopt
Vandaag, 10:19
De minister werkt aan een alternatieve wet, die pas in werking treedt als er genoeg mogelijkheden zijn om statushouders aan een huis te helpen.
Friesland brengt duizenden karakteristieke boerderijen in kaart
20 maart, 2:16
Door alle informatie over de voor het landschap kenmerkende gebouwen op één plek te brengen, moet het makkelijker worden om ze te behouden.
ING: bijna de helft van de huiseigenaren stelt verduurzaming uit
20 maart, 12:18
De meeste mensen vinden dat de overheid te weinig doet om dit te stimuleren.
Rekenkamer kraakt resultaten EU-innovatiefonds voor verduurzaming
20 maart, 9:25
Het Innovatiefonds van de Europese Unie levert veel minder resultaat op dan verwacht op het gebied van verduurzaming en innovatie.
Provincie schrapt beoogde locaties windturbines in Groene Hart
19 maart, 1:35
De provincie had twaalf plekken op het oog, maar dat leidde tot maatschappelijk en politiek verzet.
Ga naar het nieuws-archief
Michiel van Raaij
Hoofdredacteur
0
0
0
0
Voor een optimale gebruikservaring plaatst Architectenweb functionele cookies. Wat de verschillende cookies precies doen leggen we uit in een
overzicht
. Cookies van social media kun je optioneel
aanzetten
.
Akkoord
Instellingen
Annuleren
OK
Sluiten
Doorgaan
Inloggen
Maak een gratis persoonlijk account aan
Feedback
Feedback
Wij horen graag jouw feedback. Laat je reactie achter en eventueel jouw e-mail adres.
Reactie
Verstuur