Projecten
Producten
Bedrijven
Vacatures
Agenda
Awards
Podcasts
more_horiz
Videos
Magazine
Thema's
Favorieten
Profiel
Uitloggen
Abonneer je nu op onze nieuwsbrieven!
Abonneren
Nee, bedankt
Ja, denk met me mee rond de
materialisering van mijn project
Copyright: Space Encounters
Copyright: Space Encounters
Voorbeeld appartement
Copyright: Space Encounters
Voorbeeld appartement
Copyright: Space Encounters
Voorbeeld appartement
Copyright: Space Encounters
Dwarsdoorsnede
Copyright: Space Encounters
Kelderverdieping
Copyright: Space Encounters
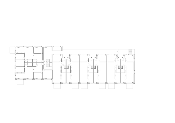
Begane grond
Copyright: Space Encounters
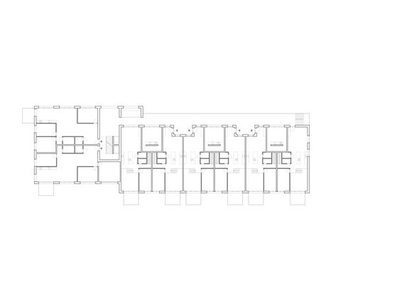
Eerste verdieping
Copyright: Space Encounters
Tweede verdieping
Copyright: Space Encounters
Derde verdieping
Copyright: Space Encounters
Vierde verdieping
Copyright: Space Encounters
Vijfde verdieping
Copyright: Space Encounters
Zesde verdieping
Copyright: Space Encounters
Situatie
Copyright: Space Encounters
Noordgevel
Copyright: Space Encounters
Oostgevel
Copyright: Space Encounters
Westgevel
Copyright: Space Encounters
Zuidgevel
Copyright: Space Encounters
Winnend ontwerp van Space Encounters in Zwitsers transformatieproject
28 oktober 2019, 17:39
Architectenbureau Space Encounters heeft, in samenwerking met het Zwitserse bureau FritschiBeis, een ontwerpcompetitie voor gezinswoningen in Bern gewonnen. Door variatie in hoogte en slim schakelen weten de architecten een grote diversiteit aan woningtypes in een bestaand complex in te passen.
Here comes the sun
hebben Space Encounters en FritschiBeis het ontwerp genoemd. Het project betreft gezinswoningen van 100 m
2
binnen een herontwikkeling van een voormalige afvalverwerkingscentrale aan de westelijke rand van Bern. Opdrachtgever is de plaatselijke Baugenossenschaft Aare.
De architecten ontwierpen zes bouwblokken, die worden ontsloten via een gemeenschappelijke binnentuin. “Het antwoord op de opgave ligt besloten in de dwarsdoorsnede van het project”, legt Space Encouters uit.
Galerijen
Door in het ontwerp te variëren met de verdiepingshoogte en de woningen op een doordachte wijze te schakelen en te ontsluiten weten de architecten een grote diversiteit een woningtypes in te passen. De woningen verschillen onderling van karakter en kunnen daardoor een gevarieerde doelgroep aanspreken.
De ontsluiting geschiedt via brede, dubbelhoge galerijen. Ze draagt bij aan de activering van de binnentuin en is, als overgangszone tussen publiek en privaat, een extra gedeelde ruimte waar ontmoeting kan plaatsvinden. De galerijen worden vanaf de binnentuin bereikt met een grote goederenlift, legt Space Encounters uit.
Hoge leefruimten
De grondgebonden familiewoningen hebben een dubbelhoge leefruimte aan de tuinzijde. Daarboven bevinden zich geschakelde maisonnettes met een leefruimte van anderhalve verdieping hoog. Door de en-suite kamers kan de leefruimte in deze maisonnettes eenvoudig worden uitgebreid.
Bij de gelijkvloerse hoekappartementen in het torenvolume streven de architecten naar een maximale beleving van de diepte, van de entree tot aan de gevel. Dit willen ze realiseren door de diagonale aaneenschakeling van de leefruimten.
Naast de drie beschreven woningtypen zijn verschillende appartementen voorzien van zogenoemde
Joker Zimmer
, een Zwitserse benaming voor kleine kamers die flexibel zijn in te zetten. Ze kunnen worden gebruikt als extra kamer bij een appartement of als semi-zelfstandige studio.
Krachtig gevelbeeld
Met lichtgrijze tegels streven de architecten naar een even ingetogen als krachtig gevelbeeld. Dit geeft de achtergelegen variatie aan woningtypes niet meteen prijs, maar biedt middels de afwijkende raamformaten wel inzicht in de opbouw ervan, stelt Space Encounters.
De stabiliteitsschoren breken de ritmiek en verschaffen het solide bouwblok een zekere dynamiek. Het project beslaat een bruto oppervlakte van 4.400 m
2
.
Trefwoorden
fritschibeis
bern
appartementencomplex
woningbouw
transformatie
space encounters
appartement
zwitserland
Best gelezen
1
PSV presenteert plannen voor uitbreiding Philips Stadion
vrijdag, 20 maart
2
Een verbod op eengezinswoningen
dinsdag, 24 maart
3
Architectenweb symposium: ontwerpen van autovrije buurten
woensdag, 25 maart
4
Luxe appartementengebouw naast klooster Etten-Leur door Studio AAAN klaar
donderdag, 19 maart
5
KAAN Architecten en De Zwarte Hond winnen tender voor Area 19 TU Eindhoven
vrijdag, 20 maart
Gerelateerde nieuwsberichten
Het Platform bekroond als Kantoorgebouw van het Jaar 2020
28 oktober 2020
Woongebouw naar ontwerp van Beyond Space in Bern gerealiseerd
24 juni 2024
Dubbel woongebouw Space Encounters op Oostenburg opgeleverd
5 juni 2023
Het Platform in De Nieuwe Stad Amersfoort klaar
25 september 2019
Nieuw multifunctioneel gebouw voor Buiksloterham
1 augustus 2019
Space Encounters initieert pop-up werkplek-horeca-kunstruimte
18 juli 2019
Space Encounters presenteert paviljoen vol creativiteit tijdens Milan Design Week
19 maart 2019
Wanden van tegels en planten voor kantoor Synchroon
4 maart 2019
Installatie Transito van Space Encounters te zien in Amsterdam
20 november 2018
Space Encounters ontwerpt ruimtelijk interieur voor Sony Music in A’DAM Toren
24 november 2017
Space Encounters wint Next Step Award
6 april 2017
Ingetogen en krachtig functioneel gebouw door Space Encounters
2 juni 2020
Woningen met fiscaal aftrekbare werkruimte in gebouw The Doors
16 juni 2020
Een interieur met vrijheid tussen de regels
3 maart 2021
Expressieve architectuur van Space Encounters voor woonbuurt Wisselspoor
21 september 2022
Karakteristieke villa gerenoveerd en uitgebreid met passend contrast
10 november 2022
Space Encounters geeft bestaande gezinswoning gelaagdheid
24 januari 2023
Het Platform bekroond als Kantoorgebouw van het Jaar 2020
28 oktober 2020
Woongebouw naar ontwerp van Beyond Space in Bern gerealiseerd
24 juni 2024
Dubbel woongebouw Space Encounters op Oostenburg opgeleverd
5 juni 2023
Het Platform in De Nieuwe Stad Amersfoort klaar
25 september 2019
Nieuw multifunctioneel gebouw voor Buiksloterham
1 augustus 2019
Space Encounters initieert pop-up werkplek-horeca-kunstruimte
18 juli 2019
Space Encounters presenteert paviljoen vol creativiteit tijdens Milan Design Week
19 maart 2019
Wanden van tegels en planten voor kantoor Synchroon
4 maart 2019
Installatie Transito van Space Encounters te zien in Amsterdam
20 november 2018
Space Encounters ontwerpt ruimtelijk interieur voor Sony Music in A’DAM Toren
24 november 2017
Space Encounters wint Next Step Award
6 april 2017
Ingetogen en krachtig functioneel gebouw door Space Encounters
2 juni 2020
Woningen met fiscaal aftrekbare werkruimte in gebouw The Doors
16 juni 2020
Een interieur met vrijheid tussen de regels
3 maart 2021
Expressieve architectuur van Space Encounters voor woonbuurt Wisselspoor
21 september 2022
Karakteristieke villa gerenoveerd en uitgebreid met passend contrast
10 november 2022
Space Encounters geeft bestaande gezinswoning gelaagdheid
24 januari 2023
Toon alles
Gerelateerde podcasts
Gesprek met Gijs en Joost Baks over de publieke dimensie van architectuur
1 juni 2023
Andere nieuwsberichten
Studioninedots ontwerpt zelfbouwwoning als landschap van gestapelde doosjes
59 minuten geleden
Op het Centrumeiland heeft Studioninedots een woonhuis voor een stel met twee kinderen ontworpen. Light House oogt als een strak volume, maar aan de binnenzijde is een speels landschap van gestapelde doosjes gerealiseerd.
Architectenweb symposium: ontwerpen van autovrije buurten
1 uur geleden
Welke ruimtelijke en sociale kansen ontstaan er wanneer we buurten ontwerpen met honderden tot duizenden woningen waar in de openbare ruimte geen auto te zien is? En hoe overwin je de uitdagingen die daarbij komen kijken?
Rotterdam wil gebied rond De Kuip verlevendigen
2 uur geleden
Er is onder meer plek voor 2.500 tot 3.000 woningen, werkplekken, voorzieningen op het gebied van onderwijs, sport en innovatie en nieuwe openbare ruimte, zo staat in het ambitiedocument Stadiondriehoek.
Verbouwing en vergroening van Museum Beelden aan Zee aanstaande
Gisteren, 15:50
Museum Beelden aan Zee heeft een verbouwing en vergroening aangekondigd. Om de werkzaamheden mogelijk te maken sluit het museum tijdelijk haar deuren en is een crowdfunding-actie gestart.
SER adviseert kabinet: wees standvastig in verduurzamingsbeleid
40 minuten geleden
Nu is het volgens het adviesorgaan nog te afhankelijk van de koers van een kabinet en weten mensen niet waar ze aan toe zijn.
Omzet Ballast Nedam gestegen, ook orderboek groeit
Gisteren, 13:20
Volgens Ballast Nedam klom de omzet naar meer dan 1,6 miljard euro, van ruim 1,2 miljard euro een jaar eerder.
Woningcorporaties bouwden in 2025 meeste huizen in jaren
Gisteren, 11:16
Vorig jaar bouwden woningcorporaties iets minder dan een derde van alle nieuwe huizen.
ACM: meer onderzoek nodig naar overname bouwer VolkerWessels
23 maart, 1:25
Volgens de toezichthouder zijn er risico's rond de concurrentie door de overname in de grond-, weg- en waterbouw.
Boekholt schrapt wet die voorrang statushouders stopt
23 maart, 10:19
De minister werkt aan een alternatieve wet, die pas in werking treedt als er genoeg mogelijkheden zijn om statushouders aan een huis te helpen.
Friesland brengt duizenden karakteristieke boerderijen in kaart
20 maart, 2:16
Door alle informatie over de voor het landschap kenmerkende gebouwen op één plek te brengen, moet het makkelijker worden om ze te behouden.
Ga naar het nieuws-archief
Robert Muis
Redacteur
3
0
0
0
Voor een optimale gebruikservaring plaatst Architectenweb functionele cookies. Wat de verschillende cookies precies doen leggen we uit in een
overzicht
. Cookies van social media kun je optioneel
aanzetten
.
Akkoord
Instellingen
Annuleren
OK
Sluiten
Doorgaan
Inloggen
Maak een gratis persoonlijk account aan
Feedback
Feedback
Wij horen graag jouw feedback. Laat je reactie achter en eventueel jouw e-mail adres.
Reactie
Verstuur