Projecten
Producten
Bedrijven
Vacatures
Agenda
Awards
Podcasts
more_horiz
Videos
Magazine
Favorieten
Profiel
Uitloggen
Abonneer je nu op onze nieuwsbrieven!
Abonneren
Nee, bedankt
Ja, denk met me mee rond de
materialisering van mijn project
Copyright: Jannes Linders
Copyright: Jannes Linders
Copyright: Jannes Linders
Copyright: Jannes Linders
Copyright: MOSS
Copyright: MOSS
Copyright: MOSS
Copyright: MOSS
Copyright: MOSS
Copyright: MOSS
Copyright: Benthem Crouwel Architects
Copyright: Benthem Crouwel Architects
Copyright: Benthem Crouwel Architects
Copyright: Benthem Crouwel Architects
Copyright: Benthem Crouwel Architects
Copyright: Benthem Crouwel Architects
Copyright: Benthem Crouwel Architects
'Bladerdak' blikvanger van nieuw kantoor Goede Doelen Loterijen
7 december 2018, 14:49
Koningin Máxima heeft donderdag het nieuwe kantoor van de Goede Doelen Loterijen in Amsterdam geopend. Rond het casco van een leegstaand kantoorpand is een nieuw gebouw opgetrokken, met een ‘bladerdak’ van glas en aluminium als blikvanger.
Benthem Crouwel Architects
is verantwoordelijk voor het ontwerp, het interieur is ontworpen door
D/Dock
en Yolanda Loudon van de Goede Doelen Loterijen.
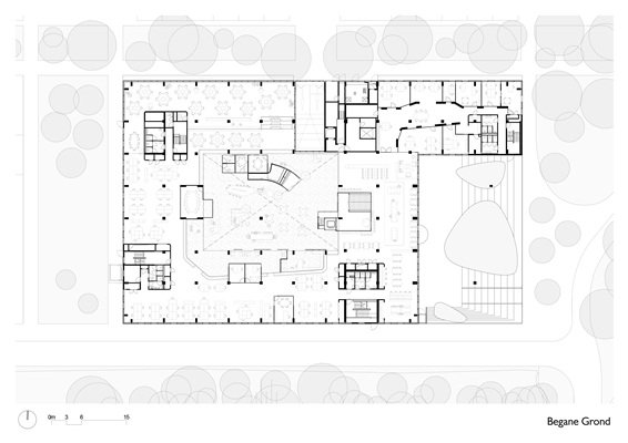
In het gebouw aan de rand van de Zuidas zijn zeshonderd medewerkers van de Nationale Postcode Loterij, VriendenLoterij en BankGiroLoterij gehuisvest, die voorheen verspreid zaten over meerdere panden aan onder andere de Van Eeghenstraat. Ook biedt het pand plek aan een tv-studio voor de programma’s
Koffietijd
en
5 Uur Live
en een auditorium dat ook gebruikt kan worden door lokale scholen.
De opdrachtgever wilde allereerst een kantoor waarin alle medewerkers zich thuis voelden. Daarom is het groen op de oude locaties ‘meegenomen’ naar de nieuwe plek. Het dak steunt op drie grote en drie kleinere slanke boomvormige kolommen en bestaat uit 6.800 opengevouwen ‘bladeren’ van gepolijst aluminium die een bijzonder licht- en schaduweffect op de wanden creëren.
Gestript
Daarnaast moest het gebouw duurzaam zijn. Het al jaren leegstaande en verwaarloosde pand dat op dezelfde plek stond, is daarom niet gesloopt maar gestript tot zijn casco en opgenomen in een groter gebouw. Materiaal uit de delen die toch werden gesloopt zijn hergebruikt, bijvoorbeeld in het beton waar de nieuwe terrassen in het atrium van zijn gemaakt.
Voor zijn duurzaamheid heeft het gebouw het certificaat Breeam-NL Outstanding gekregen. Warmte-koudeopslag, bijna duizend zonnepanelen en gebruik van regenwater voor het sanitair, de daktuin en sprinklerinstallatie dragen bij aan een energieneutraal gebouw.
Het bladerdak, dat vanaf de straat en de hoogbouw aan de Zuidas ook zichtbaar is, overdekt onder meer het voorplein en het atrium. Voor de laatstgenoemde ruimte is de patio van het voormalige kantoorgebouw veranderd in een binnenplein met een ‘mediterrane’ sfeer. De Italiaans aandoende wanden rond het plein zijn ontworpen in co-creatie met de gebruikers. Tekeningen die in workshops door de medewerkers zijn gemaakt, werden vertaald in (gestanste) gevels en balkons.
Beplanting
Het gebouw is verder voorzien van beplanting, naar ontwerp van bureau
MOSS
. De extra verdieping die is ontstaan tussen het nieuwe dak en de bovenste laag van het oude gebouw is ingericht als een groene zone met veel beplating, die doorloopt naar de balkons en daktuinen die rondom de gehele verdieping liggen. Ook bij de ingang van het pand zijn tuinen aangelegd.
Tenslotte is het pand uitgerust met
energieopwekkende ramen
, ontwikkeld door de Delftse start-up Physee.
Lees hier meer over het interieur van het gebouw
, mede in relatie tot de architectuur.
Het kantoor van de Goede Doelen Loterijen is 16.600 vierkante meter groot. De bouw duurde twee jaar.
Trefwoorden
d/dock
zuidas
breeam excellent
kantoorgebouw
benthem crouwel architects
moss
goede doelen loterijen
amsterdam
Locatie
Best gelezen
1
Woontoren Front door Monadnock wint tiende Architectuurprijs Nijmegen
donderdag, 9 april
2
Spoorwegverleden inspireert ontwerp woonblok Wisselspoor 10 in Utrecht
woensdag, 8 april
3
Rotterdam mag woningen gaan bouwen aan de Parkhaven
woensdag, 8 april
4
SeARCH en Heutink Groep winnen tender voor woongebouw Sluisbuurt
vrijdag, 10 april
5
KOW wint met Marker Woods tender voor nieuwe wijk Eschmarkerveld
woensdag, 8 april
Gerelateerde nieuwsberichten
D/Dock lanceert app waarmee werkplek in hotel gereserveerd kan worden
10 september 2020
DGBC introduceert vernieuwde richtlijn duurzame nieuwbouw
30 juni 2020
Plan om drijvende ‘kathedraal’ te realiseren uit afvalmateriaal in Amsterdam
29 juni 2023
Nieuw kantoor van softwarebedrijf JetBrains in Amsterdamse Terrace Tower
12 juni 2023
Renovatie Oval Tower in Amsterdam gericht op nieuwe identiteit
5 februari 2024
Organisch en verbindend interieur van D/Dock voor Zandkasteel
23 januari 2024
D/Dock lanceert concept voor tijdelijke wooneenheden op leegstaande kantoorverdiepingen
16 november 2023
D/Dock presenteert twee Premium Lounges op Schiphol Airport
25 juni 2024
Station Amsterdam Zuid wacht grote vernieuwing
1 september 2021
V8 Architects presenteert ontwerp transformatieproject PI59
23 april 2021
Woongebouwen The Gustav op Amsterdamse Zuidas klaar
14 januari 2021
Dam & Partners ontwerpt houten kantoorgebouw op Zuidas
28 september 2020
Conservatorium van Amsterdam krijgt dependance op Zuidas
17 september 2020
V8 geeft oud kantoorpand Zuidas oorspronkelijke functie terug
7 juli 2020
Zuidas krijgt autovrije buurt met 1.350 woningen
1 juli 2020
Kleurrijk metselwerk en ruime terrassen voor woongebouw The George
29 juni 2020
Nieuw multifunctioneel complex langs A10 Zuidas
23 september 2019
Benthem Crouwel Architects
2 september 2019
RAI breidt uit met hal aan Wielingenstraat
22 juli 2019
Aanleg nieuw sportpark AFC op Zuidas van start
4 juli 2019
Thomas van Leeuwen nieuwe director-partner D/Dock
2 juli 2019
Benthem Crouwel ontwerpt appartementencomplex Praag
25 juni 2019
Hoogste graad gezonde werkomgevingen voor EDGE Olympic
18 april 2019
Vernieuwde lobby met enorme 'kroonluchter' voor UNStudio-toren
9 april 2019
Hoe het kantoor steeds meer als een hotel wordt (en andersom)
13 maart 2019
Werken rond een geabstraheerd mediterraans plein
7 december 2018
Kantoortorens AkzoNobel en Stibbe omgevormd tot 2Amsterdam
14 november 2018
Terrassengebouw van NL Architects met geïntegreerd groen
25 september 2018
Grillige houten wanden voor café Lebkov & Sons
3 september 2018
Nieuw woongebouw in hart van Kop Zuidas
26 juni 2018
Flatgebouw op Zuidas grondig opgewaardeerd door Hans van Heeswijk architecten
13 juni 2018
Gepixeld appartementencomplex van SeARCH
22 mei 2018
Woongebouwen Gershwin Brothers Zuidas opgeleverd
16 april 2018
Dura Vermeer mag nieuw gebouw EMA bouwen (en doet dat samen met Heijmans)
8 maart 2018
Medewerkers loterijen gehuisvest onder één dak
28 september 2016
D/Dock lanceert app waarmee werkplek in hotel gereserveerd kan worden
10 september 2020
DGBC introduceert vernieuwde richtlijn duurzame nieuwbouw
30 juni 2020
Plan om drijvende ‘kathedraal’ te realiseren uit afvalmateriaal in Amsterdam
29 juni 2023
Nieuw kantoor van softwarebedrijf JetBrains in Amsterdamse Terrace Tower
12 juni 2023
Renovatie Oval Tower in Amsterdam gericht op nieuwe identiteit
5 februari 2024
Organisch en verbindend interieur van D/Dock voor Zandkasteel
23 januari 2024
D/Dock lanceert concept voor tijdelijke wooneenheden op leegstaande kantoorverdiepingen
16 november 2023
D/Dock presenteert twee Premium Lounges op Schiphol Airport
25 juni 2024
Station Amsterdam Zuid wacht grote vernieuwing
1 september 2021
V8 Architects presenteert ontwerp transformatieproject PI59
23 april 2021
Woongebouwen The Gustav op Amsterdamse Zuidas klaar
14 januari 2021
Dam & Partners ontwerpt houten kantoorgebouw op Zuidas
28 september 2020
Conservatorium van Amsterdam krijgt dependance op Zuidas
17 september 2020
V8 geeft oud kantoorpand Zuidas oorspronkelijke functie terug
7 juli 2020
Zuidas krijgt autovrije buurt met 1.350 woningen
1 juli 2020
Kleurrijk metselwerk en ruime terrassen voor woongebouw The George
29 juni 2020
Nieuw multifunctioneel complex langs A10 Zuidas
23 september 2019
Benthem Crouwel Architects
2 september 2019
RAI breidt uit met hal aan Wielingenstraat
22 juli 2019
Aanleg nieuw sportpark AFC op Zuidas van start
4 juli 2019
Thomas van Leeuwen nieuwe director-partner D/Dock
2 juli 2019
Benthem Crouwel ontwerpt appartementencomplex Praag
25 juni 2019
Hoogste graad gezonde werkomgevingen voor EDGE Olympic
18 april 2019
Vernieuwde lobby met enorme 'kroonluchter' voor UNStudio-toren
9 april 2019
Hoe het kantoor steeds meer als een hotel wordt (en andersom)
13 maart 2019
Werken rond een geabstraheerd mediterraans plein
7 december 2018
Kantoortorens AkzoNobel en Stibbe omgevormd tot 2Amsterdam
14 november 2018
Terrassengebouw van NL Architects met geïntegreerd groen
25 september 2018
Grillige houten wanden voor café Lebkov & Sons
3 september 2018
Nieuw woongebouw in hart van Kop Zuidas
26 juni 2018
Flatgebouw op Zuidas grondig opgewaardeerd door Hans van Heeswijk architecten
13 juni 2018
Gepixeld appartementencomplex van SeARCH
22 mei 2018
Woongebouwen Gershwin Brothers Zuidas opgeleverd
16 april 2018
Dura Vermeer mag nieuw gebouw EMA bouwen (en doet dat samen met Heijmans)
8 maart 2018
Medewerkers loterijen gehuisvest onder één dak
28 september 2016
Toon alles
Gerelateerde video's
Benthem Crouwel Architects
Nominatie voor de prijs voor Architect van het Jaar 2019
Andere nieuwsberichten
Architect Cees Dam op 93-jarige leeftijd overleden
Vandaag, 14:35
De oprichter van Dam & Partners architecten ontwierp onder meer de Stopera in Amsterdam (samen met Wilhelm Holzbauer), het stadhuis van Almere en het Huis van de Toekomst in Rosmalen.
Powerhouse Company wint aanbesteding voor verbouwing Vista College Maastricht
Vandaag, 12:16
Het onderkomen van de mbo-school wordt gerenoveerd en uitgebreid met een houten gebouwdeel, dat onder meer de nieuwe hoofdentree en twee atria bevat. Ook moet de nieuwbouw de bestaande gebouwen beter met elkaar verbinden.
Stedelijk Museum organiseert tentoonstelling over ontwerper Kho Liang Ie
Vandaag, 10:52
Met zijn ontwerpen voor meubels en interieurs van de jaren vijftig tot zijn dood halverwege de jaren zeventig nam Kho een centrale positie in binnen de Nederlandse vormgeving. Vermaard is onder meer zijn inrichting van luchthaven Schiphol.
Restauratie Atlasbeeld op dak Koninklijk Paleis Amsterdam afgerond
10 april, 3:38
Het beeld op het fronton van het paleis was in juli van zijn plek gehaald voor een uitgebreide onderhoudsbeurt in Antwerpen.
AFM: funderingsproblemen bij bijna 220.000 woningen
Vandaag, 13:25
De huizen van bijna een half miljoen woningeigenaren hebben een hoog risico op funderingsproblemen of een mogelijke kwetsbare fundering.
Oprichter omgevallen vastgoedconcern Evergrande bekent schuld
Vandaag, 09:17
Evergrande was ooit de grootste projectontwikkelaar van China, maar kwam in de problemen toen het zijn schulden niet kon terugbetalen.
Grote en kleine gemeenten balen van bouwregels Zuid-Holland
10 april, 4:31
Grote en kleine gemeenten in Zuid-Holland hebben hun zorgen geuit over nieuwe regels van de provincie, die volgens hen de woningbouw belemmeren.
Twijfels in Zuid-Holland over halen van doelen landelijk gebied
10 april, 12:18
De meeste partijen in de Zuid-Hollandse politiek hebben twijfels over de plannen die in zestien deelgebieden zijn gemaakt voor de aanpak van het landelijk gebied.
Huurprijzen stijgen harder dan koopwoningprijzen
10 april, 9:31
Volgens Huurwoningen.nl en Pararius moesten nieuwe huurders in het eerste kwartaal gemiddeld 21,12 euro per vierkante meter per maand neerleggen.
ABN AMRO: investeringen defensie vergroten druk op bouwcapaciteit
9 april, 12:29
Kazernes, opslagplaatsen en oefenterreinen dingen om dezelfde aannemers, ingenieurs en installateurs die ook nodig zijn voor bijvoorbeeld woningbouw.
Ga naar het nieuws-archief
Ronnie Weessies
Redacteur
3
0
0
0
Voor een optimale gebruikservaring plaatst Architectenweb functionele cookies. Wat de verschillende cookies precies doen leggen we uit in een
overzicht
. Cookies van social media kun je optioneel
aanzetten
.
Akkoord
Instellingen
Annuleren
OK
Sluiten
Doorgaan
Inloggen
Maak een gratis persoonlijk account aan
Feedback
Feedback
Wij horen graag jouw feedback. Laat je reactie achter en eventueel jouw e-mail adres.
Reactie
Verstuur