Projecten
Producten
Bedrijven
Vacatures
Agenda
Awards
Podcasts
more_horiz
Videos
Magazine
Favorieten
Profiel
Uitloggen
Abonneer je nu op onze nieuwsbrieven!
Abonneren
Nee, bedankt
Ja, denk met me mee rond de
materialisering van mijn project
Copyright: Ossip van Duivenbode
Copyright: Ossip van Duivenbode
Copyright: Ossip van Duivenbode
Copyright: Ossip van Duivenbode
Copyright: Ossip van Duivenbode
Copyright: Ossip van Duivenbode
Copyright: Ossip van Duivenbode
Copyright: Ossip van Duivenbode
Copyright: Ossip van Duivenbode
Copyright: Ossip van Duivenbode
Copyright: Ossip van Duivenbode
Copyright: Ossip van Duivenbode
Copyright: Ossip van Duivenbode
Copyright: Ossip van Duivenbode
Copyright: Ossip van Duivenbode
Copyright: Ossip van Duivenbode
Copyright: Ossip van Duivenbode
Copyright: de Architekten Cie.
Copyright: de Architekten Cie.
Copyright: de Architekten Cie.
Copyright: de Architekten Cie.
Copyright: de Architekten Cie.
Copyright: de Architekten Cie.
Copyright: de Architekten Cie.
Copyright: de Architekten Cie.
Copyright: de Architekten Cie.
Copyright: de Architekten Cie.
Copyright: de Architekten Cie.
Hoogste graad gezonde werkomgevingen voor EDGE Olympic
18 april 2019, 16:45
Bedrijfsverzamelgebouw EDGE Olympic in Amsterdam is onderscheiden met het WELL Core & Shell Platinum-certificaat. Het is de eerste keer dan een Nederlands gebouw de hoogste graad behaalt binnen dit label voor werkomgevingen met een positief effect op de gezondheid en het welzijn van de gebruikt. Eerder behaalde het gebouw al Energielabel A een BREEAM-NL Excellent-score voor duurzaamheid.
Het pand schuin tegenover het Olympisch Stadion biedt plek aan bedrijven die zich bezighouden met technologie en innovatie. Het voormalige kantoorgebouw werd tussen 2016 en 2018 naar ontwerp van
de Architekten Cie.
herbestemd tot bedrijfsverzamelgebouw waarin de digitale infrastructuur de basis vormt voor het gebruik. Via een app op hun smartphone kunnen de gebruikers tal van zaken regelen.
Zo kunnen ze bijvoorbeeld de temperatuur, verlichting en het CO2-niveau afstellen, vergaderruimtes boeken en zien waar collega’s zich bevinden. Ook is het mogelijk om de bezettingsgraad van ruimtes te controleren. Naast de praktische voordelen die dit systeem biedt kan er ook van worden geleerd, zodat het gebouw gedurende de tijd verder kan worden geoptimaliseerd.
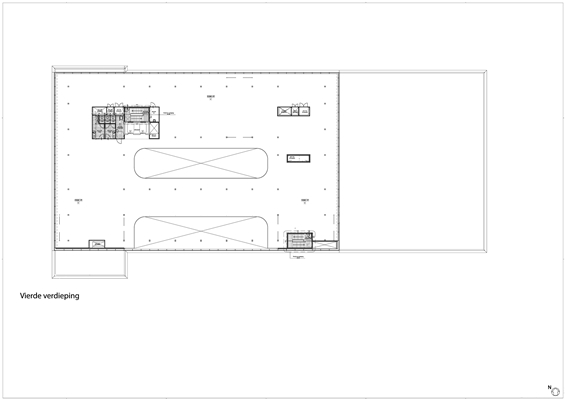
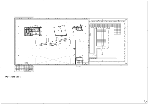
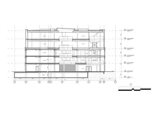
De app stuurt sensoren aan die in de nieuwe plafondeilanden zijn verwerkt. Met de toepassing van deze klimaatplafonds is tevens een hoogtewinst van veertig centimeter geboekt, waardoor hogere werkruimtes zijn ontstaan waar bovendien meer daglicht binnenstroomt. Onder de plafonds is een open en flexibel indeelbare werkvloer gecreëerd.
Het uit 1990 stammend gebouw is voorzien van een nieuwe gevel. De borstwering is uitgezaagd en de kleine ramen zijn vervangen door ramen die nagenoeg van vloer tot plafond reiken. Om dit voor elkaar te krijgen, is tegen de bestaande dragende gevel een staalconstructie geplaatst. De ingang is verplaatst naar de straathoek, ernaast ligt een terras dat grenst aan het water.
Het gebouw is in de hoogte uitgebreid met een twee verdiepingen tellende optopping, die volledig cradle-to-cradle is. Dankzij diens lichtere gewicht kan de houtconstructie worden gedragen door de bestaande constructie eronder. De kolommen en liggers van de houtconstructie blijven zichtbaar in de drie meter hoge ruimtes, die zijn voorzien van een glazen gevel.
Door het hele gebouw lopen twee vides. Alle verdiepingen zijn hierdoor op elkaar en op de centrale ruimte aangesloten, wat onder meer moet bijdragen aan ontmoeting en interactie in het gebouw. Aan de zuidgevel verbinden een kleinere vide op de begane grond en op de derde verdieping twee verdiepingen. Natuurlijk licht dringt binnen tot in het hart van het gebouw.
Over de hele wereld zijn op dit moment zes gebouwen met de hoogste WELL-graad.
Trefwoorden
herbestemming
kantoorgebouw
amsterdam
well
bedrijfsverzamelgebouw
edge technologies
werkomgeving
de architekten cie.
duurzaamheid
Locatie
Best gelezen
1
Symposium rond het ontwerp van scholen – standaardisatie versus maatwerk
woensdag, 6 mei
2
Woonhuis met groen geglazuurde gevelstenen voor Buiksloterham
woensdag, 6 mei
3
Jaarboek Architectuur in Nederland 2025/2026 gepresenteerd
donderdag, 7 mei
4
Amsterdam schrijft eerste tender uit voor gebouw Weespertrekvaart-Oost
woensdag, 6 mei
5
Kunsthal BRUSK in Brugge opent officieel zijn deuren
vrijdag, 8 mei
Gerelateerde nieuwsberichten
Meerderheid kantoren nog niet op in 2023 verplichte energielabel C
19 april 2019
Architectenweb organiseert serie talkshows op Gevel 2020
9 januari 2020
WELL Platinum-certificaat voor Aeres Hogeschool Almere
15 december 2022
Spectaculair dak vervult sleutelrol binnen EDGE Amsterdam West
12 september 2022
Nieuw leven voor Forum-gebouw als EDGE Stadium
9 december 2020
Nieuw complex met kantoren en woningen nabij station Eindhoven
17 november 2020
Uber neemt intrek in herontwikkeld Tripolis-complex
13 februari 2020
Hellingbaan verbindend element in getransformeerde Citroëngarage Noord
22 januari 2020
Bouwstart voor EDGE Suedkreuz in Berlijn
15 augustus 2019
Fokkema & Partners ontwerpt een ‘no office’-kantoor voor EDGE
14 augustus 2019
Transparant kantoorgebouw met oog voor welzijn
18 juli 2019
De Architekten Cie. plaatst glaskoepel op EDGE Amsterdam West
28 mei 2019
Hoofdkantoor EMA: veel kwaliteit in korte tijd
18 februari 2019
Langere ontwerpfase voor Zuidasdok Amsterdam nodig
7 februari 2019
Winnaars Zuiderkerkprijs en Geurt Brinkgreve Bokaal 2018
14 december 2018
'Bladerdak' blikvanger van nieuw kantoor Goede Doelen Loterijen
7 december 2018
Kantoortorens AkzoNobel en Stibbe omgevormd tot 2Amsterdam
14 november 2018
Terrassengebouw van NL Architects met geïntegreerd groen
25 september 2018
Schatkamer en tentoonstelling in Burgerweeshuis geopend
6 september 2018
Nieuw woongebouw in hart van Kop Zuidas
26 juni 2018
Flatgebouw op Zuidas grondig opgewaardeerd door Hans van Heeswijk architecten
13 juni 2018
Gepixeld appartementencomplex van SeARCH
22 mei 2018
Bouw van ‘The George’ gestart
20 april 2018
Woongebouwen Gershwin Brothers Zuidas opgeleverd
16 april 2018
Interieur als versterking van de architectuur Burgerweeshuis
8 maart 2018
Wessel de Jonge: ‘Met het Burgerweeshuis is een cirkel rond’
2 februari 2018
Renovatie Burgerweeshuis: terug naar de essentie van het gebouw
2 februari 2018
AM met Team V geselecteerd voor Kop Zuidas
22 november 2017
UNStudio plaatst een danser op de Zuidas
11 oktober 2017
WTC Amsterdam uitgebreid met tiende toren
13 september 2017
Circl – ‘Zo circulair kunnen we nu bouwen’
8 september 2017
Bouw torencomplex Valley van start
7 september 2017
Kindercampus met natuurlijke buitenruimte
20 april 2017
900 Mahler geïnspireerd op New Yorkse architectuur
27 januari 2017
Dok en KCAP ontwerpen woongebouwen Zuidas
4 januari 2017
Oriënteren via kleuren in fietsparkeergarage Zuidas
18 juli 2016
Rechtbank Zuidas 'gezagwekkend en herkenbaar'
26 mei 2016
Plannen Citroëngebouwen Amsterdam bekend
19 april 2016
Hoofdkantoor Stibbe aan Zuidas opgeleverd
2 maart 2016
AkzoNobel Center aan de Zuidas geopend
28 januari 2016
Herontwikkeling voor gebouw Atrium op Zuidas
11 januari 2016
Atypisch kantoorpand aan de Zuidas
17 november 2015
Bouw The Pavilion aan de Zuidas gestart
22 september 2015
Eerste paal voor Square in Kop Zuidas
11 februari 2015
Nieuw appartementengebouw op Zuidas
2 juli 2014
Meerderheid kantoren nog niet op in 2023 verplichte energielabel C
19 april 2019
Architectenweb organiseert serie talkshows op Gevel 2020
9 januari 2020
WELL Platinum-certificaat voor Aeres Hogeschool Almere
15 december 2022
Spectaculair dak vervult sleutelrol binnen EDGE Amsterdam West
12 september 2022
Nieuw leven voor Forum-gebouw als EDGE Stadium
9 december 2020
Nieuw complex met kantoren en woningen nabij station Eindhoven
17 november 2020
Uber neemt intrek in herontwikkeld Tripolis-complex
13 februari 2020
Hellingbaan verbindend element in getransformeerde Citroëngarage Noord
22 januari 2020
Bouwstart voor EDGE Suedkreuz in Berlijn
15 augustus 2019
Fokkema & Partners ontwerpt een ‘no office’-kantoor voor EDGE
14 augustus 2019
Transparant kantoorgebouw met oog voor welzijn
18 juli 2019
De Architekten Cie. plaatst glaskoepel op EDGE Amsterdam West
28 mei 2019
Hoofdkantoor EMA: veel kwaliteit in korte tijd
18 februari 2019
Langere ontwerpfase voor Zuidasdok Amsterdam nodig
7 februari 2019
Winnaars Zuiderkerkprijs en Geurt Brinkgreve Bokaal 2018
14 december 2018
'Bladerdak' blikvanger van nieuw kantoor Goede Doelen Loterijen
7 december 2018
Kantoortorens AkzoNobel en Stibbe omgevormd tot 2Amsterdam
14 november 2018
Terrassengebouw van NL Architects met geïntegreerd groen
25 september 2018
Schatkamer en tentoonstelling in Burgerweeshuis geopend
6 september 2018
Nieuw woongebouw in hart van Kop Zuidas
26 juni 2018
Flatgebouw op Zuidas grondig opgewaardeerd door Hans van Heeswijk architecten
13 juni 2018
Gepixeld appartementencomplex van SeARCH
22 mei 2018
Bouw van ‘The George’ gestart
20 april 2018
Woongebouwen Gershwin Brothers Zuidas opgeleverd
16 april 2018
Interieur als versterking van de architectuur Burgerweeshuis
8 maart 2018
Wessel de Jonge: ‘Met het Burgerweeshuis is een cirkel rond’
2 februari 2018
Renovatie Burgerweeshuis: terug naar de essentie van het gebouw
2 februari 2018
AM met Team V geselecteerd voor Kop Zuidas
22 november 2017
UNStudio plaatst een danser op de Zuidas
11 oktober 2017
WTC Amsterdam uitgebreid met tiende toren
13 september 2017
Circl – ‘Zo circulair kunnen we nu bouwen’
8 september 2017
Bouw torencomplex Valley van start
7 september 2017
Kindercampus met natuurlijke buitenruimte
20 april 2017
900 Mahler geïnspireerd op New Yorkse architectuur
27 januari 2017
Dok en KCAP ontwerpen woongebouwen Zuidas
4 januari 2017
Oriënteren via kleuren in fietsparkeergarage Zuidas
18 juli 2016
Rechtbank Zuidas 'gezagwekkend en herkenbaar'
26 mei 2016
Plannen Citroëngebouwen Amsterdam bekend
19 april 2016
Hoofdkantoor Stibbe aan Zuidas opgeleverd
2 maart 2016
AkzoNobel Center aan de Zuidas geopend
28 januari 2016
Herontwikkeling voor gebouw Atrium op Zuidas
11 januari 2016
Atypisch kantoorpand aan de Zuidas
17 november 2015
Bouw The Pavilion aan de Zuidas gestart
22 september 2015
Eerste paal voor Square in Kop Zuidas
11 februari 2015
Nieuw appartementengebouw op Zuidas
2 juli 2014
Toon alles
Andere nieuwsberichten
Van Eesteren Museum organiseert expositie over architect Afaina de Jong
Vandaag, 15:24
Vanaf 29 mei presenteert het Van Eesteren Museum in Amsterdam de eerste retrospectieve tentoonstelling van architect, ontwerper en onderzoeker Afaina de Jong.
Schoonhovens College van Geurst & Schulze architecten stimuleert vakmanschap, ontmoeting en leerprestaties
Vandaag, 14:29
Het nieuwe Schoonhovens College en de sporthal De Meent die Geurst & Schulze architecten in Schoonhoven ontwierpen bundelen voorzieningen voor beroepsonderwijs en sport.
LED-gevel winkelpand knipoogt naar Rietveld-façade Bioscoop Vreeburg
Vandaag, 11:35
Op het Vredenburg in Utrecht heeft Heyligers architects de gevel van een winkel- en kantoorpand gerenoveerd. In het ontwerp heeft het bureau de uitstraling van de door Gerrit Rietveld ontworpen gevel voor de toenmalige bioscoop willen benaderen.
Zijn tenders in Duitsland beter geregeld dan in Nederland?
Vandaag, 09:00
Met zijn team werkte architect Alexander Pols afgelopen periode aan een ontwerp voor een architectenselectie in Berlijn. Gezien de aanhoudende discussie over de tendercultuur in Nederland... is het bij onze oosterburen beter geregeld?
Alsemgeest Design & Build en Ferm Architecten gaan verder als één bureau
Vandaag, 13:42
De bureaus blijven voorlopig naast elkaar bestaan, waarbij Nico Alsemgeest (68) zich langzaam zal terugtrekken.
Onderzoek: Nederlander wil verduurzamen, maar vindt het duur
Vandaag, 12:26
Een kleine meerderheid van de Nederlanders wil graag verduurzamen, maar bij een groot gedeelte komt het daar niet van.
Geld voor eigen sociale initiatieven bewoners aardbevingsgebied
Vandaag, 10:33
het geld komt uit het potje van ‘Nij Begun’, het grootschalige programma van het Rijk om de economie en sociale ontwikkeling in het noorden te verbeteren.
Tachtig Nederlandse tuindorpen behandeld in nieuwe atlas
Gisteren, 16:33
Bij uitgeverij Wbooks is Atlas van Tuindorpen in Nederland verschenen.
Rapport: veilig Bonaire kostbaar, maar nietsdoen is veel duurder
Gisteren, 10:48
Om de inwoners van Bonaire te beschermen tegen de gevolgen van klimaatverandering, zijn investeringen van tussen de 1,2 en 1,8 miljard dollar nodig.
Nieuwe coalitie Moerdijk hamert op duidelijkheid en compensatie
8 mei, 4:27
Er wordt al langere tijd gesproken over opheffing van het Brabantse dorp Moerdijk, een van de elf kernen van de gemeente.
Ga naar het nieuws-archief
Ronnie Weessies
Redacteur
1
0
0
0
Voor een optimale gebruikservaring plaatst Architectenweb functionele cookies. Wat de verschillende cookies precies doen leggen we uit in een
overzicht
. Cookies van social media kun je optioneel
aanzetten
.
Akkoord
Instellingen
Annuleren
OK
Sluiten
Doorgaan
Inloggen
Maak een gratis persoonlijk account aan
Feedback
Feedback
Wij horen graag jouw feedback. Laat je reactie achter en eventueel jouw e-mail adres.
Reactie
Verstuur