Copyright: Jeroen Musch
Copyright: Jeroen Musch
Copyright: Jeroen Musch
Copyright: Jeroen Musch
Copyright: Jeroen Musch
Copyright: Jeroen Musch
Copyright: Jeroen Musch
Copyright: Jeroen Musch
Copyright: Jeroen Musch
Copyright: Jeroen Musch
Copyright: Jeroen Musch
Copyright: Jeroen Musch
Copyright: Jeroen Musch
Copyright: Jeroen Musch
Copyright: Jeroen Musch
Copyright: Jeroen Musch
Copyright: Jeroen Musch
Copyright: Fact Architects/Hund Falk Architecten
Copyright: Fact Architects/Hund Falk Architecten
Copyright: Fact Architects/Hund Falk Architecten

Kindercampus met natuurlijke buitenruimte

20 april 2017, 9:14
Kindercampus Zuidas in Amsterdam biedt onderdak aan een school, kinderdagverblijf en een buitenschoolse opvang. Het gebouw, ontworpen door Fact Architects en Hund Falk architecten, kenmerkt zich door de gevel van ruw hout, glanzend aluminium en grote ramen.

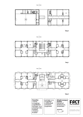
De Kindercampus Zuidas biedt een plek aan kinderen van 0 tot en met 12 jaar tussen 08.00 en 18.00 uur om te spelen en leren. Het gebouw is de huisvesting van een lagere school met twaalf groepen, een buitenschoolse opvang met zes groepen en een kinderdagverblijf met vijf groepen. Verder omvat het programma vier kantoorruimtes, een kantine, een speellokaal, een bibliotheek en een sportzaal.

Organisatie
De onderwijsvisie van de doorgaande leerlijn heeft richting gegeven aan de hoofdopzet van het gebouw.  Uitgangspunt van deze onderwijsvisie is dat kinderen van opvolgende leeftijden ongedwongen met elkaar in contact komen. Peer Glandorff en Floris Hund, in het ontwerpteam namens respectievelijk Fact Architects en Hund Falk architecten, hebben het gebouw opgedeeld in clusters naar leeftijdsgroep. Tussenruimtes koppelen de groepsruimtes en kunnen dienst doen voor de naschoolse opvang.

Het interieur is georganiseerd rondom het speellokaal, dat tevens fungeert als aula. Deze centrale plek is bedoeld voor alle leeftijden. Een tribunetrap maakt de verbinding met de bovengelegen bibliotheek. De gymzaal op de tweede verdieping is apart ontsloten. Daardoor kunnen ook derden van deze ruimte gebruik maken.

Natuurlijk buiten
Rondom het gebouw liggen verschillende ‘natuurlijke’ buitenruimtes. Hier vinden de kinderen speelplekken, klimbomen, een strandje met waterval en een steiger met in de trap aangebrachte moestuintjes. Aan de entreezijde ligt een verhard speelplein. Hier bevindt zich ook een – als extra fietsbaan te gebruiken – ‘kiss and ride’-zone.

De buitenruimtes zijn uitgewerkt in samenwerkin met de gemeente Amsterdam (Ruimte en Duurzaamheid), tuinbureau Het Wilde Land en specialist in natuurspeelplaatsen Zandraket.

Boomschorsplanken
Het gebouw is vervaardigd uit gestandaardiseerde elementen, aldus de architecten. De gevel bestaat uit elementen met veel glas en aluminium plaatmateriaal. De specifieke invulling van de verschillende gevelelementen is afhankelijk van de achterliggende ruimtes en van de oriëntatie op de zon.

Voor nagenoeg de hele gevel, deels ook voor het glas, zijn rekken met een open structuur van ruige houten schaaldelen geplaatst. De boomschorsplanken variëren per gevelband in afmeting, onderlinge afstand en richting van de schorszijde. De rekken fungeren als zonwering, als luifels en als afwerking. Op deze manier hebben de architecten een evenwicht weten te vinden tussen ruim binnenvallend daglicht en een minimale warmtelast.

Rustig interieur
 Het interieur kent een uniforme uitstraling. De vloeren hebben overal een identieke lichtgrijze afwerking. De wanden vertonen een rustig patroon in houten plaatmaterialen. Het vaste meubilair, zoals kasten werkbladen aan de gevel en zitjes, zijn onderdeel van het totaalontwerp.

Binnen het beschikbare budget hebben de architecten een duurzaam gebouw weten te realiseren, met ruimtelijke kwaliteit, extra verdiepingshoogte en een goed binnenklimaat. Een heldere ruimtelijke  en constructieve opzet maakte dat mogelijk, aldus Glandorff en Hund. De school heeft volgens de eisen voor Frisse Scholen klasse B algemeen en klasse A voor luchtkwaliteit.

Verschoven
Een interessant facet aan het gebouw is dat het tijdens de gefaseerde realisatie deels op locatie is verschoven. In 2014 was er grote behoefte aan een nieuwe school op de Amsterdamse Zuidas, maar de enige geschikte locatie zou pas in 2015 vrij komen. Starten met tijdelijke huisvesting was aanzienliojk duurder dan gefaseerd bouwen op een tijdelijke locatie en op een klater tijdstip het gebouwdeel verschuiven, leggen de architecten uit.

Bouwdeel A is opgeleverd in 2014, waarmee de kinderen al vanaf de eerste dag kwalitatieve huisvesting hadden. Na voltooiing van bouwdeel B in 2016 is het eerste bouwdeel 30 meter verschoven om aan te sluiten. De derde fase bestaat uit de realisatie van een extra bouwlaag op bouwdeel A. Oplevering wordt midden 2017 verwacht.

Kindercampus Zuidas was een van de genomineerden voor de Gouden A.A.P. 2017.

Gerelateerde nieuwsberichten

Andere nieuwsberichten

Kraaijvanger Architects aan de slag met renovatie Station Zuidplein

Gisteren, 09:00

Concrete ontwerpt woongebouw in Philadelphia met gevelkunst door tattoo-artist Henk Schiffmacher

23 december, 12:00

Rotterdamse Academie van Bouwkunst stelt twee curatoren aan om thematische lijnen te ontwikkelen

22 december, 11:20

Den Haag ziet ruimte voor meer woningen in gebied Laakhavens-Hollands Spoor

19 december, 3:15

Fijne feestdagen en een gelukkig, gezond en succesvol 2026!

Gisteren, 13:00

Provincie Zuid-Holland: stroom van zee via Hoek van Holland naar Rotterdamse haven

23 december, 5:00

DNR geactualiseerd naar hedendaagse praktijk

19 december, 4:03

Inschrijving voor tiende editie Architectuurprijs Nijmegen geopend

19 december, 1:17

Tweede Kamer schuift aanpassing huurwet door naar nieuw kabinet

19 december, 9:13

Faillissement V&D laat nog altijd sporen na in winkelgebieden

18 december, 12:03
Robert MuisRedacteur
ATAG Nederland
KUBUS | Specialist in BIM-software
SAPA
Reynaers Aluminium Nederland
Jansen
SAB-profiel bv
Aliplast Aluminium Systems
Kingspan Light & Air
Hagemeister GmbH & Co. KG
ALUCOBOND®
Tarkett BV
Kawneer
Grohe Nederland B.V.
Malaysian Timber Council
OCS | Office Cabling Systems
Swisspearl Nederland
Forster Nederland N.V.
VELUX Commercial Benelux B.V.
Sempergreen
Houthandel van Dam
Aluprof Nederland BV
QbiQ Wall Systems
Forbo Flooring
Schüco Nederland
Cedral
Sto Isoned bv
Triflex bv
Gorter Luiken BV
wienerberger
Knauf Insulation
DUCO Ventilation & Sun Control
BEWI IsoBouw
Mview+
Rockfon (ROCKWOOL B.V.)
Gira Nederland B.V.
Kingspan Geïsoleerde Panelen
GEZE Benelux  B.V.
Renson
Metaglas Groep
ABB | Busch-Jaeger
Jung | Hateha B.V.
Knauf B.V.
Saint-Gobain Glass Benelux
Faay Vianen B.V.
objectflor
Boon Edam Nederland B.V.
Hunter Douglas Architectural
VOLA Nederland BV
Forbo Eurocol Nederland B.V.
EQUITONE gevelpanelen
Holonite B.V.
AXOR + hansgrohe
Tata Steel Colorcoat®
Architectenweb
Over ons
Contact

© 2002 - 2025 Architectenweb BV / Voorwaarden / Privacy / Disclaimer / Sitemap
Annuleren
OK
Sluiten
Doorgaan
Inloggen
Maak een gratis persoonlijk account aan