Projecten
Producten
Bedrijven
Vacatures
Agenda
Awards
Podcasts
more_horiz
Videos
Magazine
Favorieten
Profiel
Uitloggen
Abonneer je nu op onze nieuwsbrieven!
Abonneren
Nee, bedankt
Ja, denk met me mee rond de
materialisering van mijn project
Copyright: Roelof Bos
Copyright: Roelof Bos
Copyright: Roelof Bos
Copyright: Roelof Bos
Copyright: Roelof Bos
Copyright: Roelof Bos
Copyright: Roelof Bos
Copyright: Roelof Bos
Copyright: Roelof Bos
Copyright: Roelof Bos
Copyright: Roelof Bos
Copyright: Roelof Bos
Copyright: Roelof Bos
Copyright: Roelof Bos
Copyright: Roelof Bos
Copyright: Roelof Bos
Copyright: Roelof Bos
Copyright: Roelof Bos
Plankaart
Copyright: Marseille Buiten
Profiel
Copyright: Marseille Buiten
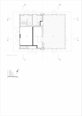
Plattegrond
Copyright: IRIS architecten
Doorsneden
Copyright: IRIS architecten
Doorsneden
Copyright: IRIS architecten
Doorsnede
Copyright: IRIS architecten
Gevels nieuw
Copyright: IRIS architecten
Gevels nieuw
Copyright: IRIS architecten
Dakaanzicht
Copyright: IRIS architecten
Gevels bestaand
Copyright: IRIS architecten
Gevels bestaand
Copyright: IRIS architecten
Rijksmonumentaal tankstation Groningen getransformeerd tot Dudok aan het Diep
16 september 2025, 14:19
In Groningen is een rijksmonumentaal tankstation naar ontwerp van architect Willem Marinus Dudok getransformeerd tot een kleinschalige horecagelegenheid. Niet alleen het gebouw zelf is aangepakt, ook de directe omgeving onderging een transformatie tot een publieke ruimte. Het ontwerp is tot stand gekomen door een nauwe samenwerking van
IRIS architecten
en
Marseille Buiten
.
Dudok aan het Diep, zoals het gebouw en de plek nu heten, is uitdrukkelijk niet bedoeld als een horecagelegenheid met terras, maar als een groene verblijfsplek aan de Diepenring, waar mensen kunnen zitten, spelen, lezen en ontspannen. Via een vlonder is de ruimte bovendien beter dan ooit verbonden met het naastgelegen water.
Tussen 1953 tot 1967 ontwierp Dudok 112 tankstations voor Esso. Van deze markante gebouwtjes zijn er slechts twee bewaard gebleven. Het exemplaar in Groningen, sinds 2010 een rijksmonument en in 2013 door inwoners gekozen tot mooiste naoorlogse gebouw van de stad, wijkt af van de 111 andere. Door de aanwezigheid van een geïntegreerd netstation moesten delen van de glazen gevels worden vervangen door dichte stalen platen, iets wat inging tegen Dudoks oorspronkelijke transparante ontwerpvisie.
Zes jaar geleden wonnen IRIS architecten en Marseille Buiten een prijsvraag van de gemeente Groningen voor de herbestemming van het uit 1955 stammend tankstation en diens directe omgeving. Het winnend plan vertrok vanuit het idee dat het tankstation niet als een museumstuk bewaard moest blijven, maar onderdeel zou worden van een levendige publieke plek.
Zoveel mogelijk origineel materiaal
De kiosk is gerestaureerd met behoud van zoveel mogelijk origineel materiaal, waarbij de sporen van zeventig jaar in het interieur zichtbaar zijn gehouden. Het gebouw is verduurzaamd met behoud van de oorspronkelijke uitstraling. De bestaande stalen kozijnen zijn voorzien van warmtereflecterend glas, het dak en de vloer zijn geïsoleerd (met het dak terugliggend, zodat de kenmerkende daklijn behouden bleef) en op het dak zijn PV-panelen als folie aangebracht. In de gevel rond het netstation zijn PV -panelen met foto’s van de originele situatie gerealiseerd. Verwarming en koeling verlopen via een warmtepomp, onzichtbaar geplaatst achter hergebruikte roosters.
Het plein is vergroend en ingericht met beplanting die biodiversiteit stimuleert en weinig onderhoud vraagt. Nieuwe bomen zorgen voor schaduw en verkoeling. Het houten dek voorkomt hittestress en laat regenwater door. De vlonder is volledig los gehouden van de eveneens rijksmonumentale kade.
De grote houten vlonder aan het water is ontwikkeld als een enorm zitelement, bijna als een meubel dat op het water is gelegd. Het element is ontworpen als een lichte, vloeiende overgang tussen de hoogte van de straat en het diepe profiel van de Diepenring. Voor het terrein en de vlonder hebben de ontwerpers gekozen voor een ambachtelijke detaillering in gebakken klinkers, natuursteen en hout.
Aan het project werkten verder partijen mee als Dura Vermeer, Brands Bouw, ABT, Bureau 1232 en B+E.
Trefwoorden
groningen
transformatie
willem marinus dudok
w.m. dudok
dudok aan het diep
naoorlogs
tankstation
marseille buiten
iris architecten
Locatie
Best gelezen
1
Woontoren Front door Monadnock wint tiende Architectuurprijs Nijmegen
donderdag, 9 april
2
Spoorwegverleden inspireert ontwerp woonblok Wisselspoor 10 in Utrecht
woensdag, 8 april
3
Rotterdam mag woningen gaan bouwen aan de Parkhaven
woensdag, 8 april
4
SeARCH en Heutink Groep winnen tender voor woongebouw Sluisbuurt
vrijdag, 10 april
5
KOW wint met Marker Woods tender voor nieuwe wijk Eschmarkerveld
woensdag, 8 april
Gerelateerde nieuwsberichten
Winnaars Groninger Architectuurprijs 2025 bekendgemaakt
6 oktober 2025
Tankstation Dudok wordt groene verblijfsplek aan het water
21 november 2019
Twee belangrijke mijlpalen bereikt bij verbouwing station Groningen
23 juli 2025
Groningen wil Kardinge vervangen door nieuw sportcentrum
27 mei 2025
Groningen bouwt nieuwe popzaal en renoveert De Oosterpoort
10 april 2025
Provinciehuis in Groningen is toe aan grote renovatie
12 maart 2025
PosadMaxwan presenteert stedenbouwkundig plan Spoorkwartier Groningen
31 januari 2025
Shift, Marlies Rohmer en LOLA winnen tender voor campus internationale school in Groningen
23 januari 2025
Groningers kiezen nieuwe invulling voor plek gesloopte parkeergarage in stadscentrum
11 november 2025
Universitair Centrum Psychiatrie UMCG bekroond als Zorggebouw van het Jaar 2024
6 november 2024
Studioninedots en Felixx presenteren ontwerp transformatie voormalige Niemeyerfabriek
10 december 2025
KAAN Architecten voltooit Onderwijscentrum Rijksuniversiteit Groningen
24 september 2024
Groningen kiest plan Harthof voor herontwikkeling parkeergarage Haddingestraat
17 december 2025
Vernieuwde Ring Zuid in Groningen klaar voor gebruik
20 augustus 2024
Niemeyer-fabriek Groningen wordt broedplaats voor bedrijven en kennisinstellingen
19 juli 2024
Bouw Huis voor de Amateurkunst Vrijdag in Groningen kan starten
1 juli 2024
Plannen voor nieuw rijkskantoor naast pand Belastingdienst en DUO in Groningen
21 juni 2024
Heringerichte Grote Markt in Groningen officieel ingewijd
4 juni 2024
Zeven architectenbureaus ontwerpen eerste woningen De Suikerzijde
15 april 2024
Ben van der Meer en Michiel Van Driessche worden stadsbouwmeester Groningen
20 december 2023
Abe Bonnema Architectuurprijs 2023 toegekend aan de Kunstwerf
8 december 2023
Mercado vormt schakel tussen Grote Markt en kleinschaliger straat Groningen
21 november 2023
Resultaten ontwerpmanifestatie Bouw Anders gebundeld in boek
6 december 2023
De Kunstwerf is Publiek gebouw van het Jaar 2023
8 november 2023
Winnaars Groninger Architectuurprijs 2025 bekendgemaakt
6 oktober 2025
Tankstation Dudok wordt groene verblijfsplek aan het water
21 november 2019
Twee belangrijke mijlpalen bereikt bij verbouwing station Groningen
23 juli 2025
Groningen wil Kardinge vervangen door nieuw sportcentrum
27 mei 2025
Groningen bouwt nieuwe popzaal en renoveert De Oosterpoort
10 april 2025
Provinciehuis in Groningen is toe aan grote renovatie
12 maart 2025
PosadMaxwan presenteert stedenbouwkundig plan Spoorkwartier Groningen
31 januari 2025
Shift, Marlies Rohmer en LOLA winnen tender voor campus internationale school in Groningen
23 januari 2025
Groningers kiezen nieuwe invulling voor plek gesloopte parkeergarage in stadscentrum
11 november 2025
Universitair Centrum Psychiatrie UMCG bekroond als Zorggebouw van het Jaar 2024
6 november 2024
Studioninedots en Felixx presenteren ontwerp transformatie voormalige Niemeyerfabriek
10 december 2025
KAAN Architecten voltooit Onderwijscentrum Rijksuniversiteit Groningen
24 september 2024
Groningen kiest plan Harthof voor herontwikkeling parkeergarage Haddingestraat
17 december 2025
Vernieuwde Ring Zuid in Groningen klaar voor gebruik
20 augustus 2024
Niemeyer-fabriek Groningen wordt broedplaats voor bedrijven en kennisinstellingen
19 juli 2024
Bouw Huis voor de Amateurkunst Vrijdag in Groningen kan starten
1 juli 2024
Plannen voor nieuw rijkskantoor naast pand Belastingdienst en DUO in Groningen
21 juni 2024
Heringerichte Grote Markt in Groningen officieel ingewijd
4 juni 2024
Zeven architectenbureaus ontwerpen eerste woningen De Suikerzijde
15 april 2024
Ben van der Meer en Michiel Van Driessche worden stadsbouwmeester Groningen
20 december 2023
Abe Bonnema Architectuurprijs 2023 toegekend aan de Kunstwerf
8 december 2023
Mercado vormt schakel tussen Grote Markt en kleinschaliger straat Groningen
21 november 2023
Resultaten ontwerpmanifestatie Bouw Anders gebundeld in boek
6 december 2023
De Kunstwerf is Publiek gebouw van het Jaar 2023
8 november 2023
Toon alles
Andere nieuwsberichten
Architect Cees Dam op 93-jarige leeftijd overleden
Vandaag, 14:35
De oprichter van Dam & Partners architecten ontwierp onder meer de Stopera in Amsterdam (samen met Wilhelm Holzbauer), het stadhuis van Almere en het Huis van de Toekomst in Rosmalen.
Powerhouse Company wint aanbesteding voor verbouwing Vista College Maastricht
Vandaag, 12:16
Het onderkomen van de mbo-school wordt gerenoveerd en uitgebreid met een houten gebouwdeel, dat onder meer de nieuwe hoofdentree en twee atria bevat. Ook moet de nieuwbouw de bestaande gebouwen beter met elkaar verbinden.
Stedelijk Museum organiseert tentoonstelling over ontwerper Kho Liang Ie
Vandaag, 10:52
Met zijn ontwerpen voor meubels en interieurs van de jaren vijftig tot zijn dood halverwege de jaren zeventig nam Kho een centrale positie in binnen de Nederlandse vormgeving. Vermaard is onder meer zijn inrichting van luchthaven Schiphol.
Restauratie Atlasbeeld op dak Koninklijk Paleis Amsterdam afgerond
10 april, 3:38
Het beeld op het fronton van het paleis was in juli van zijn plek gehaald voor een uitgebreide onderhoudsbeurt in Antwerpen.
AFM: funderingsproblemen bij bijna 220.000 woningen
Vandaag, 13:25
De huizen van bijna een half miljoen woningeigenaren hebben een hoog risico op funderingsproblemen of een mogelijke kwetsbare fundering.
Oprichter omgevallen vastgoedconcern Evergrande bekent schuld
Vandaag, 09:17
Evergrande was ooit de grootste projectontwikkelaar van China, maar kwam in de problemen toen het zijn schulden niet kon terugbetalen.
Grote en kleine gemeenten balen van bouwregels Zuid-Holland
10 april, 4:31
Grote en kleine gemeenten in Zuid-Holland hebben hun zorgen geuit over nieuwe regels van de provincie, die volgens hen de woningbouw belemmeren.
Twijfels in Zuid-Holland over halen van doelen landelijk gebied
10 april, 12:18
De meeste partijen in de Zuid-Hollandse politiek hebben twijfels over de plannen die in zestien deelgebieden zijn gemaakt voor de aanpak van het landelijk gebied.
Huurprijzen stijgen harder dan koopwoningprijzen
10 april, 9:31
Volgens Huurwoningen.nl en Pararius moesten nieuwe huurders in het eerste kwartaal gemiddeld 21,12 euro per vierkante meter per maand neerleggen.
ABN AMRO: investeringen defensie vergroten druk op bouwcapaciteit
9 april, 12:29
Kazernes, opslagplaatsen en oefenterreinen dingen om dezelfde aannemers, ingenieurs en installateurs die ook nodig zijn voor bijvoorbeeld woningbouw.
Ga naar het nieuws-archief
Ronnie Weessies
Redacteur
1
0
0
0
Voor een optimale gebruikservaring plaatst Architectenweb functionele cookies. Wat de verschillende cookies precies doen leggen we uit in een
overzicht
. Cookies van social media kun je optioneel
aanzetten
.
Akkoord
Instellingen
Annuleren
OK
Sluiten
Doorgaan
Inloggen
Maak een gratis persoonlijk account aan
Feedback
Feedback
Wij horen graag jouw feedback. Laat je reactie achter en eventueel jouw e-mail adres.
Reactie
Verstuur