Projecten
Producten
Bedrijven
Vacatures
Agenda
Awards
Podcasts
more_horiz
Videos
Magazine
Thema's
Favorieten
Profiel
Uitloggen
Abonneer je nu op onze nieuwsbrieven!
Abonneren
Nee, bedankt
Ja, denk met me mee rond de
materialisering van mijn project
Copyright: Marcel IJzerman
Copyright: Sebastian van Damme
Copyright: Marcel IJzerman
Copyright: Sebastian van Damme
Copyright: Sebastian van Damme
Copyright: Sebastian van Damme
Copyright: Sebastian van Damme
Copyright: Sebastian van Damme
Copyright: Sebastian van Damme
Copyright: Sebastian van Damme
Copyright: Sebastian van Damme
Situatie
Copyright: De Zwarte Hond / Loer Architecten
Noordgevel
Copyright: De Zwarte Hond / Loer Architecten
Zuidgevel
Copyright: De Zwarte Hond / Loer Architecten
Oostgevel
Copyright: De Zwarte Hond / Loer Architecten
Westgevel
Copyright: De Zwarte Hond / Loer Architecten
Doorsnede
Copyright: De Zwarte Hond / Loer Architecten
Doorsnede
Copyright: De Zwarte Hond / Loer Architecten
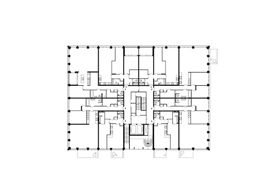
Begane grond
Copyright: De Zwarte Hond / Loer Architecten
Tweede verdieping
Copyright: De Zwarte Hond / Loer Architecten
Zevende verdieping
Copyright: De Zwarte Hond / Loer Architecten
Mercado vormt schakel tussen Grote Markt en kleinschaliger straat Groningen
21 november 2023, 11:32
In Groningen is het multifunctionele gebouw Mercado opgeleverd. Het complex, dat is ontworpen door
De Zwarte Hond
en
Loer Architecten
, biedt ruimte aan 41 appartementen en horecafuncties. Mercado maakt deel uit van de transformatie van de Rode Weeshuisstraat, waarvoor de genoemde bureaus het stedenbouwkundig ontwerp hebben gemaakt.
Mercado staat op de plek van een voormalig opslaggebouw van het naastgelegen V&D-pand aan de Grote Markt. Samen met de transformatie van het vroegere warenhuis tot
Groot Handelshuis
, de transformatie van een voormalig distributiepand van V&D
tot woongebouw
en de realisatie van het nieuwe Stalplein behelst Mercado het stedenbouwkundig plan voor de transformatie van de Rode Weeshuisstraat.
De naam Mercado verwijst naar de oorspronkelijk bedachte functie van een markthal in de plint, maar dat plan is gedurende de ontwikkeling van het project gewijzigd. Wel heeft de begane grond een dermate flexibel karakter dat hier in de toekomst zo’n functie kan komen. Doordat de trappen en liften aan de zijkant zijn geplaatst, is binnen een vrij indeelbare ruimte ontstaan die geschikt is om verschillende publieke functies te huisvesten.
Schakel
In stedenbouwkundig opzicht vormt Mercado een schakel tussen de grotere schaal van de panden aan de Grote Markt en de kleinschaliger Rode Weeshuisstraat. Het volume vertrapt, waarbij als principe is gehanteerd: hoog waar het kan, laag waar het moet. Dankzij de nieuwe, zes meter hoge plint met een publieke functie en het naastgelegen Stalplein wordt een straatwand die voorheen een achterkant vormde verlevendigd met een ontmoetingsplek.
Voor de gevels zijn keramische gevelelementen met een groenblauwe glazuur toegepast, die door de glans bij elk weertype een andere kleur heeft. De gevel refereert onder meer aan de pasteltinten van het tegenovergelegen weeshuis, waar de straat naar is vernoemd. Het gebouw is voorzien van 3.800 planten, die aan de gevel groeien of op de terrassen van woningen staan.
Speciale plantenbakken
Voor Mercado zijn speciale plantenbakken ontwikkeld met een uniek kleurenpatroon, passend bij het gebouw, melden de architectenbureaus. Zowel de dakterrassen als de geveltuinen worden computergestuurd bewaterd en periodiek onderhouden door een hovenier. Onder het gebouw zijn bronnen geslagen voor warmte- en koudeopslag. In combinatie met warmtepompen heeft het hele gebouw daarmee een aardgasvrije installatie gekregen.
De Zwarte Hond en Loer Architecten werkten in opdracht van de ontwikkelaars MWPO en Beauvast. Plegt-Vos heeft de bouw voor zijn rekening genomen. De appartementen (waaronder enkele penthouses) zijn van de luxe soort. Onder het gebouw bevindt zich een parkeerkelder.
https://vimeo.com/886767616
Trefwoorden
rode weeshuisstraat
mercado
mwpo
groningen
woningbouw
v&d
beauvast
de zwarte hond
loer architecten
plegt-vos
Locatie
Best gelezen
1
Luxe appartementengebouw naast klooster Etten-Leur door Studio AAAN klaar
donderdag, 19 maart
2
PSV presenteert plannen voor uitbreiding Philips Stadion
vrijdag, 20 maart
3
Houten Stelthuis van Woonpioniers is aardbevings- en klimaatbestendig
woensdag, 18 maart
4
BureauVanEig verbetert uitstraling Haagse rijtjeswoningen bij verduurzaming
dinsdag, 17 maart
5
De nieuwe kleren van de keizer
dinsdag, 17 maart
Gerelateerde nieuwsberichten
Oud distributiepand V&D getransformeerd tot woongebouw
1 mei 2020
Rotterdam selecteert herontwikkelingsplan Delftseblok
12 februari 2024
Woongebouw Salix met heldere structuur en architecturale nuances
4 maart 2024
Heringerichte Grote Markt in Groningen officieel ingewijd
4 juni 2024
Awards
De Zwarte Hond
1 september 2024
Nieuwe bestemming voor voormalig V&D-pand Groningen
4 november 2019
Happel Cornelisse Verhoeven presenteert gerenoveerd stadhuis Groningen
2 december 2022
Een compact schoolgebouw met korte lijnen en clubhuizen
16 april 2024
Nominaties Gouden Piramide 2024 bekend
18 april 2024
Loer Architecten presenteert schuurwoning in buurtschap Schelfhorst
4 februari 2025
Boek belicht geschiedenis ontwikkeling Grote Markt Oostzijde
20 mei 2022
Forum Groningen: een gebouw dat (niet) gezien mag worden
4 december 2019
Bouw Huis voor de Amateurkunst Vrijdag in Groningen kan starten
1 juli 2024
Overdekte markthal in de luwte van de Groningse Grote Markt
2 november 2018
Groningen als 'voorbeeldige stad' in expositie door De Zwarte Hond
29 april 2024
Woonhuis Black Barns geïnspireerd op typologie van Drents boerenerf
9 december 2025
De Zwarte Hond ontwerpt flexibel IKC+ Katwijk
21 mei 2024
De Zwarte Hond ontwerpt ‘industriële’ leeromgeving voor Gilde Vakcollege
4 april 2025
De Zwarte Hond – genomineerd voor prijs Architect van het Jaar 2024
16 september 2024
Expositie 'Bold city, brave decisions' verhuisd naar Groningen
17 oktober 2024
Met ontwerp van IKC De Brug sluit De Zwarte Hond aan bij dorpskarakter
17 juni 2025
Architectenweb organiseert Avond met De Zwarte Hond
7 mei 2025
Provinciehuis in Groningen is toe aan grote renovatie
12 maart 2025
Meerstemmigheid staat centraal op Avond met De Zwarte Hond
26 mei 2025
Rijksmonumentaal tankstation Groningen getransformeerd tot Dudok aan het Diep
16 september 2025
Groningen bouwt nieuwe popzaal en renoveert De Oosterpoort
10 april 2025
Oud distributiepand V&D getransformeerd tot woongebouw
1 mei 2020
Rotterdam selecteert herontwikkelingsplan Delftseblok
12 februari 2024
Woongebouw Salix met heldere structuur en architecturale nuances
4 maart 2024
Heringerichte Grote Markt in Groningen officieel ingewijd
4 juni 2024
Awards
De Zwarte Hond
1 september 2024
Nieuwe bestemming voor voormalig V&D-pand Groningen
4 november 2019
Happel Cornelisse Verhoeven presenteert gerenoveerd stadhuis Groningen
2 december 2022
Een compact schoolgebouw met korte lijnen en clubhuizen
16 april 2024
Nominaties Gouden Piramide 2024 bekend
18 april 2024
Loer Architecten presenteert schuurwoning in buurtschap Schelfhorst
4 februari 2025
Boek belicht geschiedenis ontwikkeling Grote Markt Oostzijde
20 mei 2022
Forum Groningen: een gebouw dat (niet) gezien mag worden
4 december 2019
Bouw Huis voor de Amateurkunst Vrijdag in Groningen kan starten
1 juli 2024
Overdekte markthal in de luwte van de Groningse Grote Markt
2 november 2018
Groningen als 'voorbeeldige stad' in expositie door De Zwarte Hond
29 april 2024
Woonhuis Black Barns geïnspireerd op typologie van Drents boerenerf
9 december 2025
De Zwarte Hond ontwerpt flexibel IKC+ Katwijk
21 mei 2024
De Zwarte Hond ontwerpt ‘industriële’ leeromgeving voor Gilde Vakcollege
4 april 2025
De Zwarte Hond – genomineerd voor prijs Architect van het Jaar 2024
16 september 2024
Expositie 'Bold city, brave decisions' verhuisd naar Groningen
17 oktober 2024
Met ontwerp van IKC De Brug sluit De Zwarte Hond aan bij dorpskarakter
17 juni 2025
Architectenweb organiseert Avond met De Zwarte Hond
7 mei 2025
Provinciehuis in Groningen is toe aan grote renovatie
12 maart 2025
Meerstemmigheid staat centraal op Avond met De Zwarte Hond
26 mei 2025
Rijksmonumentaal tankstation Groningen getransformeerd tot Dudok aan het Diep
16 september 2025
Groningen bouwt nieuwe popzaal en renoveert De Oosterpoort
10 april 2025
Toon alles
Gerelateerde podcasts
Toren van Babel
Gesprek met Daan Zandbelt over hoogbouw als emotie
11 november 2024
Gerelateerde video's
De Zwarte Hond
Nominatie voor de prijs voor Architect van het Jaar 2024
Avond met De Zwarte Hond
Symposium
Andere nieuwsberichten
PSV presenteert plannen voor uitbreiding Philips Stadion
20 maart, 3:37
De Eindhovense club wil de capaciteit van zijn onderkomen opschroeven met maximaal 25.000 bezoekers. Om dit te bewerkstelligen, komt er een nieuwe schil rond het stadion waarin een derde ring is opgenomen.
Rijkswaterstaat staakt renovatie markante houten Krùsrak-brug in Sneek
20 maart, 11:32
Tijdens de renovatie werd duidelijk dat de constructieve veiligheid van de brug niet langer kan worden verzekerd, laat RWS weten. De uit 2008 stammende Krúsrak-brug over de rijksweg 7 is ontworpen door Onix en Archterbosch Architecten.
KAAN Architecten en De Zwarte Hond winnen tender voor Area 19 TU Eindhoven
20 maart, 10:35
De opdracht omvat het ontwerp van een nieuw onderzoeks- en onderwijsgebouw en de stedenbouwkundige ontwikkeling van een nieuw campusgebied.
Projecten gezocht voor vijfde Adriaan Dessingprijs
19 maart, 2:42
De tweejaarlijkse architectuurprijs vestigt de aandacht op bijzondere, gerealiseerde plannen in de Zuid-Hollandse gemeenten Westland en Midden-Delfland. Het kan gaan om nieuwbouw, restauratie of landschappelijke projecten.
Friesland brengt duizenden karakteristieke boerderijen in kaart
20 maart, 2:16
Door alle informatie over de voor het landschap kenmerkende gebouwen op één plek te brengen, moet het makkelijker worden om ze te behouden.
ING: bijna de helft van de huiseigenaren stelt verduurzaming uit
20 maart, 12:18
De meeste mensen vinden dat de overheid te weinig doet om dit te stimuleren.
Rekenkamer kraakt resultaten EU-innovatiefonds voor verduurzaming
20 maart, 9:25
Het Innovatiefonds van de Europese Unie levert veel minder resultaat op dan verwacht op het gebied van verduurzaming en innovatie.
Provincie schrapt beoogde locaties windturbines in Groene Hart
19 maart, 1:35
De provincie had twaalf plekken op het oog, maar dat leidde tot maatschappelijk en politiek verzet.
Staten Utrecht willen netcongestie versneld aanpakken
19 maart, 9:44
De fracties wezen op de noodzaak van het zo snel mogelijk realiseren van een hoogspanningsstation dat essentieel is voor het opsplitsen van het elektriciteitsnetwerk tussen de Flevopolder, Gelderland en Utrecht.
Rotterdam wil woningbouw versnellen met pilot ‘Ontwikkelaar aan Zet’
18 maart, 4:33
De gemeente Rotterdam start een pilot waarbij projectontwikkelaars een grotere rol krijgen bij de voorbereiding van woningbouwprojecten.
Ga naar het nieuws-archief
Ronnie Weessies
Redacteur
2
0
0
0
Voor een optimale gebruikservaring plaatst Architectenweb functionele cookies. Wat de verschillende cookies precies doen leggen we uit in een
overzicht
. Cookies van social media kun je optioneel
aanzetten
.
Akkoord
Instellingen
Annuleren
OK
Sluiten
Doorgaan
Inloggen
Maak een gratis persoonlijk account aan
Feedback
Feedback
Wij horen graag jouw feedback. Laat je reactie achter en eventueel jouw e-mail adres.
Reactie
Verstuur