Abonneer je nu op onze nieuwsbrieven!
Abonneren
Nee, bedankt
Ja, denk met me mee rond de
materialisering van mijn project
Copyright: De Twee Snoeken
Copyright: De Twee Snoeken
Copyright: De Twee Snoeken
Copyright: De Twee Snoeken
Copyright: De Twee Snoeken
Copyright: De Twee Snoeken
Copyright: De Twee Snoeken
Copyright: De Twee Snoeken
Copyright: De Twee Snoeken
Copyright: De Twee Snoeken
Copyright: De Twee Snoeken
Copyright: De Twee Snoeken
Copyright: De Twee Snoeken
Copyright: De Twee Snoeken
Copyright: De Twee Snoeken
Copyright: De Twee Snoeken
Copyright: De Twee Snoeken
Copyright: De Twee Snoeken
Copyright: De Twee Snoeken
Copyright: De Twee Snoeken
Copyright: De Twee Snoeken
Copyright: De Twee Snoeken
Copyright: De Twee Snoeken
Copyright: De Twee Snoeken
Een beschermende omgeving met een zekere delicaatheid
In Nijmegen is begin van dit jaar de nieuwbouw voor GGD Gelderland-Zuid opgeleverd. De Twee Snoeken verwierf de ontwerpopdracht na een aanbestedingsprocedure in 2019. Voor het bureau werd het een bijzonder project, waarbij de architecten voor een relatief bescheiden budget een slim gebouw en een hoog afwerkingsniveau wisten te realiseren. Meer nog: een gebouw dat zowel toegankelijkheid als bescherming uitstraalt voor de twijfelende en kwetsbare bezoeker. De Twee Snoeken gaat hier in op het concept en het ontwerp.
Een bezoek aan de GGD is voor veel mensen een precaire onderneming. Voor een puber met een soa, een misbruikslachtoffer of een eenzame oudere: het is een enorme stap om er hulp te zoeken. Toen we in 2019 werkten aan de aanbesteding van de nieuwbouw voor GGD Gelderland-Zuid in Nijmegen zagen we dat als de grootste uitdaging: het ontwerpen van een gebouw dat de drempel zo laag mogelijk maakt en waar de meest kwetsbare bezoeker toch naar binnen durft te gaan en zich veilig voelt. We stuitten toen op een prachtig citaat van de Brits-Zwitserse filosoof Alain de Botton.
‘Most of the time, we have to be strong, we must not show our fragility. We’ve known that since the schoolyard.
There is always a fragile bit of us, but we keep it very hidden.
Yet Venetian glass doesn’t apologise for its weakness. It admits its delicacy; it is confident enough to demand careful treatment’
Hierdoor geïnspireerd hebben we in de tenderfase een bewerking gemaakt van de Vaas van Rubin, de bekende illustratie waarin zowel een vaas als twee gezichten zijn te herkennen. In onze bewerking combineren we het Venetiaanse glas met gezichten van twee kwetsbare GGD-bezoekers. Dit concept vormde voor ons de basis waarop we het gebouw gingen ontwerpen.
Kwetsbare kern
Het gebouw zelf moest in onze ogen dan ook niet kloek en onverschrokken zijn, maar mocht een zekere fragiliteit uitstralen. Tegelijkertijd staat het in een harde omgeving, die met zijn veelvormigheid, schreeuwende contrasten en gebrek aan groen meer doet denken aan een industrieterrein dan aan een plek voor zorg en mededogen. We stelden daarom voor om het gebouw een solide plint te geven die als in elkaar gevouwen handen de kwetsbare kern beschermt.

We hebben die kwetsbare kern vormgegeven met gevelpatronen die gebaseerd zijn op de prachtige kunstwerken van Jan Schoonhoven, met daarop ranke bloemkozijnen in brons geanodiseerd aluminium. De noodzakelijke noodoverstorten zijn letterlijk verbloemd met ontluikende klaverbladen, als representatie van de rol die de GGD heeft om mensen tot bloei te laten komen. De solide plint vormt een gemetseld volume met relatief gesloten gevels, waarin zich de behandelkamers bevinden.
Domein, hof, cella
Het ontwerpconcept draait niet alleen om hoe het gebouw eruitziet. Meer nog gaat het over hoe de kwetsbare bezoekers het gebouw ervaren. Hoe zij zich voelen wanneer ze bijvoorbeeld op het dieptepunt van hun leven toch de moed vinden om bij de GGD te vertellen over bijvoorbeeld het huiselijk geweld waarmee ze al jaren te maken hebben. Dat begint bij het betreden van het gebouw. We hebben daarvoor gebruikgemaakt van de lessen van de Bossche School. Daarin wordt uitgelegd hoe het binnenkomen trapsgewijs kan worden geënsceneerd, van het harde buiten naar het beschermde binnen; de bezoeker betreedt eerst een ‘domein’, daarna een ‘hof’ en dan pas de zogenoemde ‘cella’, het gebouw zelf.

Op de GGD-locatie wordt het domein gevormd door het met bomen omzoomde perceel van de GGD met het parkeerterrein daarbij. We hebben vervolgens aan twee zijden in de solide plint een hof ontworpen. Vanuit die twee hoven gaan bezoekers het gebouw binnen. Daarvoor zijn twee gelijkwaardige entrees gerealiseerd; een vanuit de noordelijke parkeerplaats en een nabij het zuidelijk gelegen treinstation.

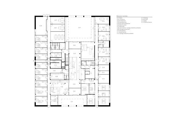
Vervolgens is het van belang dat bezoekers, zeker wanneer ze gespannen zijn, direct begrijpen waar ze moeten zijn. Het gebouw heeft meerdere balies, maar we hebben bewust één centrale balie ontworpen. Deze staat midden in de ontvangsthal, waar iedereen zich meldt, om doorverwezen te worden. De wachtgebieden zijn zodanig vormgegeven dat bezoekers kunnen kiezen of ze in de openheid willen zitten of juist meer privacy zoeken. Daarbij is om stigmatisering te voorkomen geen verschil gemaakt tussen de bezoekers van seksuele gezondheid, reisvaccinaties, Veilig Thuis of andere afdelingen. De vides zijn zodanig vormgegeven dat bezoekers niet van bovenaf op de rug worden gekeken.
Werk en lunch met zicht op groen
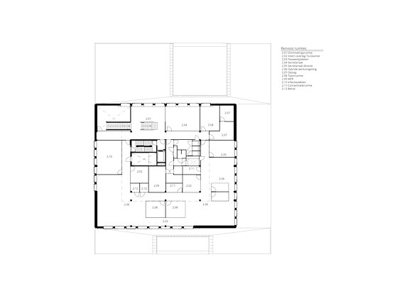
Het gebouw heeft een zeer evidente indeling, waarbij alle publieke ruimten op de begane grond liggen. De semipublieke vergadervoorzieningen liggen op de eerste verdieping en daarboven bevinden zich alle private werkruimten, verdeeld over de bovenste drie verdiepingen. Vergadervoorzieningen zijn te bereiken via een fraaie trapverbinding die al vanuit de publiekshal zichtbaar, maar niet bereikbaar is. Daarvoor moet toegang worden verschaft door een medewerker.

Naast alle vergadervoorzieningen bevindt ook het werk-lunchcafé zich op deze semipublieke eerste verdieping. Daar komen bezoekers en medewerkers samen en kunnen zij, behalve wat eten en drinken, met elkaar overleggen. Bij goed weer geeft een kleine loggia de mogelijkheid om buiten te lunchen. Vanaf deze eerste verdieping is er prachtig uitzicht op de kruinen van de bomen die we wisten te behouden op deze locatie. We realiseerden ons dat de beleving van het buitengroen vanuit het gebouw belangrijk was, omdat groen in het gebouw binnen het beperkte budget niet mogelijk was.
In het werk-lunchcafé start ook de GGD-medewerker de dag. Vanuit hier bereiken zij namelijk de trappenhal die de werkverdiepingen ontsluit. Die hal ligt aan de noordzijde, omdat we hier grote gevelopeningen konden maken zonder hinder door opwarming. Met uitnodigende trappen bereiken de medewerkers hun werkplek. De lift is juist een beetje verstopt, waardoor alle medewerkers van deze gezondheidsinstelling nu dagelijks de trappen gebruiken.

De verdiepingen hebben een heldere structuur; alle werkplekken aan de gevel, een kern met daarin voorzieningen en een rondgaande verkeersruimte daartussen. Op de werkverdiepingen liggen gezamenlijke voorzieningen, zoals pantry’s en lockers, dicht bij de trap. Hier, in dit dynamische gebied, vindt de communicatie plaats tussen medewerkers van diverse afdelingen. De werkplekken die het verst weg liggen van de trap zijn juist ingericht voor een rustige werkomgeving
Optimale verhoudingen
We wisten vanaf het begin dat het lastig werd om met het beperkte budget een hoogwaardig gebouw te realiseren. De gehele nieuwbouw is namelijk gerealiseerd voor slechts €2.550,- per m2. We hebben daarom direct een aantal strategieën bedacht om efficiënt te kunnen bouwen. Om te beginnen door het maken van een compacte kubusvorm met een optimale gevel-vloerverhouding. Vervolgens hebben we die kubus een optimale constructieve structuur gegeven met een betonnen kern en drie stabiliteitsschijven in de gevels. Om een dure en onderhoudsintensieve sprinklerinstallatie te voorkomen, zijn ondanks de grote ruimtelijkheid alle brandcompartimenten onder de 1.000 m2 gehouden.

Ook is het gelukt om de investerings- en onderhoudskosten van buitenzonwering te voorkomen door oriëntatiegericht te ontwerpen en zontoetreding verder te beperken met goed zonwerend glas in combinatie met een zeefdruk in het glas. Bouwfysisch adviseur DGMR berekende dat met een bedrukkingsgraad van 34% het gebouw comfortabel kon blijven zonder zonwering. Het patroon dat onze grafisch vormgevers in nauw overleg met de GGD-medewerkers hebben ontworpen, vormt nu een additionele laag op de gevelarchitectuur.
Plek voor natuur en kunst
Het gedeeltelijk in houtconstructie opgetrokken gebouw is niet alleen bedoeld als veilige haven voor de mens, maar ook voor de natuur. Met een groot sedumdak op de laagbouw en een fietsenstalling en nestkasten voor vleermuizen en zwaluwen opgenomen in de architectuur, is er ook plek voor lokale fauna. Daarnaast hebben we nagenoeg alle bomen op het terrein weten te behouden en heeft MTD Landschapsarchitecten twee prachtige patiotuinen ontworpen voor mens en dier.

Ten slotte zijn we enorm vereerd dat de GGD ons concept uit de aanbestedingsfase heeft omarmd en uiteindelijk zelfs heeft gevraagd dit te vertalen in een kunstwerk. We hebben met glaswerkplaats Van Tetterode uit Amsterdam in een bijzondere glassoort een kunstwerk gemaakt over het Venetiaanse glas. Een werk dat de medewerkers dagelijks herinnert aan de schoonheid die schuilt in kwetsbaarheid.

Gerelateerde nieuwsberichten

Andere nieuwsberichten

OMA gebruikt bestaand gebouw als canvas bij renovatie Edo-Tokyo Museum

Gisteren, 15:55

Winnaars verkiezing Beste Bossche Gebouw 2020–2025 bekend

Gisteren, 14:16

Appartementengebouwen door MIX architectuur vormen sluitstuk Noorderhaven Zutphen

Gisteren, 12:29

EUmies Award naar renovatie congrescentrum in Charleroi en tijdelijke ruimtes Sloveens theater

Gisteren, 10:54

Woningbouwzaken krijgen langer voorrang bij Raad van State

Gisteren, 16:49

Inspectie positief over verbetering sociale veiligheid TU Delft

Gisteren, 11:36

NVM vreest minder nieuwbouw door veranderende voorrang stroomnet

Gisteren, 09:23

Architecten voor restauratie en herbestemming Rivièrahal gekozen

16 april, 12:00

Bewoners aardbevingsgebied Groningen blijven kritisch op herstel

16 april, 10:34

ING: optoppen en splitsen van woningen steeds minder haalbaar

15 april, 1:22
KUBUS | Specialist in Archicad
SAPA
Reynaers Aluminium Nederland
Jansen
SAB-profiel bv
Aliplast Aluminium Systems
Kingspan Light & Air
ALUCOBOND®
Caparol
Tarkett BV
Kawneer
Grohe Nederland B.V.
Malaysian Timber Council
OCS | Office Cabling Systems
Swisspearl Nederland
Forster Nederland N.V.
VELUX Commercial Benelux B.V.
Sempergreen
Houthandel van Dam
Aluprof Nederland BV
QbiQ Wall Systems
Forbo Flooring
Schüco Nederland
Cedral
Sto Isoned bv
Triflex bv
Gorter Luiken BV
wienerberger
DUCO Ventilation & Sun Control
BEWI IsoBouw
ROCKWOOL B.V.
Mview+
Rockfon (ROCKWOOL B.V.)
Gira Nederland B.V.
Kingspan Geïsoleerde Panelen
GEZE Benelux  B.V.
Renson
Metaglas Groep
ABB | Busch-Jaeger
Jung | Hateha B.V.
Knauf B.V.
Saint-Gobain Glass Benelux
Faay Vianen B.V.
objectflor
Boon Edam Nederland B.V.
Hunter Douglas Architectural
VOLA Nederland BV
Forbo Eurocol Nederland B.V.
EQUITONE gevelpanelen
Holonite B.V.
Kronospan
Tata Steel Colorcoat®
Architectenweb
Over ons
Contact

© 2002 - 2026 Architectenweb BV / Voorwaarden / Privacy / Disclaimer / Sitemap
Annuleren
OK
Sluiten
Doorgaan
Inloggen
Maak een gratis persoonlijk account aan