Projecten
Producten
Bedrijven
Vacatures
Agenda
Awards
Podcasts
more_horiz
Videos
Magazine
Thema's
Favorieten
Profiel
Uitloggen
Abonneer je nu op onze nieuwsbrieven!
Abonneren
Nee, bedankt
Ja, denk met me mee rond de
materialisering van mijn project
Copyright: Kris Provoost
Copyright: Kris Provoost
Copyright: Kris Provoost
Copyright: Kris Provoost
Copyright: Kris Provoost
Copyright: Kris Provoost
Copyright: Kris Provoost
Copyright: Kris Provoost
Copyright: Kris Provoost
Copyright: Kris Provoost
Copyright: Kris Provoost
Copyright: Kris Provoost
Copyright: Kris Provoost
Copyright: Kris Provoost
Copyright: Kris Provoost
Copyright: Kris Provoost
Detail gevel, horizontaal
Copyright: Superimpose
Detail gevel, verticaal
Copyright: Superimpose
Gevel
Copyright: Superimpose
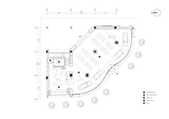
Begane grond
Copyright: Superimpose
Eerste verdieping
Copyright: Superimpose
Huawei opent flagship store in Beijing naar ontwerp van Superimpose
28 maart 2024, 15:12
Superimpose
heeft voor het Chinese technologiebedrijf Huawei een flagship store in het historische centrum van Beijing ontworpen. Het architectenbureau streefde naar een uitnodigende omgeving, zonder uitbundigheid, met eigentijdse interpretaties van elementen uit de historische Chinese architectuur.
De eerste flagship store van Huawei in Beijing bevindt zich op Wangfujing, dat al honderden jaren de belangrijkste winkelstraat van de stad is, gelegen nabij de historische Verboden Stad. Het Nederlands-Chinese architectenbureau Superimpose ontwierp voor het technologiebedrijf een winkel en showroom van twee verdiepingen, met een oppervlakte van ruim 1.200 m
2
. In het ontwerp verwerkte het bureau een eigentijdse interpretatie van architectonische elementen van bekende bezienswaardigheden zoals de Verboden Stad en de Grote Muur.
Ervaring
In de loop der jaren breidde Huawei zijn portfolio uit met een scala aan consumentenelektronica en slimme apparaten, in overeenstemming met de overkoepelende visie van de onderneming: ‘het bouwen van een volledig verbonden, intelligente wereld’. Superimpose heeft die visie ervaarbaar willen maken in de flagship store.
In de centrale productshowroom heeft het architectenbureau dit vertaald naar een ruimte die zich kenmerkt door “moderniteit, minimalisme en een scherpe esthetiek”, aldus Superimpose, “strategisch gericht op een optimale presentatie van producten voor een boeiende en meeslepende bezoekerservaring.”
Superimpose voegde daaraan het concept van een ‘stedelijke woonkamer’ toe: de flagship store is opgevat als een ontmoetingsplek uit verschillende ruimten, zoals het Urban Oasis Cafe. De winkel als geheel is georganiseerd als een reeks opeenvolgende ruimten; inspiratie daarvoor vormden de opeenvolging van pleinen, variatie in schaal en symmetrie, zoals die de oude Chinese architectuur kenmerken.
Koffiebar
De oorspronkelijke plattegrond bezat geen perfecte symmetrie. Om de symmetrie van oude Chinese bouwwerken én een rustige winkelindeling te verkrijgen, heeft Superimpose een dikke, stevige scheidingswand geïntroduceerd. Deze wand is bekleed met natuurstenen panelen en verdeelt de winkel in het (nu symmetrische) voornaamste verkoopgebied en het Urban Oasis Cafe. De voegen tussen de panelen van deze robuuste wand roepen associaties op met de Grote Muur.
Het Urban Oasis Cafe, voorzien van een koffiebar in travertijn, is een ruimte waar bezoekers elkaar kunnen ontmoeten en producten uitproberen. Ook kan de ruimte worden gebruikt voor evenementen en lezingen. Houten plafondpanelen, groenwanden en andere natuurlijke en warme materialen dragen bij aan een gastvrije sfeer. Vanuit het café voert een trap, met deels glazen treden, naar de tweede verdieping. Vanaf buitenaf is het grote, gebogen led-scherm in het Urban Oasis Cafe al te zien.
Een ingetogen gevel
Een transparante gevel over twee verdiepingen moet de voorbijgangers op straat verleiden om de winkel te betreden. De 8,8 meter hoge glazen panelen worden omlijst door gebogen gevelelementen in ultrahogesterktebeton (UHSB). De golvende lijnen van de betonnen gevelelementen verwijzen naar de dansende daklijnen van de oude gebouwen in de stad.
De UHSB-elementen volgen de contouren van de luifel van het winkelcentrum, terwijl het glas bij de ingang in ene uitnodigend gebaar naar achteren buigt. Het ontwerp, zo legt Superimpose uit, moet bezoekers verwelkomen zonder overdreven uitbundig of decoratief te zijn. De winkel is opgeleverd in januari 2024.
Trefwoorden
winkel
superimpose architecture
flagship store
showroom
beijing
superimpose
china
gevel
interieur
Best gelezen
1
PSV presenteert plannen voor uitbreiding Philips Stadion
vrijdag, 20 maart
2
Luxe appartementengebouw naast klooster Etten-Leur door Studio AAAN klaar
donderdag, 19 maart
3
Houten Stelthuis van Woonpioniers is aardbevings- en klimaatbestendig
woensdag, 18 maart
4
BureauVanEig verbetert uitstraling Haagse rijtjeswoningen bij verduurzaming
dinsdag, 17 maart
5
KAAN Architecten en De Zwarte Hond winnen tender voor Area 19 TU Eindhoven
vrijdag, 20 maart
Gerelateerde nieuwsberichten
Nieuw gemeenschapscomplex van Superimpose in Nanjing
15 november 2023
Multifunctionele ontwikkeling van Superimpose Architecture in China opgeleverd
1 december 2022
Superimpose Architecture ontwerpt vergadercentrum in de kelder
17 augustus 2022
Nieuwe Gezichten: Superimpose Architecture
17 februari 2022
Meer foto's en video van Eurostar-terminal op Amsterdam Centraal
4 juli 2025
Complex van Superimpose bedient gemeenschap in Dongguan
14 januari
Paperless Pavilion presenteert Nederlandse ontwerpers aan Chinees publiek
28 januari 2022
Aanpasbaar laboratorium voor onderzoek naar gezonde interieurs door Superimpose opgeleverd
25 juni 2021
Superimpose presenteert alternatief voor reguliere woningbouw in China
12 maart 2021
Co-working spaces activeren onderbezet winkelcentrum in Chengdu
12 maart 2020
Van Bergen Kolpa levert verticale boerderij in Beijing op
6 maart 2024
MORE Architecture biedt een alternatief voor Chinese verstedelijking
14 oktober 2024
Ingetogen luxe voor Junshan Cultural Center van Neri & Hu
2 april 2020
Pas de deux van torenhelften rond het atrium
20 november 2019
MAD Architects transformeert historisch hof tot kleuterschool
20 november 2018
Muziekgebouw met doorschijnende gevel voor Beijing
21 oktober 2016
Smog Free Project geopend in Beijing
3 oktober 2016
Rozenmuseum NEXT architects in Beijing geopend
12 juli 2016
UNStudio creëert wijk met golvende gevels
15 september 2015
VAA krijgt grote interieuropdracht in Beijing
16 juli 2015
Beijing vier keer zo groot in negen jaar tijd
26 juni 2015
Zaha Hadid presenteert passagiersteminal Beijing
6 februari 2015
Bouw 'natuurlijke' torens Beijing gestart
1 mei 2014
Bouw CCTV-kantoor officieel afgerond
16 mei 2012
Nieuw gemeenschapscomplex van Superimpose in Nanjing
15 november 2023
Multifunctionele ontwikkeling van Superimpose Architecture in China opgeleverd
1 december 2022
Superimpose Architecture ontwerpt vergadercentrum in de kelder
17 augustus 2022
Nieuwe Gezichten: Superimpose Architecture
17 februari 2022
Meer foto's en video van Eurostar-terminal op Amsterdam Centraal
4 juli 2025
Complex van Superimpose bedient gemeenschap in Dongguan
14 januari
Paperless Pavilion presenteert Nederlandse ontwerpers aan Chinees publiek
28 januari 2022
Aanpasbaar laboratorium voor onderzoek naar gezonde interieurs door Superimpose opgeleverd
25 juni 2021
Superimpose presenteert alternatief voor reguliere woningbouw in China
12 maart 2021
Co-working spaces activeren onderbezet winkelcentrum in Chengdu
12 maart 2020
Van Bergen Kolpa levert verticale boerderij in Beijing op
6 maart 2024
MORE Architecture biedt een alternatief voor Chinese verstedelijking
14 oktober 2024
Ingetogen luxe voor Junshan Cultural Center van Neri & Hu
2 april 2020
Pas de deux van torenhelften rond het atrium
20 november 2019
MAD Architects transformeert historisch hof tot kleuterschool
20 november 2018
Muziekgebouw met doorschijnende gevel voor Beijing
21 oktober 2016
Smog Free Project geopend in Beijing
3 oktober 2016
Rozenmuseum NEXT architects in Beijing geopend
12 juli 2016
UNStudio creëert wijk met golvende gevels
15 september 2015
VAA krijgt grote interieuropdracht in Beijing
16 juli 2015
Beijing vier keer zo groot in negen jaar tijd
26 juni 2015
Zaha Hadid presenteert passagiersteminal Beijing
6 februari 2015
Bouw 'natuurlijke' torens Beijing gestart
1 mei 2014
Bouw CCTV-kantoor officieel afgerond
16 mei 2012
Toon alles
Andere nieuwsberichten
Vernieuwde Welstandsnota Rotterdam staat in teken van Omgevingswet, duurzaamheid en gebruiksgemak
1 uur geleden
De Rotterdamse Welstandsnota uit 2012 is geactualiseerd. Daarbij waren nieuwe inzichten en regelgeving, alsmede het gebruiksgemak voor gemeente en aanvragers bepalend.
PSV presenteert plannen voor uitbreiding Philips Stadion
20 maart, 3:37
De Eindhovense club wil de capaciteit van zijn onderkomen opschroeven met maximaal 25.000 bezoekers. Om dit te bewerkstelligen, komt er een nieuwe schil rond het stadion waarin een derde ring is opgenomen.
Rijkswaterstaat staakt renovatie markante houten Krùsrak-brug in Sneek
20 maart, 11:32
Tijdens de renovatie werd duidelijk dat de constructieve veiligheid van de brug niet langer kan worden verzekerd, laat RWS weten. De uit 2008 stammende Krúsrak-brug over de rijksweg 7 is ontworpen door Onix en Archterbosch Architecten.
KAAN Architecten en De Zwarte Hond winnen tender voor Area 19 TU Eindhoven
20 maart, 10:35
De opdracht omvat het ontwerp van een nieuw onderzoeks- en onderwijsgebouw en de stedenbouwkundige ontwikkeling van een nieuw campusgebied.
Boekholt schrapt wet die voorrang statushouders stopt
15 minuten geleden
De minister werkt aan een alternatieve wet, die pas in werking treedt als er genoeg mogelijkheden zijn om statushouders aan een huis te helpen.
Friesland brengt duizenden karakteristieke boerderijen in kaart
20 maart, 2:16
Door alle informatie over de voor het landschap kenmerkende gebouwen op één plek te brengen, moet het makkelijker worden om ze te behouden.
ING: bijna de helft van de huiseigenaren stelt verduurzaming uit
20 maart, 12:18
De meeste mensen vinden dat de overheid te weinig doet om dit te stimuleren.
Rekenkamer kraakt resultaten EU-innovatiefonds voor verduurzaming
20 maart, 9:25
Het Innovatiefonds van de Europese Unie levert veel minder resultaat op dan verwacht op het gebied van verduurzaming en innovatie.
Provincie schrapt beoogde locaties windturbines in Groene Hart
19 maart, 1:35
De provincie had twaalf plekken op het oog, maar dat leidde tot maatschappelijk en politiek verzet.
Staten Utrecht willen netcongestie versneld aanpakken
19 maart, 9:44
De fracties wezen op de noodzaak van het zo snel mogelijk realiseren van een hoogspanningsstation dat essentieel is voor het opsplitsen van het elektriciteitsnetwerk tussen de Flevopolder, Gelderland en Utrecht.
Ga naar het nieuws-archief
Robert Muis
Redacteur
1
0
0
0
Voor een optimale gebruikservaring plaatst Architectenweb functionele cookies. Wat de verschillende cookies precies doen leggen we uit in een
overzicht
. Cookies van social media kun je optioneel
aanzetten
.
Akkoord
Instellingen
Annuleren
OK
Sluiten
Doorgaan
Inloggen
Maak een gratis persoonlijk account aan
Feedback
Feedback
Wij horen graag jouw feedback. Laat je reactie achter en eventueel jouw e-mail adres.
Reactie
Verstuur