Projecten
Producten
Bedrijven
Vacatures
Agenda
Awards
Podcasts
more_horiz
Videos
Magazine
Favorieten
Profiel
Uitloggen
Abonneer je nu op onze nieuwsbrieven!
Abonneren
Nee, bedankt
Ja, denk met me mee rond de
materialisering van mijn project
Copyright: Kris Provoost
Copyright: Kris Provoost
Copyright: Kris Provoost
Copyright: Kris Provoost
Copyright: CreatAR
Copyright: CreatAR
Copyright: CreatAR
Copyright: CreatAKris ProvoostR, Kris Provoost
Copyright: Kris Provoost
Copyright: Kris Provoost
Copyright: Kris Provoost
Copyright: CreatAR
Copyright: CreatAR
Copyright: CreatAR
Copyright: CreatAR
Copyright: CreatAR
Copyright: CreatAR
Copyright: Kris Provoost
Copyright: Kris Provoost
Copyright: Kris Provoost
Copyright: Kris Provoost
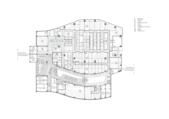
Derde verdieping
Copyright: Superimpose Architecure
Vierde verdieping
Copyright: Superimpose Architecure
Co-working spaces activeren onderbezet winkelcentrum in Chengdu
12 maart 2020, 12:15
In een laag bezet, maar centraal gelegen winkelcentrum in Chengdu heeft een grote Chinese ontwikkelaar van kantoorruimte co-working spaces gerealiseerd. Het Chinees-Nederlandse bureau
Superimpose Architecture
heeft een interieur ontworpen dat refereert aan verschillende kenmerken van de stad.
SOHO 3Q
is in China bekend geworden met het transformeren van centraal gelegen, maar slecht functionerende winkelcentra naar kantoorruimte. In Chengdu, de hoofdstad van de provincie Sichuan, heeft de ontwikkelaar in een dergelijk winkelcentrum 12.000 m
2
omgevormd tot co-working spaces.
De shopping mall ligt in een bijzonder populair winkeldistrict, maar stond al geruime tijd voor 90% leeg, vertelt Superimpose Architecture. In opdracht van SOHO 3Q heeft het architectenbureau een ontwerp voor kantoor- en vergaderruimten gemaakt, verspreid over de derde en de vierde verdieping van het winkelcentrum.
Zones
Het winkelcentrum kent twee verschillend vormgegeven gebieden. De atriumzone, waar een vide de verdiepingen visueel met elkaar verbindt, kenmerkt zich door een vloeiende vormgeving. Onder de kantoren ligt een meer orthogonaal vormgegeven gebied.
Superimpose heeft de twee zones opgevat als afzonderlijke werelden en thematiseerde ze volgens de twee verschillende kenmerken van Chengdu: het ‘Land of Abundance’ en de ‘Man Made City’. Respectievelijk geven de thema’s invulling aan de organisch en aan de geometrisch vormgegeven zone.
Landschap
De zone 'Land of Abundance' is ontworpen als een weelderige groene ruimte. In het interieur zijn natuurlijke materialen toegepast: houten meubels, stenen vloeren en wandafwerking van houten latten, bijvoorbeeld. Het kleurpalet omvat verschillende tinten groen, geel en grijs.
De centrale ruimte in deze zone is een groot en flexibel forumgebied. Voor de vormgeving heeft Superimpose zich specifiek laten inspireren door de Sichuan-vlakten, legt het bureau uit. Hier kenmerkt het ontwerp zich door vloeiende lijnen, afgeschuinde hoeken en 'zachte' meubels. Planten en bamboe vormen een groene achtergrond voor de werkplekken.
Stad
Het gebied ‘Man Made City’ wordt gedomineerd door de torenkernen, die als het ware dwars door deze zone steken. De aanwezige geometrische vormen heeft het architectenbureau doorgezet in zijn interieurontwerp.
Dit heeft Superimpose gecombineerd met de toepassing van industriële materialen zoals cementplaat, aluminium en beton. Het kleurenpalet bestaat uit tinten grijs, blauw en zalmroze.
In de gemeenschappelijke ruimten zijn verplaatsbare ‘pods’ geplaatst, om maximale flexibiliteit in gebruik te garanderen, aldus het architectenbureau. Superimpose werkte samen met de Belgische fotograaf Kris Provoost; foto’s uit zijn ‘Beautified China’ -serie zijn vertaald naar muurschilderingen over de volledige hoogte, ter versterking van het thema.
Winkels
Op de twee verdiepingen zijn zo’n 2.000 werkplekken gerealiseerd. Daardoor zijn ook de twee andere verdiepingen geactiveerd met winkels en heeft het gebouw momenteel weer een hoge bezettingsgraad, aldus Superimpose.
Trefwoorden
kantoor
interieur
china
chengdu
superimpose architecture
kris provoost
co-working
soho 3q
Best gelezen
1
Architect Cees Dam op 93-jarige leeftijd overleden
dinsdag, 14 april
2
Powerhouse Company wint aanbesteding voor verbouwing Vista College Maastricht
dinsdag, 14 april
3
Tien bureaus geselecteerd voor tweede ronde nieuwbouw De Meervaart
woensdag, 15 april
4
Voormalig hoofdkantoor Ferro in M4H verbouwd tot bedrijfsverzamelgebouw
woensdag, 15 april
5
QWA heeft A16 boven Rotterdam eigen identiteit gegeven
maandag, 13 april
Gerelateerde nieuwsberichten
Superimpose presenteert alternatief voor reguliere woningbouw in China
12 maart 2021
Ingetogen luxe voor Junshan Cultural Center van Neri & Hu
2 april 2020
Representatieve maar luchtige kantoorruimte voor Newday Apollolaan
17 maart 2020
Superimpose Architecture ontwerpt vergadercentrum in de kelder
17 augustus 2022
Huawei opent flagship store in Beijing naar ontwerp van Superimpose
28 maart 2024
Meer foto's en video van Eurostar-terminal op Amsterdam Centraal
4 juli 2025
Multifunctionele ontwikkeling van Superimpose Architecture in China opgeleverd
1 december 2022
Paperless Pavilion presenteert Nederlandse ontwerpers aan Chinees publiek
28 januari 2022
Aanpasbaar laboratorium voor onderzoek naar gezonde interieurs door Superimpose opgeleverd
25 juni 2021
Shanghai Xintiandi-atrium door AIM Architecture omgevormd tot binnenplein
28 april 2021
Kantoorinterieur met duurzame materialen en meubels op maat
25 februari 2020
Houten meubel schept kantoorruimte in oud fabrieksgebouw
18 februari 2020
Passend interieur voor cloud-dienst duurzaam vervoer
10 februari 2020
Kantoorgebouw Pharos als lichtend baken van duurzaamheid en welzijn
4 februari 2020
Eenduidig interieurontwerp voor verschillende gebruikers Naturalis
30 januari 2020
Open en tevens geborgen werkomgeving voor Triodos Bank
16 januari 2020
Nieuw kantoorgebouw ING gericht op openheid en verbinding
8 januari 2020
Foto's Chinese spektakelarchitectuur gebundeld in boek
14 november 2019
Superimpose presenteert alternatief voor reguliere woningbouw in China
12 maart 2021
Ingetogen luxe voor Junshan Cultural Center van Neri & Hu
2 april 2020
Representatieve maar luchtige kantoorruimte voor Newday Apollolaan
17 maart 2020
Superimpose Architecture ontwerpt vergadercentrum in de kelder
17 augustus 2022
Huawei opent flagship store in Beijing naar ontwerp van Superimpose
28 maart 2024
Meer foto's en video van Eurostar-terminal op Amsterdam Centraal
4 juli 2025
Multifunctionele ontwikkeling van Superimpose Architecture in China opgeleverd
1 december 2022
Paperless Pavilion presenteert Nederlandse ontwerpers aan Chinees publiek
28 januari 2022
Aanpasbaar laboratorium voor onderzoek naar gezonde interieurs door Superimpose opgeleverd
25 juni 2021
Shanghai Xintiandi-atrium door AIM Architecture omgevormd tot binnenplein
28 april 2021
Kantoorinterieur met duurzame materialen en meubels op maat
25 februari 2020
Houten meubel schept kantoorruimte in oud fabrieksgebouw
18 februari 2020
Passend interieur voor cloud-dienst duurzaam vervoer
10 februari 2020
Kantoorgebouw Pharos als lichtend baken van duurzaamheid en welzijn
4 februari 2020
Eenduidig interieurontwerp voor verschillende gebruikers Naturalis
30 januari 2020
Open en tevens geborgen werkomgeving voor Triodos Bank
16 januari 2020
Nieuw kantoorgebouw ING gericht op openheid en verbinding
8 januari 2020
Foto's Chinese spektakelarchitectuur gebundeld in boek
14 november 2019
Toon alles
Andere nieuwsberichten
OMA gebruikt bestaand gebouw als canvas bij renovatie Edo-Tokyo Museum
Gisteren, 15:55
Na een renovatie van bijna vier jaar is het Edo-Tokyo Museum in de Japanse hoofdstad Tokio heropend. OMA nam het uit 1993 stammende gebouw, dat is ontworpen door de Metabolist Kiyonori Kikutake, onder handen.
Winnaars verkiezing Beste Bossche Gebouw 2020–2025 bekend
Gisteren, 14:16
De vakjury en het publiek wezen elk in drie categorieën een winnaar aan. Daarnaast kende vakjury nog een wildcard toe aan een project.
Appartementengebouwen door MIX architectuur vormen sluitstuk Noorderhaven Zutphen
Gisteren, 12:29
In de nieuwe buurt Noorderhaven in Zutphen zijn drie appartementengebouwen naar ontwerp van MIX architectuur opgeleverd. De gebouwen met in totaal tachtig woningen vormen het sluitstuk van de gebiedsontwikkeling.
EUmies Award naar renovatie congrescentrum in Charleroi en tijdelijke ruimtes Sloveens theater
Gisteren, 10:54
Donderdag zijn de winnaars van de EUmies Award 2026 bekendgemaakt. De renovatie van het congrescentrum Charleroi Palais des Expositions won in de belangrijkste categorie architectuur.
Woningbouwzaken krijgen langer voorrang bij Raad van State
Gisteren, 16:49
Om het huizentekort tegen te gaan, blijft de Raad van State woningbouwzaken met voorrang behandelen.
Inspectie positief over verbetering sociale veiligheid TU Delft
Gisteren, 11:36
De TU Delft heeft aanzienlijke stappen gezet om de sociale veiligheid voor medewerkers te verbeteren.
NVM vreest minder nieuwbouw door veranderende voorrang stroomnet
Gisteren, 09:23
Bouwers kunnen, door onzekerheid over welke projecten straks nog maatschappelijke prioriteit krijgen in een bepaalde regio, besluiten om minder nieuwe huizen te bouwen.
Architecten voor restauratie en herbestemming Rivièrahal gekozen
16 april, 12:00
Voor de grootscheepse restauratie en herbestemming van de Rivièrahal in de Rotterdamse Diergaarde Blijdorp zijn Mecanoo en BiermanHenket geselecteerd.
Bewoners aardbevingsgebied Groningen blijven kritisch op herstel
16 april, 10:34
Door de complexiteit en onzekerheid van het jarenlange proces ervaren mensen stress en frustratie.
ING: optoppen en splitsen van woningen steeds minder haalbaar
15 april, 1:22
Het kabinet-Jetten gaat naar verwachting het doel van 15.000 extra woningen per jaar uit verbouwingen niet halen, stelt ING.
Ga naar het nieuws-archief
Robert Muis
Redacteur
1
0
0
0
Voor een optimale gebruikservaring plaatst Architectenweb functionele cookies. Wat de verschillende cookies precies doen leggen we uit in een
overzicht
. Cookies van social media kun je optioneel
aanzetten
.
Akkoord
Instellingen
Annuleren
OK
Sluiten
Doorgaan
Inloggen
Maak een gratis persoonlijk account aan
Feedback
Feedback
Wij horen graag jouw feedback. Laat je reactie achter en eventueel jouw e-mail adres.
Reactie
Verstuur