Projecten
Producten
Bedrijven
Vacatures
Agenda
Awards
Podcasts
more_horiz
Videos
Magazine
Thema's
Favorieten
Profiel
Uitloggen
Nieuw
Populair
Toon alles
Architectenweb magazine #14
Architectenweb magazine #13
Publieke gebouwen
Architectenweb magazine #12
Kantoren
Architectenweb magazine #11
Scholen
Architectenweb magazine #10
Zorg
Architectenweb magazine #14
Architectenweb magazine #10
Zorg
Architectenweb magazine #12
Kantoren
Architectenweb magazine #13
Publieke gebouwen
Architectenweb magazine #6
Transformatie en Renovatie
Om direct naar je favorieten te kunnen gaan is het nodig om eerst in te loggen.
Nieuw
Architectenweb Awards 2025
Architectenweb Awards 2024
Architectenweb Awards 2023
Architectenweb Awards 2022
Architectenweb Awards 2021
Architectenweb Awards 2020
Architectenweb Awards 2019
Architectenweb Awards 2018
Om direct naar je favorieten te kunnen gaan is het nodig om eerst in te loggen.
Nieuw
Populair
Favorieten
Toon alles
Vakwerk Architecten
Nominatie voor de prijs voor Architect van het Jaar 2025
Sanne van Manen
Nominatie voor de prijs voor Architect van het Jaar 2025
KSA
Nominatie voor de prijs voor Architect van het Jaar 2025
KRFT
Nominatie voor de prijs voor Architect van het Jaar 2025
Joost Ector
Nominatie voor de prijs voor Architect van het Jaar 2025
Prijsuitreiking Architectenweb Awards 2024
Impressie van een feestelijke avond
Martens, Willems & Humblé Architecten
Nominatie voor de prijs voor Architect van het Jaar 2024
Uitreiking van Architectenweb Awards 2020
Impressie van de prijsuitreiking via Zoom
De Zwarte Hond
Nominatie voor de prijs voor Architect van het Jaar 2024
Avond met De Zwarte Hond
Symposium
Om direct naar je favorieten te kunnen gaan is het nodig om eerst in te loggen.
Nieuw
Populair
Categorieën
Favorieten
Toon alles
Brandpreventie Academy BV
Cay Circulaire Keukens
Circulaire keukens en pantry's
Studio Kirsten Reith
Interieurontwerp
Studio175
Interieuradvies in regio Utrecht
Orange Automatic Doors
Indoorwrap
De specialist in Keukenwrappen
Brandpreventie Academy BV
Interior & Co
Studio175
Interieuradvies in regio Utrecht
Cay Circulaire Keukens
Circulaire keukens en pantry's
Studio Kirsten Reith
Interieurontwerp
Indoorwrap
De specialist in Keukenwrappen
Architecten
Architectuur
Mobiliteit en infrastructuur
Stedenbouw en landschapsarchitectuur
Leveranciers
Gevels
Daken
Ramen en deuren
Trappen, liften en balustrades
Binnenwanden
Vloeren
Plafonds
Verlichting
Sanitair
Projectinrichting
Installaties
Constructies
Buitenruimte
Software
Adviseurs
Bestekschrijvers
Bouwmanagement
Installatie adviseurs E
Bouwfysica
Calculators
Installatie adviseurs G/W
Bouwkundig tekenwerk
Constructeurs
Lichtadviseurs
Adviseur beveiliging
Juristen
Intermediairs, Payrolling
Aannemers
Overig
Presentatie
Instellingen / onderwijs
Overig
Om direct naar je favorieten te kunnen gaan is het nodig om eerst in te loggen.
Nieuw
Populair
Favorieten
Toon alles
Gesprek met Stephan Sliepenbeek over hoogbouw in Amstel III
Gesprek met Ellen van Bueren over gebiedsontwikkeling en hoogbouw
Gesprek met Ma Yansong over ontwerpen die emotie oproepen
Gesprek met Paul de Ruiter over innovatieve en duurzame hoogbouw
Gesprek met Pi de Bruijn over zijn ontwerpen voor de Tweede Kamer toen en nu
Gesprek met Ellen van Bueren over gebiedsontwikkeling en hoogbouw
Gesprek met Oresti Sarafopoulos over het ontwerpen van een kantoorgebouw met bijna geen installaties
Gesprek met Stijn Steenbakkers over verdichting en hoogbouw in Eindhoven
Gesprek met Pi de Bruijn over zijn ontwerpen voor de Tweede Kamer toen en nu
Gesprek met Paul de Ruiter over innovatieve en duurzame hoogbouw
Om direct naar je favorieten te kunnen gaan is het nodig om eerst in te loggen.
Nieuw
Populair
Categorieën
Favorieten
Toon alles
Øbro-Hallen
Celsius
Duurzaam woonproject met veertien Gorter-dakluiken
Dakluik met dubbel deksel voor Bakker Goedhart
Gorter voorziet Terrazza van veilige daktoegang
Boekweitkamp, Den Haag
Exclusieve wooneenheden
Kantoorinterieur: van Rest tot Ruimte
De Grote Zwaan, Nijmegen
Renovatieproject Ockenburghstraat
Architectuur
Woningbouw
Zorg
Hotels
Restaurants en café’s
Winkels
Sportgebouwen
Culturele gebouwen
Overheidsgebouwen
Scholen
Kantoren
Bedrijfsgebouwen
Paviljoens en kunst
Overig
Mobiliteit en infrastructuur
Trein- en metrostations
Luchthavens
Busstations
Parkeergarages
Fietsparkeren
Wegen
Bruggen
Water
Energie
Tankstations en laadstations
Waterzuivering en afvalverwerking
Overig
Stedenbouw en landschapsarchitectuur
Regionale visies
Gebiedsvisies
Plannen stedelijk weefsel
Amusementsparken en dierentuinen
Lichtontwerpen
Openbare ruimte
Pleinen
Parken
Tuinen
Speelplaatsen
Uitkijktorens
Overige (bijv. begraafplaatsen)
Om direct naar je favorieten te kunnen gaan is het nodig om eerst in te loggen.
Nieuw
Populair
Categorieën
Favorieten
Toon alles
Een nieuwe generatie wandbekleding voor welzijn
Uitbreiding van Vescom Purefin
objectflor rubbervloeren nu Cradle to Cradle gecertificeerd
SaarFloor zijn bekroond met Cradle to Cradle certificaten
Collaro badkamercollectie
Karakter ontmoet stijlvol design
Core
Maximale geluidsisolatie en absorptie
Nieuwe rookeisen: wat is de impact voor architecten?
Ontdek de mogelijkheden voor jouw project
Akoestisch kussen.
Ervaar de ultime natuurlijke oplossing voor akoestiek problemen.
StoTherm Wood: cementvrij gevelsysteem met houtvezelisolatie
Biobased gevelisolatie met natuurlijke prestaties
Lumiglaze – Het vlakglas van VELUX Commercial
Een nieuw tijdperk in daglichtontwerp – minimalistisch, functioneel en klaar voor de toekomst.
Veelzijdig straatmeubilair
Van openbare ruimte naar (be)leefomgeving
Knauf MaxSpace
Minder wand, méér ruimte. Het ideale profiel voor meer winst per m²
Gevels
Gevelbekleding
Vliesgevels
Zonwering buiten
Isolatie
Gevelconstructies
Signing
Overig
Daken
Dakafwerkingen
Dakisolatie
Dakconstructies
Dakranden, dakgoten en HWA's
Dakramen
Lichtkoepels
Lichtstraten
Schoorstenen
Overig
Dakluiken
Ramen en deuren
Raam- en deursystemen / kozijnen
Vliesgevels
Hang- en sluitwerk
Beveiliging en luiken
Dorpels en vensterbanken
Lateien
Roosters
Glas
Dakramen
Dakkoepels
Lichtstraten
Zonwering buiten
Zonwering binnen
Buitendeuren
Binnendeuren
Postvakken en brievenbussen
Overig
Dakluiken
Trappen, liften en balustrades
Trappen
Roltrappen
Liften
Balustrades en hekwerken
Galerijen
Binnenwanden
Binnenwanden
Wandafwerking
Vloeren
Constructieve vloeren
Verhoogde vloeren
Vloerafwerkingen
Overig
Plafonds
Tegels
Lineair
Grill
Open en roosters
Naadloos
Eilanden en baffles
Plafondafwerkingen
Ophangsystemen
Overig
Klimaatplafonds
Verlichting
Binnenverlichting
Buitenverlichting
Sanitair
Kranen en douchesets
Wastafels
Douchewanden en douchebakken
Baden
Waterclosets
Accessoires
Overig
Projectinrichting
Stoelen
Banken
Tafels
Kasten
Balies
Vrijstaande wanden
Keukens
Accessoires
Overig
Cabines
Interieurbeplanting
Stoffering
Installaties
Verwarming, koeling en ventilatie
Elektrotechnische installaties
Schakelmateriaal
Domotica
Deurcommunicatie
Beveiliging
Liften
Onderhoudsinstallaties
Overig
Brandbeveiliging
Constructies
Draagconstructies
Funderingen en kelders
Overig
Brandbeveiliging
Buitenruimte
Bestratingen en verhardingen
Afwateringen
Terreinafscheidingen en geluidsschermen
Buitenmeubilair
Fietsparkeren
Terrassen
Terrasoverkappingen
Bruggen
Accessoires
Overig
Beplanting
Sport- en speeltoestellen
Software
Tekenen 2D
Modelleren 3D / BIM
Visualisatie / rendering
Parametrisch ontwerpen
Bouwfysica
Draagconstructie
Overig
Virtual Reality
Cloudoplossingen
Om direct naar je favorieten te kunnen gaan is het nodig om eerst in te loggen.
Nieuw
Populair
Favorieten
Toon alles
Prefab beurs - 7 t/m 9 oktober 2025
Brabanthallen 's-Hertogenbosch
Boekpresentatie en panelgesprek met Floor Milikowsky
Prins Hendrikkade 600, 1011 VX Amsterdam
Architects Table ’25: Lunch & Inspiratie in HAUT Amsterdam
ATAG LIVE – HAUT gebouw, Spaklerweg 10F, 1096 BA Amsterdam (tegenover metrostation Spaklerweg)
Inspiratiedag @ Sempergreen – Gevelgroen
Defensieweg 1, 3984 LR Odijk
Architectenweb symposium: klein maar fijn wonen?
Pakhuis de Zwijger
Ontdek het seminarieprogramma van Architect@Work Amsterdam
De Kromhouthal, Gedempt Hamerkanaal 231, Amsterdam
Architects Table ’25: Lunch & Inspiratie in HAUT Amsterdam
ATAG LIVE – HAUT gebouw, Spaklerweg 10F, 1096 BA Amsterdam (tegenover metrostation Spaklerweg)
Boekpresentatie en panelgesprek met Floor Milikowsky
Prins Hendrikkade 600, 1011 VX Amsterdam
InterSolution 2026, dé netwerk- en vakbeurs voor zonne-energie
Flanders Expo (Hal 8) Maaltekouter 1 B - 9051 Gent / België
LIAG over duurzaamheid centraal in project
Online
Om direct naar je favorieten te kunnen gaan is het nodig om eerst in te loggen.
Nieuw
Toon alles
Design
Duurzaamheid
Gevel
Infrastructuur
Interieur
Kantoren
Leisure
Openbare ruimte
Publieke gebouwen
Scholen
Transformatie en Renovatie
Woningbouw
Zorg
Om direct naar je favorieten te kunnen gaan is het nodig om eerst in te loggen.
Nieuw
Populair
Toon alles
Junior PR & Communicatie medewerker
stagiair bouwkunde Amsterdam
Medior architect
Architect Sales Advisor regio Nederland
Architectuur stagiairs 2025
Junior Architect (NL/EN)
Architect
Junior Architect (NL/EN)
Studio Nauta zoekt projectleider
Junior Ontwerper
Junior Architect gezocht!
De Academie van Bouwkunst Amsterdam zoekt twee onderzoekers voor lectoraat
Om direct naar je favorieten te kunnen gaan is het nodig om eerst in te loggen.
Entree
Copyright: FELD
Entree overzicht
Copyright: FELD
Entree doorkijk
Copyright: FELD
Doorgang toilet
Copyright: FELD
Entree met balie
Copyright: FELD
Kantoor
Copyright: FELD
Keuken en bar
Copyright: FELD
Keuken met buffet
Copyright: FELD
Keuken overzicht
Copyright: FELD
Lijnen in de tapijttegels
Copyright: FELD
Meeting-ruimten met draadglas
Copyright: FELD
Meeting-ruimte
Copyright: FELD
Hergebruikte tapijttegels
Copyright: FELD
Tapijttegels, oude tegen de wand en nieuwe op de vloer
Copyright: FELD
Wastafel in toilet
Copyright: FELD
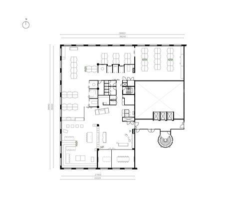
Plattegrond
Copyright: FELD
Passend interieur voor cloud-dienst duurzaam vervoer
10 februari 2020, 14:06
Vanwege de groei die het bedrijf ViriCiti doormaakt, heeft het zijn ruimte in het Vida-gebouw aan de Amsterdamse Kabelweg uitgebreid van 600 naar 1.000 m
2
. Bij het ontwerp voor de uitbreiding en grootschalige renovatie heeft ontwerpbureau
FELD
zich laten inspireren door identiteit en werkgebied van de opdrachtgever.
ViriCiti is een Nederlandse ‘online-dienst’ voor het zo efficiënt mogelijk laten rijden van elektrische bussen en vrachtwagens. “Een innovatief, jong bedrijf met lef, dat staat voor een duurzame toekomst”, aldus FELD.
Die waarden heeft het bureau, naast het functionele programma van eisen, willen meenemen in zijn ontwerp. Verder heeft het Amsterdamse architectenbureau bij de ViriCiti-medewerkers informatie verzameld over wat ze belangrijk zouden vinden aan het ontwerp van hun nieuw kantoor.
Scheiding
In de nieuwe indeling heeft FELD rekening gehouden met lichtinval en heeft het een logische scheiding tussen meer publieke en ‘private’ ruimten. Het publieke deel kreeg een open plafond met akoestisch spuitwerk, warm licht en een vloer van pvc.
Het kantoorgedeelte, met ruim zestig werkplekken, is voorzien van een fris wit, verlaagd plafond, functioneel werklicht en comfortabele tapijttegels, legt het architectenbureau uit. Zowel de pvc- als de tapijttegelvloer houdt de computervloer toegankelijk.
Indentiteit
Het ontwerpbureau heeft de identiteit van de opdrachtgever als belangrijke leidraad genomen bij de (duurzame) materiaalkeuzes voor de interieurbouw. Zo zijn de op maat gemaakte kasten en plantenbakken vervaardigd uit bamboe. De tapijttegels van het oude kantoor zijn hergebruikt in de vorm van akoestische wandbekleding. De verdieping is volledig voorzien van led-verlichting.
Door toepassing van damwandplaten heeft FELD een karakteristieke uitstraling gegeven aan de balie en de ruimte scheidende schuifpanelen. De schuifpanelen kunnen de kantoorruimte afsluiten van het publieke deel. Het in het tapijt ingelegde lijnenspel herinnert aan de lijnen op kaarten van het openbaar vervoer. Het kantoor heeft zelfs een eigen bushokje.
Trefwoorden
kantoor
amsterdam
feld
hergebruik
interieur
duurzaamheid
Locatie
Best gelezen
1
Rapport: rijke Amsterdammers leven steeds vaker apart van rest
dinsdag, 30 september
2
Rijk schrijft aanbesteding uit voor nieuwe marinierskazerne
woensdag, 1 oktober
3
Architectenweb symposium: klein maar fijn wonen?
donderdag, 2 oktober
4
Leiden wil verhoogd busstation naast treinperrons centraal station
dinsdag, 30 september
5
Plan Spot belooft Lelystad bruisend centrumgebied
vrijdag, 3 oktober
Gerelateerde nieuwsberichten
10 kantoorinterieurs met opvallende akoestiekoplossingen
20 juli 2022
FELD ontwerpt kleur- en materiaalrijk interieur voor nieuw hoofdkantoor
5 maart 2024
Minimalistisch notariaat in groene omgeving
6 april 2020
Representatieve maar luchtige kantoorruimte voor Newday Apollolaan
17 maart 2020
FELD voorziet karakteristieke ruimte van functionele cocon
31 mei 2018
Van geluidsstudio naar gedeeld kantoor
25 augustus 2016
Kantoorgebouw Pharos als lichtend baken van duurzaamheid en welzijn
4 februari 2020
Eenduidig interieurontwerp voor verschillende gebruikers Naturalis
30 januari 2020
Open en tevens geborgen werkomgeving voor Triodos Bank
16 januari 2020
Fokkema & Partners ontwerpt een ‘no office’-kantoor voor EDGE
14 augustus 2019
Interieur door Hollandse Nieuwe biedt ontvangst op maat
17 juli 2019
Hergebruik en maatwerkmeubels voor financiële startup
17 juni 2019
Co-working spaces activeren onderbezet winkelcentrum in Chengdu
12 maart 2020
Kantoorinterieur met heldere kleuren en klare lijnen
31 maart 2020
Frisse leefruimte op zolder in okergeel en gebogen lijnen
14 mei 2020
10 kantoorinterieurs met opvallende akoestiekoplossingen
20 juli 2022
FELD ontwerpt kleur- en materiaalrijk interieur voor nieuw hoofdkantoor
5 maart 2024
Minimalistisch notariaat in groene omgeving
6 april 2020
Representatieve maar luchtige kantoorruimte voor Newday Apollolaan
17 maart 2020
FELD voorziet karakteristieke ruimte van functionele cocon
31 mei 2018
Van geluidsstudio naar gedeeld kantoor
25 augustus 2016
Kantoorgebouw Pharos als lichtend baken van duurzaamheid en welzijn
4 februari 2020
Eenduidig interieurontwerp voor verschillende gebruikers Naturalis
30 januari 2020
Open en tevens geborgen werkomgeving voor Triodos Bank
16 januari 2020
Fokkema & Partners ontwerpt een ‘no office’-kantoor voor EDGE
14 augustus 2019
Interieur door Hollandse Nieuwe biedt ontvangst op maat
17 juli 2019
Hergebruik en maatwerkmeubels voor financiële startup
17 juni 2019
Co-working spaces activeren onderbezet winkelcentrum in Chengdu
12 maart 2020
Kantoorinterieur met heldere kleuren en klare lijnen
31 maart 2020
Frisse leefruimte op zolder in okergeel en gebogen lijnen
14 mei 2020
Toon alles
Andere nieuwsberichten
Realisatieovereenkomst voor hoogbouwcomplex De Sax op Wilhelminapier getekend
Gisteren, 16:16
VOF PhilHavana en BAM Bouw en Techniek hebben een realisatieovereenkomst getekend voor hoogebouwcomplex De Sax op de Wilhelminapier in Rotterdam.Het door MVRDV ontworpen woningbouwproject bestaat uit twee torens die worden verbonden door een 'balk'.
Online tool CarbonSpace berekent materiaalgebonden CO2-uitstoot vanaf eerste schets
Gisteren, 15:09
MVRDV heeft een openbare online tool gelanceerd die de materiaalgebonden CO2-uitstoot van bouwprojecten vanaf de eerste schets berekent. CarbonSpace heeft als doel om architecten inzicht te geven in de impact van hun projecten op het klimaat.
Stationsomgeving Bunnik transformeert naar toekomstbestendig woon- en werkgebied
Gisteren, 13:08
Het masterplan door SVP Architectuur en Stedenbouw, OKRA landschapsarchitecten en CROSS Architecture krijgt groen licht van gemeente.
Winnaars Groninger Architectuurprijs 2025 bekendgemaakt
Gisteren, 11:17
Zowel de vak- als publieksjury van de Groninger Architectuurprijs 2025 wees twee gedeelde winnaars aan, waarbij Dudok aan het Diep door de beide jury’s als winnaar werd gekozen.
Jongeren debatteren in het Nieuwe Instituut met Kamerleden over wonen
Gisteren, 14:26
Tot de thema’s die worden besproken, behoren betaalbaarheid, het creëren van meer woningen en de betrokkenheid van jongeren bij deze plannen.
GL-PvdA wil komende tien jaar 36 miljard uitgeven aan woningbouw
Gisteren, 10:10
Het grootste deel van het geld, 33 miljard euro, moet gaan naar publieke investeringen in de woningbouw.
Kamer wil dat Keijzer afziet van versoepelingen huurwet
3 oktober, 12:11
Sinds de huurwet - tegen de zin van Keijzer - van kracht werd, waarschuwen verhuurders dat daardoor het aanbod aan betaalbare huurwoningen afneemt.
Steden vrezen voor woningbouw door nieuwe regels netcongestie
2 oktober, 4:25
Amsterdam, Den Haag, Rotterdam en Utrecht vrezen dat de bouw van nieuwe woningen stil komt te liggen door netcongestie.
Dienst Toeslagen: plan voor wonen op vakantieparken onuitvoerbaar
2 oktober, 1:06
Het kabinetsplan om permanent wonen in vakantiehuisjes mogelijk te maken, is volgens de Dienst Toeslagen onuitvoerbaar.
Zuid-Holland wil in ‘oogstjaar’ 2026 plannen uitvoeren
1 oktober, 3:16
De provincie investeert onder meer in infrastructuur, woningbouw, natuur en versterking van kleine kernen.
Ga naar het nieuws-archief
Robert Muis
Redacteur
0
0
0
0
Voor een optimale gebruikservaring plaatst Architectenweb functionele cookies. Wat de verschillende cookies precies doen leggen we uit in een
overzicht
. Cookies van social media kun je optioneel
aanzetten
.
Akkoord
Instellingen
Annuleren
OK
Sluiten
Doorgaan
Inloggen
Maak een gratis persoonlijk account aan
Feedback
Feedback
Wij horen graag jouw feedback. Laat je reactie achter en eventueel jouw e-mail adres.
Reactie
Verstuur