Projecten
Producten
Bedrijven
Vacatures
Agenda
Awards
Podcasts
more_horiz
Videos
Magazine
Thema's
Favorieten
Profiel
Uitloggen
Abonneer je nu op onze nieuwsbrieven!
Abonneren
Nee, bedankt
Ja, denk met me mee rond de
materialisering van mijn project
Copyright: Roos Aldershoff
Copyright: Roos Aldershoff
Copyright: Roos Aldershoff
Copyright: Roos Aldershoff
Copyright: Roos Aldershoff
Copyright: Roos Aldershoff
Copyright: Roos Aldershoff
Copyright: Roos Aldershoff
Copyright: Roos Aldershoff
Copyright: Roos Aldershoff
Copyright: Roos Aldershoff
Copyright: Roos Aldershoff
Copyright: Roos Aldershoff
Copyright: Roos Aldershoff
Copyright: Roos Aldershoff
Copyright: Marlies Rohmer
Copyright: Marlies Rohmer
Copyright: Marlies Rohmer Architecture & Urbanism
Copyright: Marlies Rohmer Architecture & Urbanism
Copyright: Marlies Rohmer Architecture & Urbanism
Copyright: Marlies Rohmer Architecture & Urbanism
Copyright: Marlies Rohmer Architecture & Urbanism
Copyright: Marlies Rohmer Architecture & Urbanism
Copyright: Marlies Rohmer Architecture & Urbanism
Vossius Gymnasium verbouwd door Marlies Rohmer met passend antwoord
2 maart 2021, 14:10
Het Vossius Gymnasium in Amsterdam-Zuid heeft een verbouwing ondergaan naar ontwerp van
Marlies Rohmer Architecture & Urbanism
. Onder de binnenplaats zijn twee sportzalen van zeven meter hoog gebouwd. De toegang tot de zalen is opgenomen in een nieuwe multifunctionele aanbouw, waarvan de architectuur een antwoord is op het bestaande gebouw.
Het schoolgebouw van het Vossius Gymnasium is in 1926 ontworpen door Nicolaas Lansdorp in een ‘verstrakte’ versie van de Amsterdamse School. Het voor zijn tijd bijzondere gebouw kenmerkte zich door ruime hallen, trappenhuizen, twee gymnastieklokalen met douches en een bijzondere aula; het is nu een rijksmonument.
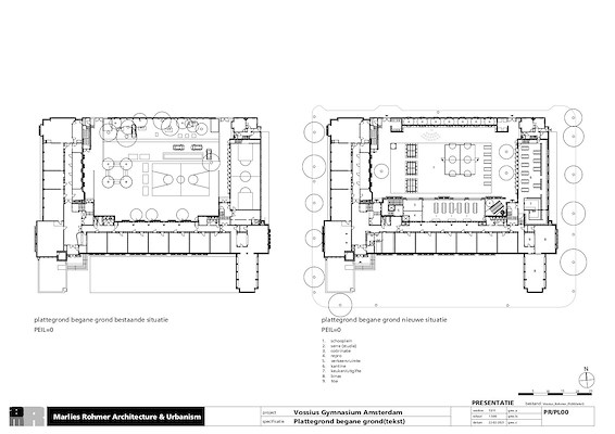
Ondergronds
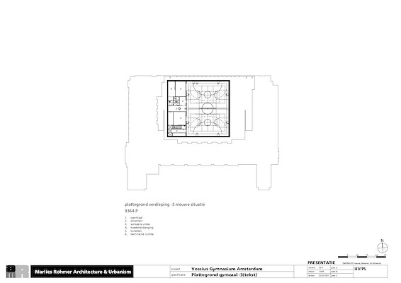
Naar ontwerp van Marlies Rohmer Architecture & Urbanism heeft het gebouw een verbouwing ondergaan, waarbij het twee wedstrijdsportzalen en een uitbreiding aan de binnenplaats heeft gekregen. De sportzalen van zeven meter hoog zijn negen meter verdiept onder de binnenplaats gerealiseerd.
De ondergrondse zalen ontvangen daglicht via drie daklichten, die bovengronds zijn omzoomd met banken. De toegang tot de sportzalen met lift is opgenomen in een aanbouw, die tevens studieruimte en aanverwante ruimten herbergt, legt het architectenbureau uit.
Deze aanbouw is symmetrisch ontworpen en voorzien van geïntegreerde plantenbakken. Het volume is geplaatst tussen de twee achteringangen van het hoofdgebouw en opent het – aan de pleinzijde voorheen vrij gesloten – gebouw met grote ramen naar de binnenplaats.
Ornamenten
De architectuur van de aanbouw, zo legt Marlies Rohmer uit, vormt een eigentijds antwoord op de Amsterdamse School-architectuur: robuust, geornamenteerd metselwerk met een spel van symmetrie en asymmetrie. Voor de uitbreiding is een gemêleerd grijzige baksteen gekozen, waarvan de kleurnuances aansluiten bij het grijs van de bestaande dakvlakken.
In het metselwerk zijn keramische gevelstenen met afbeeldingen van een vosje en luchtroosters als ornamenten opgenomen. De keramische gevelstenen zijn beschilderd door leerlingen van de school, onder begeleiding van kunstenaar Bien van Heek en Marlies Rohmer. De opstanden van de drie daklichten van de ondergrondse sportruimte zijn in hetzelfde metselwerk uitgevoerd.
Herinrichting
Aan de straatzijde blijft het monumentale hek behouden en is tevens een rij nieuwe bomen in een lange bak van metselwerk geplaatst. De bak heeft twee verhoogde uiteinden, die exact aansluiten bij de verhoogde koppen van de bestaande pleinmuur. Achter deze verhogingen worden de containers uit het zicht gestald.
De fietsen die voorheen alle op het plein stonden, worden geparkeerd in de kelder. Die is bereikbaar via een bestaande en een nieuwe toegang, opgenomen in de aanbouw. Het plein is opnieuw ingericht, waarbij de bestrating de positie van de onderliggende kelder verhult. In een dikke zandlaag op het kelderdek zijn bomen geplaatst, om een groene plek te creëren.
De twee voormalige, gestapelde gymzalen hebben een nieuwe bestemming gekregen. De onderste – die aan het plein al een prachtige reeks ramen had – kreeg de functie van kantine; de bovengelegen zaal is herbestemd tot meerdere onderwijsruimten. Met de nieuwe kantine, de aanbouw met studieruimte en de nieuwe entrees vormt het plein nu het hart dat het schoolgebouw voorheen eigenlijk niet kende.
Robuust
Binnen voert hout de boventoon. Het interieur is voorzien van een aantal objecten en wanden in massief verduurzaamd hout, waaronder de lange wand in de kantine met kluisjes aan de achterzijde, een nieuwe conciërgeruimte en een extra trap om de zolder te ontsluiten.
Dit materiaalgebruik sluit, net als bij de buitenzijde, aan op de robuuste materialisatie van het bestaande gebouw. “Duurzaamheid ontstaat niet door spaarzaamheid maar juist door zwaarte en overdaad”, zegt Rohmer.
Trefwoorden
marlies rohmer architecture & urbanism
transformatie
marlies rohmer
uitbreiding
amsterdam
metselwerk
schoolgebouw
sportzaal
rijksmonument
Locatie
Best gelezen
1
Kantoorcomplex door Goof Spruit bij station Utrecht krijgt tweede leven als De Nieuwe Tuin
woensdag, 11 maart
2
Woongebouw door van Bergen Kolpa vormt nieuwe markering langs bocht Rotte
dinsdag, 10 maart
3
Gerenoveerd Valkhof Museum heropent deuren op 6 juni
dinsdag, 10 maart
4
Alkmaar selecteert VenhoevenCS en Wind voor nieuwbouw Hoornse Vaart
maandag, 9 maart
5
Architectenweb symposium: ontwerpen van autovrije buurten
donderdag, 12 maart
Gerelateerde nieuwsberichten
Video: Maggie’s Centre Groningen
19 oktober 2018
Kop van Lombok officieel open
22 oktober 2014
Uitgebreide wederopbouwschool in Loosdrecht biedt ruimte aan IKC Wereldwijs
29 april 2021
Gezamenlijk woonproject van Dok en Marlies Rohmer in Leidsche Rijn Centrum
28 februari 2023
Sportcomplex voegt zich in fijnmazig weefsel
5 december 2014
What happened to… Noordkop
22 juni 2017
What happened to… De Matrix
15 juni 2017
What happened to... Bloemhof, De Intense Stad
8 juni 2017
What happened to… Smarties
1 juni 2017
Kindcentrum met openbare route naar het voedselbos
10 augustus 2021
What happened to... De Vijver
24 mei 2017
Shift, Marlies Rohmer en LOLA winnen tender voor campus internationale school in Groningen
23 januari 2025
Marlies Rohmer: beheersing ambacht essentieel
9 januari 2014
Speeltuinpaviljoen De Waag opgeleverd
26 november 2013
Nieuw onderkomen Mitros in oud kantoorpand
16 oktober 2013
Brede school Het Meervoud opgeleverd
6 september 2013
Tien genonimeerden voor Gouden A.A.P. 2021
12 maart 2021
Klassiek schoolgebouw gerenoveerd naar ontwerp van 9graden architectuur
29 november 2021
Video: Maggie’s Centre Groningen
19 oktober 2018
Kop van Lombok officieel open
22 oktober 2014
Uitgebreide wederopbouwschool in Loosdrecht biedt ruimte aan IKC Wereldwijs
29 april 2021
Gezamenlijk woonproject van Dok en Marlies Rohmer in Leidsche Rijn Centrum
28 februari 2023
Sportcomplex voegt zich in fijnmazig weefsel
5 december 2014
What happened to… Noordkop
22 juni 2017
What happened to… De Matrix
15 juni 2017
What happened to... Bloemhof, De Intense Stad
8 juni 2017
What happened to… Smarties
1 juni 2017
Kindcentrum met openbare route naar het voedselbos
10 augustus 2021
What happened to... De Vijver
24 mei 2017
Shift, Marlies Rohmer en LOLA winnen tender voor campus internationale school in Groningen
23 januari 2025
Marlies Rohmer: beheersing ambacht essentieel
9 januari 2014
Speeltuinpaviljoen De Waag opgeleverd
26 november 2013
Nieuw onderkomen Mitros in oud kantoorpand
16 oktober 2013
Brede school Het Meervoud opgeleverd
6 september 2013
Tien genonimeerden voor Gouden A.A.P. 2021
12 maart 2021
Klassiek schoolgebouw gerenoveerd naar ontwerp van 9graden architectuur
29 november 2021
Toon alles
Andere nieuwsberichten
De Urbanisten schetst perspectief voor vitale en aantrekkelijke Rotterdamse binnenstad
13 maart, 4:41
In opdracht van BIZ RotterdamCentrum maakte De Urbanisten een perspectief voor een vitale en aantrekkelijke binnenstad die samengaat met een meer klimaat- en natuursensitieve inrichting
Studio Vinke en Loos van Vliet ontwerpen blok met woningen in haven Lelystad
13 maart, 3:24
In de haven van Lelystad wordt een blok met 160 woningen naar ontwerp van Studio Vinke in samenwerking met Atelier Loos van Vliet gerealiseerd. Bataviahof wordt het middelste van vijf wooncomplexen, waarvan er inmiddels twee zijn gerealiseerd.
Cepezed geselecteerd voor ontwerp Collectiecentrum Overijssel
13 maart, 2:15
Het Delftse bureau won de Europese aanbesteding die was uitgeschreven voor het gebouw, dat een plek krijgt in het Havenkwartier in Deventer.
Smiljan Radic onderscheiden met Pritzker Prize 2026
13 maart, 12:09
De zestigjarige Chileen wordt door de jury geprezen als een architect die elke opgave met een hoge mate van originaliteit benadert en gebouwen ontwerpt die zowel fragiel ogen als een stille vorm van plezier uitstralen.
NVM: verkoopgolf huurwoningen vergroot ongelijkheid starters
13 maart, 4:03
Waar een recordaantal starters hun eerste woning kon kopen, zagen anderen hun kansen juist afnemen, zegt de makelaarsorganisatie.
IT-systeem Omgevingswet schiet na twee jaar nog steeds tekort
13 maart, 1:20
Het IT-systeem dat overheden nodig hebben om de Omgevingswet uit te voeren, voldoet nog steeds niet aan minimale eisen.
Eindhoven bouwt 5400 studentenwoningen
13 maart, 11:04
De woningen moeten het tekort aan studentenhuisvesting helpen oplossen.
Experts: versnel energietransitie en hou Gronings gas als airbag
12 maart, 1:58
Dat is nodig om minder afhankelijk te worden van andere landen, stellen 22 experts die gespecialiseerd zijn in veiligheid en energie.
Wet die leegstandheffing mogelijk maakt volgende week van kracht
12 maart, 11:35
Gemeenten mogen zelf bepalen of ze de belasting invoeren en hoe hoog die dan wordt.
Raad van State blokkeert plan voor verbouwing ring Utrecht
11 maart, 4:31
Vorig jaar kreeg het kabinet de opdracht om de stikstofuitstoot van het project beter uit te leggen, maar dat is niet gelukt.
Ga naar het nieuws-archief
Robert Muis
Redacteur
1
0
0
0
Voor een optimale gebruikservaring plaatst Architectenweb functionele cookies. Wat de verschillende cookies precies doen leggen we uit in een
overzicht
. Cookies van social media kun je optioneel
aanzetten
.
Akkoord
Instellingen
Annuleren
OK
Sluiten
Doorgaan
Inloggen
Maak een gratis persoonlijk account aan
Feedback
Feedback
Wij horen graag jouw feedback. Laat je reactie achter en eventueel jouw e-mail adres.
Reactie
Verstuur