Projecten
Producten
Bedrijven
Vacatures
Agenda
Awards
Podcasts
more_horiz
Videos
Magazine
Thema's
Favorieten
Profiel
Uitloggen
Abonneer je nu op onze nieuwsbrieven!
Abonneren
Nee, bedankt
Ja, denk met me mee rond de
materialisering van mijn project
Binnentuin met foyer
Copyright: Verlaan & Bouwstra architecten
Museum van de Geest | Dolhuys
Copyright: Verlaan & Bouwstra architecten
Entree vanuit entreetuin
Copyright: Verlaan & Bouwstra architecten
Entree
Copyright: Verlaan & Bouwstra architecten
Binnentuin met foyer
Copyright: Verlaan & Bouwstra architecten
Entree
Copyright: Verlaan & Bouwstra architecten
Entreebalie
Copyright: Verlaan & Bouwstra architecten
Zicht richting entree
Copyright: Verlaan & Bouwstra architecten
Foyer
Copyright: Verlaan & Bouwstra architecten
Foyer
Copyright: Verlaan & Bouwstra architecten
Museumcafé in de kapel
Copyright: Verlaan & Bouwstra architecten
Museumcafé in de kapel
Copyright: Verlaan & Bouwstra architecten
Tentoonstellingsruimte
Copyright: Verlaan & Bouwstra architecten
Tentoonstellingsruimte
Copyright: Verlaan & Bouwstra architecten
Tentoonstellingsruimte
Copyright: Verlaan & Bouwstra architecten
Museum van de Geest | Dolhuys
Copyright: Verlaan & Bouwstra architecten
Historisch detail
Copyright: Verlaan & Bouwstra architecten
Achtergevel
Copyright: Verlaan & Bouwstra architecten
Dwarsdoorsnede
Copyright: Verlaan & Bouwstra architecten
Langsdoorsnede
Copyright: Verlaan & Bouwstra architecten
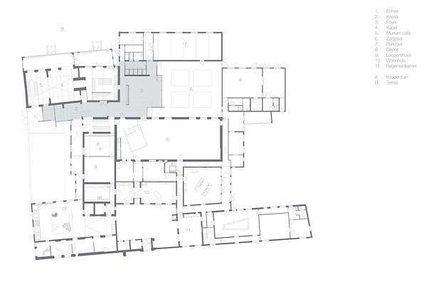
Plattegrond
Copyright: Verlaan & Bouwstra architecten
Dolhuys in Haarlem na grootscheepse verbouwing heropend
4 januari 2021, 15:06
Voor het monumentale complex waarin het Museum van de Geest | Dolhuys in Haarlem is gevestigd, was een bouwkundige renovatie noodzakelijk.
Verlaan & Bouwstra architecten
en
Kossmanndejong
hebben die aangegrepen om ook de logistiek en functionaliteit van het museum te verbeteren. Het vernieuwde complex is eind november geopend.
Het Dolhuys heeft 700 jaar lang, onder verschillende namen, onderdak geboden aan leprozen, pestlijders, melaatsen, dollen, armen, alcoholisten en anderen die buiten de maatschappij vielen, legt Verlaan & Bouwstra architecten uit. Sinds 2005 is in het complex het Museum van de Geest gevestigd. In mei 2019 startte een grootscheepse verbouwing in opdracht van de gemeente Haarlem en Stichting Het Dolhuys.
Historisch gegroeid complex
Het complex bestaat uit zeker tien verschillende bouwdelen, vertelt Verlaan & Bouwstra architecten, dat het architectonisch ontwerp voor de verbouwing en de renovatie heeft verzorgd. De bouwdelen zijn in verschillende tijden gerealiseerd en hadden alle een eigen functie in de zorg voor de mensen die er onderdak hadden.
De cultuur- en architectuurhistorische waarde is evident, aldus Verlaan & Bouwstra, maar als museum is het voormalige zorgcomplex nooit ideaal geweest. Een overzichtelijke route liet zich lastig in de aaneenschakeling van bouwdelen uitstippelen. Het architectenbureau heeft in samenwerking met Kossmanndejong, dat het tentoonstellingsontwerp maakte, de renovatie aangegrepen voor een verbetering van de logistiek en functionaliteit van het museum.
Nieuw hart
Ten eerste vormen een entree en foyer, gelegen tussen twee binnentuinen, het nieuwe hart van het museum. Hiertoe zijn enkele twintigste-eeuwse aanbouwen aan de kapel en zorgzaal verwijderd. De kapel en zorgzaal behoren tot de oudste delen van het complex uit de veertiende en vijftiende eeuw. De nieuwe entree bevindt zich naast de kapel, zoals dat ook in de middeleeuwen het geval was. De aangrenzende foyer ontsluit als een scharnierpunt het museumcafé in de kapel, het auditorium in de parkzaal en het startpunt van de nieuwe museumroute in de zorgzaal.
De architecten hebben het nieuwe hart zorgvuldig tussen de historische bouwdelen ingepast; tegelijkertijd geeft de eigentijdse vormgeving de entree en foyer een onderscheidend gezicht. De entree is bewust achter de tuinmuur geplaatst om het besloten karakter van het complex te behouden. De poort in de muur en de boven de muur uitstekende luifels maken de entree toch van veraf herkenbaar.
Gelaagdheid
De entree en foyer zijn opgebouwd uit horizontale luifels en verticale coulissen, wat resulteert in een gelaagdheid die past bij het historisch gegroeide complex, leggen de architecten uit. De luifels en coulissen zorgen voor een beschutte ontvangst, begeleiden bezoekers naar de foyer en bieden zicht op de omringende monumentale gebouwen.
Bij het hogere ontvangstgedeelte maakt de luifel plaats voor een bijzonder dakranddetail en een als het ware uitstulpen van de glazen pui naar de binnentuin. Dit benadrukt het verschil tussen verkeers- en verblijfsruimte en versterkt op deze plek de relatie tussen binnen en buiten.
In de materialisatie van de nieuwbouw heeft het architectenbureau aansluiting gezocht bij de middeleeuwse gebouwen. De coulissen, wanden en plafonds bestaan uit een deels open lattenstructuur van naturel padoek, dat bijvoorbeeld past bij het onbehandelde eiken van de middeleeuwse gebinten in de kapel en de zorgzaal. Kozijnen, dakranden en wandkaders in donkergrijs aluminium en staal passen bij de aanwezige muurankers en dakleien.
Restauratie
Het karakter van de monumentale ruimten is versterkt, zodat de afzonderlijke gebouwen beter ervaarbaar zijn, legt Verlaan & Bouwstra uit. Het bureau heeft historische vloeren, wanden en plafonds hersteld.
In de kapel is een in 1927 aangebrachte tussenvloer verwijderd waardoor de balkenstructuur van de kap en het spitsboogvenster – met glascollage van kunstenaars Jennifer Tee en Jonas Ohlsson – weer geheel zichtbaar zijn. De toegankelijkheid van de kapel is vergroot door de vloer op één niveau te brengen met de rest van het complex.
Om de zorgzaal uit 1463 veilig te houden, is de originele spantconstructie volledig gerestaureerd. Aangetast hout is vervangen door nieuw eikenhout. In het museumconcept fungeert de zorgzaal als ruimte voor wisselende tentoonstellingen.
De parkzaal is casco gerestaureerd om plaats te bieden aan een auditorium voor tachtig tot honderd personen. Door moderne plafonds te verwijderen, hebben de architecten het originele achttiende-eeuwse plafond met houten delen na lange tijd weer zichtbaar gemaakt. Bij de restauratie is dankbaar gebruik gemaakt van de adviezen van de afdeling Erfgoed van de gemeente Haarlem, zegt het architectenbureau.
Heldere route en meer ruimte
Ten opzichte van de situatie voor de verbouwing is de museumroute omgedraaid. In samenwerking met Kossmanndejong is een tentoonstellingsontwerp gerealiseerd waarin de diverse thema’s van de museumroute aansluiten op het karakter van de ruimte waarin ze zich bevinden. Onderweg fungeren bijzondere plekken in het complex als oriëntatiepunten.
Op diverse plekken zijn dichtgezette ramen open gemaakt. Dankzij de nieuwe entree en foyer maken ook de beide binnentuinen integraal onderdeel uit van de museumroute. De entreetuin is informeel ingericht en biedt ruimte aan expositie. De tuin van de foyer is een klassieke, omsloten kruidentuin en functioneert meer als verblijfsruimte.
Met de ingrepen hebben Verlaan & Bouwstra en Kossmanndejong het museum niet alleen een herkenbare toegang en een logische museale routing gegeven. Tevens zijn extra ruimte en voorzieningen gerealiseerd, die de ontvangst van het groeiend aantal bezoekers en van grotere groepen zoals schoolklassen mogelijk maken.
Het vernieuwde Museum van de Geest | Dolhuys is op 24 november 2020 door Koningin Máxima geopend.
Trefwoorden
restauratie
verlaan & bouwstra architecten
kossmanndejong
museum van de geest
publieke gebouwen
museum
renovatie
haarlem
dolhuys
Locatie
Best gelezen
1
MVSA Architects en Powerhouse Company ontwerpen dubbele woontoren bij Den Haag Centraal
maandag, 30 maart
2
Bouw van twee woontorens De Havenmeesters in Den Haag gestart
vrijdag, 3 april
3
Jan Knikker vertrekt bij MVRDV
maandag, 30 maart
4
Voormalige verffabriek in Overschie omgevormd tot buurt met 125 woningen
woensdag, 1 april
5
Een goede parkeerhub is een gebouw dat opgaat in het straatbeeld
dinsdag, 31 maart
Gerelateerde nieuwsberichten
Entreepaviljoen als sluitstuk voor toegankelijker Beth Haim
15 februari 2021
Universiteitscomplex in centrum Utrecht ondergaat renovatie
20 januari 2021
Rijksmonument Van Maanenbad weer open
23 april 2015
Zintuiglijke tuinen van Kossmanndejong in nieuw Engels museum
13 februari 2020
Kossmanndejong gaat verder met drie nieuwe partners
16 januari 2024
Innovation Center is als een opengewerkte machine
30 oktober 2019
Expositie door Kossmanndejong en Morphosis als kritische kanttekening bij groei
7 april 2022
Bouwkundige restauratie Pieter Teylers Huis in Haarlem afgerond (met video)
8 maart 2021
Tentoonstelling Naturalis moet bezoeker met biodiversiteit betoveren
10 september 2019
Ontwerp Nederlands paviljoen Dubai EXPO 2020 onthuld
11 december 2018
Centre Pompidou Parijs vier jaar dicht voor renovatie
26 januari 2021
Kossmann.dejong ontwerpt vaste opstelling Museum für Kommunikation
13 september 2017
Kossmann.dejong wint internationale prijs
16 augustus 2017
Het Hoofdgebouw van Artis na 75 jaar weer museum
10 mei 2022
Nationaal Militair Museum officieel geopend
11 december 2014
Kossmann.dejong 'vernieuwt' museum Bern
10 februari 2014
Wonderkamers Gemeentemuseum veranderd in 'game'
18 november 2013
Filmhuis in Timmerfabriek Maastricht
9 mei 2012
Biobased paviljoen geeft stem aan de stedelijke natuur
14 april 2022
Nieuwe Armando Museum in 2012 open
12 februari 2010
Design Museum Gent presenteert definitief ontwerp grote verbouwing
9 juni 2021
Renovatie en vernieuwing van Museum W met gouden rand
2 mei 2022
Genomineerden Lieven de Key Penning 2022 bekend
14 oktober 2022
Kasteel Wijchen opgeleverd na anderhalf jaar restauratie
22 februari 2022
Vector-i geselecteerd voor ontwerp Museum aan de A in Groningen
3 januari 2022
Drie kandidaten voor drijvend havenkantoor Haarlem
17 december 2021
Lieven de Key-penning toegekend aan twee projecten
30 november 2021
De Egelantier in Haarlem wordt boetiekhotel met culturele functies
10 juni 2021
Oostends museum ondergaat grondige vernieuwing met hergebruik materiaal
19 mei 2021
Entreepaviljoen als sluitstuk voor toegankelijker Beth Haim
15 februari 2021
Universiteitscomplex in centrum Utrecht ondergaat renovatie
20 januari 2021
Rijksmonument Van Maanenbad weer open
23 april 2015
Zintuiglijke tuinen van Kossmanndejong in nieuw Engels museum
13 februari 2020
Kossmanndejong gaat verder met drie nieuwe partners
16 januari 2024
Innovation Center is als een opengewerkte machine
30 oktober 2019
Expositie door Kossmanndejong en Morphosis als kritische kanttekening bij groei
7 april 2022
Bouwkundige restauratie Pieter Teylers Huis in Haarlem afgerond (met video)
8 maart 2021
Tentoonstelling Naturalis moet bezoeker met biodiversiteit betoveren
10 september 2019
Ontwerp Nederlands paviljoen Dubai EXPO 2020 onthuld
11 december 2018
Centre Pompidou Parijs vier jaar dicht voor renovatie
26 januari 2021
Kossmann.dejong ontwerpt vaste opstelling Museum für Kommunikation
13 september 2017
Kossmann.dejong wint internationale prijs
16 augustus 2017
Het Hoofdgebouw van Artis na 75 jaar weer museum
10 mei 2022
Nationaal Militair Museum officieel geopend
11 december 2014
Kossmann.dejong 'vernieuwt' museum Bern
10 februari 2014
Wonderkamers Gemeentemuseum veranderd in 'game'
18 november 2013
Filmhuis in Timmerfabriek Maastricht
9 mei 2012
Biobased paviljoen geeft stem aan de stedelijke natuur
14 april 2022
Nieuwe Armando Museum in 2012 open
12 februari 2010
Design Museum Gent presenteert definitief ontwerp grote verbouwing
9 juni 2021
Renovatie en vernieuwing van Museum W met gouden rand
2 mei 2022
Genomineerden Lieven de Key Penning 2022 bekend
14 oktober 2022
Kasteel Wijchen opgeleverd na anderhalf jaar restauratie
22 februari 2022
Vector-i geselecteerd voor ontwerp Museum aan de A in Groningen
3 januari 2022
Drie kandidaten voor drijvend havenkantoor Haarlem
17 december 2021
Lieven de Key-penning toegekend aan twee projecten
30 november 2021
De Egelantier in Haarlem wordt boetiekhotel met culturele functies
10 juni 2021
Oostends museum ondergaat grondige vernieuwing met hergebruik materiaal
19 mei 2021
Toon alles
Andere nieuwsberichten
Bouw van twee woontorens De Havenmeesters in Den Haag gestart
3 april, 4:35
De bouw van het Haagse project De Havenmeesters is gestart. In de twee woontorens, ontworpen door Kampman Architecten zullen 242 betaalbare woningen gerealiseerd worden.
Studio AAAN zoekt met Hillehuis aansluiting bij architectuur Beijerlandselaan
3 april, 3:52
Naar verwachting wordt na de bouwvak gestart met de bouw van het Hillehuis in Rotterdam-Zuid. Het gebouw aan de Beijerlandselaan in de wijk Hillesluis bestaat uit vijftien appartementen boven een commerciële plint.
Máxima heropent vernieuwde boulevard van Scheveningen
3 april, 1:51
Donderdag heeft koningin Máxima de vernieuwde boulevard van Scheveningen officieel geopend. In de afgelopen twee jaar is het laatste deel van de vernieuwing, die van de Middenboulevard, uitgevoerd.
Dag van de Ontwerpkracht geïnspireerd op pioniersgeest jubilerend Almere
3 april, 12:17
De Dag van de Ontwerpkracht vindt dit jaar plaats in Almere. Het thema van deze dag voor ruimtelijke professionals is ‘Pionieren 2.0 – ontwerpen aan een houdbare toekomst’.
Aurélie Hachez en Job Floris in gesprek over verschil maken door details
3 april, 2:46
Kunnen details het verschil maken in een steeds eenvormige architectuur in Europa?
Organisaties bepleiten kortere procedures aanpak vol stroomnet
3 april, 11:22
Onder meer Aedes en Neprom omarmen de wens van de coalitie om met een crisiswet de problemen met het overvolle stroomnet aan te pakken.
Investeerders verschaffen Vesteda lucht met pakket maatregelen
3 april, 9:27
De grootste commerciële woningbelegger van Nederland staat onder grote financiële druk
Overijsselse politiek steunt opzetten warmtebedrijf met Drenthe
2 april, 1:40
Volgens het concept-businessplan is daar tot 2050 bijna zes miljard euro voor nodig.
TNO maakt eerste dakpannen met zonnecellen van perovskiet
2 april, 10:24
Perovskiet is niet alleen licht en flexibel, maar ook op veel plekken te winnen.
Amsterdam krijgt dertig meter hoge Self Storage Tower naar ontwerp dedato
1 april, 2:42
Minerva Development heeft de onherroepelijke bouwvergunning voor een dertig meter hoge ‘Self Storage Tower’ in het Amsterdamse Westpoortgebied.
Ga naar het nieuws-archief
Robert Muis
Redacteur
0
0
0
0
Voor een optimale gebruikservaring plaatst Architectenweb functionele cookies. Wat de verschillende cookies precies doen leggen we uit in een
overzicht
. Cookies van social media kun je optioneel
aanzetten
.
Akkoord
Instellingen
Annuleren
OK
Sluiten
Doorgaan
Inloggen
Maak een gratis persoonlijk account aan
Feedback
Feedback
Wij horen graag jouw feedback. Laat je reactie achter en eventueel jouw e-mail adres.
Reactie
Verstuur