Projecten
Producten
Bedrijven
Vacatures
Agenda
Awards
Podcasts
more_horiz
Videos
Magazine
Thema's
Favorieten
Profiel
Uitloggen
Abonneer je nu op onze nieuwsbrieven!
Abonneren
Nee, bedankt
Ja, denk met me mee rond de
materialisering van mijn project
Copyright: Jeroen Musch
Copyright: Jeroen Musch
Copyright: Jeroen Musch
Copyright: Jeroen Musch
Copyright: Jeroen Musch
Copyright: Jeroen Musch
Copyright: Jeroen Musch
Copyright: Jeroen Musch
Copyright: Jeroen Musch
Axonometrie
Copyright: Lüchinger Architects
Begane grond
Copyright: Lüchinger Architects
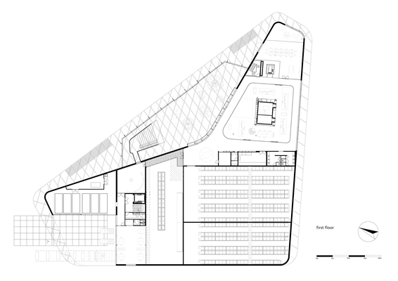
Eerste verdieping
Copyright: Lüchinger Architects
Copyright: Thijs Wolzak
Copyright: Thijs Wolzak
Copyright: Thijs Wolzak
Copyright: Thijs Wolzak
Copyright: Thijs Wolzak
Copyright: Thijs Wolzak
Copyright: Thijs Wolzak
Copyright: Thijs Wolzak
Copyright: Thijs Wolzak
Copyright: Thijs Wolzak
Copyright: Thijs Wolzak
Copyright: Thijs Wolzak
Innovation Center is als een opengewerkte machine
30 oktober 2019, 11:47
Langs de oever van de Noord in Hendrik-Ido-Ambacht groeit de bedrijfscampus van Bolidt, fabrikant van gietvloeren en kunststoftoepassingen. Onlangs is hier het Bolidt Innovation Center toegevoegd, waarvan architectuur, interieur en het belevingsconcept in nauwe samenwerking tussen
Lüchinger Architects
en
Kossmann.dejong
tot stand zijn gekomen.
RoosRos architecten
is verantwoordelijk voor de technische uitwerking.
Aanvankelijk vroeg Bolidt louter om een flinke uitbreiding van opslagruimte en de fabriek, vertelt Joris Lüchinger, wiens bureau al in 2013 begon met een masterplan voor de campus van het bedrijf. Lüchinger heeft daarbij in verschillende scenario’s de potentie van de locatie aan de Noord inzichtelijk gemaakt. De komst van een halte voor de waterbus aan de Noordkade was cruciaal.
Ook voor gasten
“Op dat moment besloot Bolidt om de nieuwbouw ook in te zetten om zijn klanten de producten en het bedrijf in werking laten zien”, legt Lüchinger uit. “Om het gebouw meer dan een fabriek met een showroom te maken, moest er een verhaal worden toegevoegd. Na meerdere gesprekken, onderling en met diverse experience architecten, zijn we de samenwerking aangegaan met Kossmann.dejong.”
Met de uitbreiding is de entree van de campus nu gericht op de rivier, waar de onderneming een eigen steiger heeft voor ontvangst van de gasten. De benadering over het water – en daarmee langs een aantal grote projecten waaraan Bolidt een bijdrage heeft geleverd – is een belangrijk uitgangspunt geweest bij de ontwikkeling van het plan.
Activiteiten onder een dak
Na aankomst is er geen twijfel over het middelpunt van de campus, leggen de architecten uit: het Bolidt Innovation Center. Lüchinger Architects heeft een gebouw ontworpen dat zich kenmerkt door vloeiende lijnen en transparantie. De nieuwbouw brengt een logistiek centrum, opslagruimte, laboratoria, brainstorm- en presentatieruimten samen onder een dak.
Achter een hoge glazen pui ligt een driehoekige open ruimte met een vrije overspanning tot zestien meter. Vanaf een glazen balkon heeft de bezoeker hier zicht op een vloer met interactieve proefopstellingen, aan de andere zijde op de activiteiten van de onderneming.
De verdiepingen worden ontsloten met een trap en een volledig transparante lift. Op de bovenste verdieping ligt de boardroom en een lounge waar werken, lunchen en brainstormen samenkomen. Het dek van het dakterras, gelegen boven de driehoekige hal, is door Kossmann.dejong ontworpen als een staalkaart van Bolidts mogelijkheden.
Chemie
Door de open plattegronden en de ruime toepassing van glas zijn verschillende programmaonderdelen gelijktijdig te zien.“Ik wilde geen iconisch gebouw ontwerpen, maar een soort opengewerkte machine maken, waarin het werk doorgaat en de bezoekers de verschillende facetten van het bedrijf kunnen zien”, zegt Lüchinger.
Kossmann.dejong heeft zijn concept daarin geïmplementeerd. Het leidmotief daarvan is
chemistry
: bedrijfsonderdelen, klanten, ondernemingen, disciplines en grondstoffen gaan allemaal onderlinge reacties aan, wat telkens iets nieuws oplevert. Voorwaarde daartoe is transparantie, dat onder invloed van de ‘experience architects’ nog nadrukkelijker in de architectuur werd opgenomen.
“In nagenoeg wekelijks overleg heeft Kossmann.dejong de verhaallijn ontwikkeld en heeft Lüchinger Architects de architectuur en detaillering waar nodig daarop aangepast”, zegt de architect. De vloeiende lijnen van de architectuur heeft Kossmann.dejong dan weer laten terugkomen in het ontwerp van interieurelementen zoals de labtafels en de zogenoemde ‘exhibits’.
Gespreksaanleidingen
De routing door het gebouw is niet vastgelegd. Bezoekers kunnen met medewerkers van Bolidt dwalen door het gebouw; overal zijn plekken gecreëerd die aanleiding kunnen geven voor een verdiepend gesprek of waar bezoekers ‘deel worden van de chemistry’. Zo kan de gast in de labs eigen monsters laten samenstellen of onder leiding van specialisten experimenteren in de ‘Bolidroom’.
De chemie heeft Kossmann.dejong grafisch weergegeven op de vloer van de begane grond, eerste en tweede verdieping met een patroon van lijnen en bollen. Die zijn uitgevoerd in verschillende kleuren, waarbij elke kleur voor een thema staat, zoals duurzaamheid, veiligheid of energie.
Op het kruispunt van lijnen staan ook de interactieve exhibits, waar de bezoeker meer kan leren over het bedrijf. “Je zoomt in tot op moleculair niveau, kunt zelf monsters testen door ze aan de heftigste krachten bloot te stellen of ervaren wat er bij komt kijken om een cruiseschip van 5.000 m2 dek te voorzien”, geven de architecten als voorbeelden.
Film
“Op een gegeven moment in de tocht door het gebouw, meestal aan het einde, beland je in de centrale open ruimte”, vertelt Lüchinger. “Die verandert dan in een theater. Gordijnen met kleine gaatjes erin, die licht doorlaten als een sterrenhemel, gaan automatisch dicht en een projectiescherm komt naar beneden, waarop een film wordt geprojecteerd.”
Gezeten op een volledig glazen tribune – ontworpen door Lüchinger Architects – neemt een korte film de bezoeker mee langs verschillende aspecten van de onderneming, bij wijze van apotheose. Tegelijkertijd gaan er in de aangrenzende labs gordijnen dichten en lichten aan, zodat het werk in de ‘open machine’ kan doorgaan.
Trefwoorden
hendrik-ido-ambacht
kossmann.dejong
roosros architecten
lüchinger architects
laboratorium
logistiek centrum
bolidt innovation center
kantoorgebouw
bolidt
interieur
Best gelezen
1
Een verbod op eengezinswoningen
dinsdag, 24 maart
2
Architectenweb symposium: ontwerpen van autovrije buurten
woensdag, 25 maart
3
MVSA Architects en Powerhouse Company ontwerpen dubbele woontoren bij Den Haag Centraal
maandag, 30 maart
4
Schiphol maakt nieuwe 'huisarchitecten' bekend
donderdag, 26 maart
5
Studioninedots ontwerpt zelfbouwwoning als landschap van gestapelde doosjes
woensdag, 25 maart
Gerelateerde nieuwsberichten
Team met RoosRos en MTD realiseert uitnodigend plein aan de Noord
22 augustus 2023
Dolhuys in Haarlem na grootscheepse verbouwing heropend
4 januari 2021
Claessens Erdmann en WT Interactive starten samenwerking als NieuweVaart
28 juni 2023
Expositie door Kossmanndejong en Morphosis als kritische kanttekening bij groei
7 april 2022
RoosRos ontwerpt Integraal Educatief Kind Centrum in Lichtenvoorde
31 januari 2020
Het Hoofdgebouw van Artis na 75 jaar weer museum
10 mei 2022
Compact gebouw biedt eigen plek aan twee scholen
7 januari 2025
MVRDV's Portlantis geeft bezoekers nieuwe perspectieven op de Rotterdamse haven
20 maart 2025
Tweede kindcentrum voor Hof van Twente in gebruik genomen
13 april 2021
Ontwerp van RoosRos voor Shri Saraswati-school goedgekeurd
9 maart 2021
RoosRos benoemt vier architect-partners
3 februari 2021
RoosRos zoekt met Duinhotel Breezand de sfeer van de locatie
22 oktober 2020
AAArchitecten ontwerpt duurzaam hoofdkantoor Brabantia
17 september 2020
Flexibel en natuurinclusief ontwerp van RoosRos voor ROC Mondriaan
15 juli 2020
Woongebouw met royale ruimten naar ontwerp RoosRos
6 juli 2020
Gezondheidscentrum geopend in voormalig transformatorhuis
20 april 2020
Zintuiglijke tuinen van Kossmanndejong in nieuw Engels museum
13 februari 2020
Tentoonstelling Naturalis moet bezoeker met biodiversiteit betoveren
10 september 2019
Ontwerp Nederlands paviljoen Dubai EXPO 2020 onthuld
11 december 2018
Kunststof kent veel toepassingen, leer je in het Innovation Center van Bolidt
28 augustus 2018
Kossmann.dejong ontwerpt vaste opstelling Museum für Kommunikation
13 september 2017
Nieuwe lounge op Schiphol is ontworpen als kleine stad
4 juli 2016
Kossmann.dejong ontwerpt Canon van Nederland
27 mei 2015
Nationaal Militair Museum officieel geopend
11 december 2014
Team met RoosRos en MTD realiseert uitnodigend plein aan de Noord
22 augustus 2023
Dolhuys in Haarlem na grootscheepse verbouwing heropend
4 januari 2021
Claessens Erdmann en WT Interactive starten samenwerking als NieuweVaart
28 juni 2023
Expositie door Kossmanndejong en Morphosis als kritische kanttekening bij groei
7 april 2022
RoosRos ontwerpt Integraal Educatief Kind Centrum in Lichtenvoorde
31 januari 2020
Het Hoofdgebouw van Artis na 75 jaar weer museum
10 mei 2022
Compact gebouw biedt eigen plek aan twee scholen
7 januari 2025
MVRDV's Portlantis geeft bezoekers nieuwe perspectieven op de Rotterdamse haven
20 maart 2025
Tweede kindcentrum voor Hof van Twente in gebruik genomen
13 april 2021
Ontwerp van RoosRos voor Shri Saraswati-school goedgekeurd
9 maart 2021
RoosRos benoemt vier architect-partners
3 februari 2021
RoosRos zoekt met Duinhotel Breezand de sfeer van de locatie
22 oktober 2020
AAArchitecten ontwerpt duurzaam hoofdkantoor Brabantia
17 september 2020
Flexibel en natuurinclusief ontwerp van RoosRos voor ROC Mondriaan
15 juli 2020
Woongebouw met royale ruimten naar ontwerp RoosRos
6 juli 2020
Gezondheidscentrum geopend in voormalig transformatorhuis
20 april 2020
Zintuiglijke tuinen van Kossmanndejong in nieuw Engels museum
13 februari 2020
Tentoonstelling Naturalis moet bezoeker met biodiversiteit betoveren
10 september 2019
Ontwerp Nederlands paviljoen Dubai EXPO 2020 onthuld
11 december 2018
Kunststof kent veel toepassingen, leer je in het Innovation Center van Bolidt
28 augustus 2018
Kossmann.dejong ontwerpt vaste opstelling Museum für Kommunikation
13 september 2017
Nieuwe lounge op Schiphol is ontworpen als kleine stad
4 juli 2016
Kossmann.dejong ontwerpt Canon van Nederland
27 mei 2015
Nationaal Militair Museum officieel geopend
11 december 2014
Toon alles
Andere nieuwsberichten
Gebouw wooncoöperatie krijgt gevel van hergebruikte ventilatiekanalen
Gisteren, 16:04
Naar verwachting wordt begin volgend jaar gestart met de bouw van een woongebouw voor wooncoöperatie De Bonte Hulst in Amsterdam-Noord. Het gebouw in Buiksloterham is ontworpen door bureau SLA.
Jan Knikker vertrekt bij MVRDV
Gisteren, 14:46
Knikker, die sinds 2016 partner was bij MVRDV, heeft een belangrijke rol gespeeld bij de professionalisering van de pr- en acquisitieactiviteiten van MVRDV en de mede daaruit volgende groei van het bureau.
MVSA Architects en Powerhouse Company ontwerpen dubbele woontoren bij Den Haag Centraal
Gisteren, 13:19
RED Company heeft met Patrizia SE, Staedion en Bellevue CS The Hague overeenstemming bereikt over de ontwikkeling van de Bellevue-locatie pal naast Den Haag Centraal. Voor de bekroning van de twee torens liggen nog drie varianten op tafel.
Woonhuis tegen dijklichaam loopt door tafelconstructie af in hoogte
Gisteren, 12:13
Aan de rand van het Gelderse dorp Herwijnen is het door B2A ontworpen woonhuis Cascade opgeleverd. De 250 vierkante meter omvattende woning rust op een tafelvormige constructie van acht funderingskolommen tegen een dijklichaam.
OM vervolgt oud-werknemers Strukton na Saudische omkopingskwestie
Gisteren, 16:52
Eerder werd al bekend dat het bouwbedrijf voor tien miljoen euro heeft geschikt in de corruptiezaak.
Duitsland trekt acht miljard uit voor extra klimaatmaatregelen
Gisteren, 10:59
Het geld is onder andere bedoeld voor de bouw van extra windmolens en subsidies voor de aanschaf van elektrische auto's.
‘Transformatie en optoppen levert tienduizenden woningen en klimaatwinst op’
27 maart, 11:53
Woningbouw vergt veel grondstoffen, maar de Wetenschappelijke Klimaatraad ziet veel mogelijkheden om het anders aan te pakken.
Zeeuwse Staten willen inspraak inwoners op groeiplan provincie
27 maart, 9:30
Meerdere Statenfracties in de provincie Zeeland hebben opgeroepen de inwoners op een goede wijze te betrekken bij het uitwerken van de strategische agenda 2050.
Minister: meer geld nodig voor Warmtefonds voor duurzamere woning
26 maart, 12:29
Boekholt gaat de komende tijd op zoek naar geld, zei ze in een debat met de Tweede Kamer.
Kadaster: nieuwbouwappartementen in trek bij oudere kopers
26 maart, 9:35
Als zij verhuisplannen hebben, willen ze vaker een nieuwbouwhuis dan andere leeftijdsgroepen en zijn ze vaker bereid verder weg te gaan dan jongere kopers.
Ga naar het nieuws-archief
Robert Muis
Redacteur
4
0
0
0
Voor een optimale gebruikservaring plaatst Architectenweb functionele cookies. Wat de verschillende cookies precies doen leggen we uit in een
overzicht
. Cookies van social media kun je optioneel
aanzetten
.
Akkoord
Instellingen
Annuleren
OK
Sluiten
Doorgaan
Inloggen
Maak een gratis persoonlijk account aan
Feedback
Feedback
Wij horen graag jouw feedback. Laat je reactie achter en eventueel jouw e-mail adres.
Reactie
Verstuur