Projecten
Producten
Bedrijven
Vacatures
Agenda
Awards
Podcasts
more_horiz
Videos
Magazine
Thema's
Favorieten
Profiel
Uitloggen
Abonneer je nu op onze nieuwsbrieven!
Abonneren
Nee, bedankt
Ja, denk met me mee rond de
materialisering van mijn project
Copyright: Peter Masselink
Copyright: Peter Masselink
Copyright: Peter Masselink
Copyright: Peter Masselink
Copyright: Peter Masselink
Copyright: Peter Masselink
Copyright: Peter Masselink
Copyright: Peter Masselink
Copyright: Peter Masselink
Copyright: Peter Masselink
Copyright: Peter Masselink
Copyright: Peter Masselink
Copyright: Peter Masselink
Copyright: Peter Masselink
Architect past woning aan voor zieke zoon
30 september 2015, 10:45
De zoon van architect
Peter Masselink
kampt met een ernstige energiestofwisselingsziekte. Omdat de zorg voor Sverre letterlijk steeds zwaarder wordt, heeft de inwoner van Doetinchem zijn woning aangepast. Door het huis te voorzien van een aanbouw en enkele bestaande ruimtes te herschikken, kan de jongen op de begane grond verzorgd worden.
De zesjarige Sverre kan door zijn ziekte niet lopen, zitten en zelfstandig eten. Communiceren doet hij via gebrabbel en oogcontact. Inmiddels weegt hij twintig kilo, waardoor het voor zijn ouders steeds moeilijker wordt om hem naar boven te tillen. “Het is feitelijk een dood gewicht dat je telkens moet verslepen, vergelijk het met een zak aardappels”, zegt Peter Masselink.
De gemeente zag de noodzaak van woningaanpassing in, maar achtte het bestaande huis niet geschikt voor zo’n ingreep. Masselink vond verhuizen weer geen optie, want zijn gezonde dochter kan in de buurt worden opgevangen als Sverre weer eens met spoed naar het ziekenhuis moet. Voor het bouwen van een slaap- en badkamer buiten was de tuin weer te klein.
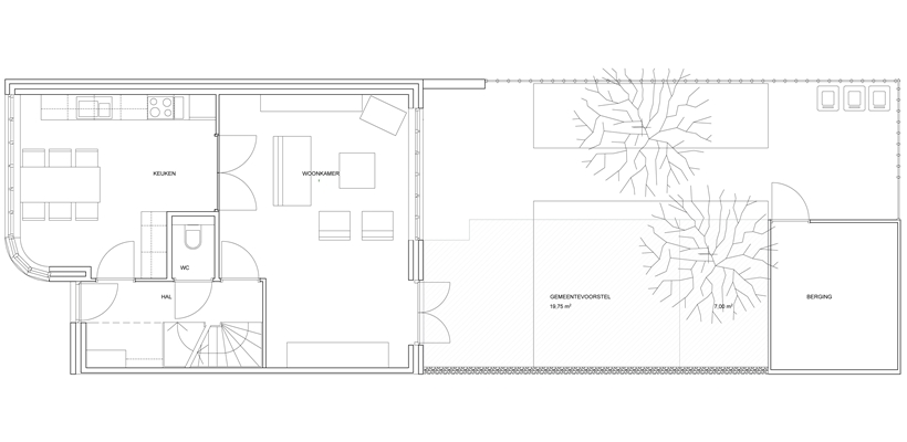
In de lengte gelegd
Masselink had ondertussen een eigen plan gemaakt, waarbij de bestaande woonruimte werd herschikt en uitgebreid. De woonkamer, die oorspronkelijk over dwars lag, is in de lengte gelegd. Op die manier ontstond weer ruimte voor een slaapkamer, die ruim genoeg is voor het draaien en verplaatsen van het bed. Bovendien kan Sverre uitkijken op de tuin.
De naastgelegen ruimte is herbestemd tot badkamer. Deze kan net als de slaapkamer via paneelwanden worden afgesloten of juist tot onderdeel worden gemaakt van de woonkamer. De badkuip bevindt zich in een soort kast en wordt afgesloten achter twee deuren als het bad niet wordt gebruikt.
Naast alle ingrepen in het interieur is er vloerverwarming in de bestaande vloer gefreesd. Hierdoor kan Sverre in het hele huis op de grond liggen, zonder koud te worden. Aan haken in het plafond kunnen een schommel, een hangmat of speelgoed worden gehangen.
Gevecht
Volgens Masselink was het een gevecht om vanuit de gemeentelijke WMO steun te krijgen voor de verbouwing, maar is het geslaagd omdat hij en zijn vrouw hebben doorgezet. “Mensen met een zorgvraag voor kinderen zouden niet moeten vechten tegen gemeentes, maar een team moeten zijn voor de beste zorg. Helaas is vechten maar al te vaak noodzakelijk.”
Masselink wil maar zeggen dat voor een beperkt budget een verbouwing kan worden gerealiseerd die is toegespitst op de bestaande situatie en bovendien meer oplevert voor het huis dan alleen de praktische zaken. “Ik heb al veel voorbeelden gezien waarbij voor veel geld aanbouwen zijn geplaatst, waarvan je de tranen in de ogen springen. Dat kan en moet anders.”
Poppenhuizen
Als vader van twee kinderen die zijn getroffen door de ziekte (een dochter is overleden), zet Masselink zich in voor de
Stichting Energy4All
. Zo heeft hij een project geïnitieerd, waarbij twintig architecten een poppenhuis ontwerpen voor kinderen met een energiestofwisselingsziekte. Daaraan werken onder meer de Architekten Cie. Zecc Architecten en Mecanoo Architecten mee.
Het eerstgenoemde bureau bijvoorbeeld werkt aan een poppenhuis, waarbij de wereld naar de mobiel zeer beperkte kinderen wordt toegehaald. “Het is een soort matroesjka, met een ruimte in een ruimte in een ruimte, enzovoorts. De buitenste ruimte is een oceaan, terwijl de kleinste ruimte een stad is. Het wordt heel bijzonder”, zegt Masselink.
De Doetinchemse architect werkt zelf aan een poppenhuis, waarmee zowel Sverre als zijn achtjarige dochter Juliet kan spelen. “Op die manier kunnen ze elkaars wereld beïnvloeden”, vertelt hij. Het is de bedoeling om volgend jaar een tour door het land te maken met de poppenhuizen en ze daarna te veilen. Ook staat er een publicatie in de planning.
Trefwoorden
doetinchem
mantelzorgwoning
peter masselink
zorg
Best gelezen
1
Finalisten presenteren ontwerp voor Shift Landmark in Rotterdam
woensdag, 4 maart
2
Architect Oliver Thill op 55-jarige leeftijd overleden
donderdag, 5 maart
3
Nieuwe Hittekaart Woningmarkt 2026 van BPD toont aanhoudende woningdruk
dinsdag, 3 maart
4
Strijp-S krijgt woonbuurtje met karakteristieken voormalig Philips-terrein
maandag, 2 maart
5
Haagse gemeenteraad stemt in met bouw van 11.400 woningen in nieuw stadscentrum
maandag, 2 maart
Gerelateerde nieuwsberichten
Poppenhuizen voor kinderen met energiestofwisselingsziekte worden geveild
29 april 2024
Gastvrij ‘revalidatiehotel’ naar ontwerp van HD opgeleverd
23 oktober 2015
Architectenweb houdt Het Tweede Grote Zorgcongres
26 oktober 2015
Lilith Ronner van Hooijdonk ontwerpt kangoeroewoning
5 juli 2018
Ontbijten rond healing environment en dementie
6 oktober 2015
Architectonische poppenhuizen voor kinderen met energiestofwisselingsziekte
8 augustus 2017
Verslag ontbijt 'ontwerpen voor dementie'
6 november 2015
Verslag ontbijt rond healing environment
30 oktober 2015
Uitbreiding voor muziekschool Doetinchem
22 juli 2010
Gevarieerde en betaalbare woningen door opZoom in Doetinchem
29 augustus 2019
Ruim zestig woningen op kunstmatig eiland in Doetinchem
15 november 2021
Vernieuwing woonzorgterrein Den Ooiman gaat van start
26 november 2021
Parkgebouw De Veentjes in Doetinchem opgeleverd
9 januari 2023
Poppenhuizen voor kinderen met energiestofwisselingsziekte worden geveild
29 april 2024
Gastvrij ‘revalidatiehotel’ naar ontwerp van HD opgeleverd
23 oktober 2015
Architectenweb houdt Het Tweede Grote Zorgcongres
26 oktober 2015
Lilith Ronner van Hooijdonk ontwerpt kangoeroewoning
5 juli 2018
Ontbijten rond healing environment en dementie
6 oktober 2015
Architectonische poppenhuizen voor kinderen met energiestofwisselingsziekte
8 augustus 2017
Verslag ontbijt 'ontwerpen voor dementie'
6 november 2015
Verslag ontbijt rond healing environment
30 oktober 2015
Uitbreiding voor muziekschool Doetinchem
22 juli 2010
Gevarieerde en betaalbare woningen door opZoom in Doetinchem
29 augustus 2019
Ruim zestig woningen op kunstmatig eiland in Doetinchem
15 november 2021
Vernieuwing woonzorgterrein Den Ooiman gaat van start
26 november 2021
Parkgebouw De Veentjes in Doetinchem opgeleverd
9 januari 2023
Toon alles
Andere nieuwsberichten
André Kempe: ‘Het ging Oliver Thill om het geven van betekenis’
Gisteren, 19:15
Agelopen maandag is architect Oliver Thill overleden. Zijn compagnon André Kempe gedenkt de man met wie hij al meer dan 35 jaar bevriend was en ruim een kwarteeuw geleden Atelier Kempe Thill oprichtte.
TconcepT transformeert voormalig warenhuis in Offenbach tot bibliotheek
Gisteren, 15:54
Het 12.000 vierkante meter omvattende complex gaat in bredere zin fungeren als een cultuur- en educatiecentrum met vele functies. In 2027 moet Station Mitte, zoals het gebouw zijn volgende leven wordt genoemd, klaar zijn.
Werkstatt gaat verder zonder medeoprichter Niels Groeneveld
Gisteren, 14:49
Medeoprichter van Werkstatt Niels Groeneveld stopt als partner bij het bureau, om zich te kunnen richten op zijn gezin en onderwijs. Floor Frings en Raoul Vleugels blijven het Eindhovense bureau leiden.
Binationaal ontwerpteam buigt zich over waterhuishouding Cartagena in Colombia
Gisteren, 13:43
Een Colombiaans-Nederlands ontwerpteam met Felixx Landscape Architects & Planners en Witteveen+Bos moedigt Cartagena aan om haar relatie met water te heroverwegen en na te denken over een veerkrachtige toekomst
Kunstmuseum in Den Haag moet worden verbouwd
Gisteren, 16:32
Daarvoor dient het museum in het Statenkwartier waarschijnlijk een tijd te sluiten.
Coen van Oostrom benoemd tot nieuwe voorzitter VNO-NCW
Gisteren, 12:23
De oprichter van ontwikkelaar Edge volgt in die rol Ingrid Thijssen op, die deze week is begonnen als nieuwe bestuursvoorzitter van de TU Delft.
Rapport: lokaal klimaatbeleid schiet nog tekort
Gisteren, 10:25
De makers van de zogeheten Toekomstmeter hebben het beleid van zeventig gemeenten doorgelicht.
Hardt Hyperloop failliet verklaard door rechtbank
5 maart, 11:37
Het Rotterdamse bedrijf was bezig met de ontwikkeling van technologie om mensen op hoge snelheid via capsules door een vacuümbuis te vervoeren.
Onderzoek: zeespiegel kustgebieden hoger dan in studies aangenomen
5 maart, 9:13
De zeespiegel aan de kust is in grote delen van de wereld waarschijnlijk hoger dan in veel wetenschappelijke studies wordt aangenomen.
Gelderland geeft voorrang aan vergunningen met minder stikstof
4 maart, 12:24
De plannen zijn onderdeel van het pakket maatregelen dat het Gelderse bestuur wil nemen om de vergunningverlening voor zaken als de woningbouw weer op gang te krijgen.
Ga naar het nieuws-archief
0
0
0
0
Voor een optimale gebruikservaring plaatst Architectenweb functionele cookies. Wat de verschillende cookies precies doen leggen we uit in een
overzicht
. Cookies van social media kun je optioneel
aanzetten
.
Akkoord
Instellingen
Annuleren
OK
Sluiten
Doorgaan
Inloggen
Maak een gratis persoonlijk account aan
Feedback
Feedback
Wij horen graag jouw feedback. Laat je reactie achter en eventueel jouw e-mail adres.
Reactie
Verstuur