Projecten
Producten
Bedrijven
Vacatures
Agenda
Awards
Podcasts
more_horiz
Videos
Magazine
Thema's
Favorieten
Profiel
Uitloggen
Abonneer je nu op onze nieuwsbrieven!
Abonneren
Nee, bedankt
Ja, denk met me mee rond de
materialisering van mijn project
Copyright: Sebastian van Damme
Copyright: Sebastian van Damme
Copyright: Sebastian van Damme
Copyright: Sebastian van Damme
Copyright: Sebastian van Damme
Copyright: Sebastian van Damme
Copyright: Sebastian van Damme
Copyright: Sebastian van Damme
Copyright: Sebastian van Damme
Copyright: Sebastian van Damme
Copyright: Sebastian van Damme
Copyright: Sebastian van Damme
Copyright: Sebastian van Damme
Situatie
Copyright: JCRArchitecten
Doorsnede
Copyright: JCRArchitecten
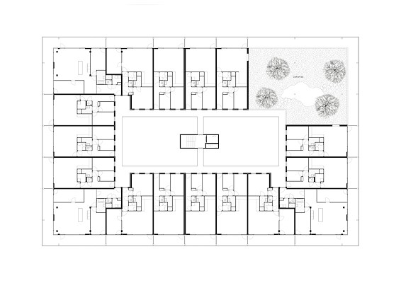
Begane grond
Copyright: JCRArchitecten
Derde verdieping
Copyright: JCRArchitecten
Parkgebouw De Veentjes in Doetinchem opgeleverd
9 januari 2023, 16:16
In Doetinchem is onlangs Parkgebouw De Veentjes opgeleverd. Het woongebouw, een ontwerp van
JCRArchitecten
, is gerealiseerd op de plek van een gesloopte supermarkt aan de rand van het stadscentrum. Het gebouw bestaat uit 75 appartementen met terrassen, die zijn gelegen rond een intieme binnenhof.
Het gebouw maakt deel uit van de vernieuwing van De Veentjes, een uitloper van het stadscentrum die verloederd raakte nadat schouwburg Amphion in 2010 verhuisde naar een nieuw onderkomen. De voormalige supermarkt op dezelfde plek stond ook al jarenlang leeg, al fungeerde het pand een tijd als paintballcentrum.
Het alzijdige volume kijkt onder meer uit op het park dat is aangelegd na de sloop van het oude Amphion. In de hoek aan die kant van het gebouw is een dakterras voor de bewoners gerealiseerd, met uitzicht op dat park. Het groen is doorgezet rond het gebouw, op de terrassen van de bewoners en in de binnenhof.
Het gebouw kent een heldere structuuropbouw en is gerealiseerd van beton, metaal en hout. Grote glazen puien versterken samen met de terrassen het open karakter van het gebouw. De binnenhof is bereikbaar via twee entrees, die de bewoners tevens toegang biedt tot de galerijen rond de appartementen. Het gebouw voorziet dankzij zonnepanelen op het dak grotendeels in de eigen energiebehoefte.
Trefwoorden
woongebouw
woningbouw
jcrarchitecten
amphion
doetinchem
Locatie
Best gelezen
1
Architectenweb symposium: ontwerpen van autovrije buurten
woensdag, 25 maart
2
MVSA Architects en Powerhouse Company ontwerpen dubbele woontoren bij Den Haag Centraal
maandag, 30 maart
3
Schiphol maakt nieuwe 'huisarchitecten' bekend
donderdag, 26 maart
4
Studioninedots ontwerpt zelfbouwwoning als landschap van gestapelde doosjes
woensdag, 25 maart
5
Mecanoo deelt nieuwe foto's van De Nederlandsche Bank
woensdag, 25 maart
Gerelateerde nieuwsberichten
BAM, MIX en LAP winnen selectie voor biobased woningen Doetinchem
23 oktober 2023
Achttien biobased koopwoningen voor Wijnbergen De Kwekerij Doetinchem
23 november 2023
Gemeenteraad Doetinchem stelt stedenbouwkundige visie voor spoorzone vast
4 januari 2024
Een buitenhuisje dat zich heeft ingegraven
6 juni 2024
Wiegerinck presenteert ontwerp revalidatiecentrum naast Slingeland Ziekenhuis
27 maart 2024
Winnaars Heuvelinkprijs 2022 bekendgemaakt
7 oktober 2022
Wiegerinck en Vakwerk Architecten ontwerpen nieuw Slingeland Ziekenhuis
20 juli 2022
Vernieuwing woonzorgterrein Den Ooiman gaat van start
26 november 2021
Ruim zestig woningen op kunstmatig eiland in Doetinchem
15 november 2021
Elektriciteitsmast danst tot de vonken eraf vliegen
19 december 2019
Gevarieerde en betaalbare woningen door opZoom in Doetinchem
29 augustus 2019
Woongebouw op plek oude supermarkt in Doetinchem
23 mei 2019
Nieuwe vestiging Graafschap College geopend
16 oktober 2018
Architect past woning aan voor zieke zoon
30 september 2015
Gevel schouwburg Amphion is niet veilig
22 mei 2014
Belastingkantoor Doetinchem geopend
14 april 2011
Graafschap College Doetinchem geopend
4 november 2010
Schouwburg Amphion officieel geopend
9 september 2010
BAM, MIX en LAP winnen selectie voor biobased woningen Doetinchem
23 oktober 2023
Achttien biobased koopwoningen voor Wijnbergen De Kwekerij Doetinchem
23 november 2023
Gemeenteraad Doetinchem stelt stedenbouwkundige visie voor spoorzone vast
4 januari 2024
Een buitenhuisje dat zich heeft ingegraven
6 juni 2024
Wiegerinck presenteert ontwerp revalidatiecentrum naast Slingeland Ziekenhuis
27 maart 2024
Winnaars Heuvelinkprijs 2022 bekendgemaakt
7 oktober 2022
Wiegerinck en Vakwerk Architecten ontwerpen nieuw Slingeland Ziekenhuis
20 juli 2022
Vernieuwing woonzorgterrein Den Ooiman gaat van start
26 november 2021
Ruim zestig woningen op kunstmatig eiland in Doetinchem
15 november 2021
Elektriciteitsmast danst tot de vonken eraf vliegen
19 december 2019
Gevarieerde en betaalbare woningen door opZoom in Doetinchem
29 augustus 2019
Woongebouw op plek oude supermarkt in Doetinchem
23 mei 2019
Nieuwe vestiging Graafschap College geopend
16 oktober 2018
Architect past woning aan voor zieke zoon
30 september 2015
Gevel schouwburg Amphion is niet veilig
22 mei 2014
Belastingkantoor Doetinchem geopend
14 april 2011
Graafschap College Doetinchem geopend
4 november 2010
Schouwburg Amphion officieel geopend
9 september 2010
Toon alles
Andere nieuwsberichten
Gebouw wooncoöperatie krijgt gevel van hergebruikte ventilatiekanalen
Gisteren, 16:04
Naar verwachting wordt begin volgend jaar gestart met de bouw van een woongebouw voor wooncoöperatie De Bonte Hulst in Amsterdam-Noord. Het gebouw in Buiksloterham is ontworpen door bureau SLA.
Jan Knikker vertrekt bij MVRDV
Gisteren, 14:46
Knikker, die sinds 2016 partner was bij MVRDV, heeft een belangrijke rol gespeeld bij de professionalisering van de pr- en acquisitieactiviteiten van MVRDV en de mede daaruit volgende groei van het bureau.
MVSA Architects en Powerhouse Company ontwerpen dubbele woontoren bij Den Haag Centraal
Gisteren, 13:19
RED Company heeft met Patrizia SE, Staedion en Bellevue CS The Hague overeenstemming bereikt over de ontwikkeling van de Bellevue-locatie pal naast Den Haag Centraal. Voor de bekroning van de twee torens liggen nog drie varianten op tafel.
Woonhuis tegen dijklichaam loopt door tafelconstructie af in hoogte
Gisteren, 12:13
Aan de rand van het Gelderse dorp Herwijnen is het door B2A ontworpen woonhuis Cascade opgeleverd. De 250 vierkante meter omvattende woning rust op een tafelvormige constructie van acht funderingskolommen tegen een dijklichaam.
Michael Braungart luistert vijftienjarig jubileum Cradle to Cradle Café op
26 minuten geleden
Op dinsdag 14 april organiseert het Cradle to Cradle Café een speciaal jubileumfestival in Utrecht ter gelegenheid van zijn vijftienjarig bestaan.
PBL: politieke keuzes nodig voor aanpassing klimaatverandering
1 uur geleden
Een verstandige keuze is alvast om alles klimaatadaptief aan te pakken, aldus het Planbureau voor de Leefomgeving.
OM vervolgt oud-werknemers Strukton na Saudische omkopingskwestie
Gisteren, 16:52
Eerder werd al bekend dat het bouwbedrijf voor tien miljoen euro heeft geschikt in de corruptiezaak.
Duitsland trekt acht miljard uit voor extra klimaatmaatregelen
Gisteren, 10:59
Het geld is onder andere bedoeld voor de bouw van extra windmolens en subsidies voor de aanschaf van elektrische auto's.
‘Transformatie en optoppen levert tienduizenden woningen en klimaatwinst op’
27 maart, 11:53
Woningbouw vergt veel grondstoffen, maar de Wetenschappelijke Klimaatraad ziet veel mogelijkheden om het anders aan te pakken.
Zeeuwse Staten willen inspraak inwoners op groeiplan provincie
27 maart, 9:30
Meerdere Statenfracties in de provincie Zeeland hebben opgeroepen de inwoners op een goede wijze te betrekken bij het uitwerken van de strategische agenda 2050.
Ga naar het nieuws-archief
Ronnie Weessies
Redacteur
3
0
0
0
Voor een optimale gebruikservaring plaatst Architectenweb functionele cookies. Wat de verschillende cookies precies doen leggen we uit in een
overzicht
. Cookies van social media kun je optioneel
aanzetten
.
Akkoord
Instellingen
Annuleren
OK
Sluiten
Doorgaan
Inloggen
Maak een gratis persoonlijk account aan
Feedback
Feedback
Wij horen graag jouw feedback. Laat je reactie achter en eventueel jouw e-mail adres.
Reactie
Verstuur