Projecten
Producten
Bedrijven
Vacatures
Agenda
Awards
Podcasts
more_horiz
Videos
Magazine
Thema's
Favorieten
Profiel
Uitloggen
Nieuw
Populair
Toon alles
Architectenweb magazine #14
Architectenweb magazine #13
Publieke gebouwen
Architectenweb magazine #12
Kantoren
Architectenweb magazine #11
Scholen
Architectenweb magazine #10
Zorg
Architectenweb magazine #14
Architectenweb magazine #10
Zorg
Architectenweb magazine #12
Kantoren
Architectenweb magazine #13
Publieke gebouwen
Architectenweb magazine #6
Transformatie en Renovatie
Om direct naar je favorieten te kunnen gaan is het nodig om eerst in te loggen.
Nieuw
Architectenweb Awards 2025
Architectenweb Awards 2024
Architectenweb Awards 2023
Architectenweb Awards 2022
Architectenweb Awards 2021
Architectenweb Awards 2020
Architectenweb Awards 2019
Architectenweb Awards 2018
Om direct naar je favorieten te kunnen gaan is het nodig om eerst in te loggen.
Nieuw
Populair
Favorieten
Toon alles
Vakwerk Architecten
Nominatie voor de prijs voor Architect van het Jaar 2025
Sanne van Manen
Nominatie voor de prijs voor Architect van het Jaar 2025
KSA
Nominatie voor de prijs voor Architect van het Jaar 2025
KRFT
Nominatie voor de prijs voor Architect van het Jaar 2025
Joost Ector
Nominatie voor de prijs voor Architect van het Jaar 2025
Prijsuitreiking Architectenweb Awards 2024
Impressie van een feestelijke avond
Martens, Willems & Humblé Architecten
Nominatie voor de prijs voor Architect van het Jaar 2024
Uitreiking van Architectenweb Awards 2020
Impressie van de prijsuitreiking via Zoom
De Zwarte Hond
Nominatie voor de prijs voor Architect van het Jaar 2024
Avond met De Zwarte Hond
Symposium
Om direct naar je favorieten te kunnen gaan is het nodig om eerst in te loggen.
Nieuw
Populair
Categorieën
Favorieten
Toon alles
ST1centrum
Dé specialist op het gebied van gevelstenen en dakpannen met showrooms in Amsterdam en Meppel
Studio Massimo
Architecture & Nature
Brandpreventie Academy BV
HoutPro+
Cay Circulaire Keukens
Circulaire keukens en pantry's
Studio Kirsten Reith
Interieurontwerp
Interior & Co
Cay Circulaire Keukens
Circulaire keukens en pantry's
Orange Automatic Doors
Studio175
Interieuradvies in regio Utrecht
Studio Kirsten Reith
Interieurontwerp
Brandpreventie Academy BV
Architecten
Architectuur
Mobiliteit en infrastructuur
Stedenbouw en landschapsarchitectuur
Leveranciers
Gevels
Daken
Ramen en deuren
Trappen, liften en balustrades
Binnenwanden
Vloeren
Plafonds
Verlichting
Sanitair
Projectinrichting
Installaties
Constructies
Buitenruimte
Software
Adviseurs
Bestekschrijvers
Bouwmanagement
Installatie adviseurs E
Bouwfysica
Calculators
Installatie adviseurs G/W
Bouwkundig tekenwerk
Constructeurs
Lichtadviseurs
Adviseur beveiliging
Juristen
Intermediairs, Payrolling
Aannemers
Overig
Presentatie
Instellingen / onderwijs
Overig
Om direct naar je favorieten te kunnen gaan is het nodig om eerst in te loggen.
Nieuw
Populair
Favorieten
Toon alles
Gesprek met Stephan Sliepenbeek over hoogbouw in Amstel III
Gesprek met Ellen van Bueren over gebiedsontwikkeling en hoogbouw
Gesprek met Ma Yansong over ontwerpen die emotie oproepen
Gesprek met Paul de Ruiter over innovatieve en duurzame hoogbouw
Gesprek met Pi de Bruijn over zijn ontwerpen voor de Tweede Kamer toen en nu
Gesprek met Ellen van Bueren over gebiedsontwikkeling en hoogbouw
Gesprek met Oresti Sarafopoulos over het ontwerpen van een kantoorgebouw met bijna geen installaties
Gesprek met Stijn Steenbakkers over verdichting en hoogbouw in Eindhoven
Gesprek met Pi de Bruijn over zijn ontwerpen voor de Tweede Kamer toen en nu
Gesprek met Paul de Ruiter over innovatieve en duurzame hoogbouw
Om direct naar je favorieten te kunnen gaan is het nodig om eerst in te loggen.
Nieuw
Populair
Categorieën
Favorieten
Toon alles
Duurzaam logistiek centrum vol daglicht
Renovatie parkeergarage WTC Beursplein, Rotterdam
700 modulaire lichtstraten gebruikt Icône kantoor
MBO-school Firda in stadion van Cambuur
Hoofdkantoor We Enable Climbers
Boekweitkamp, Den Haag
Exclusieve wooneenheden
De Grote Zwaan, Nijmegen
Renovatieproject Ockenburghstraat
ASML Gebouw 3
Architectuur
Woningbouw
Zorg
Hotels
Restaurants en café’s
Winkels
Sportgebouwen
Culturele gebouwen
Overheidsgebouwen
Scholen
Kantoren
Bedrijfsgebouwen
Paviljoens en kunst
Overig
Mobiliteit en infrastructuur
Trein- en metrostations
Luchthavens
Busstations
Parkeergarages
Fietsparkeren
Wegen
Bruggen
Water
Energie
Tankstations en laadstations
Waterzuivering en afvalverwerking
Overig
Stedenbouw en landschapsarchitectuur
Regionale visies
Gebiedsvisies
Plannen stedelijk weefsel
Amusementsparken en dierentuinen
Lichtontwerpen
Openbare ruimte
Pleinen
Parken
Tuinen
Speelplaatsen
Uitkijktorens
Overige (bijv. begraafplaatsen)
Om direct naar je favorieten te kunnen gaan is het nodig om eerst in te loggen.
Nieuw
Populair
Categorieën
Favorieten
Toon alles
VELUX Commercial – Modulaire Lichtstraten
Daglichtoplossingen voor architectuur met impact
Circulaire ReCarp vloer
ReCarp: Circulaire Tapijttegels Herdefiniëren Design en Duurzaamheid
Niko Rocker en Niko Toggle
Niko introduceert twee nieuwe opvallende designschakelaars
Colorcoat Prisma Textured
Nieuwe structuurafwerking toegevoegd aan Tata Steel's Colorcoat Prisma® portfolio
Compact sectionaaldeur voor showrooms
Praktisch én mooi
StoTherm Wood: cementvrij gevelsysteem met houtvezelisolatie
Biobased gevelisolatie met natuurlijke prestaties
Akoestisch kussen.
Ervaar de ultime natuurlijke oplossing voor akoestiek problemen.
Knauf MaxSpace
Minder wand, méér ruimte. Het ideale profiel voor meer winst per m²
Lumiglaze – Het vlakglas van VELUX Commercial
Een nieuw tijdperk in daglichtontwerp – minimalistisch, functioneel en klaar voor de toekomst.
Veelzijdig straatmeubilair
Van openbare ruimte naar (be)leefomgeving
Gevels
Gevelbekleding
Vliesgevels
Zonwering buiten
Isolatie
Gevelconstructies
Signing
Overig
Daken
Dakafwerkingen
Dakisolatie
Dakconstructies
Dakranden, dakgoten en HWA's
Dakramen
Lichtkoepels
Lichtstraten
Schoorstenen
Overig
Dakluiken
Ramen en deuren
Raam- en deursystemen / kozijnen
Vliesgevels
Hang- en sluitwerk
Beveiliging en luiken
Dorpels en vensterbanken
Lateien
Roosters
Glas
Dakramen
Dakkoepels
Lichtstraten
Zonwering buiten
Zonwering binnen
Buitendeuren
Binnendeuren
Postvakken en brievenbussen
Overig
Dakluiken
Trappen, liften en balustrades
Trappen
Roltrappen
Liften
Balustrades en hekwerken
Galerijen
Binnenwanden
Binnenwanden
Wandafwerking
Vloeren
Constructieve vloeren
Verhoogde vloeren
Vloerafwerkingen
Overig
Plafonds
Tegels
Lineair
Grill
Open en roosters
Naadloos
Eilanden en baffles
Plafondafwerkingen
Ophangsystemen
Overig
Klimaatplafonds
Verlichting
Binnenverlichting
Buitenverlichting
Sanitair
Kranen en douchesets
Wastafels
Douchewanden en douchebakken
Baden
Waterclosets
Accessoires
Overig
Projectinrichting
Stoelen
Banken
Tafels
Kasten
Balies
Vrijstaande wanden
Keukens
Accessoires
Overig
Cabines
Interieurbeplanting
Stoffering
Installaties
Verwarming, koeling en ventilatie
Elektrotechnische installaties
Schakelmateriaal
Domotica
Deurcommunicatie
Beveiliging
Liften
Onderhoudsinstallaties
Overig
Brandbeveiliging
Constructies
Draagconstructies
Funderingen en kelders
Overig
Brandbeveiliging
Buitenruimte
Bestratingen en verhardingen
Afwateringen
Terreinafscheidingen en geluidsschermen
Buitenmeubilair
Fietsparkeren
Terrassen
Terrasoverkappingen
Bruggen
Accessoires
Overig
Beplanting
Sport- en speeltoestellen
Software
Tekenen 2D
Modelleren 3D / BIM
Visualisatie / rendering
Parametrisch ontwerpen
Bouwfysica
Draagconstructie
Overig
Virtual Reality
Cloudoplossingen
Om direct naar je favorieten te kunnen gaan is het nodig om eerst in te loggen.
Nieuw
Populair
Favorieten
Toon alles
Prefab beurs - 7 t/m 9 oktober 2025
Brabanthallen 's-Hertogenbosch
Boekpresentatie en panelgesprek met Floor Milikowsky
Prins Hendrikkade 600, 1011 VX Amsterdam
Architects Table ’25: Lunch & Inspiratie in HAUT Amsterdam
ATAG LIVE – HAUT gebouw, Spaklerweg 10F, 1096 BA Amsterdam (tegenover metrostation Spaklerweg)
Inspiratiedag @ Sempergreen – Gevelgroen
Defensieweg 1, 3984 LR Odijk
Architectenweb symposium: klein maar fijn wonen?
Pakhuis de Zwijger
Prefab beurs - 7 t/m 9 oktober 2025
Brabanthallen 's-Hertogenbosch
Ontdek het seminarieprogramma van Architect@Work Amsterdam
De Kromhouthal, Gedempt Hamerkanaal 231, Amsterdam
DigiBouw 2025 – hét event voor digitalisering in de bouwsector
Expozaal van het Beatrixgebouw in Utrecht
Architects Table ’25: Lunch & Inspiratie in HAUT Amsterdam
ATAG LIVE – HAUT gebouw, Spaklerweg 10F, 1096 BA Amsterdam (tegenover metrostation Spaklerweg)
Boekpresentatie en panelgesprek met Floor Milikowsky
Prins Hendrikkade 600, 1011 VX Amsterdam
Om direct naar je favorieten te kunnen gaan is het nodig om eerst in te loggen.
Nieuw
Toon alles
Design
Duurzaamheid
Gevel
Infrastructuur
Interieur
Kantoren
Leisure
Openbare ruimte
Publieke gebouwen
Scholen
Transformatie en Renovatie
Woningbouw
Zorg
Om direct naar je favorieten te kunnen gaan is het nodig om eerst in te loggen.
Nieuw
Populair
Toon alles
Medior Architect
Assistent Ontwerper (Junior Architect)
Ervaren Bouwkundig Tekenaar
9graden architectuur Amersfoort zoekt een bouwkundig modelleur
SVP zoekt bureauondersteuner
SVP zoekt medior stedenbouwkundige
Junior Architect (NL/EN)
De Academie van Bouwkunst Amsterdam zoekt twee onderzoekers voor lectoraat
Architect
Site Practice zoekt medior architect met 4-6 jaar ervaring (Amsterdam)
Junior Ontwerper
Studio Nauta zoekt projectleider
Om direct naar je favorieten te kunnen gaan is het nodig om eerst in te loggen.
Brug en werkplaats
Copyright: queeste architecture & concept development
Crematorium met zalen
Copyright: queeste architecture & concept development
Gevel crematorium
Copyright: queeste architecture & concept development
Plein bij werkplaats
Copyright: queeste architecture & concept development
Rouwhof bij crematorium
Copyright: queeste architecture & concept development
Voorgevel crematorium bij parkeerplaats
Copyright: queeste architecture & concept development
Werkplaats
Copyright: queeste architecture & concept development
Achtergevel crematorium
Copyright: queeste architecture & concept development
Voorgevel crematorium
Copyright: queeste architecture & concept development
Gevels crematorium
Copyright: queeste architecture & concept development
Gevels crematorium
Copyright: queeste architecture & concept development
Gevels werkplaats
Copyright: queeste architecture & concept development
Gevels werkplaats
Copyright: queeste architecture & concept development
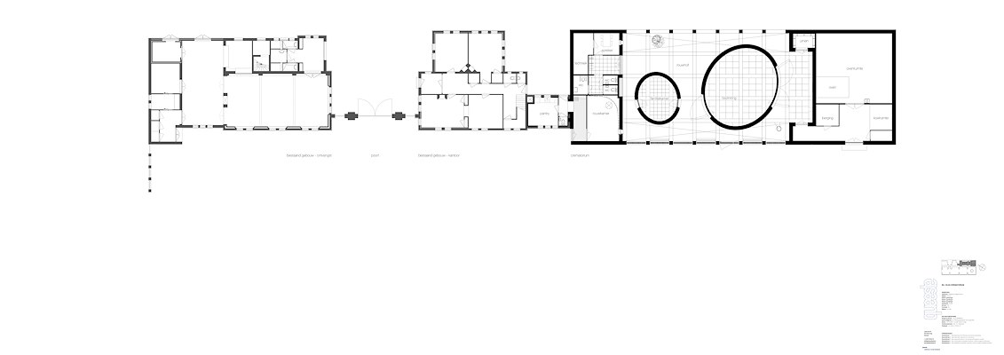
Plattegrond crematorium
Copyright: queeste architecture & concept development
Plattegrond crematorium
Copyright: queeste architecture & concept development
Plattegrond werkplaats
Copyright: queeste architecture & concept development
Plattegrond werkplaats
Copyright: queeste architecture & concept development
Doorsnedes crematorium
Copyright: queeste architecture & concept development
Doorsnedes werkplaats
Copyright: queeste architecture & concept development
Queeste ontwerpt brug, werkplaats en crematorium voor begraafplaats St. Barbara
9 januari 2023, 11:54
De ruim honderd jaar oude begraafplaats St. Barbara in Den Haag ondergaat een herinrichting en uitbreiding met een aantal gebouwen. Architectenbureau
queeste architecture & concept development
heeft het ontwerp gemaakt voor een nieuwe brug, een werkplaats en een crematorium.
De Rooms-Katholieke begraafplaats St. Barbara, aangelegd in 1920, is gesitueerd in de Haagse wijk Binckhorst. De herontwikkeling van het omliggende gebied door de gemeente, in combinatie met de wens van de stichting r.k. begraafplaats St. Barbara om een crematorium te realiseren, heeft geleid tot de ambitie om de begraafplaats tot een stadspark te maken, vergelijkbaar met bijvoorbeeld het Parijse Cimetière du Père-Lachaise.
St. Barbara zou als park en groene long kunnen bijdragen aan de leefbaarheid in de Binckhorst. Het gehele project bestaat uit een masterplan – opgesteld door queeste – en vier deelprojecten. Drie van deze deelprojecten zijn een brug, een werkplaats en een crematorium.
Brug en werkplaats
De brug vormt de verbinding tussen de Zuiderkroonstraat en de begraafplaats. Queeste maakte een elegant, ingetogen ontwerp, bestaande uit prefab betonnen liggers en een stalen traliewerk met houten balustrade. Het traliewerk divergeert aan weerszijden langs de brug.
Het gebouw van de werkplaats bestaat functioneel uit twee delen onder een groot dak. Een deel behelst de keuken, kleedruimte, sanitaire voorziening en kantine. Het tweede deel is de feitelijke werkplaats, waarin ruimte voor voertuigen en opslag is voorzien. De buitenzijde is een gesloten stenen wand met glazen perforaties.
Aan de begraafplaatszijde ligt een meanderende wand met toegangspoorten voor werkvoertuigen. Deze houten wand loopt vrij om de draagconstructie heen. Dit resulteert in een duidelijke buiten- en binnenzijde, legt queeste uit.
Crematorium
Het crematorium komt bij de hoofdentree van de begraafplaats te liggen. Het gebouw krijgt een extra dimensie doordat het ook functioneert als ‘bezinningsruimte’ in het stadspark voor de gehele Binckhorst.
Het gebouw is opgezet als een samenhangende compositie van verschillende programmaonderdelen en functies. De ruimte voor de uitvaart en bezinning is ondergebracht in een toegankelijk object in de vorm van een open rouwhof; als zodanig is het integraal onderdeel van de hele begraafplaats.
Vanaf de zijde van de begraafplaats markeren twee stenen dozen, als contouren, het rouwhof. Een is hoog en ligt aan de buitenzijde en een is een laag en bevindt zich aan de kant van de hoofdentree. Een natuurstenen arcade geeft de toegang van het rouwhof aan.
Licht
Binnen het rouwhof liggen twee ellipsvormige zalen, die door een vrije dakconstructie worden verbonden met de dozen aan de zijkanten. Het dak wordt uitgevoerd als vegetatiedak. In de grote zaal bevindt zich de ruimte voor bezinning of de uitvaartdienst; de ruimte biedt plek voor ongeveer veertig personen.
De zaal is wit en heeft een grote glazen scheluw kap. In de zijwand is een klein rond venster opgenomen, afgestemd op de zonnestand op vier december, als een eerbetoon aan Sint Barbara. Op die dag – de naamdag van Sint Barbara – schijnt binnenvallend zonlicht precies op, en volgt, de tekst ‘et nox sicut dies illuminabitor’ (‘en de nacht zal oplichten als de dag’).
Ceremonie
In de tweede, kleinere zaal bevindt zich de familiekamer, waar alleen de naaste familie voorafgaand aan de uitvaart samenkomt voor het afscheid. De gasten kunnen kiezen om bij de crematie aanwezig te zijn en te blijven als de grote crematiepoorten aan de zijkant van de bezinningsruimte worden geopend.
Het luik van de oven opent, de kist wordt ingeladen en de kist verdwijnt in de oven. Hierna verplaatst het gezelschap zich naar de condoleanceruimte aan de andere zijde van de hoofdentree van de begraafplaats.
Trefwoorden
binckhorst
stadspark
den haag
begraafplaats
queeste architecten
crematorium
st. barbara
queeste architecture & concept development
Best gelezen
1
Architectenweb symposium: klein maar fijn wonen?
donderdag, 2 oktober
2
Plan Spot belooft Lelystad bruisend centrumgebied
vrijdag, 3 oktober
3
‘NDSM-werf en Buiksloterham zijn júÃst inspirerende voorbeelden voor de stad van morgen’
vrijdag, 3 oktober
4
Nominaties Publiek gebouw van het Jaar 2025 bekend
woensdag, 8 oktober
5
Realisatieovereenkomst voor hoogbouwcomplex De Sax op Wilhelminapier getekend
maandag, 6 oktober
Gerelateerde nieuwsberichten
Crematorium met rouwhof voor begraafplaats St. Barbara in Den Haag
25 april 2024
Oude tabaksopslag in Binckhorst getransformeerd tot bedrijfsverzamelgebouw
13 oktober 2023
Hoogste punt Binck City Park in Haagse Binckhorst
5 februari 2024
Woontoren Nova in De Binckhorst rondt de transformatie Maanplein af
17 april 2024
Bouw van toren met gestapelde woonbuurten in Haagse Binckhorst stap dichterbij
13 juni 2024
J.P. van Eesteren en cepezed verbouwen Universe tot rijkskantoor
30 september 2024
BoogieWood winnaar van de eerste Gouden Hijskraan
18 juni
Berlagevlag 2023 voor socialewoningbouwproject Jaarsmahof
25 oktober 2023
Nieuwbouw voor begraafplaats St. Barbara gestart volgens ontwerp queeste
23 november 2021
Functionele en symbolische gaanderij voor LUMC
9 juni 2015
Bijzondere constructie voor Letschertbrug
9 oktober 2012
Bouw brug Wilhelminakanaal van start
27 april 2011
Haags Hopje bekroont de Schilderswijk
7 april 2010
Ensemble van ontvangstpaviljoens voor Brabantse natuurbegraafplaats
24 juni 2022
Helgasnelarchitecten geeft aula kwaliteit terug
5 augustus 2021
Entreepaviljoen als sluitstuk voor toegankelijker Beth Haim
15 februari 2021
Ruimtelijke en ingetogen herdenkingsplek te midden van de natuur
26 november 2020
KAAN Architecten presenteert bezoekerscentrum Amerikaanse Begraafplaats Margraten
23 november 2020
Crematorium van a2o met centrale 'campo santo'
9 juli 2018
Pole-productions begeleidt het afscheid met wanden
3 mei 2018
Ceremonieplaats onder een loofdak
5 december 2017
Een ceremoniegebouw voor de tijdelijkheid
9 mei 2017
Bouw woningbouwproject One Milky Way in Binckhorst gestart
25 januari 2023
Crematorium met rouwhof voor begraafplaats St. Barbara in Den Haag
25 april 2024
Oude tabaksopslag in Binckhorst getransformeerd tot bedrijfsverzamelgebouw
13 oktober 2023
Hoogste punt Binck City Park in Haagse Binckhorst
5 februari 2024
Woontoren Nova in De Binckhorst rondt de transformatie Maanplein af
17 april 2024
Bouw van toren met gestapelde woonbuurten in Haagse Binckhorst stap dichterbij
13 juni 2024
J.P. van Eesteren en cepezed verbouwen Universe tot rijkskantoor
30 september 2024
BoogieWood winnaar van de eerste Gouden Hijskraan
18 juni
Berlagevlag 2023 voor socialewoningbouwproject Jaarsmahof
25 oktober 2023
Nieuwbouw voor begraafplaats St. Barbara gestart volgens ontwerp queeste
23 november 2021
Functionele en symbolische gaanderij voor LUMC
9 juni 2015
Bijzondere constructie voor Letschertbrug
9 oktober 2012
Bouw brug Wilhelminakanaal van start
27 april 2011
Haags Hopje bekroont de Schilderswijk
7 april 2010
Ensemble van ontvangstpaviljoens voor Brabantse natuurbegraafplaats
24 juni 2022
Helgasnelarchitecten geeft aula kwaliteit terug
5 augustus 2021
Entreepaviljoen als sluitstuk voor toegankelijker Beth Haim
15 februari 2021
Ruimtelijke en ingetogen herdenkingsplek te midden van de natuur
26 november 2020
KAAN Architecten presenteert bezoekerscentrum Amerikaanse Begraafplaats Margraten
23 november 2020
Crematorium van a2o met centrale 'campo santo'
9 juli 2018
Pole-productions begeleidt het afscheid met wanden
3 mei 2018
Ceremonieplaats onder een loofdak
5 december 2017
Een ceremoniegebouw voor de tijdelijkheid
9 mei 2017
Bouw woningbouwproject One Milky Way in Binckhorst gestart
25 januari 2023
Toon alles
Andere nieuwsberichten
Zoetmulder vernieuwt Maastrichts herenhuis met eigentijdse uitbouw
Gisteren, 15:07
In Maastricht heeft Zoetmulder een herenhuis verbouwd en uitgebreid met een uitbouw. Waar de gevel aan de voorzijde in de originele staat is behouden om het huis te blijven laten passen in het straatbeeld, is de achterzijde geheel vernieuwd.
Vier genomineerden voor de Abe Bonnema Architectuurprijs 2025
Gisteren, 13:00
Volgens de jury zijn de nominaties een toonbeeld van het jaarthema ‘ambitie’ en leveren zij een inspirerende bijdrage aan de ontwikkeling van een nieuwe bouwcultuur.
Nominaties Publiek gebouw van het Jaar 2025 bekend
Gisteren, 09:00
Als onderdeel van de Architectenweb Awards 2025 wordt begin november de prijs voor Publiek gebouw van het Jaar 2025 uitgereikt. Uit de vijfentwintig inzendingen voor deze prijs heeft de jury vier projecten genomineerd.
Door Gortemaker Feenstra Algra ontworpen Institut Roi Albert II in Brussel officieel geopend
7 oktober, 2:53
In dit centrum voor oncologie en hematologie is alle zorg op deze gebieden van het universitair ziekenhuis Saint-Luc op één locatie ondergebracht. Het H-vormige gebouw kenmerkt zich door een houten lamellengevel, afgewisseld met glas.
Do Janne Vermeulen verzorgt Rietveldlezing 2025
Gisteren, 11:28
De medeoprichter en directeur van Team V Architectuur spreekt op 13 november over de (houten) stad van morgen.
Eneco onderzoekt verkoop warmtenetten om nieuwe wet
Gisteren, 10:41
Door een eerder dit jaar aangenomen wet is het voor het bedrijf onzeker of investeringen zich nog terugverdienen.
Uitwerking van plannen voor Nedersaksenlijn kan beginnen
7 oktober, 12:17
Maandag is het startsein gegeven voor de eerste onderzoeken die uiteindelijk moeten leiden tot de spoorlijn die Groningen en Twente met elkaar verbindt.
Mona Keijzer lonkt naar investeerders op vastgoedbeurs in München
7 oktober, 10:02
"We moeten 1,6 miljoen woningen bouwen. Daarvoor hebben we buitenlandse investeerders nodig", stelt de demissionair minister.
Jongeren debatteren in het Nieuwe Instituut met Kamerleden over wonen
6 oktober, 2:26
Tot de thema’s die worden besproken, behoren betaalbaarheid, het creëren van meer woningen en de betrokkenheid van jongeren bij deze plannen.
GL-PvdA wil komende tien jaar 36 miljard uitgeven aan woningbouw
6 oktober, 10:10
Het grootste deel van het geld, 33 miljard euro, moet gaan naar publieke investeringen in de woningbouw.
Ga naar het nieuws-archief
Robert Muis
Redacteur
1
0
0
0
Voor een optimale gebruikservaring plaatst Architectenweb functionele cookies. Wat de verschillende cookies precies doen leggen we uit in een
overzicht
. Cookies van social media kun je optioneel
aanzetten
.
Akkoord
Instellingen
Annuleren
OK
Sluiten
Doorgaan
Inloggen
Maak een gratis persoonlijk account aan
Feedback
Feedback
Wij horen graag jouw feedback. Laat je reactie achter en eventueel jouw e-mail adres.
Reactie
Verstuur