Projecten
Producten
Bedrijven
Vacatures
Agenda
Awards
Podcasts
more_horiz
Videos
Magazine
Favorieten
Profiel
Uitloggen
Abonneer je nu op onze nieuwsbrieven!
Abonneren
Nee, bedankt
Ja, denk met me mee rond de
materialisering van mijn project
Impressie woontoren De Vrijheid
Copyright: Sugarvisuals
Impressie woontoren De Vrijheid
Copyright: Sugarvisuals
Schets atrium De Vrijheid
Copyright: Atelier Kampe Thill architects and planners
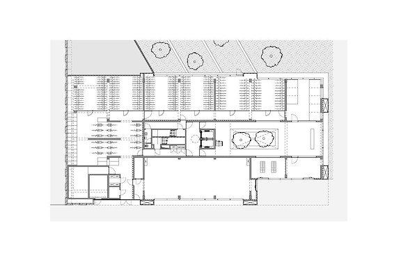
Begane grond
Copyright: Atelier Kampe Thill architects and planners
Verdieping
Copyright: Atelier Kampe Thill architects and planners
Doorsnede
Copyright: Atelier Kampe Thill architects and planners
Bouw woontoren De Vrijheid in Bajeskwartier Amsterdam gestart
1 december 2022, 12:00
In het Bajeskwartier in Amsterdam is, op het voormalige gevangenisterrein, de bouw gestart van woontoren De Vrijheid. Het gebouw biedt ruimte aan 140 appartementen in de sociale-huursector en is ontworpen door
Atelier Kempe Thill architects and planners
.
De Vrijheid verrijst op Kavel F en maakt deel uit van het masterplan voor het Bajeskwartier, dat is opgesteld door OMA in samenwerking met FABRICations and LOLA landscape architects. Het bijzonder compacte woongebouw is ontworpen met een groot centraal atrium van meer dan 20 meter hoogte. Deze binnenruimte moet bijdragen aan de sociale cohesie.
Tevens krijgt het gebouw een binnentuin, groot genoeg voor volwassen bomen, die toegankelijk is voor de bewoners. De 140 appartementen hebben een vloeroppervlakte van circa 48 m
2
, 70 m
2
en 80 m
2
. Elke woning heeft een eigen buitenruimte. Dankzij grote schuifpuien en royale balkons hebben de woningen panoramische uitzichten.
Ook worden twee groene dakterrassen gerealiseerd, voorzien van middelgrote bomen. Op de begane grond van het gebouw zijn een fietsenstalling en een commerciële ruimte opgenomen. Als bijzonderheid is een aantal originele elementen van de Bijlmer Bajes opgenomen in het ontwerp van het gebouw.
Het project gaat voldoen aan hoge energienormen, laat het architectenbureau weten. Ruim 500 m
2
aan zonnepanelen op het dak zorgt voor opwekking van elektriciteit. Onder andere middels meerdere groendaken wordt gestreefd naar versterking van de biodiversiteit en de opvang en verwerking van regenwater, aldus Atelier Kempe Thill.
Het project is ontworpen in opdracht van de Amsterdamse woningcorporatie De Alliantie en wordt gebouwd door Trebbe. Oplevering van woontoren De Vrijheid wordt verwacht in de zomer van 2024.
Trefwoorden
atelier kempe thill
sociale huur
bajeskwartier
amsterdam
woontoren
woningbouw
gebiedstransformatie
bijlmerbajes
Locatie
Best gelezen
1
Woontoren Front door Monadnock wint tiende Architectuurprijs Nijmegen
donderdag, 9 april
2
Spoorwegverleden inspireert ontwerp woonblok Wisselspoor 10 in Utrecht
woensdag, 8 april
3
SeARCH en Heutink Groep winnen tender voor woongebouw Sluisbuurt
vrijdag, 10 april
4
Rotterdam mag woningen gaan bouwen aan de Parkhaven
woensdag, 8 april
5
KOW wint met Marker Woods tender voor nieuwe wijk Eschmarkerveld
woensdag, 8 april
Gerelateerde nieuwsberichten
Woonproject van Atelier Kempe Thill als baken aan het water
13 december 2023
Hoogste punt in Bajeskwartier
12 december 2023
Met ontwerp woontoren The Jay roept OMA oude Bijlmerbajes in herinnering
7 maart 2025
Startsein voor bouw The Starling in het Bajeskwartier gegeven
22 maart 2024
Atelier Kempe Thill geeft Brusselse flats met renovatie nieuwe uitstraling
26 januari 2024
OMA ontwerpt woontoren The Martin in Bajeskwartier als 'Japanse puzzel'
28 november 2024
Architectenweb symposium: nieuw elan voor sociale woningbouw
30 augustus 2023
Arons en Gelauff en Civic Architects presenteren ontwerp The Emerald in Bajeskwartier
17 juni 2025
Woontoren De Vrijheid door Atelier Kempe Thill in Bajeskwartier opgeleverd
1 september 2025
Architect Oliver Thill op 55-jarige leeftijd overleden
5 maart
Laatste fase voor omvangrijke gebiedstransformatie in Brussel dichterbij
25 april 2023
Mecanoo en KettingHuls presenteren ontwerp Amstel Design District
19 april 2023
Woontoren The Jay vult kavel van nooit gebouwde toren Bijlmerbajes
7 april 2023
Woonzorggebouw voor psychiatrische patiënten in Heist-op-den-Berg klaar
7 februari 2023
Ruim 8.400 woningen in aanbouw genomen in Amsterdam
25 januari 2023
Historie en verval Wintercircus Gent zichtbaar gelaten bij renovatie
9 november 2022
Uitbreiding hogeschoolcampus Mönchengladbach door team met Atelier Kempe Thill
6 oktober 2022
Samenwerkingsverband VORM wint tender voor kavels 2 en 3 Weespertrekvaartbuurt
2 september 2022
Team Atelier Kempe Thill mag Droogdokkensite Antwerpen herontwikkelen
25 januari 2022
Atelier Kempe Thill ontwerpt deel woningblok HafenCity Hamburg
19 januari 2022
De Harmonie in Antwerpen heeft zijn luister terug
13 december 2021
Atelier Kempe Thill wint competitie opleidingscentrum STEPS van KU Leuven
8 december 2021
Barcode Architects presenteert ontwerp woontoren Bajeskwartier
18 november 2021
Atelier Kempe Thill en Kaderstudio winnen competitie voor woningen in Elsene
9 november 2021
Bouw wooncomplex en hotel voor studenten Bajeskwartier gestart
20 oktober 2021
Atelier Kempe Thill en Canevas presenteren opgeleverde Infrabel Academy
11 oktober 2021
BDG ontwerpt multifunctioneel schoolgebouw Bajeskwartier
12 februari 2021
Ouderenwoningen in landelijke omgeving van Heist-op-den-Berg
3 december 2020
OMA, FABRICations en LOLA maken ontwerp herontwikkeling Bijlmerbajes
12 september 2017
Woonproject van Atelier Kempe Thill als baken aan het water
13 december 2023
Hoogste punt in Bajeskwartier
12 december 2023
Met ontwerp woontoren The Jay roept OMA oude Bijlmerbajes in herinnering
7 maart 2025
Startsein voor bouw The Starling in het Bajeskwartier gegeven
22 maart 2024
Atelier Kempe Thill geeft Brusselse flats met renovatie nieuwe uitstraling
26 januari 2024
OMA ontwerpt woontoren The Martin in Bajeskwartier als 'Japanse puzzel'
28 november 2024
Architectenweb symposium: nieuw elan voor sociale woningbouw
30 augustus 2023
Arons en Gelauff en Civic Architects presenteren ontwerp The Emerald in Bajeskwartier
17 juni 2025
Woontoren De Vrijheid door Atelier Kempe Thill in Bajeskwartier opgeleverd
1 september 2025
Architect Oliver Thill op 55-jarige leeftijd overleden
5 maart
Laatste fase voor omvangrijke gebiedstransformatie in Brussel dichterbij
25 april 2023
Mecanoo en KettingHuls presenteren ontwerp Amstel Design District
19 april 2023
Woontoren The Jay vult kavel van nooit gebouwde toren Bijlmerbajes
7 april 2023
Woonzorggebouw voor psychiatrische patiënten in Heist-op-den-Berg klaar
7 februari 2023
Ruim 8.400 woningen in aanbouw genomen in Amsterdam
25 januari 2023
Historie en verval Wintercircus Gent zichtbaar gelaten bij renovatie
9 november 2022
Uitbreiding hogeschoolcampus Mönchengladbach door team met Atelier Kempe Thill
6 oktober 2022
Samenwerkingsverband VORM wint tender voor kavels 2 en 3 Weespertrekvaartbuurt
2 september 2022
Team Atelier Kempe Thill mag Droogdokkensite Antwerpen herontwikkelen
25 januari 2022
Atelier Kempe Thill ontwerpt deel woningblok HafenCity Hamburg
19 januari 2022
De Harmonie in Antwerpen heeft zijn luister terug
13 december 2021
Atelier Kempe Thill wint competitie opleidingscentrum STEPS van KU Leuven
8 december 2021
Barcode Architects presenteert ontwerp woontoren Bajeskwartier
18 november 2021
Atelier Kempe Thill en Kaderstudio winnen competitie voor woningen in Elsene
9 november 2021
Bouw wooncomplex en hotel voor studenten Bajeskwartier gestart
20 oktober 2021
Atelier Kempe Thill en Canevas presenteren opgeleverde Infrabel Academy
11 oktober 2021
BDG ontwerpt multifunctioneel schoolgebouw Bajeskwartier
12 februari 2021
Ouderenwoningen in landelijke omgeving van Heist-op-den-Berg
3 december 2020
OMA, FABRICations en LOLA maken ontwerp herontwikkeling Bijlmerbajes
12 september 2017
Toon alles
Andere nieuwsberichten
BURA, LOLA en Goudappel maken plan voor vernieuwing stationsgebied Haarlem
54 minuten geleden
De bureaus mogen onder meer een het busstation en de openbare ruimte herinrichten, de mogelijkheden voor fietsparkeren uitbreiden en een plan maken voor de sloop en nieuwbouw van het Beresteyncomplex tegenover het station.
Voormalig hoofdkantoor Ferro in M4H verbouwd tot bedrijfsverzamelgebouw
2 uur geleden
Naar ontwerp van GROUP A werd het voormalige hoofdkantoor van chemiebedrijf Ferro verbouwd tot een bedrijfsverzamelgebouw voor jonge (maritieme) maakbedrijven, die zich bezighouden met energietransitie, mobiliteit en circulariteit.
Tien bureaus geselecteerd voor tweede ronde nieuwbouw De Meervaart
3 uur geleden
Het tiental bureaus mag een ‘pre-visie’ op de ontwerpopgave maken voor het theatergebouw, dat aan de zuidwestoever van de Sloterplas komt te staan.
Architect Cees Dam op 93-jarige leeftijd overleden
Gisteren, 14:35
De oprichter van Dam & Partners architecten ontwierp onder meer de Stopera in Amsterdam (samen met Wilhelm Holzbauer), het stadhuis van Almere en het Huis van de Toekomst in Rosmalen.
Geen rechtszaak over subsidie ministerie aan Van Gogh Museum
3 uur geleden
De zaak draait om geld dat het museum nodig zegt te hebben voor een renovatie.
AFM: funderingsproblemen bij bijna 220.000 woningen
Gisteren, 13:25
De huizen van bijna een half miljoen woningeigenaren hebben een hoog risico op funderingsproblemen of een mogelijke kwetsbare fundering.
Oprichter omgevallen vastgoedconcern Evergrande bekent schuld
Gisteren, 09:17
Evergrande was ooit de grootste projectontwikkelaar van China, maar kwam in de problemen toen het zijn schulden niet kon terugbetalen.
Grote en kleine gemeenten balen van bouwregels Zuid-Holland
10 april, 4:31
Grote en kleine gemeenten in Zuid-Holland hebben hun zorgen geuit over nieuwe regels van de provincie, die volgens hen de woningbouw belemmeren.
Twijfels in Zuid-Holland over halen van doelen landelijk gebied
10 april, 12:18
De meeste partijen in de Zuid-Hollandse politiek hebben twijfels over de plannen die in zestien deelgebieden zijn gemaakt voor de aanpak van het landelijk gebied.
Huurprijzen stijgen harder dan koopwoningprijzen
10 april, 9:31
Volgens Huurwoningen.nl en Pararius moesten nieuwe huurders in het eerste kwartaal gemiddeld 21,12 euro per vierkante meter per maand neerleggen.
Ga naar het nieuws-archief
Robert Muis
Redacteur
0
0
0
0
Voor een optimale gebruikservaring plaatst Architectenweb functionele cookies. Wat de verschillende cookies precies doen leggen we uit in een
overzicht
. Cookies van social media kun je optioneel
aanzetten
.
Akkoord
Instellingen
Annuleren
OK
Sluiten
Doorgaan
Inloggen
Maak een gratis persoonlijk account aan
Feedback
Feedback
Wij horen graag jouw feedback. Laat je reactie achter en eventueel jouw e-mail adres.
Reactie
Verstuur