Projecten
Producten
Bedrijven
Vacatures
Agenda
Awards
Podcasts
more_horiz
Videos
Magazine
Thema's
Favorieten
Profiel
Uitloggen
Sporthal
Copyright: Jeroen Verrecht
Patio
Copyright: Jeroen Verrecht
Amal Amjahid aan het Kanaal
Copyright: Jeroen Verrecht
Amal Amjahid aan het Kanaal
Copyright: Jeroen Verrecht
Reuzengalerij, exterieur
Copyright: Jeroen Verrecht
Reuzengalerij
Copyright: Jeroen Verrecht
Reuzengalerij, interieur
Copyright: Jeroen Verrecht
Reuzengalerij
Copyright: Jeroen Verrecht
Cafetaria
Copyright: Jeroen Verrecht
Cafetaria
Copyright: Jeroen Verrecht
Gym
Copyright: Jeroen Verrecht
Sporthal
Copyright: Jeroen Verrecht
Bokszaal
Copyright: Jeroen Verrecht
Patio
Copyright: Jeroen Verrecht
Patio, gang kleedkamers
Copyright: Jeroen Verrecht
Kinderdagverblijf
Copyright: Jeroen Verrecht
Kinderdagverblijf
Copyright: Jeroen Verrecht
Kinderdagverblijf
Copyright: Jeroen Verrecht
Tuinen voor de Kleintjes
Copyright: Jeroen Verrecht
Tuinen voor de Kleintjes
Copyright: Jeroen Verrecht
Reuzengalerij
Copyright: Jeroen Verrecht
Arcades en Reuzengalerij
Copyright: Bogdan & Van Broeck
Entree en constructie
Copyright: Bogdan & Van Broeck
Reuzengalerij
Copyright: Bogdan & Van Broeck
Isometrie
Copyright: Bogdan & Van Broeck
Isometrie
Copyright: Bogdan & Van Broeck
Isometrie
Copyright: Bogdan & Van Broeck
Programma
Copyright: Bogdan & Van Broeck
Langsdoorsnede
Copyright: Bogdan & Van Broeck
Dwarsdoorsnede
Copyright: Bogdan & Van Broeck
Kelder
Copyright: Bogdan & Van Broeck
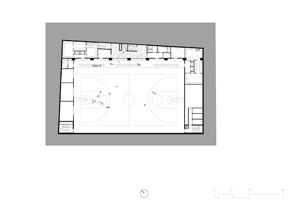
Begane grond
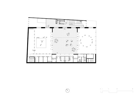
Copyright: Bogdan & Van Broeck
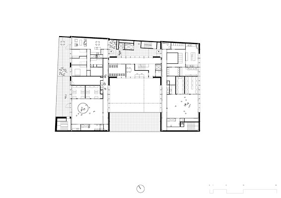
Eerste verdieping
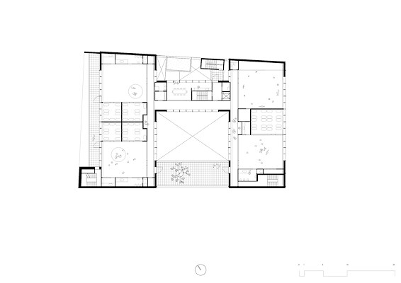
Copyright: Bogdan & Van Broeck
Tweede verdieping
Copyright: Bogdan & Van Broeck
Derde verdieping
Copyright: Bogdan & Van Broeck
Situatie
Copyright: Bogdan & Van Broeck
Multifunctioneel gebouw van Bogdan & Van Broeck verbindt Molenbeek en de kaai
14 september 2022, 11:56
Langs het kanaal van Brussel, op de grens van Molenbeek, is het project Amal Amjahid opgeleverd. Het gebouw biedt ruimte aan een sporthal, een boksclub en een kinderdagverblijf. Een centrale patio en een galerij met royale bogen spelen belangrijke rollen in het ontwerp van
Bogdan & Van Broeck
.
Het project Amal Amjahid is tot stand gekomen in opdracht van de gemeente Sint-Jans-Molenbeek en maakt deel uit van het ontwikkelingsplan voor het Kanaallandschap. Het geldt als het paradepaard van het actieplan Duurzaam Wijkcontract Rond Leopold II, legt Bogdan & Van Broeck uit.
Het publieke en multifunctionele gebouw, gesitueerd aan de Koolmijnenkaai, biedt een kans om een betere verbinding tot stand te brengen tussen de oevers van het Kanaal en de achterliggende Molenbeekse wijken. Aan de overzijde van het Kanaal strekken zich de wijken Dansaert en Kaaienwijk uit richting het historisch centrum van Brussel.
Programma
Amal Amjahid biedt plaats aan een grote sporthal, een zaal voor boksen en andere vechtsporten en een kinderdagverblijf voor 84 kinderen. Dit programma is georganiseerd rond een aantal gemeenschappelijke, dan wel buitenruimten, die de Reuzengalerij, de Patio van de Krachtpaters en de Tuinen van de Kleintjes zijn genoemd.
Hoewel het omwille van het draagvermogen logisch zou zijn het grote, lege volume van de sporthal bovenin het gebouw te plaatsen , heeft Bogdan & Van Broeck anders gekozen. Het bureau heeft dit grote volume op de lagere niveaus van het gebouw gesitueerd om een aantal redenen: het vergemakkelijken van de toegang tot de sporthal, de zichtbaarheid ervan vanaf de straat en daglichtinval in alle ruimten.
Buitenruimten
De verdiepingen voor de vechtsporten het kinderdagverblijf zijn op de sporthal geplaatst, rond een centrale patio die zich dus over drie verdiepingen uitstrekt. Op de eerste verdieping bevinden zich de bokszaal en een multifunctionele ruimte; het kinderdagverblijf en de conciƫrgewoning bevinden zich op de twee hogere verdiepingen.
De centrale Patio van de Krachtpatsers brengt niet alleen daglicht in het hart van het project, maar verbindt ook de verschillende ruimten. De buitenruimte maakt het tevens mogelijk om ā bijvoorbeeld tijdens evenementen ā de bezoekerscapaciteit te vergroten.
Het kinderdagverblijf heeft op verschillende plekken langs de gevels en op beide niveaus buitenruimten. Deze Tuinen voor de Kleintjes zijn geschikt om bij mooi weer buiten te spelen of voor de kleinen activiteiten te organiseren.
Bogengalerij
Vanaf de Koolmijnenkaai langs het Kanaal tot aan de Werkhuizenstraat strekt zich de Reuzengalerij als royale ontvangstruimte van het gebouw. De Reuzengalerij ontsluit alle functie in het gebouw. Enorme bogen accentueren de galerij en verbinden welhaast symbolisch de kaai van het Kanaal met de (voormalige) waterloop Kleine Zenne in Molenbeek. De bogen spelen echter ook een essentiƫle rol vanuit constructief oogpunt.
Om de keuze voor de programmatische indeling te kunnen verwezenlijken, dragen de wand met bogen en de scheidingsmuur aan de andere gebouwzijde vier grote metalen vakwerken. Deze vakwerken (ātrussesā- wat lang de werktitel van het gebouw was) zijn elk twee verdiepingen hoog. Ze werden over water naar de bouwplaats vervoerd, vertelt het architectenbureau.
āHet Amal Amjahid-project bevestigt hiermee het belang van water in de stadā, stelt Bogdan & Van Broeck. āVanaf de start van het ontwerp is rekening gehouden met het bouwproces en de transportmiddelen.ā
Het project is een voorbeeld van het concept āsmart shell - low techā, legt het bureau verder uit. Het gebouw is passief, zonder gebruik van complexe technologie. Een sterk geĆÆsoleerd geprefabriceerd houten geraamte omhult alle volumes van het project. Nachtkoelingsschoorstenen zorgen voor natuurlijke ventilatie van de ruimtes in de zomer en benutten de thermische massa van de structuur.
Participatief
Het project is tot stand gekomen in een participatief proces. Het ontwerp is herhaaldelijk herzien en aangepast in overleg met de belanghebbenden: overheid, toekomstige gebruikers en omwonenden. De inwoners van Molenbeek konden stemmen voor een naam voor het project. Ze kozen voor de naam van de jonge Amal Amjahid - een vechtsportkampioene die Belgiƫ en Molenbeek vertegenwoordigt in talrijke internationale toernooien.
Trefwoorden
brussel
belgië
sporthal
sportgebouw
publiek gebouw
bogdan & van broeck
sport
kinderdagverblijf
sint-jans-molenbeek
Locatie
Best gelezen
1
Spectaculaire overkapping voor vernieuwd Arnhems busstation Kronenburg
maandag, 3 november
2
Vakwerk Architecten uitgeroepen tot Architect van het Jaar 2025
woensdag, 5 november
3
Groot Egyptisch Museum naar ontwerp van Heneghan Peng en West 8 officieel geopend
maandag, 3 november
4
Fenix, kunstmuseum over migratie, is Publiek gebouw van het Jaar 2025
woensdag, 5 november
5
NOAHH ontwerpt nieuw zwembad in Noordersportpark Haarlem
dinsdag, 4 november
Gerelateerde nieuwsberichten
Molenbeek krijgt met Truss een multifunctioneel en ruimtelijk gebouw
29 april 2019
Ontwerp voor opvangcentrum drugsgebruikers in Brusselse kanaalzone onthuld
13 oktober 2021
Winnend ontwerp van Bogdan & Van Broeck en Shift voor Rozemaai in Antwerpen
21 december 2020
Bogdan & Van Broeck ontwerpt brandweerkazerne met buurtsporthal in Anderlecht
26 november 2020
Oproep voor ontwerp grootschalige studentenhuisvesting in Elsene
9 april 2024
Proximus-torens in Brussel herontwikkeld door team met Neutelings Riedijk
15 juli 2022
Voormalig kantoorgebouw getransformeerd tot gemeentehuis Ukkel
25 maart 2022
Atelier Kempe Thill en Kaderstudio winnen competitie voor woningen in Elsene
9 november 2021
Atelier Kempe Thill en Canevas presenteren opgeleverde Infrabel Academy
11 oktober 2021
Winnend plan van Civic Architects, BC architects en AWB voor cultuurcentrum Brussel
14 september 2021
Ceremoniële ruimte voor water op Brusselse Kunstberg
17 augustus 2021
Aarlen-Triergebouw in Brussel krijgt ingrijpende renovatie met behoud architectuur
15 juni 2021
OKRA en BRUT ontwerpen nieuw stadspark in Brussel
16 april 2021
Appartementengebouw in hsb frist hart van Marollenwijk op
30 maart 2021
Art nouveau-herenhuis in Brussel transformeert naar museum
29 maart 2021
Vijftiende Architectuurboek Vlaanderen houdt vakgebied spiegel voor
13 oktober 2022
Groen licht voor transformatie historisch pand aan Beursplein Brussel
22 november 2022
Leo Van Broeck treedt terug uit Bogdan & Van Broeck
24 januari 2023
Consortium bekend voor eerste fase grootschalige herontwikkeling Josaphat
2 mei 2023
Molenbeek krijgt met Truss een multifunctioneel en ruimtelijk gebouw
29 april 2019
Ontwerp voor opvangcentrum drugsgebruikers in Brusselse kanaalzone onthuld
13 oktober 2021
Winnend ontwerp van Bogdan & Van Broeck en Shift voor Rozemaai in Antwerpen
21 december 2020
Bogdan & Van Broeck ontwerpt brandweerkazerne met buurtsporthal in Anderlecht
26 november 2020
Oproep voor ontwerp grootschalige studentenhuisvesting in Elsene
9 april 2024
Proximus-torens in Brussel herontwikkeld door team met Neutelings Riedijk
15 juli 2022
Voormalig kantoorgebouw getransformeerd tot gemeentehuis Ukkel
25 maart 2022
Atelier Kempe Thill en Kaderstudio winnen competitie voor woningen in Elsene
9 november 2021
Atelier Kempe Thill en Canevas presenteren opgeleverde Infrabel Academy
11 oktober 2021
Winnend plan van Civic Architects, BC architects en AWB voor cultuurcentrum Brussel
14 september 2021
Ceremoniële ruimte voor water op Brusselse Kunstberg
17 augustus 2021
Aarlen-Triergebouw in Brussel krijgt ingrijpende renovatie met behoud architectuur
15 juni 2021
OKRA en BRUT ontwerpen nieuw stadspark in Brussel
16 april 2021
Appartementengebouw in hsb frist hart van Marollenwijk op
30 maart 2021
Art nouveau-herenhuis in Brussel transformeert naar museum
29 maart 2021
Vijftiende Architectuurboek Vlaanderen houdt vakgebied spiegel voor
13 oktober 2022
Groen licht voor transformatie historisch pand aan Beursplein Brussel
22 november 2022
Leo Van Broeck treedt terug uit Bogdan & Van Broeck
24 januari 2023
Consortium bekend voor eerste fase grootschalige herontwikkeling Josaphat
2 mei 2023
Toon alles
Gerelateerde podcasts
Gesprek met Oana Bogdan en Jan Peter Wingender over de lage honoraria in België en de wankele cao in Nederland
1 februari 2024
Andere nieuwsberichten
Campus met onderwijs en woningen in 's Hertogenbosch officieel geopend
7 november, 2:56
Op de laatste twee bouwkavels van het Paleiskwartier aan de Onderwijsboulevard 300 ontwikkelden Avans Hogeschool en BrabantWonen 20.000 vierkante onderwijsgebouw en 124 studentenwoningen op een parkeergarage.
Voorlopig ontwerp renovatie en verduurzaming provinciehuis Utrecht gepresenteerd
7 november, 11:44
Behalve dat het energielabel van het dertig jaar oude gebouw fors wordt opgekrikt, krijgen de werkplekken, vergaderruimtes en openbare ruimtes een eigentijdse en volgens de provincie uitnodigende inrichting. INBO is verantwoordelijk voor het ontwerp.
Mix van oude en nieuwe werken plus wereldrecordpoging tijdens GLOW 2025
7 november, 9:29
Zaterdag opent de Eindhovense burgemeester Jeroen Dijsselbloem de twintigste editie van GLOW. Tijdens deze jubileumeditie van het lichtkunstfestival zijn nieuwe creaties te zien en worden bekende werken uit het verleden nogmaals getoond.
Foto's uitreiking Architectenweb Awards 2025
6 november, 8:45
Op woensdagavond 5 november 2025 zijn in het Keilepand in Rotterdam de Architectenweb Awards 2025 uitgereikt. Architectuurfotograaf Jan Paul Mioulet / DAPh maakte een beeldverslag van deze feestelijke avond.
Limburgse politiek ondanks zorgen akkoord met energiemaatschappij
7 november, 1:39
De provincie Limburg krijgt een eigen energiemaatschappij.
Provincie Zuid-Holland steekt āgeen cent extraā in warmtenetwerk
7 november, 10:28
Het ministerie vroeg om een extra bijdrage voor een ondergronds leidingnetwerk waarmee tienduizenden woningen worden verwarmd met restwarmte uit de Rotterdamse haven.
Provincies focussen op agrarisch natuurbeheer tegen stikstof
6 november, 3:11
De betrokken partijen hebben daarover afspraken gemaakt, maar benadrukken dat steun van de rijksoverheid nodig blijft.
Corporatiewoning harder geraakt door klimaatverandering
6 november, 10:46
Bewoners van de onderzochte woningen hebben bijvoorbeeld vaker last van hittestress door warme nachten en krijgen vaker te maken met wateroverlast bij hevige buien.
Arons en Gelauff benoemt drie associates
4 november, 12:05
Eva Heldeweg, Gijs Beckman en Thom Zijlstra zijn benoemd tot associate partner bij Arons en Gelauff architecten.
DigiBouw 2025 ā enkele tips
4 november, 11:14
Op 19 en 20 november 2025 vindt in het Beatrixgebouw van de Jaarbeurs in Utrecht de tweede editie van DigiBouw plaats. Enkele tips voor sessies die voor architecten van toegevoegde waarde zijn.
Ga naar het nieuws-archief
Robert Muis
Redacteur
1
0
0
0
Voor een optimale gebruikservaring plaatst Architectenweb functionele cookies. Wat de verschillende cookies precies doen leggen we uit in een
overzicht
. Cookies van social media kun je optioneel
aanzetten
.
Akkoord
Instellingen
Annuleren
OK
Sluiten
Doorgaan
Inloggen
Maak een gratis persoonlijk account aan
Feedback
Feedback
Wij horen graag jouw feedback. Laat je reactie achter en eventueel jouw e-mail adres.
Reactie
Verstuur