Projecten
Producten
Bedrijven
Vacatures
Agenda
Awards
Podcasts
more_horiz
Videos
Magazine
Thema's
Favorieten
Profiel
Uitloggen
Copyright: Bogdan & Van Broeck
Copyright: Bogdan & Van Broeck
Copyright: Bogdan & Van Broeck
Copyright: Bogdan & Van Broeck
Isometrie Truss
Copyright: Bogdan & Van Broeck
Doorsnede
Copyright: Bogdan & Van Broeck
Dwarsdoorsnede
Copyright: Bogdan & Van Broeck
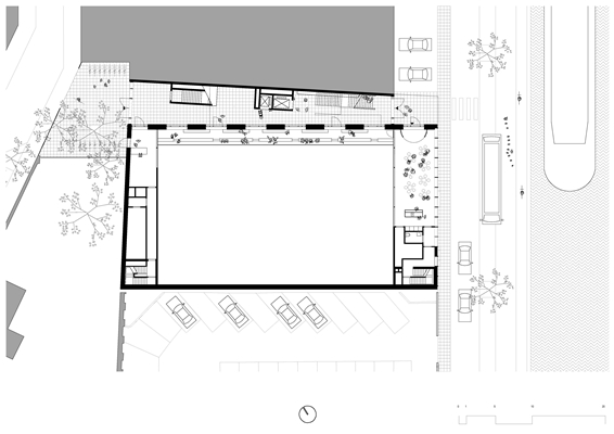
Plattegrond -1
Copyright: Bogdan & Van Broeck
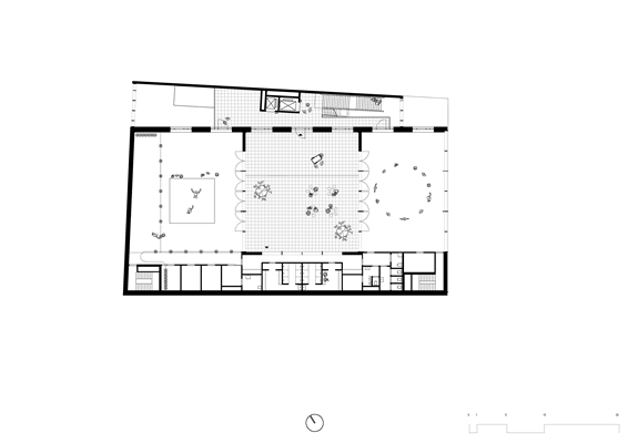
Plattegrond 0
Copyright: Bogdan & Van Broeck
Plattegrond +1
Copyright: Bogdan & Van Broeck
Plattegrond +2
Copyright: Bogdan & Van Broeck
Plattegrond +3
Copyright: Bogdan & Van Broeck
Molenbeek krijgt met Truss een multifunctioneel en ruimtelijk gebouw
29 april 2019, 11:22
Aan het kanaal in Sint-Jans-Molenbeek (kortweg Molenbeek) verrijst het gebouw Truss, dat onderdak gaat bieden aan een gemengd programma. Het Brusselse bureau
Bogdan & Van Broeck
heeft het project ontworpen rond drie open ruimten, die verschillende functies in Truss kadreren en ondersteunen.
Truss gaat ruimte bieden aan een sporthal, boksschool, cafetaria, kinderdagverblijf en een woning. Als verbindende gebieden fungeren drie grote open ruimten: een entreegalerij, een centrale patio en een āhangendeā tuin, die twee vleugels van de derde verdieping verbindt.
Door hun ruimtelijke configuratie en positie binnen het gebouw, biedt elk van deze open ruimten specifieke toegangsmogelijkheden, lichtinval en materialiteit, legt het architectenbureau uit. Daarbij kadreren ze de verschillende functies in het gebouw en ondersteunen de sociale interactie tussen de diverse gebruikers.
Verbinding
De patio vormt de visuele verbinding tussen de uiteenlopende functies; de boksschool treft hier de horeca en het kinderdagverblijf heeft uitzicht op de sportieve activiteiten. De galerij draagt bij aan de porositeit van de buurt; daarnaast kan de galerij als uitbreiding van de sporthal dienen, als dat gewenst is.
De hangende tuin is een natuurlijke uitbreiding van het kinderdagverblijf, dat gesitueerd is op de hogere verdiepingen. De buitenruimte biedt een fraai uitzicht over de stad.
Vakwerken
De grote overspanningen die de open ruimten vragen heeft het architectenbureau opgelost met vier vakwerken. Deze vakwerken strekken over de diepte van het gebouw en over de tweede en derde verdieping.
Het project biedt een totaal oppervlak van 4.806 m², op een kavel van 1.213 m². Met zijn ontwerp won Bogdan & Van Broeck in 2015 de competitie, die was uitgeschreven door de gemeente Sint-Jans-Molenbeek. De oplevering wordt verwacht in het begin van 2020.
Trefwoorden
sint-jans-molenbeek
belgië
bogdan & van broeck
sportaccomodatie
kinderdagverblijf
brussel
Locatie
Best gelezen
1
Rotterdam verleent bouwvergunning voor Schieblokken
vrijdag, 28 november
2
Nieuw voorstel voor renovatie en uitbreiding De Kuip
woensdag, 26 november
3
MORE Architecture en Studio Nauta ontwerpen woontoren midden op Katendrecht
donderdag, 27 november
4
Gemeenteraad stelt gebiedsvisie voor Bussum-Zuid vast
donderdag, 27 november
5
Schiphol investeert tien miljard in nieuwe terminal en andere infrastructuur
woensdag, 26 november
Gerelateerde nieuwsberichten
WTC Brussel wordt multifunctioneel complex
4 april 2019
Multifunctioneel gebouw van Bogdan & Van Broeck verbindt Molenbeek en de kaai
14 september 2022
Eigentijdse verfrissing voor interieur markante toren
18 januari 2019
Collectieve ruimten als belangrijk deel van woningbouwproject
2 mei 2019
Bogdan & Van Broeck ontwerpt brandweerkazerne met buurtsporthal in Anderlecht
26 november 2020
Ontwerpteam voor herbestemming Rijkswachtschool Elsene gekozen
2 oktober 2018
BAM verwerft twee projecten met gemengd programma in Brussel
29 augustus 2018
Winnend plan in Brussel voor MLA+ en Korteknie Stuhlmacher
19 juli 2018
Ontwerp voor opvangcentrum drugsgebruikers in Brusselse kanaalzone onthuld
13 oktober 2021
Prijsvraag voor groot Europees bouwproject in Brusselse Wetstraat
29 maart 2018
Schumanplein Brussel wordt 'agora' voor voetgangers
11 december 2017
Winnend ontwerp van Bogdan & Van Broeck en Shift voor Rozemaai in Antwerpen
21 december 2020
Leo van Broeck wordt Vlaams Bouwmeester
8 juli 2016
Vlaamse architectuur vertaald naar andere stedelijke contexten
21 januari 2020
Boek over dromenjagers in het gehate Brussel
24 mei 2019
Brussel schrijft aanbesteding uit voor cultureel centrum Molenbeek
5 oktober 2020
OKRA en BRUT ontwerpen nieuw stadspark in Brussel
16 april 2021
Leo Van Broeck treedt terug uit Bogdan & Van Broeck
24 januari 2023
WTC Brussel wordt multifunctioneel complex
4 april 2019
Multifunctioneel gebouw van Bogdan & Van Broeck verbindt Molenbeek en de kaai
14 september 2022
Eigentijdse verfrissing voor interieur markante toren
18 januari 2019
Collectieve ruimten als belangrijk deel van woningbouwproject
2 mei 2019
Bogdan & Van Broeck ontwerpt brandweerkazerne met buurtsporthal in Anderlecht
26 november 2020
Ontwerpteam voor herbestemming Rijkswachtschool Elsene gekozen
2 oktober 2018
BAM verwerft twee projecten met gemengd programma in Brussel
29 augustus 2018
Winnend plan in Brussel voor MLA+ en Korteknie Stuhlmacher
19 juli 2018
Ontwerp voor opvangcentrum drugsgebruikers in Brusselse kanaalzone onthuld
13 oktober 2021
Prijsvraag voor groot Europees bouwproject in Brusselse Wetstraat
29 maart 2018
Schumanplein Brussel wordt 'agora' voor voetgangers
11 december 2017
Winnend ontwerp van Bogdan & Van Broeck en Shift voor Rozemaai in Antwerpen
21 december 2020
Leo van Broeck wordt Vlaams Bouwmeester
8 juli 2016
Vlaamse architectuur vertaald naar andere stedelijke contexten
21 januari 2020
Boek over dromenjagers in het gehate Brussel
24 mei 2019
Brussel schrijft aanbesteding uit voor cultureel centrum Molenbeek
5 oktober 2020
OKRA en BRUT ontwerpen nieuw stadspark in Brussel
16 april 2021
Leo Van Broeck treedt terug uit Bogdan & Van Broeck
24 januari 2023
Toon alles
Andere nieuwsberichten
Nederlands Fotomuseum toont fotografische verbeelding van Rotterdam
4 uur geleden
Op 7 februari opent het Nederlands Fotomuseum zijn deuren in het voormalige pakhuis Santos in Rotterdam. Een van de openingstentoonstellingen is Rotterdam in focus. Fotografie van de stad 1843.
Vocus Architecten verbouwt historische tramremise tot supermarkt
Vandaag, 14:23
In Elburg heeft Vocus Architecten een voormalige tramremise getransformeerd tot supermarkt. De twee historische bouwdelen uit het einde van de achttiende eeuw zijn gerenoveerd en er is een nieuw entreegebouw aan het complex toegevoegd.
Veel Nederlandse winnaars bij de Archello Awards 2025
Vandaag, 12:00
Vooral in de categorieën rond woningbouw, scholenbouw en publieke gebouwen wisten Nederlandse bureaus veel prijzen te winnen.
Ibelings van Tilburg geeft boerderij met monumentale schuur in Zoetermeer woonbestemming
Vandaag, 11:34
Het woonhuis behield zijn functie, in de monumentale Groningse driekapsschuur zijn tien woningen gerealiseerd en op het erf achter de schuur is een houten schuurwoning gebouwd, mede om het plan financieel levensvatbaar te maken.
Gelderland wil duurzame āhavenhubā aanleggen bij IJzendoorn
Vandaag, 13:13
Bij een Clean Energy Hub kunnen binnenvaartschepen schonere brandstoffen zoals bio-LNG bunkeren en groene stroom laden.
Schoof ziet actiepunten in klimaatadvies burgerberaad
Vandaag, 10:22
De demissionair premier herkent de wens van het kabinet voor een āhaalbaar en betaalbaarā klimaatbeleid in de aanbevelingen van 175 burgers.
Besluit over verdwijnen dorp Moerdijk halfjaar uitgesteld
Gisteren, 15:27
Het Rijk en de provincie Noord-Brabant willen pas in juni een besluit nemen over uitbreiding van het haven- en industriegebied in Moerdijk.
Amsterdam overweegt hogere toeristenbelasting in herbestemming panden te stoppen
Gisteren, 10:30
Het stadsbestuur overweegt de toeristenbelasting te verhogen als de landelijke btw-verhoging niet leidt tot een daling van het aantal toeristenovernachtingen.
Amsterdam zoekt vastgoedpartij die 'werkcorporatie' wil opzetten
28 november, 5:16
De Werkcorporatie Amsterdam moet helpen om kleinschalige en betaalbare bedrijfsruimtes voor bijvoorbeeld meubelmakers en loodgieters in de stad te realiseren.
Woningbezit investeerders neemt verder af in derde kwartaal
28 november, 2:38
De verkoopgolf van huurwoningen door investeerders hield in het derde kwartaal van dit jaar aan.
Ga naar het nieuws-archief
Robert Muis
Redacteur
0
0
0
0
Voor een optimale gebruikservaring plaatst Architectenweb functionele cookies. Wat de verschillende cookies precies doen leggen we uit in een
overzicht
. Cookies van social media kun je optioneel
aanzetten
.
Akkoord
Instellingen
Annuleren
OK
Sluiten
Doorgaan
Inloggen
Maak een gratis persoonlijk account aan
Feedback
Feedback
Wij horen graag jouw feedback. Laat je reactie achter en eventueel jouw e-mail adres.
Reactie
Verstuur