Abonneer je nu op onze nieuwsbrieven!
Abonneren
Nee, bedankt
Ja, denk met me mee rond de
materialisering van mijn project
Copyright: SO-IL
Copyright: SO-IL
Copyright: SO-IL
Copyright: SO-IL
Copyright: Naho Kubota / SO-IL
Copyright: Naho Kubota / SO-IL
Copyright: Naho Kubota / SO-IL
Copyright: Naho Kubota / SO-IL
Copyright: Naho Kubota / SO-IL
Copyright: Naho Kubota / SO-IL
Copyright: Naho Kubota / SO-IL
Copyright: Naho Kubota / SO-IL
Copyright: Naho Kubota / SO-IL
Copyright: Naho Kubota / SO-IL
Copyright: Naho Kubota / SO-IL
Copyright: Naho Kubota / SO-IL
Copyright: Naho Kubota / SO-IL
Copyright: Naho Kubota / SO-IL
Copyright: Naho Kubota / SO-IL
Copyright: Naho Kubota / SO-IL
Copyright: Naho Kubota / SO-IL
Copyright: SO-IL
Copyright: SO-IL
Copyright: SO-IL
Cultureel ensemble door
SO-IL in Brooklyn
Aan de rand van een industrieel gebied in het noorden van Brooklyn heeft SO-IL een ensemble van culturele gebouwen ontworpen. Het is een ensemble dat enerzijds de dialoog aangaat met zijn rauwe omgeving, maar dat anderzijds ook een stedelijke oase vormt waar kunst gemaakt en tentoongesteld kan worden.
Amant, zoals het ensemble is genoemd, is een culturele broedplaats. Kunstenaars worden uitgenodigd er een periode te werken en er hun werk tentoon te stellen. Met die hybride functie is het ensemble zowel publiek als privaat, legt SO-IL uit.

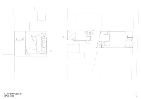
Het ensemble strekt zich uit over twee bouwblokken en bestaat uit vier gebouwen die in tweetallen een binnenruimte omsluiten. Het programma bestaat uit ateliers voor kunstenaars, verschillende tentoonstellingsruimtes, kantoren, ruimte voor performances en een café.

“Centraal in het ontwerp van Amant staat het idee van de stedelijke oase, een ruimte waar het tempo van kunst maken kan vertragen, om experimenten en reflectie mogelijk te maken”, aldus SO-IL. “Het ensemble gaat het gesprek aan met de eclectische postindustriële omgeving. Net zo bevordert de organisatie erbinnen de dialoog tussen kunstenaar, bezoeker en gemeenschap.”
Door Amant als een ensemble te ontwerpen, sluit het zich niet af van zijn omgeving, maar kan het echt de verbinding daarmee leggen, stelt SO-IL. De compacte buitenruimtes die de verschillende gebouwen omsluiten, zijn via verschillende routes te bereiken en creëren zo een nieuwe porositeit in de buurt. Waar de ene buitenruimte vormgegeven is als een tuin, is de ander vormgegeven als een klein pleintje. Beide vormen nieuwe rustpunten in het drukke New York.
Elk van de vier gebouwen in het ensemble biedt een andere tentoonstellingsruimte – in grootte, in ruimtelijke verhoudingen, in de kwaliteit van het licht, en wat betreft zijn faciliteiten. Het zorgt ervoor dat het ensemble een breed scala aan mogelijkheden biedt om kunst te exposeren – grote kunstwerken, hele kleine kunstwerken, lokale kunstenaars of internationale kunstenaars….
Tenslotte de materialisering van het ensemble. Met zijn rauwe en abstracte gevels sluit het goed aan bij zijn industriële context. Maar de verrassende tactiliteit van de gevels trekt het er ook los van. Het ter plaatse gestorte beton heeft een ribbel gekregen, de bakstenen zijn uit het vlak gedraaid, enzovoorts.

En dat vrijgevormde raam aan de straat? Dat is een knipoog naar het door Lina Bo Bardi ontworpen culturele ensemble Sesc Pompéia in São Paulo. Een architectonisch grapje.

Gerelateerde nieuwsberichten

Gerelateerde podcasts

Andere nieuwsberichten

PSV presenteert plannen voor uitbreiding Philips Stadion

Gisteren, 15:37

Rijkswaterstaat staakt renovatie markante houten Krùsrak-brug in Sneek

Gisteren, 11:32

KAAN Architecten en De Zwarte Hond winnen tender voor Area 19 TU Eindhoven

Gisteren, 10:35

Projecten gezocht voor vijfde Adriaan Dessingprijs

19 maart, 2:42

Friesland brengt duizenden karakteristieke boerderijen in kaart

Gisteren, 14:16

ING: bijna de helft van de huiseigenaren stelt verduurzaming uit

Gisteren, 12:18

Rekenkamer kraakt resultaten EU-innovatiefonds voor verduurzaming

Gisteren, 09:25

Provincie schrapt beoogde locaties windturbines in Groene Hart

19 maart, 1:35

Staten Utrecht willen netcongestie versneld aanpakken

19 maart, 9:44

Rotterdam wil woningbouw versnellen met pilot ‘Ontwikkelaar aan Zet’

18 maart, 4:33
Michiel van RaaijHoofdredacteur
ATAG Nederland
KUBUS | Specialist in Archicad
SAPA
Reynaers Aluminium Nederland
Jansen
SAB-profiel bv
Aliplast Aluminium Systems
Kingspan Light & Air
ALUCOBOND®
Caparol
Tarkett BV
Kawneer
Grohe Nederland B.V.
Malaysian Timber Council
OCS | Office Cabling Systems
Swisspearl Nederland
Forster Nederland N.V.
VELUX Commercial Benelux B.V.
Sempergreen
Houthandel van Dam
Aluprof Nederland BV
QbiQ Wall Systems
Forbo Flooring
Schüco Nederland
Cedral
Sto Isoned bv
Triflex bv
Gorter Luiken BV
wienerberger
DUCO Ventilation & Sun Control
BEWI IsoBouw
ROCKWOOL B.V.
Mview+
Rockfon (ROCKWOOL B.V.)
Gira Nederland B.V.
Kingspan Geïsoleerde Panelen
GEZE Benelux  B.V.
Renson
Metaglas Groep
ABB | Busch-Jaeger
Jung | Hateha B.V.
Knauf B.V.
Saint-Gobain Glass Benelux
Faay Vianen B.V.
objectflor
Boon Edam Nederland B.V.
Hunter Douglas Architectural
VOLA Nederland BV
Forbo Eurocol Nederland B.V.
EQUITONE gevelpanelen
Holonite B.V.
Tata Steel Colorcoat®
Architectenweb
Over ons
Contact

© 2002 - 2026 Architectenweb BV / Voorwaarden / Privacy / Disclaimer / Sitemap
Annuleren
OK
Sluiten
Doorgaan
Inloggen
Maak een gratis persoonlijk account aan