Projecten
Producten
Bedrijven
Vacatures
Agenda
Awards
Podcasts
more_horiz
Videos
Magazine
Thema's
Favorieten
Profiel
Uitloggen
Abonneer je nu op onze nieuwsbrieven!
Abonneren
Nee, bedankt
Ja, denk met me mee rond de
materialisering van mijn project
Copyright: Maikel Samuels
Copyright: Dennis de Smet
Copyright: Dennis de Smet
Copyright: Dennis de Smet
Copyright: Dennis de Smet
Copyright: Dennis de Smet
Copyright: Dennis de Smet
Copyright: Dennis de Smet
Copyright: Dennis de Smet
Copyright: Dennis de Smet
Copyright: Dennis de Smet
Copyright: Dennis de Smet
Copyright: Dennis de Smet
Copyright: Dennis de Smet
Copyright: Dennis de Smet
Copyright: Dennis de Smet
Copyright: Dennis de Smet
Copyright: Dennis de Smet
Copyright: Dennis de Smet
Copyright: Dennis de Smet
Copyright: Dennis de Smet
Copyright: Dennis de Smet
Copyright: Marc Koehler Architects
Copyright: Marc Koehler Architects
Copyright: Marc Koehler Architects
Copyright: Marc Koehler Architects
Copyright: Marc Koehler Architects
Copyright: Marc Koehler Architects
Copyright: Marc Koehler Architects
Copyright: Marc Koehler Architects
Copyright: Marc Koehler Architects
Houten bibliotheek als verbinder voor Edegem
27 oktober 2021, 11:05
In het hart van de Antwerpse plaats Edegem staat een nieuwe bibliotheek, die zowel de fysieke omgeving als de lokale gemeenschap moet samenbrengen.
Marc Koehler Architects
ontwierp een multifunctioneel en open gebouw met een volledig massief houten constructie.
In 2015 schreven de gemeente Edegem en de Vlaams Bouwmeester een Open Oproep uit voor een vrijetijds- en kunstcentrum met bibliotheek in het centrum van het stadje. Daarbij wenste de gemeente dat het gebouw de sociale cohesie zou versterken en een standaard voor duurzaam ontwerp zou neerzetten, vertelt Marc Koehler Architects.
Sociaal hart
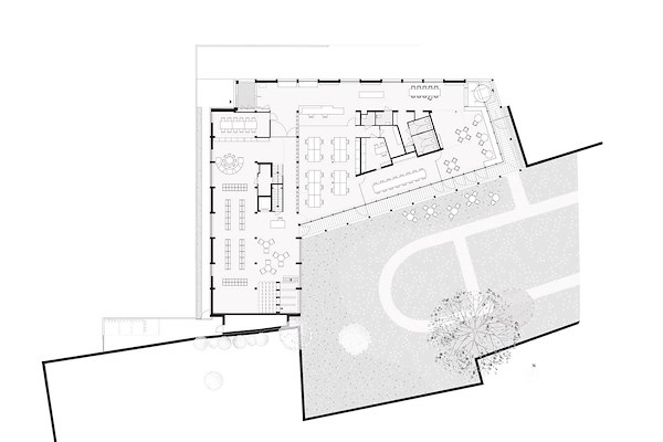
Het bureau heeft een gebouw uit twee paviljoenachtige houten volumes ontworpen, die het in een L-vorm heeft gepositioneerd. Ze scheiden een parkeerplaats van de historische tuin van Huis Hellemans, een villa in neo-Vlaamse renaissancestijl. Deze tuin functioneert nu als een rustige plek voor lezen en reflecteren, aldus de architecten.
Het nieuwe gebouw brengt een aantal functies samen, die eerder verspreid over de gemeente lagen, zoals de bibliotheek, expositieruimte en enkele administratieve diensten. Naast de bibliotheek- en expositieruimten biedt het gebouw onder andere een boekencafƩ en flexibele kantoorruimten voor verschillende maatschappelijke organisaties.
Verder zijn en ruimten voor cursussen, vergaderingen en bijeenkomsten van het lokale verenigingsleven. Een grote trap in het gebouw fungeert tevens als tribune, met uitzicht op de tuin. In totaal biedt het pand een oppervlakte van 2.180 m2.
Eenheid in omgeving
De omgeving van de nieuwbouw is een beschermd dorpsgezicht en kenmerkt zich door het naastgelegen 19
e
-eeuwse Huis Hellemans, een pastorie en historische tuinmuren en binnentuinen. Hierdoor straalt de omgeving een zekere rust uit, ook al ligt ze midden in het centrum, legt Marc Koehler Architects uit.
Op de locatie van het nieuwe bibliotheekgebouw lag echter een verwaarloosde en donkere parkeerplaats, die veelal werd gemeden. De nieuwbouw heeft dit veranderd in een aangename plek en brengt eenheid in de omgeving. De open, transparante architectuur van het gebouw draagt daar belangrijk aan bij, terwijl die bovendien levendigheid in het straatbeeld brengt
Hout en Hollandse klimaatgevel
Het gebouw is gerealiseerd met een prefab constructie uit CLT en ontworpen met het oog op flexibiliteit, vertelt het architectenbureau. De open ruimten die nu als bibliotheek dienen, zijn indien gewenst te transformeren voor andere functies.
De nieuwbouw is verder voorzien van een groendak, een slim ventilatiesysteem en een warmtepomp, en maakt gebruik van zonne-energie en grijs water. Omdat er gebruik wordt gemaakt van passieve zonne-energie heeft het architectenbureau een zogenoemde āHollandse klimaatgevelā toegepast.
Het zonnescherm bevindt zich achter de beglazing en bij veel zonlicht gaat het scherm automatisch omlaag. De warme lucht tussen scherm en beglazing stijgt op naar het plafond; tijdens de wintermaanden wordt de warme lucht gebruikt om andere ruimten te verwarmen en in de zomer wordt de lucht naar buiten afgevoerd.
Team
Marc Koehler Architects heeft de Open Oproep in 2015 gewonnen in een team met Delva Landscape Architecture / Urbanism en het Gentse bureau Architecten Delobelle. Delva Landscape is als landschapsarchitect alleen betrokken geweest in de tenderfase. Architecten Delobelle heeft in een vroeg stadium van het project het ontwerpteam verlaten. In het project hebben OSQB Architecten- en ingenieursbureau en Peritas Ingenieursbureau als partner en adviseur opgetreden.
Trefwoorden
bibliotheek
vrijetijds- en kunstcentrum
edegem
belgië
publiek gebouw
marc koehler architects
Locatie
Best gelezen
1
Een verbod op eengezinswoningen
dinsdag, 24 maart
2
Architectenweb symposium: ontwerpen van autovrije buurten
woensdag, 25 maart
3
MVSA Architects en Powerhouse Company ontwerpen dubbele woontoren bij Den Haag Centraal
maandag, 30 maart
4
Schiphol maakt nieuwe 'huisarchitecten' bekend
donderdag, 26 maart
5
Studioninedots ontwerpt zelfbouwwoning als landschap van gestapelde doosjes
woensdag, 25 maart
Gerelateerde nieuwsberichten
Edegem krijgt een nieuwe culturele 'hub'
1 april 2015
Jakoba Mulderhuis ā terrassen nodigen uit tot samenwerking en cross-overs
31 augustus 2022
Marc Koehler ā genomineerd voor prijs Architect van het Jaar 2021
8 september 2021
Houten stadsblok met Tiny Forest als middengebied markeert entree Centrumeiland
8 oktober 2021
Internationaal team met Marc Koehler maakt masterplan Thamesmead in Londen
3 mei 2021
Kantoorgebouw Koivistokade biedt ruimte voor functieverandering
17 augustus 2023
Marc Koehler Architects presenteert concept voor modulaire woningbouw in hout
16 juni 2023
Ruimtelijk en flexibel interieur voor OBA Mercatorplein
3 november 2021
Drie consortia geselecteerd om ontwerp te maken voor nieuwe bibliotheek met kantoren op de Zuidas
23 december 2021
Marc Koehler Associates ontwerpt ensemble van biobased en natuurinclusieve woongebouwen in Haarrijn
22 april 2025
Nederlands-IJslands ontwerpteam wint competitie centrale bibliotheek Reykjavik
1 december 2022
Nieuwe vestiging OBA Next Lab Kraaiennest uit houten prefab modules
10 december 2024
Lessen uit woningbouw in hout van Zuiver Bosrijk
3 maart 2023
Eric Thijssen benoemd tot managing partner Marc Koehler Architects Amsterdam
2 maart 2023
Team met B-architecten ontwerpt Stadskantoor als nieuw icoon voor Nieuwpoort
12 mei 2022
Boeken en kunst mengen zich in voormalig gemeentehuis
9 februari 2022
Nederlandse bureaus maken visie voor stadsdeel in Pforzheim
15 april 2021
Mei en Marc Koehler presenteren ontwerp Toren E in wijk SPOT
23 juni 2020
Zorg en regulier wonen gecombineerd in Het Dorp
10 januari 2020
Superlofts-project in Buiksloterham voltooid
7 maart 2019
Bouw Conradhuis Amsterdam van start
5 december 2018
Edegem krijgt een nieuwe culturele 'hub'
1 april 2015
Jakoba Mulderhuis ā terrassen nodigen uit tot samenwerking en cross-overs
31 augustus 2022
Marc Koehler ā genomineerd voor prijs Architect van het Jaar 2021
8 september 2021
Houten stadsblok met Tiny Forest als middengebied markeert entree Centrumeiland
8 oktober 2021
Internationaal team met Marc Koehler maakt masterplan Thamesmead in Londen
3 mei 2021
Kantoorgebouw Koivistokade biedt ruimte voor functieverandering
17 augustus 2023
Marc Koehler Architects presenteert concept voor modulaire woningbouw in hout
16 juni 2023
Ruimtelijk en flexibel interieur voor OBA Mercatorplein
3 november 2021
Drie consortia geselecteerd om ontwerp te maken voor nieuwe bibliotheek met kantoren op de Zuidas
23 december 2021
Marc Koehler Associates ontwerpt ensemble van biobased en natuurinclusieve woongebouwen in Haarrijn
22 april 2025
Nederlands-IJslands ontwerpteam wint competitie centrale bibliotheek Reykjavik
1 december 2022
Nieuwe vestiging OBA Next Lab Kraaiennest uit houten prefab modules
10 december 2024
Lessen uit woningbouw in hout van Zuiver Bosrijk
3 maart 2023
Eric Thijssen benoemd tot managing partner Marc Koehler Architects Amsterdam
2 maart 2023
Team met B-architecten ontwerpt Stadskantoor als nieuw icoon voor Nieuwpoort
12 mei 2022
Boeken en kunst mengen zich in voormalig gemeentehuis
9 februari 2022
Nederlandse bureaus maken visie voor stadsdeel in Pforzheim
15 april 2021
Mei en Marc Koehler presenteren ontwerp Toren E in wijk SPOT
23 juni 2020
Zorg en regulier wonen gecombineerd in Het Dorp
10 januari 2020
Superlofts-project in Buiksloterham voltooid
7 maart 2019
Bouw Conradhuis Amsterdam van start
5 december 2018
Toon alles
Gerelateerde podcasts
Gesprek met Marc Koehler over woningbouw waarin de wensen van bewoners centraal staat
19 juli 2019
Andere nieuwsberichten
Gebouw wooncoöperatie krijgt gevel van hergebruikte ventilatiekanalen
Gisteren, 16:04
Naar verwachting wordt begin volgend jaar gestart met de bouw van een woongebouw voor wooncoöperatie De Bonte Hulst in Amsterdam-Noord. Het gebouw in Buiksloterham is ontworpen door bureau SLA.
Jan Knikker vertrekt bij MVRDV
Gisteren, 14:46
Knikker, die sinds 2016 partner was bij MVRDV, heeft een belangrijke rol gespeeld bij de professionalisering van de pr- en acquisitieactiviteiten van MVRDV en de mede daaruit volgende groei van het bureau.
MVSA Architects en Powerhouse Company ontwerpen dubbele woontoren bij Den Haag Centraal
Gisteren, 13:19
RED Company heeft met Patrizia SE, Staedion en Bellevue CS The Hague overeenstemming bereikt over de ontwikkeling van de Bellevue-locatie pal naast Den Haag Centraal. Voor de bekroning van de twee torens liggen nog drie varianten op tafel.
Woonhuis tegen dijklichaam loopt door tafelconstructie af in hoogte
Gisteren, 12:13
Aan de rand van het Gelderse dorp Herwijnen is het door B2A ontworpen woonhuis Cascade opgeleverd. De 250 vierkante meter omvattende woning rust op een tafelvormige constructie van acht funderingskolommen tegen een dijklichaam.
OM vervolgt oud-werknemers Strukton na Saudische omkopingskwestie
Gisteren, 16:52
Eerder werd al bekend dat het bouwbedrijf voor tien miljoen euro heeft geschikt in de corruptiezaak.
Duitsland trekt acht miljard uit voor extra klimaatmaatregelen
Gisteren, 10:59
Het geld is onder andere bedoeld voor de bouw van extra windmolens en subsidies voor de aanschaf van elektrische auto's.
āTransformatie en optoppen levert tienduizenden woningen en klimaatwinst opā
27 maart, 11:53
Woningbouw vergt veel grondstoffen, maar de Wetenschappelijke Klimaatraad ziet veel mogelijkheden om het anders aan te pakken.
Zeeuwse Staten willen inspraak inwoners op groeiplan provincie
27 maart, 9:30
Meerdere Statenfracties in de provincie Zeeland hebben opgeroepen de inwoners op een goede wijze te betrekken bij het uitwerken van de strategische agenda 2050.
Minister: meer geld nodig voor Warmtefonds voor duurzamere woning
26 maart, 12:29
Boekholt gaat de komende tijd op zoek naar geld, zei ze in een debat met de Tweede Kamer.
Kadaster: nieuwbouwappartementen in trek bij oudere kopers
26 maart, 9:35
Als zij verhuisplannen hebben, willen ze vaker een nieuwbouwhuis dan andere leeftijdsgroepen en zijn ze vaker bereid verder weg te gaan dan jongere kopers.
Ga naar het nieuws-archief
Robert Muis
Redacteur
1
0
0
0
Voor een optimale gebruikservaring plaatst Architectenweb functionele cookies. Wat de verschillende cookies precies doen leggen we uit in een
overzicht
. Cookies van social media kun je optioneel
aanzetten
.
Akkoord
Instellingen
Annuleren
OK
Sluiten
Doorgaan
Inloggen
Maak een gratis persoonlijk account aan
Feedback
Feedback
Wij horen graag jouw feedback. Laat je reactie achter en eventueel jouw e-mail adres.
Reactie
Verstuur