Projecten
Producten
Bedrijven
Vacatures
Agenda
Awards
Podcasts
more_horiz
Videos
Magazine
Thema's
Favorieten
Profiel
Uitloggen
Abonneer je nu op onze nieuwsbrieven!
Abonneren
Nee, bedankt
Ja, denk met me mee rond de
materialisering van mijn project
Copyright: Sebastian van Damme
Copyright: Sebastian van Damme
Copyright: Sebastian van Damme
Copyright: Sebastian van Damme
Copyright: Sebastian van Damme
Copyright: Jordi Huisman
Copyright: Jordi Huisman
Copyright: Jordi Huisman
Copyright: Jordi Huisman
Copyright: Jordi Huisman
Copyright: Jordi Huisman
Copyright: Jordi Huisman
Copyright: Sebastian van Damme
Copyright: Sebastian van Damme
Copyright: Sebastian van Damme
Copyright: Sebastian van Damme
Copyright: Sebastian van Damme
Copyright: Sebastian van Damme
Copyright: Sebastian van Damme
Situatie
Copyright: GROUP A
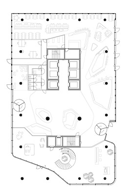
Begane grond
Copyright: GROUP A
'Indoorpark' elfde verdieping
Copyright: GROUP A
Twaalfde verdieping met mezzanine
Copyright: GROUP A
Kantoorverdieping
Copyright: GROUP A
Geveldetail
Copyright: GROUP A
Doorsnede
Copyright: GROUP A
Central Park-toren Utrecht klaar voor ingebruikname
21 oktober 2021, 16:58
Volgende maand wordt de negentig meter hoge kantoortoren Central Park in Utrecht in gebruik genomen. De nieuwe toren in het stationsgebied van de Domstad is vernoemd naar de subtropische binnentuin op 45 meter hoogte. Van buitenaf is dit ‘indoorpark’ zichtbaar als een onderbreking van het strakke grid dat de gevel van het door
GROUP A
ontworpen gebouw kenmerkt.
Het hoogbouwcomplex tussen het Utrechtse stadskantoor en de eveneens nieuwe toren De Syp is voorzien van een afwisselend bronskleurige en glazen gevel. Het strakke ritme wordt op de elfde en twaalfde verdieping onderbroken door een teruggelegen glazen deel met organisch vormgegeven randen aan de onder- en bovenkant.
Op deze verdiepingen ligt een semiopenbare binnenruimte met werkplekken, een vergadercentrum en een café. In de ruimte is een binnentuin gerealiseerd met ongeveer vijftig bomen en struiken, 1.500 subtropische planten, een beekje, een houten loopbrug en een bank. Het groenontwerp is verzorgd door
Moss Amsterdam
.
In dezelfde ruimte is (op de twaalfde verdieping) een eveneens organisch vormgegeven mezzanine rond een vrijstaande kern gerealiseerd. Deze tussenvloer biedt zicht op het ondergelegen ‘park’ en de wijde omgeving.
Flexibele verdiepingen
Het gebouw telt 23 flexibel in te delen en te gebruiken verdiepingen van elk 1.300 vierkante meter. Qua duurzaamheid is het ontwerp BREEAM Excellent gecertificeerd, onder meer dankzij toepassing van technologische oplossingen voor binnenklimaat en gebruiksgemak. Naar verwachting voldoet het gebouw wat betreft energiegebruik aan de klimaatdoelstellingen van Parijs, meldt GROUP A.
Central Park sluit aan op Het Forum, het verhoogde en groene plein rond station Utrecht Centraal dat eveneens is ontworpen door GROUP A. Een van de paden in het voetgangersgebied lijkt zo het gebouw in te lopen, mede doordat de entree terug is gelegen. In de publieke plint liggen de kantoorlobby, een café en een extra commerciële ruimte.
Integraal ontwerpproces
Het project is ontwikkeld door Angelo Gordon en APF International en aangekocht door Bouwinvest Office Fund. GROUP A verzorgde het architectonisch ontwerp binnen een integraal ontwerpproces waarbij verder (naast Moss) ook Huygen (installatietechnisch advies), Van der Vorm (constructief ontwerp) en Peutz (bouwfysisch advies) betrokken waren.
Trefwoorden
stationsgebied
group a
het forum
moss
utrecht
hoogbouw
toren
moss amsterdam
central park
Locatie
Best gelezen
1
De Urbanisten schetst perspectief voor vitale en aantrekkelijke Rotterdamse binnenstad
vrijdag, 13 maart
2
Nominaties Amsterdamse Architectuurprijs 2026 bekend
vrijdag, 13 maart
3
Studio Vinke en Loos van Vliet ontwerpen blok met woningen in haven Lelystad
vrijdag, 13 maart
4
Nieuwe woonwijk bij Istanbul omvat bijdragen van BIG, MVRDV en Snøhetta
donderdag, 12 maart
5
Duncan Stutterheim en SOM maken plannen voor meerdere locaties Sloterdijk I
maandag, 16 maart
Gerelateerde nieuwsberichten
Nieuw hoofdkantoor voor DKG op contouren oude loods
20 september 2023
Bouw fabriekscomplex Quooker gestart
15 mei 2024
2021 in tien podcasts door Daan Roggeveen
30 december 2021
Group A presenteert concept voor Paris Proof Stadsblok
14 juni 2024
Tweede prijs voor Group A in ontwerpcompetitie metrostation Hamburg
24 juni 2025
Herbestemming Ferro-kantoor in M4H Rotterdam gestart
9 april 2024
Het Platform: 'microstad' op krappe kavel naast Utrecht Centraal
25 juni 2020
Bouwstart voor ‘doorgesneden’ kantoortoren bij Utrecht Centraal
19 april 2019
Nieuwe foto's van stationsplein en fietsenstalling Utrecht Centraal
12 september 2019
Winkels en horeca boven sporen Utrecht Centraal
16 oktober 2018
Utrecht heeft grootste station van Nederland
12 juli 2018
Nieuwe woonbuurt tussen Utrecht Centraal en Kruisvaart
7 februari 2018
STIR architecture levert meeste commerciële vierkante meters op
3 februari 2020
Kanaleneiland en Hoog Catharijne: droomprojecten ingehaald door de werkelijkheid
27 september 2019
Bouw 'groene' torens aan Jaarbeursboulevard na zomer van start
24 juni 2020
MVRDV en Jaarbeurs presenteren masterplan Jaarbeursdistrict
4 december 2019
Bouw Galaxy Tower Utrecht van start gegaan
27 juli 2018
Postel: 'Een stapeling van drie gebouwtypen'
2 oktober 2014
Negentig meter hoge woontoren op Van Sijpesteijnkade
15 juli 2016
Bouw eerste fase Smakkelaarspark van start
11 juni 2020
Ontwerp onafgebouwde premetrostations Antwerpen gepresenteerd
18 februari 2022
StudioSK presenteert voorlopig ontwerp bruggen over doorgetrokken Leidse Rijn
21 maart 2022
Programma in Pakhuis de Zwijger over wonen in hoogbouw
4 mei 2022
GROUP A start denktank om CO2-uitstoot projecten te reduceren
6 september 2022
Jaarbeurs neemt bouwplannen opnieuw onder de loep
19 oktober 2022
Nieuw hoofdkantoor voor DKG op contouren oude loods
20 september 2023
Bouw fabriekscomplex Quooker gestart
15 mei 2024
2021 in tien podcasts door Daan Roggeveen
30 december 2021
Group A presenteert concept voor Paris Proof Stadsblok
14 juni 2024
Tweede prijs voor Group A in ontwerpcompetitie metrostation Hamburg
24 juni 2025
Herbestemming Ferro-kantoor in M4H Rotterdam gestart
9 april 2024
Het Platform: 'microstad' op krappe kavel naast Utrecht Centraal
25 juni 2020
Bouwstart voor ‘doorgesneden’ kantoortoren bij Utrecht Centraal
19 april 2019
Nieuwe foto's van stationsplein en fietsenstalling Utrecht Centraal
12 september 2019
Winkels en horeca boven sporen Utrecht Centraal
16 oktober 2018
Utrecht heeft grootste station van Nederland
12 juli 2018
Nieuwe woonbuurt tussen Utrecht Centraal en Kruisvaart
7 februari 2018
STIR architecture levert meeste commerciële vierkante meters op
3 februari 2020
Kanaleneiland en Hoog Catharijne: droomprojecten ingehaald door de werkelijkheid
27 september 2019
Bouw 'groene' torens aan Jaarbeursboulevard na zomer van start
24 juni 2020
MVRDV en Jaarbeurs presenteren masterplan Jaarbeursdistrict
4 december 2019
Bouw Galaxy Tower Utrecht van start gegaan
27 juli 2018
Postel: 'Een stapeling van drie gebouwtypen'
2 oktober 2014
Negentig meter hoge woontoren op Van Sijpesteijnkade
15 juli 2016
Bouw eerste fase Smakkelaarspark van start
11 juni 2020
Ontwerp onafgebouwde premetrostations Antwerpen gepresenteerd
18 februari 2022
StudioSK presenteert voorlopig ontwerp bruggen over doorgetrokken Leidse Rijn
21 maart 2022
Programma in Pakhuis de Zwijger over wonen in hoogbouw
4 mei 2022
GROUP A start denktank om CO2-uitstoot projecten te reduceren
6 september 2022
Jaarbeurs neemt bouwplannen opnieuw onder de loep
19 oktober 2022
Toon alles
Andere nieuwsberichten
Nora Prins en Floor Marree versterken directie ECHO
29 minuten geleden
Met de uitbreiding verstevigt ECHO naar eigen zeggen de aansturing van zowel het ontwerpbureau als de adviespraktijk voor gebiedsontwikkeling.
Luxe appartementengebouw naast klooster Etten-Leur door Studio AAAN klaar
2 uur geleden
Bij klooster ’t Withof in Etten-Leur is afgelopen jaar woongebouw De Hoogschout opgeleverd. Het door Studio AAAN ontworpen complex bestaat uit veertig ruime appartementen.
Hogeschool InHolland realiseert nieuw hoofdgebouw op campus Alkmaar
Gisteren, 15:38
Het gebouw, dat is ontworpen door BRTArchitecten, moet een plek worden waar studenten, docenten en andere betrokkenen samenkomen om te leren, onderzoeken en samenwerken. Spil in het ontwerp vormt een doorlopende verbindende ruimte.
Houten Stelthuis van Woonpioniers is aardbevings- en klimaatbestendig
Gisteren, 13:26
De houten steltwoning, ontworpen door Woonpioniers, vervangt een door aardbevingsschade getroffen woning in Overschild.
Staten Utrecht willen netcongestie versneld aanpakken
3 uur geleden
De fracties wezen op de noodzaak van het zo snel mogelijk realiseren van een hoogspanningsstation dat essentieel is voor het opsplitsen van het elektriciteitsnetwerk tussen de Flevopolder, Gelderland en Utrecht.
Rotterdam wil woningbouw versnellen met pilot ‘Ontwikkelaar aan Zet’
Gisteren, 16:33
De gemeente Rotterdam start een pilot waarbij projectontwikkelaars een grotere rol krijgen bij de voorbereiding van woningbouwprojecten.
Veel meer financieringsaanvragen Warmtefonds om hogere gasprijzen
Gisteren, 14:31
De gestegen gasprijzen zorgen ervoor dat veel meer huiseigenaren financiering aanvragen voor het energiezuiniger maken van hun woning.
Grondprijs voor landbouwgrond loopt op tot bijna een ton
Gisteren, 09:36
Ook overheden en andere partijen zoeken naar grond voor onder meer woningbouw, natuur en infrastructuur.
ANWB: betrek bewoners beter bij parkeerplannen in de wijk
17 maart, 2:00
Bewoners vinden naast parkeerruimte groen en leefbaarheid in hun wijk ook belangrijk, stelt de organisatie.
Kabinet gaat mogelijk infrastructuurprojecten schrappen
17 maart, 10:42
Miljardentekorten dwingen het kabinet tot nieuwe keuzes in de aanleg en het onderhoud van infrastructuur.
Ga naar het nieuws-archief
Ronnie Weessies
Redacteur
2
0
0
0
Voor een optimale gebruikservaring plaatst Architectenweb functionele cookies. Wat de verschillende cookies precies doen leggen we uit in een
overzicht
. Cookies van social media kun je optioneel
aanzetten
.
Akkoord
Instellingen
Annuleren
OK
Sluiten
Doorgaan
Inloggen
Maak een gratis persoonlijk account aan
Feedback
Feedback
Wij horen graag jouw feedback. Laat je reactie achter en eventueel jouw e-mail adres.
Reactie
Verstuur