Projecten
Producten
Bedrijven
Vacatures
Agenda
Awards
Podcasts
more_horiz
Videos
Magazine
Thema's
Favorieten
Profiel
Uitloggen
Abonneer je nu op onze nieuwsbrieven!
Abonneren
Nee, bedankt
Ja, denk met me mee rond de
materialisering van mijn project
Copyright: Ton Langenberg
Copyright: Ton Langenberg
Copyright: Bas Gijselhart
Copyright: Bas Gijselhart
Copyright: FAAM architects
Copyright: Ton Langenberg
John Ekkelboom
Copyright: Bas Gijselhart
Eikenburg en circulariteit
Copyright: FAAM architects
Copyright: FAAM architects
Copyright: FAAM architects
Copyright: FAAM architects
Copyright: FAAM architects
Terreintekening
Copyright: Buro Lubbers
Appartementengebouw uit CLT opgeleverd in Eindhoven
28 september 2021, 17:53
Op landgoed Eikenburg bij Eindhoven is onlangs de bouw afgerond van een paviljoen met 28 sociale appartementen en 3 multifunctionele kantoorruimten. Het ontwerp van
FAAM architects
is sterk gericht op het collectieve karakter van de plek en uitgevoerd in massieve houtbouw.
De realisatie van paviljoen Pannenhoef Leemerhoef maakt deel uit van de herontwikkeling die woningcorporatie Trudo voor landgoed Eikenburg beoogt. Trudo heeft het eigendom en beheer van het landgoed, gelegen aan de zuidkant van Eindhoven, in 2013 overgenomen van de Broeders van Liefde. Het monumentale klooster, een rijksmonument, ligt prominent in het gebied.
Bijzonder woonmilieu
De corporatie wil met de herontwikkeling van Eikenburg een bijzonder woonmilieu aan de stad toevoegen. Ze wil woningbouw in de sociale huur ontwikkelen en een actieve woongemeenschap vormen, met de bewoners. In 2018 heeft Buro Lubbers daarvoor in opdracht van Trudo een masterplan opgesteld.
De eerste fase – herbestemming en transformatie van het hoofdgebouw – is al uitgevoerd en de infrastructuur is deels aangepast. De vernieuwing van de verspreid liggende paviljoens is een volgende stap in de herontwikkeling van het landgoed.
Daarbij streeft het masterplan naar een voortzetting van de diversificatie van de paviljoens. Dit omdat elk bestaand pand anders is, in een andere bouwkundige staat verkeerd en om andere ingrepen vraagt. Bovendien bieden de gebouwen ruimte aan diverse gebruikersgroepen. Bijkomend voordeel is dat de paviljoens niet als samenhangende structuur worden ervaren.
Nieuwbouw
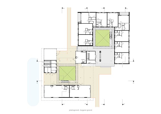
Pannenhoef Leemerhoef en zijn buurman, die samen een ensemble vormden, waren daarbij de eerste twee die werden aangepakt. Architectonisch kwamen ze overeen, met Pannenhoef Leemerhoef als kleinere uitvoering. Beide bestonden uit horizontale, deels opgetilde bebouwing rond twee patio’s. Daarmee waren ze doorwaadbaar op maaiveldniveau.
Het buurpaviljoen bleek in betere staat en is inmiddels gerenoveerd in de originele staat. Paviljoen Pannenhoef Leemerhoef bleek er minder goed aan toe, vertelt FAAM. Aanvankelijk heeft het architectenbureau bekeken of het paviljoen, dan wel de fundering, behouden kon blijven en met enige ingrepen een nieuwe toekomst kon krijgen.
Door de beperkte verdiepingshoogte en de aanwezigheid van asbest bleek dat niet realistisch. Er is gekozen voor nieuwbouw, met vergelijkbare uitgangspunten als voor het oude paviljoen, legt het architectenbureau uit. Wederom ligt de horizontale bebouwing als een lemniscaat rond twee patio’s. Het doorwaardbare karakter en de verre doorzichten zijn in het nieuwe ontwerp behouden.
Wonen in het bos
Het programma bestaat voornamelijk uit wonen: 28 studio’s en een-slaapkamer-appartementen. De woningen hebben flexibele plattegronden en alle een gevel aan zowel een patio, als de omliggende bosrand.
Rond de zuidelijke patio is op de begane grond plaats voor een collectieve en twee multifunctionele ruimten. Rond de andere patio is alleen wonen gesitueerd; hier is het maaiveld een halve meter omhoog getrokken, bereikbaar met trap en hellingbaan. Het hoogteverschil benadrukt de meer privé-omgeving van deze patio; tegelijkertijd blijven beide patio’s toegankelijk voor iedereen.
In lijn met de diversificatie van de paviljoens is Pannenhoef Leemerhoef anders gematerialiseerd dan de buurman, die is opgetrokken in metselwerk. De nieuwbouw heeft naturel houten gevels aan de buitenkant van het paviljoen; aan de patiozijden zijn kleuraccenten toegepast.
De ingetogen houtkleur aan de buitenzijde verbindt het gebouw met het omringende bos. De kleuraccenten, die zijn afgeleid van het interieur van het kloostergebouw, dragen bij aan een heldere routing en de individuele identiteit van de bewoners, legt FAAM uit.
Hergebruik
Omdat Pannenhoef Leemerhoef het eerste project in een reeks transformaties was, had het een voorbeeldfunctie, stelt het architectenbureau. Er is hoog ingezet op duurzaam bouwen door middel van hernieuwbare en circulaire materialen, collectieve installaties en energiebesparende maatregelen.
De materialen die vrijkwamen bij de ontmanteling van het oorspronkelijke paviljoen zijn zoveel mogelijk opnieuw gebruikt in de nieuwbouw. Dat gebeurde zonder vermalen of verzagen tot een laagwaardiger product, benadrukt FAAM; materialen maar werden in hun bestaande vorm en toepassing opnieuw toegepast.
Dit geldt bijvoorbeeld voor de stalen buitentrappen en bordessen, of de gipsplaten uit oude binnenwanden. Ook zijn materialen uit andere sloopprojecten toegepast. Materialen uit het oorspronkelijke paviljoen die geen plaats in de nieuwbouw konden krijgen, worden elders op Eikenburg gebruikt, of komen beschikbaar in de
grondstoffenbank
van het betrokken sloopbedrijf Van Liempd.
Massieve houtbouw
Nieuwe bouwmaterialen en -delen zijn geselecteerd op hun hernieuwbare karakter en kleine voetafdruk, aldus de architecten. Het gehele casco van dragende vloeren en wanden is opgetrokken uit CLT en werd als een bouwpakket ter plekke in elkaar geschroefd.
Verder, vertelt FAAM is voor de nieuwbouw een slim installatieconcept ontworpen dat voorziet in een collectief verwarmingssysteem. De warmtebehoefte wordt daarmee gebalanceerd, terwijl de bewoners hun behoefte boven de basistemperatuur individueel kunnen regelen. Het dak is volledig voorzien van zonnepanelen.
Trefwoorden
eindhoven
trudo
clt
cross laminated timber
buro lubbers
houtbouw
van liempd
sociale huisvesting
landgoed eikenburg
woningbouw
faam architects
Locatie
Best gelezen
1
Architect Oliver Thill op 55-jarige leeftijd overleden
donderdag, 5 maart
2
André Kempe: ‘Het ging Oliver Thill om het geven van betekenis’
vrijdag, 6 maart
3
Werkstatt gaat verder zonder medeoprichter Niels Groeneveld
vrijdag, 6 maart
4
HvdHA ontwerpt twee woonblokken in Utrecht Terwijde volgens typologie van woonpalazzo
donderdag, 5 maart
5
Woongebouw door van Bergen Kolpa vormt nieuwe markering langs bocht Rotte
dinsdag, 10 maart
Gerelateerde nieuwsberichten
Sociale woningbouwproject moet doorstroming in Eindhovense buurt helpen
7 februari 2023
ASN Bank, Climate Cleanup en Gideon laten klimaat-impact houtbouw zien op klimaattop
3 november 2021
Bouwstart voor gebouw Matchbox van KAAN Architecten
19 maart 2024
Plan Celsius in wijkververnieuwing Woensel-West afgerond
20 september 2023
FAAM architects wint tender met dialoog tussen monument en nieuwbouw
1 februari 2024
Rotterdam-Zuid krijgt thuis- en daklozenopvang in hout
21 april 2022
Heerhugowaard krijgt omvangrijk houten woningbouwproject
4 oktober 2022
Nieuwe prefab bouwer wil alleen woningen met minimale ecologische voetafdruk
18 januari 2024
FAAM ontwerpt twee woongebouwen in massieve houtbouw
2 mei 2019
Plan voor omvangrijk woonproject in CLT bij Eindhoven
15 juli 2020
Plan van team JPO gekozen voor Stadsbruglocatie Weert
21 april 2021
FAAM architects ontwerpt puntsymmetrisch woonhuis
25 juni 2018
Woonhuis met sterke relatie tussen binnen en buiten
22 maart 2018
Een persoonlijke zoektocht naar een woning die én duurzaam is én ruimtelijke kwaliteit biedt én betaalbaar is
22 juli 2021
Veertien houten woningen in Kerckebosch Zeist vormen 'buurtschap'
23 juni 2021
TNO: bouwen in hout veel gunstiger voor klimaat dan aangenomen
21 januari 2021
Monnickendam krijgt woongebouw in CLT
12 januari 2021
Woongebouw in CLT door Urban Climate Architects in drie weken wind- en waterdicht
1 december 2020
Met Kelbergen 2.0 geeft HOH Architecten voorbeeld van verbetering door verdichting
27 september 2021
Sluisbuurt Amsterdam krijgt met Horizons 'een internationaal duurzaamheidsicoon'
10 augustus 2021
Biofilisch ingestoken schoolontwerp wint Gouden Kikker
15 juli 2021
Groot woongebouw in Alkmaar uit houten prefab modules
6 juli 2021
MeesVisser ontwerpt houten kantoorgebouwen voor World Food Center Ede
5 mei 2021
Heren 5 Architecten ontwerpt houten studentenwoongebouw
31 maart 2021
Jaaroverzicht 2020: bouwen in hout
24 december 2020
Boek belicht recente ontwikkelingen en toekomst houtbouw
6 oktober 2021
MNNR Architects ontwerpt supermarkt met sociaal woonprogramma erboven
23 februari 2022
HAUT: wonen met riant uitzicht binnen hoofdzakelijk houten constructie
21 maart 2022
VORM verwerft met DTA een eigen houtfabriek
5 mei 2022
Woongebouw Haasje Over heeft energiecentrale op het dak
1 augustus 2022
Weg vrij voor realisatie woningbouwproject Nieuw Bergen in centrum Eindhoven
25 november 2022
Raad van State verwerpt bezwaren tegen woontorens op Stationsplein Eindhoven
26 januari 2023
Sociale woningbouwproject moet doorstroming in Eindhovense buurt helpen
7 februari 2023
ASN Bank, Climate Cleanup en Gideon laten klimaat-impact houtbouw zien op klimaattop
3 november 2021
Bouwstart voor gebouw Matchbox van KAAN Architecten
19 maart 2024
Plan Celsius in wijkververnieuwing Woensel-West afgerond
20 september 2023
FAAM architects wint tender met dialoog tussen monument en nieuwbouw
1 februari 2024
Rotterdam-Zuid krijgt thuis- en daklozenopvang in hout
21 april 2022
Heerhugowaard krijgt omvangrijk houten woningbouwproject
4 oktober 2022
Nieuwe prefab bouwer wil alleen woningen met minimale ecologische voetafdruk
18 januari 2024
FAAM ontwerpt twee woongebouwen in massieve houtbouw
2 mei 2019
Plan voor omvangrijk woonproject in CLT bij Eindhoven
15 juli 2020
Plan van team JPO gekozen voor Stadsbruglocatie Weert
21 april 2021
FAAM architects ontwerpt puntsymmetrisch woonhuis
25 juni 2018
Woonhuis met sterke relatie tussen binnen en buiten
22 maart 2018
Een persoonlijke zoektocht naar een woning die én duurzaam is én ruimtelijke kwaliteit biedt én betaalbaar is
22 juli 2021
Veertien houten woningen in Kerckebosch Zeist vormen 'buurtschap'
23 juni 2021
TNO: bouwen in hout veel gunstiger voor klimaat dan aangenomen
21 januari 2021
Monnickendam krijgt woongebouw in CLT
12 januari 2021
Woongebouw in CLT door Urban Climate Architects in drie weken wind- en waterdicht
1 december 2020
Met Kelbergen 2.0 geeft HOH Architecten voorbeeld van verbetering door verdichting
27 september 2021
Sluisbuurt Amsterdam krijgt met Horizons 'een internationaal duurzaamheidsicoon'
10 augustus 2021
Biofilisch ingestoken schoolontwerp wint Gouden Kikker
15 juli 2021
Groot woongebouw in Alkmaar uit houten prefab modules
6 juli 2021
MeesVisser ontwerpt houten kantoorgebouwen voor World Food Center Ede
5 mei 2021
Heren 5 Architecten ontwerpt houten studentenwoongebouw
31 maart 2021
Jaaroverzicht 2020: bouwen in hout
24 december 2020
Boek belicht recente ontwikkelingen en toekomst houtbouw
6 oktober 2021
MNNR Architects ontwerpt supermarkt met sociaal woonprogramma erboven
23 februari 2022
HAUT: wonen met riant uitzicht binnen hoofdzakelijk houten constructie
21 maart 2022
VORM verwerft met DTA een eigen houtfabriek
5 mei 2022
Woongebouw Haasje Over heeft energiecentrale op het dak
1 augustus 2022
Weg vrij voor realisatie woningbouwproject Nieuw Bergen in centrum Eindhoven
25 november 2022
Raad van State verwerpt bezwaren tegen woontorens op Stationsplein Eindhoven
26 januari 2023
Toon alles
Gerelateerde podcasts
Duuzaam ontwerpen en bouwen
Gesprek met Marlies Zuidam over regeneratief ontwerpen
9 september 2022
Andere nieuwsberichten
Groningen stelt gebiedsvisie voor wijk De Nieuwe Held vast
Vandaag, 15:45
In vijftien jaar tijd wil de gemeente 1.850 woningen bouwen in de nieuwe wijk aan de westkant van de stad. De verwachting is dat de bouw eind 2027, begin 2028 kan starten.
Bouw paviljoen van Atelier PUUUR met buurtfunctie en voorzieningen gestart
Vandaag, 14:06
In Amsterdam Noord is de bouw gestart van een paviljoen naar ontwerp van Atelier PUUUR met daarin een Ouder- en Kindteamlocatie en een buurtkamer. Het tweelaagse gebouw markeert tevens de entree van een naastgelegen groengebied.
Zeven ontwerpteams aan de slag met herontwikkeling Bernhardkazerne Amersfoort
Vandaag, 11:44
Het opleidings- en trainingscentrum van de Koninklijke Landmacht, dat uit meerdere gebouwen bestaat, is dringend toe aan modernisering. De zeven bureaus werken alle aan een deelopdracht binnen het masterplan voor de kazerne.
Kantoorcomplex door Goof Spruit bij station Utrecht krijgt tweede leven als De Nieuwe Tuin
Vandaag, 10:26
In het ontwerp van BiermanHenket behoudt het complex zijn kenmerkende honingraatstructuur, maar krijgt het een opener karakter. Ook wordt het gebouw zowel binnen als buiten vergroend.
Raad van State blokkeert plan voor verbouwing ring Utrecht
4 uur geleden
Vorig jaar kreeg het kabinet de opdracht om de stikstofuitstoot van het project beter uit te leggen, maar dat is niet gelukt.
Provincie akkoord met natuurherstel voor nieuwe ASML-campus
Vandaag, 12:30
De provincie Noord-Brabant stemt in met het plan waarmee chipmachinefabrikant ASML natuur wil compenseren bij de realisatie van de nieuwe campus.
CBS: uitstoot gestegen in 2025, klimaatdoelen verder uit zicht
Vandaag, 09:20
Vorig jaar werd er 0,8 procent meer broeikasgassen uitgestoten dan in 2024.
Renovatie Belgisch Justitiepaleis loopt op tot zeshonderd miljoen euro
Gisteren, 14:33
Het Justitiepaleis in Brussel is ruim 140 jaar oud en staat al meer dan veertig jaar in de steigers.
Zuid-Holland stemt in met bouwplannen 285.000 huizen tot 2036
Gisteren, 12:12
Het college van Gedeputeerde Staten stemde in met 2333 ingediende plannen, omdat ze voldoen aan de provinciale regels in het omgevingsbeleid.
Fors meer omzet bouwbedrijf Dura Vermeer door grote vraag
Gisteren, 09:48
Volgens het familiebedrijf uit Rotterdam steeg de jaaromzet met 24 procent tot 2,6 miljard euro.
Ga naar het nieuws-archief
Robert Muis
Redacteur
3
0
0
0
Voor een optimale gebruikservaring plaatst Architectenweb functionele cookies. Wat de verschillende cookies precies doen leggen we uit in een
overzicht
. Cookies van social media kun je optioneel
aanzetten
.
Akkoord
Instellingen
Annuleren
OK
Sluiten
Doorgaan
Inloggen
Maak een gratis persoonlijk account aan
Feedback
Feedback
Wij horen graag jouw feedback. Laat je reactie achter en eventueel jouw e-mail adres.
Reactie
Verstuur