Projecten
Producten
Bedrijven
Vacatures
Agenda
Awards
Podcasts
more_horiz
Videos
Magazine
Thema's
Favorieten
Profiel
Uitloggen
Abonneer je nu op onze nieuwsbrieven!
Abonneren
Nee, bedankt
Ja, denk met me mee rond de
materialisering van mijn project
Copyright: Yu-Chen Chao
Copyright: Ethan Lee
Copyright: Yu-Chen Chao
Copyright: Yu-Chen Chao
Copyright: Ethan Lee
Copyright: Ethan Lee
Copyright: Ethan Lee
Copyright: Ethan Lee
Copyright: Ethan Lee
Copyright: Ethan Lee
Copyright: Ethan Lee
Copyright: Ethan Lee
Copyright: Ethan Lee
Copyright: Ethan Lee
Copyright: Ethan Lee
Copyright: Ethan Lee
Copyright: Ethan Lee
Copyright: Ethan Lee
Copyright: Ethan Lee
Copyright: Ethan Lee
Copyright: Ethan Lee
Copyright: Ethan Lee
Copyright: Ethan Lee
Copyright: Ethan Lee
Copyright: Ethan Lee
Copyright: Ethan Lee
Copyright: Ethan Lee
Copyright: Ethan Lee
Copyright: Ethan Lee
Copyright: Ethan Lee
Copyright: Mecanoo
Copyright: Mecanoo
Copyright: Mecanoo
Copyright: Mecanoo
Copyright: Mecanoo
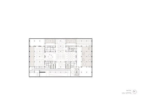
Begane grond
Copyright: Mecanoo
Verdieping 1
Copyright: Mecanoo
Verdieping 2
Copyright: Mecanoo
Verdieping 3
Copyright: Mecanoo
Verdieping 4
Copyright: Mecanoo
Verdieping 5
Copyright: Mecanoo
Mecanoo presenteert nieuwe openbare bilbiotheek van Tainan
15 februari 2021, 16:56
In de Taiwanese stad Tainan is de door
Mecanoo
ontworpen openbare bibliotheek geopend. Het gebouw biedt plaats aan onder meer ruim een miljoen boeken, moderne kunst en cultureel erfgoed van de oudste stad van het eiland. Het complex heeft een omgekeerd getrapte vorm, waarbij de imposante kroon wordt ondersteund door ranke kolommen.
De gevel bestaat uit aluminium lamellen, waarin bloemvormen zijn uitgesneden die refereren aan de decoratieve tralievensters in de oude binnenstad van Tainan. De lamellen filteren het licht en houden de tropische warmte buiten. Dankzij de getrapte vorm biedt het gebouw beschutting aan de bezoekers en verloopt de overgang van binnen naar buiten geleidelijker.
Onder de uitkragingen liggen vier verzonken patio’s voor buitenactiviteiten. De grootste is ook vanaf het plein toegankelijk; hier worden lezingen, concerten en tentoonstellingen georganiseerd. Wie vanuit hier omhoogkijkt, ziet de bijzondere afwerking van de luifels: champagnekleurige aluminium panelen met een lineair verspringend reliëf die ook een deel van de gevels sieren.
Kunstwerk
Het gebouw telt vijf bovengrondse en twee ondergrondse verdiepingen (waarvan een fungeert als parkeergarage). Op de begane grond betreden bezoekers een dubbelhoog atrium met daarin een kunstwerk van Paul Cocksedge. Het werk verbeeldt een bevroren moment waarop witte vellen papier door de wind worden weggeblazen. Het symboliseert vrijheid van denken en het plezier van lezen, verklaart Mecanoo.
Overal in het gebouw hangt en staat kunst, meldt het bureau verder. Het gaat niet alleen om kunst waar je naar kunt kijken, maar er is ook interactieve kunst aanwezig om aan te raken en mee te spelen.
Een ander opvallend element in het gebouw is de rode sculpturale trap die de eerste ondergrondse en alle bovengrondse verdiepingen doorsnijdt. De verkeersruimte is overal zichtbaar dankzij het subtiel met houten latten bekleedde trappenhuis. Ook de begane grond is afgewerkt met hout; hier bevinden zich de ontvangstbalie, een ‘huiskamer’ om kranten en tijdschriften te lezen, touchscreens om de collectie van de bibliotheek te verkennen en een selfservicepunt om boeken te lenen.
De ondergrondse verdieping biedt plek aan een kinderbibliotheek met aangrenzend een patio onder de luifel om buiten te spelen. Op dit niveau is ook een ruime studiezaal aanwezig met een eigen ingang waar studenten 24 uur per dag en zeven dagen per week kunnen studeren.
Mediabibliotheek
Een niveau hoger ligt de mediabibliotheek met zitjes en nissen waar bezoekers films kunnen kijken en een tienerbibliotheek met een eigen lounge. De reguliere bibliotheek voor volwassenen is meer traditioneel ingericht met boekenkasten en zitjes en ligt een verdieping hoger. Nog hoger is een verdieping gewijd aan het erfgoed van Tainan, een Japanse historische boekencollectie en boeken van Taiwanese auteurs.
Op dezelfde verdieping zijn ook drie multifunctionele ruimtes voor educatie en workshops, een café en vier buitenruimtes, ingericht als daktuinen. Helemaal bovenin liggen een theater, conferentiezaal en de kantoren van de medewerkers. Vanaf de bovenste verdiepingen heb je door de lamellen heen een prachtig uitzicht over de stad, meldt Mecanoo.
Het gebouw bevat verder een kunstgalerie, een ‘maker space’, braillebibliotheek en een boekhandel. De rationele constructie van de bibliotheek laat maximale flexibiliteit toe, zodat het gebouw ook kan worden aangepast aan toekomstige veranderingen, laat het bureau weten.
Trefwoorden
tainan
bibliotheek
taiwan
mecanoo
Locatie
Best gelezen
1
Finalisten presenteren ontwerp voor Shift Landmark in Rotterdam
woensdag, 4 maart
2
Architect Oliver Thill op 55-jarige leeftijd overleden
donderdag, 5 maart
3
Nieuwe Hittekaart Woningmarkt 2026 van BPD toont aanhoudende woningdruk
dinsdag, 3 maart
4
Strijp-S krijgt woonbuurtje met karakteristieken voormalig Philips-terrein
maandag, 2 maart
5
Haagse gemeenteraad stemt in met bouw van 11.400 woningen in nieuw stadscentrum
maandag, 2 maart
Gerelateerde nieuwsberichten
Ruimtelijk en flexibel interieur voor OBA Mercatorplein
3 november 2021
Nieuw cultuurgebouw voor Alkmaar naar ontwerp Mecanoo
3 maart 2022
Drie consortia geselecteerd om ontwerp te maken voor nieuwe bibliotheek met kantoren op de Zuidas
23 december 2021
Bij Station Ede-Wageningen lopen station en stationsplein in elkaar over
18 juli 2024
Mecanoo ontwerpt Natural History Museum Abu Dhabi
1 april 2022
Oud winkelcentrum als 'ruïne' zichtbaar in waterpark MVRDV
11 maart 2020
Mecanoo wint met elegante bibliotheek voor Tainan
22 februari 2016
'Nederlandse' drijvende tuin in Taiwanese stad
15 januari 2015
Mecanoo presenteert ontwikkelvisie voor Dordtse Spoorzone
26 januari 2021
Ronde toren DNB-complex krijgt tweede leven elders in de stad
15 december 2020
1.500 woningen en 220 meter hoge toren op Codrico-terrein Katendrecht
2 december 2020
Mecanoo ontwerpt gevarieerd 'zit- en stalandschap' voor Rotterdamse metro
29 oktober 2020
Film: documentaire over door Mecanoo gerenoveerde MLK Library
13 oktober 2020
Mecanoo ontwerpt vernieuwing Haagse Centrale Bibliotheek
28 september 2020
Mecanoo ontwerpt negentig meter hoge woontoren op Overhoeks
17 juli 2020
Video: bij ON AIR presenteert Francine Houben ontwerp Boijmans van Beuningen
26 juni 2020
Mecanoo presenteert ontwerpvisie verbouwing Boijmans van Beuningen
5 juni 2020
Interview met Francine Houben over de coronacrisis: 'We moeten naar beloopbare en befietsbare steden'
26 mei 2020
LocHal onderscheiden met Europa Nostra Award
8 mei 2020
Terrein Food Center Amsterdam wordt deels woonwijk
5 maart 2020
Renovatie De Nederlandsche Bank start nog dit jaar
24 februari 2020
Mecanoo ontwerpt nieuwe centrale bibliotheek van Macau
22 maart 2021
Mecanoo en Beyer Blinder Belle revitaliseren grootste leenbibliotheek in New York
2 juni 2021
Mecanoo transformeert Zaans fabriekscomplex tot stedelijke buurt
3 augustus 2021
Internationale architectuurprijs voor Mecanoo
18 augustus 2021
Interieur als wonderland voor kinderbibliotheek Gütersloh door aatvos
1 september 2021
Voormalige spoorlijn in Taiwan door Mecanoo getransformeerd tot park
26 oktober 2021
Mecanoo presenteert heropende Martin Luther King Jr. Memorial Library
23 november 2021
Universiteitscampus in Manchester getransformeerd naar woongebied Kampus
6 januari 2022
Mecanoo benoemt drie nieuwe partners
14 januari 2022
Markthal met begaanbaar daklandschap door MVRDV geopend
21 februari 2023
Ruimtelijk en flexibel interieur voor OBA Mercatorplein
3 november 2021
Nieuw cultuurgebouw voor Alkmaar naar ontwerp Mecanoo
3 maart 2022
Drie consortia geselecteerd om ontwerp te maken voor nieuwe bibliotheek met kantoren op de Zuidas
23 december 2021
Bij Station Ede-Wageningen lopen station en stationsplein in elkaar over
18 juli 2024
Mecanoo ontwerpt Natural History Museum Abu Dhabi
1 april 2022
Oud winkelcentrum als 'ruïne' zichtbaar in waterpark MVRDV
11 maart 2020
Mecanoo wint met elegante bibliotheek voor Tainan
22 februari 2016
'Nederlandse' drijvende tuin in Taiwanese stad
15 januari 2015
Mecanoo presenteert ontwikkelvisie voor Dordtse Spoorzone
26 januari 2021
Ronde toren DNB-complex krijgt tweede leven elders in de stad
15 december 2020
1.500 woningen en 220 meter hoge toren op Codrico-terrein Katendrecht
2 december 2020
Mecanoo ontwerpt gevarieerd 'zit- en stalandschap' voor Rotterdamse metro
29 oktober 2020
Film: documentaire over door Mecanoo gerenoveerde MLK Library
13 oktober 2020
Mecanoo ontwerpt vernieuwing Haagse Centrale Bibliotheek
28 september 2020
Mecanoo ontwerpt negentig meter hoge woontoren op Overhoeks
17 juli 2020
Video: bij ON AIR presenteert Francine Houben ontwerp Boijmans van Beuningen
26 juni 2020
Mecanoo presenteert ontwerpvisie verbouwing Boijmans van Beuningen
5 juni 2020
Interview met Francine Houben over de coronacrisis: 'We moeten naar beloopbare en befietsbare steden'
26 mei 2020
LocHal onderscheiden met Europa Nostra Award
8 mei 2020
Terrein Food Center Amsterdam wordt deels woonwijk
5 maart 2020
Renovatie De Nederlandsche Bank start nog dit jaar
24 februari 2020
Mecanoo ontwerpt nieuwe centrale bibliotheek van Macau
22 maart 2021
Mecanoo en Beyer Blinder Belle revitaliseren grootste leenbibliotheek in New York
2 juni 2021
Mecanoo transformeert Zaans fabriekscomplex tot stedelijke buurt
3 augustus 2021
Internationale architectuurprijs voor Mecanoo
18 augustus 2021
Interieur als wonderland voor kinderbibliotheek Gütersloh door aatvos
1 september 2021
Voormalige spoorlijn in Taiwan door Mecanoo getransformeerd tot park
26 oktober 2021
Mecanoo presenteert heropende Martin Luther King Jr. Memorial Library
23 november 2021
Universiteitscampus in Manchester getransformeerd naar woongebied Kampus
6 januari 2022
Mecanoo benoemt drie nieuwe partners
14 januari 2022
Markthal met begaanbaar daklandschap door MVRDV geopend
21 februari 2023
Toon alles
Gerelateerde podcasts
Toren van Babel
Gesprek met Francine Houben over hoogbouw en communities
6 juni 2024
Andere nieuwsberichten
André Kempe: ‘Het ging Oliver Thill om het geven van betekenis’
Gisteren, 19:15
Agelopen maandag is architect Oliver Thill overleden. Zijn compagnon André Kempe gedenkt de man met wie hij al meer dan 35 jaar bevriend was en ruim een kwarteeuw geleden Atelier Kempe Thill oprichtte.
TconcepT transformeert voormalig warenhuis in Offenbach tot bibliotheek
Gisteren, 15:54
Het 12.000 vierkante meter omvattende complex gaat in bredere zin fungeren als een cultuur- en educatiecentrum met vele functies. In 2027 moet Station Mitte, zoals het gebouw zijn volgende leven wordt genoemd, klaar zijn.
Werkstatt gaat verder zonder medeoprichter Niels Groeneveld
Gisteren, 14:49
Medeoprichter van Werkstatt Niels Groeneveld stopt als partner bij het bureau, om zich te kunnen richten op zijn gezin en onderwijs. Floor Frings en Raoul Vleugels blijven het Eindhovense bureau leiden.
Binationaal ontwerpteam buigt zich over waterhuishouding Cartagena in Colombia
Gisteren, 13:43
Een Colombiaans-Nederlands ontwerpteam met Felixx Landscape Architects & Planners en Witteveen+Bos moedigt Cartagena aan om haar relatie met water te heroverwegen en na te denken over een veerkrachtige toekomst
Kunstmuseum in Den Haag moet worden verbouwd
Gisteren, 16:32
Daarvoor dient het museum in het Statenkwartier waarschijnlijk een tijd te sluiten.
Coen van Oostrom benoemd tot nieuwe voorzitter VNO-NCW
Gisteren, 12:23
De oprichter van ontwikkelaar Edge volgt in die rol Ingrid Thijssen op, die deze week is begonnen als nieuwe bestuursvoorzitter van de TU Delft.
Rapport: lokaal klimaatbeleid schiet nog tekort
Gisteren, 10:25
De makers van de zogeheten Toekomstmeter hebben het beleid van zeventig gemeenten doorgelicht.
Hardt Hyperloop failliet verklaard door rechtbank
5 maart, 11:37
Het Rotterdamse bedrijf was bezig met de ontwikkeling van technologie om mensen op hoge snelheid via capsules door een vacuümbuis te vervoeren.
Onderzoek: zeespiegel kustgebieden hoger dan in studies aangenomen
5 maart, 9:13
De zeespiegel aan de kust is in grote delen van de wereld waarschijnlijk hoger dan in veel wetenschappelijke studies wordt aangenomen.
Gelderland geeft voorrang aan vergunningen met minder stikstof
4 maart, 12:24
De plannen zijn onderdeel van het pakket maatregelen dat het Gelderse bestuur wil nemen om de vergunningverlening voor zaken als de woningbouw weer op gang te krijgen.
Ga naar het nieuws-archief
Ronnie Weessies
Redacteur
0
0
0
0
Voor een optimale gebruikservaring plaatst Architectenweb functionele cookies. Wat de verschillende cookies precies doen leggen we uit in een
overzicht
. Cookies van social media kun je optioneel
aanzetten
.
Akkoord
Instellingen
Annuleren
OK
Sluiten
Doorgaan
Inloggen
Maak een gratis persoonlijk account aan
Feedback
Feedback
Wij horen graag jouw feedback. Laat je reactie achter en eventueel jouw e-mail adres.
Reactie
Verstuur