Projecten
Producten
Bedrijven
Vacatures
Agenda
Awards
Podcasts
more_horiz
Videos
Magazine
Thema's
Favorieten
Profiel
Uitloggen
Abonneer je nu op onze nieuwsbrieven!
Abonneren
Nee, bedankt
Ja, denk met me mee rond de
materialisering van mijn project
Copyright: BURO II & ARCHI+I / Filip Dujardin
Copyright: BURO II & ARCHI+I / Filip Dujardin
Copyright: BURO II & ARCHI+I / Filip Dujardin
Copyright: BURO II & ARCHI+I / Filip Dujardin
Copyright: BURO II & ARCHI+I / Filip Dujardin
Copyright: BURO II & ARCHI+I / Filip Dujardin
Copyright: BURO II & ARCHI+I / Filip Dujardin
Copyright: BURO II & ARCHI+I / Filip Dujardin
Copyright: BURO II & ARCHI+I / Filip Dujardin
Copyright: BURO II & ARCHI+I / Filip Dujardin
Copyright: BURO II & ARCHI+I
Copyright: BURO II & ARCHI+I
Copyright: BURO II & ARCHI+I
Copyright: BURO II & ARCHI+I
Copyright: BURO II & ARCHI+I
Copyright: BURO II & ARCHI+I / Filip Dujardin
Copyright: BURO II & ARCHI+I / Filip Dujardin
Copyright: BURO II & ARCHI+I / Filip Dujardin
Copyright: BURO II & ARCHI+I / Filip Dujardin
Copyright: BURO II & ARCHI+I / Filip Dujardin
Situatie. Tekening: BURO II & ARCHI+I
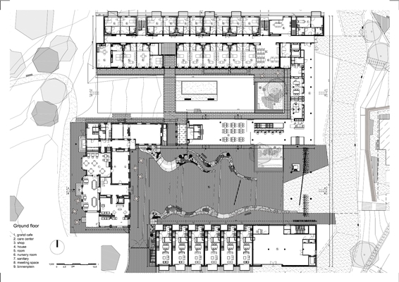
Begane grond. Tekening: BURO II & ARCHI+I
Zuid- en westaanzicht. Tekening: BURO II & ARCHI+I
Noord- en oostaanzicht. Tekening: BURO II & ARCHI+I
Woonzorgcampus Triamant volgt de levensloop
23 september 2015, 13:54
Een voormalig kasteeldomein in het Belgische Velm wordt in drie fasen getransformeerd naar een woonzorgcampus met een innovatief concept.
BURO II & ARCHI+I
heeft het ontwerp gemaakt voor het omvangrijke project Triamant.
De locatie van zorgcampus Triamant is een fraai gesitueerd terrein dat eerder als kasteeldomein en daarna als school fungeerde. Vervolgens raakte het terrein in verwaarloosde staat, tot werd besloten het te herbestemmen voor een woonzorgconcept dat de gehele levensloop betreft.
BURO II & ARCHI+I heeft een masterplan gemaakt voor de transformatie van het 'kasteeldomein van Peeten' - bestaande uit een het historische kasteel, schoolgebouwen, de kasteeltuin en een park - naar woningen, flats en een hotel. Het hele woonprogramma is gericht op zowel zorgbehoevende bewoners als bewoners die dat (nog) niet zijn.
Dienstverlening
Vanuit het streven naar integratie, laagdrempeligheid en (levens)kwaliteit is dit woonprogramma bovendien aangevuld met gemeenschappelijke diensten. Deze behoren zowel bij de zorgverlening als de dienstverlening aan de bewoners die niet zorgbehoevend zijn.
Zo is er een Grand CafƩ dat open staat voor iedereen uit de ruime omgeving, maar tevens de bewoners van de zorgflats en -kamers maaltijden aanbiedt. Het cafƩ is volgens de architecten het kloppend hart van het terrein. Ook de winkel met verse producten functioneert als zodanig.
De toevoeging van dergelijke diensten heeft daardoor het gebied weer onderdeel van het dorp Velm gemaakt. Tot andere diensten die zijn ondergebracht behoren bijvoorbeeld een zwembad, fitness, een kapperszaak en een wassalon.
Levensloopbestendig
Het woonprogramma richt zich op ene brede doelgroep en omvat woongelegenheden van verschillende types en groottes. Iedereen moet er kunnen wonen en bepaalde diensten kunnen gebruiken, zo legt BURO II & ARCHI+I uit. Daartoe hoeft de bewoner niet ook zorg af te nemen.
Naarmate de behoefte aan zorg en ondersteuning van een bewoner toeneemt, kan de dienstverlening meegroeien. De zorgflats zijn daarbij zo ontworpen dat de bewoner zo lang mogelijk in zijn eigen woning kan blijven. Pas als het voor de veiligheid en het welzijn van de bewoner beter is te verhuizen, zal hij naar een woonzorgkamer overgaan.
Met het oog op het zo lang mogelijk zelfstandig wonen, zijn de zorgflats ingericht vanuit het idee van toegankelijkheid. Tegelijkertijd heeft BURO II & ARCHI+I grote aandacht besteed aan de afwerking, om stigmatiserende klinische oplossingen te verbergen of zelfs weg te laten. Dat maakt de flats aantrekkelijk voor alle mogelijke bewoners.
Drie fasen
Het project Triamant bestaat in zijn geheel uit drie fasen, waarvan er twee inmiddels zijn afgerond. Fase 1 betrof de restauratie van het kasteel en het domein, de inrichting van het Grand CafƩ met B&B-kamers en de realisatie van 38 zorgkamers, 41 zorgflats en 6 zorgwoningen, als ook diverse diensten.
Fase 2 omvatte de nieuwbouw van nog eens 84 zorgkamers, 12 zorgflats-penthouses, een multifunctionele ruimte en personeelsruimtes, en de omgevingsaanleg. In fase 3, die volgende maand start, worden 25 zorgflats, 14 zeorgflats-penthouses, personeelsruimtes inclusief de omgeving nieuw gerealiseerd. De oplevering van deze fase wordt verwacht begin 2017.
Trefwoorden
zorg
woonzorgcomplex
transformatie
velm
belgië
buro ii & archi i
kasteel
woonzorgcampus
Locatie
Best gelezen
1
Luxe appartementengebouw naast klooster Etten-Leur door Studio AAAN klaar
donderdag, 19 maart
2
PSV presenteert plannen voor uitbreiding Philips Stadion
vrijdag, 20 maart
3
Houten Stelthuis van Woonpioniers is aardbevings- en klimaatbestendig
woensdag, 18 maart
4
BureauVanEig verbetert uitstraling Haagse rijtjeswoningen bij verduurzaming
dinsdag, 17 maart
5
De nieuwe kleren van de keizer
dinsdag, 17 maart
Gerelateerde nieuwsberichten
Ranke woongebouwen als schepen aan de kade
10 februari 2021
Verslag ontbijt rond healing environment
30 oktober 2015
Architecture in Health wordt KIVI-lectoraat
25 mei 2016
Knarrenhof
6 april 2018
Sint-Jozef Evere van Buro II & Archi+I klaar
12 oktober 2015
Stefanova plaatst fors programma in het groen
9 november 2015
Ouderenzorgcentrum volgens kloostertypologie
30 september 2015
Oude school biedt ruimte aan moderne kliniek
13 oktober 2015
Gastvrij ārevalidatiehotelā naar ontwerp van HD opgeleverd
23 oktober 2015
Plein met vier zorgspecifieke woongebouwen
22 september 2015
City Gate voor deelgemeente Brussel
24 augustus 2015
Inrichting kantoren voor Immo Desimpel
28 oktober 2014
Vermoortel (BURO II & ARCHI+I) overleden
31 augustus 2015
Ontwerp voor gevangenis met dorpse opzet
9 september 2013
Hoogwaardige opfrissing van gedateerd woongebouw
3 februari 2016
Ranke woongebouwen als schepen aan de kade
10 februari 2021
Verslag ontbijt rond healing environment
30 oktober 2015
Architecture in Health wordt KIVI-lectoraat
25 mei 2016
Knarrenhof
6 april 2018
Sint-Jozef Evere van Buro II & Archi+I klaar
12 oktober 2015
Stefanova plaatst fors programma in het groen
9 november 2015
Ouderenzorgcentrum volgens kloostertypologie
30 september 2015
Oude school biedt ruimte aan moderne kliniek
13 oktober 2015
Gastvrij ārevalidatiehotelā naar ontwerp van HD opgeleverd
23 oktober 2015
Plein met vier zorgspecifieke woongebouwen
22 september 2015
City Gate voor deelgemeente Brussel
24 augustus 2015
Inrichting kantoren voor Immo Desimpel
28 oktober 2014
Vermoortel (BURO II & ARCHI+I) overleden
31 augustus 2015
Ontwerp voor gevangenis met dorpse opzet
9 september 2013
Hoogwaardige opfrissing van gedateerd woongebouw
3 februari 2016
Toon alles
Andere nieuwsberichten
PSV presenteert plannen voor uitbreiding Philips Stadion
20 maart, 3:37
De Eindhovense club wil de capaciteit van zijn onderkomen opschroeven met maximaal 25.000 bezoekers. Om dit te bewerkstelligen, komt er een nieuwe schil rond het stadion waarin een derde ring is opgenomen.
Rijkswaterstaat staakt renovatie markante houten Krùsrak-brug in Sneek
20 maart, 11:32
Tijdens de renovatie werd duidelijk dat de constructieve veiligheid van de brug niet langer kan worden verzekerd, laat RWS weten. De uit 2008 stammende Krúsrak-brug over de rijksweg 7 is ontworpen door Onix en Archterbosch Architecten.
KAAN Architecten en De Zwarte Hond winnen tender voor Area 19 TU Eindhoven
20 maart, 10:35
De opdracht omvat het ontwerp van een nieuw onderzoeks- en onderwijsgebouw en de stedenbouwkundige ontwikkeling van een nieuw campusgebied.
Projecten gezocht voor vijfde Adriaan Dessingprijs
19 maart, 2:42
De tweejaarlijkse architectuurprijs vestigt de aandacht op bijzondere, gerealiseerde plannen in de Zuid-Hollandse gemeenten Westland en Midden-Delfland. Het kan gaan om nieuwbouw, restauratie of landschappelijke projecten.
Friesland brengt duizenden karakteristieke boerderijen in kaart
20 maart, 2:16
Door alle informatie over de voor het landschap kenmerkende gebouwen op één plek te brengen, moet het makkelijker worden om ze te behouden.
ING: bijna de helft van de huiseigenaren stelt verduurzaming uit
20 maart, 12:18
De meeste mensen vinden dat de overheid te weinig doet om dit te stimuleren.
Rekenkamer kraakt resultaten EU-innovatiefonds voor verduurzaming
20 maart, 9:25
Het Innovatiefonds van de Europese Unie levert veel minder resultaat op dan verwacht op het gebied van verduurzaming en innovatie.
Provincie schrapt beoogde locaties windturbines in Groene Hart
19 maart, 1:35
De provincie had twaalf plekken op het oog, maar dat leidde tot maatschappelijk en politiek verzet.
Staten Utrecht willen netcongestie versneld aanpakken
19 maart, 9:44
De fracties wezen op de noodzaak van het zo snel mogelijk realiseren van een hoogspanningsstation dat essentieel is voor het opsplitsen van het elektriciteitsnetwerk tussen de Flevopolder, Gelderland en Utrecht.
Rotterdam wil woningbouw versnellen met pilot āOntwikkelaar aan Zetā
18 maart, 4:33
De gemeente Rotterdam start een pilot waarbij projectontwikkelaars een grotere rol krijgen bij de voorbereiding van woningbouwprojecten.
Ga naar het nieuws-archief
0
0
0
0
Voor een optimale gebruikservaring plaatst Architectenweb functionele cookies. Wat de verschillende cookies precies doen leggen we uit in een
overzicht
. Cookies van social media kun je optioneel
aanzetten
.
Akkoord
Instellingen
Annuleren
OK
Sluiten
Doorgaan
Inloggen
Maak een gratis persoonlijk account aan
Feedback
Feedback
Wij horen graag jouw feedback. Laat je reactie achter en eventueel jouw e-mail adres.
Reactie
Verstuur