Projecten
Producten
Bedrijven
Vacatures
Agenda
Awards
Podcasts
more_horiz
Videos
Magazine
Favorieten
Profiel
Uitloggen
Abonneer je nu op onze nieuwsbrieven!
Abonneren
Nee, bedankt
Ja, denk met me mee rond de
materialisering van mijn project
Copyright: Boerhaave Medisch Centrum, exterieur. Marcel van der Burg
Copyright: Boerhaave Medisch Centrum, voorzijde. Marcel van der Burg
Copyright: Brede gang. Marcel van der Burg
Copyright: Trappenhuis bij entree. Marcel van der Burg
Copyright: Entree. Marcel van der Burg
Copyright: Trappenhuis. Marcel van der Burg
Copyright: Patiëntenkamer. Marcel van der Burg
Copyright: Poliklinische operatiekamer. Marcel van der Burg
Copyright: Steriele gang bij de OK's. Marcel van der Burg
Copyright: Operatiekamer 1. Marcel van der Burg
Copyright: Operatiekamer 2. Marcel van der Burg
Copyright: Voorgevel. NAP
Copyright: Doorsneden. NAP
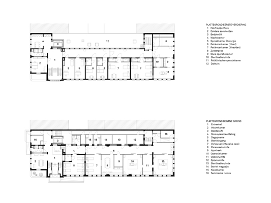
Copyright: Plattegronden. NAP
Copyright: Plattegronden. NAP
Copyright: Situatie. NAP
Copyright: Maquette. NAP
Copyright: Maquette. NAP
Copyright: Gebouw voor herbestemming. Marcel van der Burg
Oude school biedt ruimte aan moderne kliniek
13 oktober 2015, 13:23
Een leegstaand schoolgebouw in Amsterdam Zuid heeft een herbestemming gekregen als modern medisch centrum.
Network of Architects & Planners
(NAP) heeft met respect voor de bestaande Amsterdamse School-architectuur de nieuwe zorgfunctie ingepast.
Omdat het Boerhaave Medisch Centrum, de grootste privékliniek voor plastische chirurgie in Nederland, wilde moderniseren en uitbreiden, zocht de kliniek een nieuw onderkomen. De keuze viel op een leegstaand schoolgebouw, dat in 1933 is gebouwd als gereformeerde kweekschool. De laatste twintig jaar bood het monumentale pand onderdak aan het Amsterdam Mediacollege.
De ruimtelijke opzet bleek van het schoolgebouw bleek zeer geschikt voor het inpassen van de zorgfunctie. De brede gangen maken het beddentransport probleemloos mogelijk en de ruime lokalen kunnen ruimte bieden aan patiënten- en behandelkamers. Het half verdiept op de begane grond gelegen gymnastieklokaal was met zijn hoogte en vrije indeelbaarheid uitermate geschikt voor de operatieafdeling.
Indeling
NAP heeft een efficiënte en heldere indeling gerealiseerd. Vanuit de entreehal zijn alle afdelingen bereikbaar via de lift en een ruim trappenhuis. Een tweede inpandig trappenhuis is toegevoegd voor het personeel en als vluchtweg.
De operatieafdeling ligt een halve verdieping onder maaiveld. Het hart van de afdeling wordt gevormd door twee ultramoderne operatiekamers, aldus NAP. In één daarvan zijn de traditionele OK-lampen vervangen door in het plafond geïntegreerde, op afstand instelbare led-armaturen. Deze geïntegreerde lichtkoepels verstoren bovendien zo min mogelijk de werking van het luchtdruksysteem in de OK.
Op de eerste verdieping liggen de patiëntenkamers en de poliklinische operatiekamer. De tweede verdieping huisvest de medische specialisten voor reguliere zorgdiensten en de tandheelkundige praktijk. Op de bovenste verdieping zijn de administratieafdeling, de kantine, een vergaderzaal en de technische ruimtes ondergebracht.
Architectonische kwaliteit
Een uitbouw op de begane grond biedt ruimte aan een aantal nevenfuncties van de operatieafdeling. Het dak van de uitbouw is ingezet voor extra groen in het binnengebied. De zolder is uitgebouwd en voorzien van zinken gevelbekleding, in aansluiting op het omliggende daklandschap.
De buitenzijde van het gebouw bevond zich nog grotendeels in originele staat; NAP de oorspronkelijke architectonische kwaliteit van het gebouw behouden en beter zichtbaar gemaakt. Nieuwe elementen als vluchtdeuren en een hellingbaan heeft het architectenbureau zo zorgvuldig mogelijk in het gevelbeeld ingepast.
Het interieur heeft van NAP een lichte en schone uitstraling gekregen. Daaraan draagt het ruim binnenvallende daglicht in de hoge ruimten met vele ramen bij. De architecten hebben lichtgrijze gietvloeren en deuren en witte wanden en plafonds afgewisseld met een aantal kleur- en materiaalaccenten. Ook in het interieur laat NAP originele elementen weer geheel tot hun recht komen.
Trefwoorden
amsterdamse school
nap
zorg
boerhaave medisch centrum
transformatie
privékliniek
Locatie
Best gelezen
1
AM en Amvest zoeken architecten voor herontwikkeling Draka-terrein
dinsdag, 19 mei
2
Woningbouwproject KAAP langs het IJ in Amsterdam voltooid
dinsdag, 19 mei
3
Renovatie station Leeuwarden door Movares afgerond
woensdag, 20 mei
4
Dam & Partners ontwerpt multifunctioneel gebouw in Schinkelhaven
dinsdag, 19 mei
5
Utrechtse flats gerenoveerd volgens 'chassis-carrosseriemethode'
donderdag, 21 mei
Gerelateerde nieuwsberichten
Sint-Jozef Evere van Buro II & Archi+I klaar
12 oktober 2015
Ouderenzorgcentrum volgens kloostertypologie
30 september 2015
Woonzorgcampus Triamant volgt de levensloop
23 september 2015
Winnaars NRP Gulden Feniks 2015 bekend
4 juni 2015
Sint-Jozef Evere van Buro II & Archi+I klaar
12 oktober 2015
Ouderenzorgcentrum volgens kloostertypologie
30 september 2015
Woonzorgcampus Triamant volgt de levensloop
23 september 2015
Winnaars NRP Gulden Feniks 2015 bekend
4 juni 2015
Toon alles
Andere nieuwsberichten
SOME architects presenteert resultaten van onderzoek naar woonwensen 55-plussers
Vandaag, 16:09
Publicatie ‘Woontitanen’ biedt inspiratie en handvatten om kloof tussen vraag en aanbod in woningaanbod voor 55-plussers te dichten.
In beeld: inschuiven dakdeel van 2,4 miljoen kilo over Vivaldipassage
Vandaag, 14:43
Bij station Amsterdam Zuid vond afgelopen week een bijzondere inschuifoperatie plaats. Ten oosten van het station werd een nieuw dakdeel met een gewicht van 2,4 miljoen kilo over de toekomstige Vivalipassage geschoven.
Brug van hergebruikte materialen over Papaverkanaal in Buiksloterham
Vandaag, 13:15
Knipscheer Infra en Rademacher / De Vries Architecten hebben de aanbesteding gewonnen voor een brug van hergebruikte materialen in de Amsterdamse wijk Buiksloterham.
OZ transformeert kantoorgebouw achter voormalig hoofdkantoor Shell tot Ypsilon Park
Vandaag, 10:41
OZ transformeert een kantoorgebouw uit de jaren zeventig aan de Wassenaarseweg in Den Haag tot een woongebouw. Ypsilon Park bestaat uit 79 appartementen en penthouses, die in grootte variëren van 75 tot 280 vierkante meter.
Amsterdam wil woningbezitters weren uit sociale huurwoning
Vandaag, 12:23
Het stadsbestuur wil daarmee duidelijk maken dat het onwenselijk is dat huizenbezitters sociale huurwoningen bezet houden.
Mogelijk minder ruimte nodig voor uitbreidingsplannen Moerdijk
Vandaag, 09:47
Het dorp Moerdijk zou in dat geval kunnen blijven bestaan, aldus de gemeente.
Museum Rotterdam ontvangt sleutels van Citykerk Het Steiger
Gisteren, 15:01
Citykerk Het Steiger, een wederopbouwmonument in de Rotterdamse binnenstad, ondergaat in de komende jaren een transformatie naar onderkomen voor Museum Rotterdam, alsook naar woon- en kantoorruimte.
Naturalis: Nederlandse natuur verbetert, maar niet snel genoeg
Gisteren, 13:50
Het gaat beter met de natuur in Nederland, maar niet snel genoeg om aan afspraken te voldoen.
Bouw van flexwoningen valt tegen, ziet Rekenkamer
Gisteren, 09:50
De 948 miljoen euro die sinds 2021 opzij is gezet om meer flexwoningen te bouwen, is pas deels uitgegeven.
Binnenhof al bij voorbaat te klein voor alle organisaties
20 mei, 2:47
Nog voordat de verbouwing van het Binnenhof klaar is, is het complex te klein voor alle organisaties die erin moeten.
Ga naar het nieuws-archief
0
0
0
0
Voor een optimale gebruikservaring plaatst Architectenweb functionele cookies. Wat de verschillende cookies precies doen leggen we uit in een
overzicht
. Cookies van social media kun je optioneel
aanzetten
.
Akkoord
Instellingen
Annuleren
OK
Sluiten
Doorgaan
Inloggen
Maak een gratis persoonlijk account aan
Feedback
Feedback
Wij horen graag jouw feedback. Laat je reactie achter en eventueel jouw e-mail adres.
Reactie
Verstuur