Projecten
Producten
Bedrijven
Vacatures
Agenda
Awards
Podcasts
more_horiz
Videos
Magazine
Thema's
Favorieten
Profiel
Uitloggen
Copyright: Hannes Verstraete
Copyright: Hannes Verstraete
Copyright: Hannes Verstraete
Copyright: Hannes Verstraete
Copyright: Hannes Verstraete
Copyright: Hannes Verstraete
Copyright: Hannes Verstraete
Copyright: Hannes Verstraete
Copyright: Hannes Verstraete
Copyright: BURO II & ARCHI+I
Copyright: Begane grond. BURO II & ARCHI+I
Copyright: +1. BURO II & ARCHI+I
Copyright: +2. BURO II & ARCHI+I
Copyright: +6. BURO II & ARCHI+I
Copyright: +7. BURO II & ARCHI+I
Copyright: +8. BURO II & ARCHI+I
Copyright: Gevel, nieuwe situatie. BURO II & ARCHI+I
Copyright: Gevel, oude situatie. BURO II & ARCHI+I
Copyright: Situatie. BURO II & ARCHI+I
Hoogwaardige opfrissing van gedateerd woongebouw
3 februari 2016, 17:41
Een bestaand pand in het centrum van Roeselare (België) is door
BURO II & ARCHI+I
gerenoveerd en gemoderniseerd. De nieuwe verschijning ontdoet het gebouw, aldus het architectenbureau, van het stigma van sociale woningbouwblok.
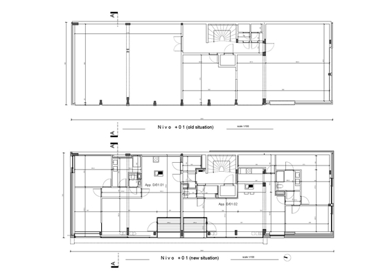
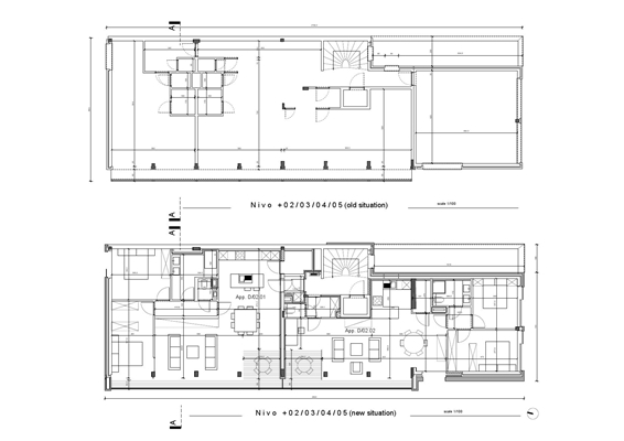
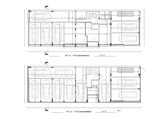
Het gebouw is gesitueerd op een aantrekkelijke locatie in de Belgische gemeente Roeselare. Voorheen waren hier de kantoren en sociale appartementen van de Mandel ondergebracht. Het pand is naar ontwerp van BURO II & ARCHI+I verbouwd naar een woongebouw met tien ruime verdiepingen, twee penthouses, negen garages en een kelder.
Wit en uniform
Het architectenbureau heeft het gedateerde gebouw opgefrist met een witte gevelbepleistering, Samen met de gerenoveerde gevel van het klein seminarie vormt het pand een vernieuwde stedelijke wand voor de Botermarkt.
De plint van het woonproject is uitgevoerd in houten latwerk. Dit draagt bij aan een uniforme gevel, waarin de garagedeuren visueel verborgen zijn, legt het architectenbureau uit. De entreezones zijn voorzien van een glazen front.
Glas en hout
De vol betonnen balustrades heeft BURO II & ARCHI+I vervangen door glazen exemplaren in combinatie met hetzelfde houten latwerk als bij de plint. De houten schermen zijn verschuifbaar en zorgen voor zonwering en privacy.
De kozijnen zijn vervangen door eigentijdse slanke witte ramen, die in het vlak van de gevel staan. Met hun fijne detaillering onderstrepen ze de architecturale kwaliteit die het architectenbureau met de renovatie aan het woonproject De Boterbloem heeft willen geven.
Het gebouw heeft vorige week de Roeselare Award in de categorie Renovatie toegekend gekregen.
Trefwoorden
appartementengebouw
belgië
renovatie
roeselare
buro ii & archi i
Locatie
Best gelezen
1
Buikslotermeerplein in Amsterdam-Noord krijgt zeventig meter hoge woontoren
woensdag, 22 oktober
2
Gedetailleerde 3D-geprinte maquette toont ruimtelijke ontwikkeling Amsterdam
vrijdag, 17 oktober
3
Woongebouwen door VdpArchitecten vormen nieuwe 'voorkant' Groningse Oosterparkwijk
vrijdag, 17 oktober
4
Nieuw woongebouw op plek befaamde elektronicazaak Rotterdam-Noord
maandag, 20 oktober
5
De Louise van De Zwarte Hond combineert sociale woningbouw met kwaliteit en duurzaamheid
maandag, 20 oktober
Gerelateerde nieuwsberichten
Ranke woongebouwen als schepen aan de kade
10 februari 2021
Woonzorgcampus Triamant volgt de levensloop
23 september 2015
City Gate voor deelgemeente Brussel
24 augustus 2015
Sint-Jozef Evere van Buro II & Archi+I klaar
12 oktober 2015
Ouderenzorgcentrum volgens kloostertypologie
30 september 2015
Ontwerp voor gevangenis met dorpse opzet
9 september 2013
Inrichting kantoren voor Immo Desimpel
28 oktober 2014
Nederlandse bureaus aan de slag in noordelijke stationsomgeving Roeselare
9 september 2022
Ranke woongebouwen als schepen aan de kade
10 februari 2021
Woonzorgcampus Triamant volgt de levensloop
23 september 2015
City Gate voor deelgemeente Brussel
24 augustus 2015
Sint-Jozef Evere van Buro II & Archi+I klaar
12 oktober 2015
Ouderenzorgcentrum volgens kloostertypologie
30 september 2015
Ontwerp voor gevangenis met dorpse opzet
9 september 2013
Inrichting kantoren voor Immo Desimpel
28 oktober 2014
Nederlandse bureaus aan de slag in noordelijke stationsomgeving Roeselare
9 september 2022
Toon alles
Andere nieuwsberichten
Tentoonstelling Optimistic Activism van De Zwarte Hond opent bij Aedes in Berlijn
Gisteren, 16:00
De Zwarte Hond heeft een tentoonstelling samengesteld over haar werkwijze en een bijhorende selectie van twaalf projecten
Bouw van The Circle op plek café De Omval gaat van start
Gisteren, 14:10
In november wordt aan de kop van de Weespertrekvaart in Amsterdam gestart met de bouw van The Circle. Het gebouw, dat is ontworpen door Space & Matter, verrijst op de plek waar vroeger het befaamde café De Omval stond.
BNLA breidt woonhuis uit met uitbouw en 'verborgen schatten' in de tuin
Gisteren, 12:29
In Amstelveen heeft BNLA architecten een jarendertigwoning verbouwd en uitgebreid met onder meer een moderne uitbouw en een verdiept tuinhuis. Achter het tuinhuis zijn als ‘verborgen schatten’ nog een zwembad, buitenkeuken en terras gerealiseerd.
Schimmelstraat Amsterdam loopt niet langer dood dankzij woongebouw voor 55-plussers
22 oktober, 4:36
Aan de Tweede Kostverlorenkade in Amsterdam-West is deze zomer een appartementengebouw voor 55-plussers opgeleverd. Het gebouw met 38 sociale huurwoningen is in opdracht van Rochdale ontworpen door INBO.
Provincies: bouw van half miljoen woningen dreigt stil te vallen
Gisteren, 15:08
De bouw van ongeveer 500.000 woningen dreigt de komende jaren vast te lopen, vooral door de stikstofimpasse en het overvolle elektriciteitsnet.
Maquette als onderdeel van expositie Amsterdam in Motion wordt geopend
Gisteren, 10:35
De maquette, onderdeel van de permanente tentoonstelling Amsterdam in Motion, is een cadeau aan de 750-jarige stad.
Provincies zetten in op natuurherstel tegen stikstofimpasse
22 oktober, 1:27
In 2030 moet zeventig procent van die natuurgebieden op orde zijn, vijf jaar later moet dat voor negentig procent gelden.
Renovatie Prinsenhof Delft kost negen miljoen meer dan eerder begroot
22 oktober, 9:33
Dat komt onder meer doordat bouwmaterialen en energie duurder zijn geworden en door ‘schaarste aan gespecialiseerd vakmanschap’, meldt de gemeente.
Oproep aan nieuw kabinet: maak topprioriteit van schoon water
21 oktober, 12:26
De Unie van Waterschappen vindt dat het volgende kabinet hiervoor moet zorgen om de Europese doelen voor schoon en gezond water te halen.
Zuid-Holland draagt elf locaties Groene Hart aan voor windturbines
21 oktober, 10:45
Uit een verkennend onderzoek bleek al dat in het open polderlandschap ruimte is voor maximaal 67 turbines van 240 meter.
Ga naar het nieuws-archief
0
0
0
0
Voor een optimale gebruikservaring plaatst Architectenweb functionele cookies. Wat de verschillende cookies precies doen leggen we uit in een
overzicht
. Cookies van social media kun je optioneel
aanzetten
.
Akkoord
Instellingen
Annuleren
OK
Sluiten
Doorgaan
Inloggen
Maak een gratis persoonlijk account aan
Feedback
Feedback
Wij horen graag jouw feedback. Laat je reactie achter en eventueel jouw e-mail adres.
Reactie
Verstuur