Projecten
Producten
Bedrijven
Vacatures
Agenda
Awards
Podcasts
more_horiz
Videos
Magazine
Thema's
Favorieten
Profiel
Uitloggen
Copyright: Urban Villa. Luuk Kramer
Copyright: Gevel aan de Lindelaan. Luuk Kramer
Copyright: Ensemble van identiteiten. Luuk Kramer
Copyright: Hoogwaardige materialisatie. Luuk Kramer
Copyright: Verticale ontsluiting parkzijde. Luuk Kramer
Copyright: Straatgevel en parkgevel. Luuk Kramer
Copyright: Parkgevel Blok B. Stefanova Architecten
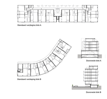
Copyright: Plattegrond en doorsnede Blok A en B. Stefanova Architecten
Copyright: Plattegrond Blok D en E. Stefanova Architecten
Copyright: Lindepark situatie. Stefanova Architecten
Stefanova plaatst fors programma in het groen
9 november 2015, 16:13
In Amstelveen heeft
Stefanova Architecten
een fors woon- en sociaalmaatschappelijk programma gerealiseerd. Het project Lindepark omvat vijf compacte, losstaande woongebouwen op een locatie waarvan het parkkarakter is behouden.
Het grasveld waar de nieuwbouw diende te verrijzen, werd gekoesterd door de buurtbewoners. De opgave voor het architectenbureau behelsde het maken van een stedenbouwkundig en architectonisch plan waarbij het groen en het water in de buurt leidend waren. Tegelijkertijd moest een aantrekkelijke omgeving worden gecreëerd voor de omwonenden.
Ensemble in het groen
Het gehele programma heeft Stefanova Architecten verdeeld over vijf vrijstaande, zo compact mogelijk ontworpen gebouwen. Onderin de woonblokken, ondergronds en half verdiept zijn meer dan 120 parkeerplaatsen gerealiseerd. Daarmee is een autovrije, parkachtige omgeving gecreëerd. Volgens het bureau is er een nieuw buurtje ontstaan, dat typerend is voor Amstelveen.
De gebouwen langs de straten weerspiegelen de tegenoverliggende bestaande bebouwing. De bebouwing aan de Lindelaan heeft een stedelijke uitstraling terwijl de bebouwing aan de parkzijde transparanter is.
De vijf gebouwen vormen samen een ensemble en tegelijkertijd is ieder gebouw een herkenbaar object. Een wandelroute door het plangebied via een bestaand bruggetje heeft zijn stempel op het stedenbouwkundig plan gedrukt. Doorkijkjes en routes tussen de gebouwen maken het volgens Stefanova Architecten aantrekkelijk om door het gebied te wandelen en er te wonen.
Uitstraling en omgeving
Het overal toegepaste en terugkerende architectonische elementen verbinden de gebouwen tot een ensemble. De kleur van de horizontale banden, karakteristiek voor omringende architectuur uit de jaren zestig en zeventig van de vorige eeuw, komt terug in de kleur van het metselwerk.
De steen past uitstekend met het groen van het park en gaat goed over in het glas van de vele raampartijen. In aanvulling op het metselwerk als basis is aan de parkzijde hout – Western Red Cedar – toegepast.
Leefbaarheid
Bij het project Lindepark ligt de nadruk sterk op leefbaarheid op zowel gebouw- als buurtniveau, zo legt het architectenbureau uit. In het complex zijn levensloopbestendige sociale huur- en koopwoningen gerealiseerd. In totaal betreft het 120 woningen, een zogenoemd Thuishuis en een kinderdagverblijf.
Het Thuishuis past binnen de ontwikkeling in de samenleving waarbij ouderen tot op steeds hogere leeftijd zelfstandig wonen. Het betreft een kleinschalige groepswoning voor ouderen die geen directe zorg behoeven, maar dreigen te vereenzamen.
Kwalitatief hoogwaardig
De kwaliteit van de materialisatie en detaillering heeft ervoor gezorgd dat er uit de buurt vele positieve reacties zijn gekomen, aldus Stefanova Architecten. "Dit was nooit gelukt als er over de opdracht en het budget tijdens het ontwerpproces onduidelijkheden waren geweest."
"De architect en opdrachtgever Eigen Haard zaten vanaf het begin op dezelfde lijn en zagen het belang in van kwalitatief hoogwaardige materialen", zo vervolgt het architectenbureau. Negentig procent van de koopwoningen was al verkocht tijdens de uitvoering, zo stelt het bureau, "Ondanks de crisis."
Trefwoorden
woningbouw
lindepark
zorg
amstelveen
sociaal-maatschappelijk
eigen haard
stefanova architecten
thuishuis
Best gelezen
1
Houthybride woongebouw langs de A8 in Zaandam opgeleverd
dinsdag, 11 november
2
WillemsenU zinkt villa af in landschap
dinsdag, 11 november
3
Woongebouw voor gezinnen biedt ruime corridor en gekoppelde terrassen met glijbaan
woensdag, 12 november
4
MVRDV ontwerpt bolvormig sportcomplex in Albanese hoofdstad Tirana
maandag, 10 november
5
Groningers kiezen nieuwe invulling voor plek gesloopte parkeergarage in stadscentrum
dinsdag, 11 november
Gerelateerde nieuwsberichten
Reimar von Meding (KAW) keynote op zorgcongres
24 november 2015
Schetsontwerp voor Marktgebouw Nieuw-Vennep
18 november 2015
Ouderenzorgcentrum volgens kloostertypologie
30 september 2015
Wooncomplex voor actieve senioren
30 juni 2015
Woonzorgcampus Triamant volgt de levensloop
23 september 2015
Reimar von Meding (KAW) keynote op zorgcongres
24 november 2015
Schetsontwerp voor Marktgebouw Nieuw-Vennep
18 november 2015
Ouderenzorgcentrum volgens kloostertypologie
30 september 2015
Wooncomplex voor actieve senioren
30 juni 2015
Woonzorgcampus Triamant volgt de levensloop
23 september 2015
Toon alles
Andere nieuwsberichten
Nominaties Zuiderkerkprijs en Geurt Brinkgreve Bokaal 2025 bekend
Gisteren, 12:17
Voor de eerstgenoemde woningbouwprijs van de gemeente Amsterdam zijn tien projecten genomineerd, de bokaal voor het beste initiatief op het gebied van herontwikkeling, transformatie of renovatie leverde zeven nominaties op.
'Architecten kunnen kwaliteit waarborgen bij splitsen en opdelen rijtjeshuizen'
Gisteren, 11:14
Om het splitsen en opdelen van rijtjeswoningen van de grond te krijgen, dienen het Rijk en gemeenten de regie te nemen. Architecten kunnen hierbij worden ingeschakeld voor de waarborging van de kwaliteit, aldus een vrijdag verschenen rapport.
MVRDV en Buro Happold ontwerpen nieuw theater in Veenendaal
Gisteren, 10:23
Voor de vernieuwing van Theater De Lampegiet zijn vijf schetsontwerpen gemaakt. Zowel de inwoners van de stad als de jury hebben daarbij voor het ontwerp van MVRDV en Buro Happold gekozen.
Benthem Crouwel Architects plaatst slotstuk in Paleiskwartier van Den Bosch
13 november, 5:00
Benthem Crouwel Architects heeft het stadsblok Palazzo in het Paleiskwartier van Den Bosch opgeleverd
Zuid-Holland verhoogt budget voor restauratie rijksmonumenten
Gisteren, 14:08
De provincie Zuid-Holland verhoogt het budget voor de restauratie van rijksmonumenten structureel.
Rapport: natuur kan helpen beschermen tegen stijgende zeespiegel
Gisteren, 09:24
Natuurlijke oplossingen zoals ruim baan geven aan gebieden met eb en vloed kunnen helpen de Nederlandse kustlijn te beschermen tegen de stijgende zeespiegel.
Deltacommissaris: ga nu al in gesprek over toekomst waterbeheer
13 november, 4:03
Nederland moet nu al kijken welke randvoorwaarden nodig zijn om grote waterbeschermingsprogramma's zoals de Deltawerken in de komende jaren uit te voeren.
Gemeentebestuur wil Brabants dorp Moerdijk laten verdwijnen
13 november, 10:23
Het dorp Moerdijk in Noord-Brabant moet verdwijnen om plaats te maken voor uitbreiding van het bestaande haven- en industrieterrein in die plaats.
Iets minder mensen vertrekken uit de Randstad dan in eerdere jaren
12 november, 10:00
Onder andere omdat er in de Randstad meer kinderen worden geboren, groeit de bevolking daar sneller dan in de gebieden eromheen. Netto vertrokken er afgelopen jaar 14.000 mensen.
Woningen en park op plek van rangeerterrein bij Rotterdamse Kuip
12 november, 9:30
Een rangeerterrein voor treinen tegenover stadion De Kuip in Rotterdam verdwijnt. Op de plek worden woningen en een nieuw station gebouwd. Bovendien moet een park naast het spoor worden uitgebreid.
Ga naar het nieuws-archief
0
0
0
0
Voor een optimale gebruikservaring plaatst Architectenweb functionele cookies. Wat de verschillende cookies precies doen leggen we uit in een
overzicht
. Cookies van social media kun je optioneel
aanzetten
.
Akkoord
Instellingen
Annuleren
OK
Sluiten
Doorgaan
Inloggen
Maak een gratis persoonlijk account aan
Feedback
Feedback
Wij horen graag jouw feedback. Laat je reactie achter en eventueel jouw e-mail adres.
Reactie
Verstuur