Projecten
Producten
Bedrijven
Vacatures
Agenda
Awards
Podcasts
more_horiz
Videos
Magazine
Favorieten
Profiel
Uitloggen
Abonneer je nu op onze nieuwsbrieven!
Abonneren
Nee, bedankt
Ja, denk met me mee rond de
materialisering van mijn project
Producten
Copyright: BINT architecten
Copyright: BINT architecten
Copyright: BINT architecten
Copyright: BINT architecten
Copyright: BINT architecten
Copyright: BINT architecten
Copyright: BINT architecten
Copyright: BINT architecten
Copyright: BINT architecten
Copyright: BINT architecten
Copyright: BINT architecten
Copyright: BINT architecten
Copyright: BINT architecten
Producttags
AAN
UIT
Restaurant Abel, Poortugaal
3 juni 2025
0
0
0
0
Voor
Abel.
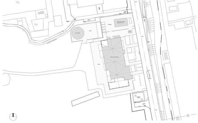
heeft BINT een nieuw restaurant aan de Albrandswaardsedijk in Poortugaal ontworpen. In natuurgebied Johannapolder is vanaf de Albrandswaardsedijk tot aan de Oude Maas recentelijk een ‘groene loper’ aangelegd. Het gecombineerde fiets- en voetpad eindigt in een uitkijkpunt aan de Oude Maas. Het bouwvlak ligt direct aan de ‘groene loper’ en biedt uitzicht over het Pitch & Putt golfterrein.
Om het ontwerp met z’n omgeving te verbinden is gekozen om massa’s die qua schaal aansluiten bij de omgevingsbebouwing te combineren in verschillende oriëntaties, zodat een alzijdig volume ontstaat. Vervolgens wordt de dakvorm verschoven ten behoeve van zichtlijnen, routing langs de ‘groene loper’ en oriëntatie van de zon. Door het insnijden van de massa op specifieke plekken worden de entree’s, overdekte buitenruimte en terrasoverkappingen gevormd.
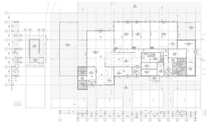
De functionele kern met keuken, opslag, barren, ijssalon, toiletten, is ontworpen om zo efficiënt mogelijk te functioneren. Door het integreren van meerdere entrees, een routing tussen de functionele kern en de verschillende zalen samen met de schuifwanden in de publieke ruimten, kan het paviljoen in verschillende configuraties gebruikt/ opgeschaald worden.
Op de entrees na is de gevel langs de ‘groene loper’ gesloten uitgevoerd en bekleed met verticale donkere houten geveldelen. Het materiaalgebruik en kleurstelling harmonieert met het omliggende landschap. Het gebouw opent zich richting het zuidwesten met lange zichtlijnen en grote overstekken. Dit zorgt voor een geleidelijke overgang tussen binnen en buiten. Het dak is voorzien van een sedumdak met pv-panelen ten behoeve van de installaties.
Stel jezelf kort voor! Dan weet het betreffende bedrijf wie hun model gedownload heeft.
Wil je niet bij elke download jouw gegevens in hoeven voeren?
Klik dan hier om in te loggen
.
Heb je nog geen account?
Maak dan hier een gratis account aan
.
Voornaam
Achternaam
E-mailadres
Downloaden
Wanneer je modellen downloadt op Architectenweb.nl worden relevante gegevens van jou – zoals jouw naam en e-mailadres – met het betreffende bedrijf gedeeld. Meer hierover lees je in ons
privacybeleid
.
Locatie
BINT architecten
Neem contact op
Projectdata
Staat van realisatie
Voltooid
Start ontwerpproces
2018
Start bouw
2019
Oplevering
2020
Plaats
Poortugaal
Bruto m
2
996
Meewerkende partijen
Architect
BINT architecten
Aannemer
Boksman
Leveranciers
Overig
Leegwater Houtbereiding B.V.
Neem contact op met
BINT architecten
Je bent momenteel niet ingelogd. Hierdoor is het alleen mogelijk om meer informatie per e-mail op te vragen. Wil je liever gebeld worden of documentatie per post ontvangen?
Klik dan hier om in te loggen
.
Heb je nog geen account?
Maak dan hier een gratis account aan
.
Voornaam
Achternaam
E-mailadres
Opmerkingen
Bij iedere aanvraag worden relevante gegevens van jou gedeeld met het betreffende bedrijf. Meer hierover lees je in ons
privacybeleid
.
Ja, denk met me mee rond de
materialisering van mijn project
Meer projecten van BINT architecten
Strandpaviljoen Ocean Oasis, Bonaire
BINT architecten
Villa Goeree-Overflakkee
BINT architecten
Paviljoen De Watering Katwijk
BINT architecten
Pannenkoeken Restaurant, Cruquius
BINT architecten
Ontvangstgebouw RCN Het Grote Bos, Doorn
BINT architecten
Stadshavengebouw Amstelkwartier
BINT architecten
Centrumgebouw Oesterdam Resort
BINT architecten
Jaarrondpaviljoen Sjoerd
BINT architecten
Aloha Surfschool
BINT architecten
C • T coffee & coconuts
BINT architecten
Restaurant More Itz
BINT architecten
Jaarrondpaviljoen Paal 14
BINT architecten
Paviljoen The Coast
BINT architecten
Visie Ahoy 2030
BINT architecten
Binnenstadplan Apeldoorn
BINT architecten
Strandpaviljoen Tijn Akersloot
BINT architecten
Villa Avenue Aruba
BINT architecten
Camping Duinlust
BINT architecten
Coral Triangle Center
BINT architecten
Strandpaviljoen Ocean Oasis, Bonaire
BINT architecten
Villa Goeree-Overflakkee
BINT architecten
Paviljoen De Watering Katwijk
BINT architecten
Pannenkoeken Restaurant, Cruquius
BINT architecten
Ontvangstgebouw RCN Het Grote Bos, Doorn
BINT architecten
Stadshavengebouw Amstelkwartier
BINT architecten
Centrumgebouw Oesterdam Resort
BINT architecten
Jaarrondpaviljoen Sjoerd
BINT architecten
Aloha Surfschool
BINT architecten
C • T coffee & coconuts
BINT architecten
Restaurant More Itz
BINT architecten
Jaarrondpaviljoen Paal 14
BINT architecten
Paviljoen The Coast
BINT architecten
Visie Ahoy 2030
BINT architecten
Binnenstadplan Apeldoorn
BINT architecten
Strandpaviljoen Tijn Akersloot
BINT architecten
Villa Avenue Aruba
BINT architecten
Camping Duinlust
BINT architecten
Coral Triangle Center
BINT architecten
Toon alles
Andere Projecten
Stadshart van toren tot toren
BoschSlabbers
Schaalbaar honderden modulaire woningen bouwen?
Buro De Haan
Brabants landschap geeft herstel
BoschSlabbers
Eigentijds wonen met concept Ankum
Innoblox
Van Waal tot Waal
BoschSlabbers
Op de plaats rust
BoschSlabbers
Gebouw 50 – Slimme, duurzame geveloptimalisatie
EQUITONE gevelpanelen
Bravis ziekenhuis: landschap niet ver weg
BoschSlabbers
De bos als behandelkamer
BoschSlabbers
Nieuwbouw kantoorpand
Knauf B.V.
woningbouw poortmeesters delft
VYA architectuur en stedenbouw
Onderwijsgebouw Aurora, Wageningen
WEBO
Ga naar het projecten-overzicht
Voor een optimale gebruikservaring plaatst Architectenweb functionele cookies. Wat de verschillende cookies precies doen leggen we uit in een
overzicht
. Cookies van social media kun je optioneel
aanzetten
.
Akkoord
Instellingen
Annuleren
OK
Sluiten
Doorgaan
Inloggen
Maak een gratis persoonlijk account aan
Feedback
Feedback
Wij horen graag jouw feedback. Laat je reactie achter en eventueel jouw e-mail adres.
Reactie
Verstuur