Projecten
Producten
Bedrijven
Vacatures
Agenda
Awards
Podcasts
more_horiz
Videos
Magazine
Favorieten
Profiel
Uitloggen
Abonneer je nu op onze nieuwsbrieven!
Abonneren
Nee, bedankt
Ja, denk met me mee rond de
materialisering van mijn project
Producten
Producttags
AAN
UIT
Villa Avenue Aruba
22 juli 2009
0
0
0
0
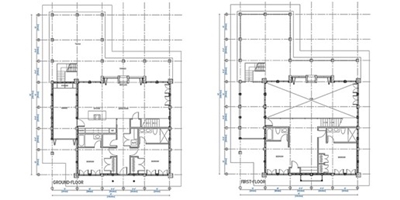
Voor ontwikkelaar Blijvend Goed heeft BINT 3 villa ontwerpen gemaakt, toegespitst op de Amerikaanse markt. Het zijn statige villa's met modern klassieke details: royale dakoverstekken, zuilen, openhaard en veel (grotendeels geconditioneerde) binnenruimte.
Het landschappelijk plan van Jacco Stuy sluit hier op aan met een ruim straatprofiel met palmbomen en een voortuin met oprit naar de garage. Het oplopende terrein is trapsgewijs opgedeeld in kavels. De villa's staan verspringend t.o.v. de rooilijn, zodat er een afwisselend straatbeeld ontstaat.
Het project bevindt zich nu in de DO fase, eind 2009 wordt de eerste woning opgeleverd.
Stel jezelf kort voor! Dan weet het betreffende bedrijf wie hun model gedownload heeft.
Wil je niet bij elke download jouw gegevens in hoeven voeren?
Klik dan hier om in te loggen
.
Heb je nog geen account?
Maak dan hier een gratis account aan
.
Voornaam
Achternaam
E-mailadres
Downloaden
Wanneer je modellen downloadt op Architectenweb.nl worden relevante gegevens van jou – zoals jouw naam en e-mailadres – met het betreffende bedrijf gedeeld. Meer hierover lees je in ons
privacybeleid
.
Locatie
Trefwoorden
appartementen
bint
aruba
villa
BINT architecten
Neem contact op
Projectdata
Staat van realisatie
Voltooid
Start bouw
2010
Plaats
Noord
Neem contact op met
BINT architecten
Je bent momenteel niet ingelogd. Hierdoor is het alleen mogelijk om meer informatie per e-mail op te vragen. Wil je liever gebeld worden of documentatie per post ontvangen?
Klik dan hier om in te loggen
.
Heb je nog geen account?
Maak dan hier een gratis account aan
.
Voornaam
Achternaam
E-mailadres
Opmerkingen
Bij iedere aanvraag worden relevante gegevens van jou gedeeld met het betreffende bedrijf. Meer hierover lees je in ons
privacybeleid
.
Ja, denk met me mee rond de
materialisering van mijn project
Meer projecten van BINT architecten
Restaurant Abel, Poortugaal
BINT architecten
Strandpaviljoen Ocean Oasis, Bonaire
BINT architecten
Villa Goeree-Overflakkee
BINT architecten
Paviljoen De Watering Katwijk
BINT architecten
Pannenkoeken Restaurant, Cruquius
BINT architecten
Ontvangstgebouw RCN Het Grote Bos, Doorn
BINT architecten
Stadshavengebouw Amstelkwartier
BINT architecten
Centrumgebouw Oesterdam Resort
BINT architecten
Jaarrondpaviljoen Sjoerd
BINT architecten
Aloha Surfschool
BINT architecten
C • T coffee & coconuts
BINT architecten
Restaurant More Itz
BINT architecten
Jaarrondpaviljoen Paal 14
BINT architecten
Paviljoen The Coast
BINT architecten
Visie Ahoy 2030
BINT architecten
Binnenstadplan Apeldoorn
BINT architecten
Strandpaviljoen Tijn Akersloot
BINT architecten
Camping Duinlust
BINT architecten
Coral Triangle Center
BINT architecten
Restaurant Abel, Poortugaal
BINT architecten
Strandpaviljoen Ocean Oasis, Bonaire
BINT architecten
Villa Goeree-Overflakkee
BINT architecten
Paviljoen De Watering Katwijk
BINT architecten
Pannenkoeken Restaurant, Cruquius
BINT architecten
Ontvangstgebouw RCN Het Grote Bos, Doorn
BINT architecten
Stadshavengebouw Amstelkwartier
BINT architecten
Centrumgebouw Oesterdam Resort
BINT architecten
Jaarrondpaviljoen Sjoerd
BINT architecten
Aloha Surfschool
BINT architecten
C • T coffee & coconuts
BINT architecten
Restaurant More Itz
BINT architecten
Jaarrondpaviljoen Paal 14
BINT architecten
Paviljoen The Coast
BINT architecten
Visie Ahoy 2030
BINT architecten
Binnenstadplan Apeldoorn
BINT architecten
Strandpaviljoen Tijn Akersloot
BINT architecten
Camping Duinlust
BINT architecten
Coral Triangle Center
BINT architecten
Toon alles
Gerelateerde nieuwsberichten
Geld voor monumenten Antillen en Aruba
3 augustus 2009
Andere Projecten
MFC Feanwâlden
KHV Architecten B.V.
Parkeergarage De Caai in Eindhoven
Alucol
Lichtstad Architecten: bouwen aan blijvende ideeën
KUBUS | Specialist in Archicad
Horecapaviljoen Vakantiepark Eigen Wijze
KHV Architecten B.V.
Ontwikkeling Kornputkwartier
KHV Architecten B.V.
IKEA Restaurant, Frankfurt
objectflor
Gevelsteen vormt monumentaal ontwerp
Steenbakkerij Vande Moortel
Nieuw kantoorgebouw
SAPA
Kindcentrum Kampen
Holonite B.V.
BDO kantoor Breda
ULMA Architectural Solutions
Transformatie Appartementencomplex De Karel 2.0
Knauf B.V.
Studentenhuisvesting the Cube in Utrecht
Kronospan
Ga naar het projecten-overzicht
Voor een optimale gebruikservaring plaatst Architectenweb functionele cookies. Wat de verschillende cookies precies doen leggen we uit in een
overzicht
. Cookies van social media kun je optioneel
aanzetten
.
Akkoord
Instellingen
Annuleren
OK
Sluiten
Doorgaan
Inloggen
Maak een gratis persoonlijk account aan
Feedback
Feedback
Wij horen graag jouw feedback. Laat je reactie achter en eventueel jouw e-mail adres.
Reactie
Verstuur